Maison à construire à Étainhus (76430)
Images
Description
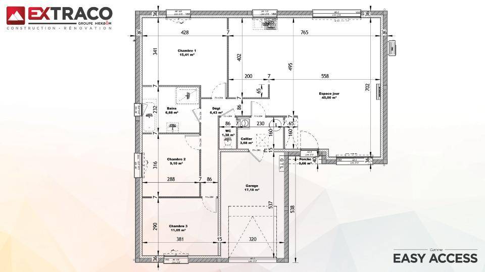
VENTE : maison de 4 pièces (98 m²) à Étainhus
MAISON 4 PIÈCES NEUVE - PROCHE DU HAVRE
En vente à 13 km de la Manche et à deux pas du Havre, ayez le coup de coeur pour à Étainhus (76430), cette maison de 4 pièces de plain-pied de 98 m² et de 1 221 m² de terrain. Son intérieur dispose de trois chambres, d'une cuisine et d'une salle de bains.
Cette maison est neuve.
On trouve une école primaire dans le quartier. Niveau transports en commun, il y a sept gares à moins de 10 minutes en voiture. Les autoroutes A29 et A131 sont accessibles à moins de 9 km. On trouve une épicerie dans les environs.
Elle est à vendre pour la somme de 297 500 €.
Prenez contact avec Barbara PELLETER ((Numéro supprimé)) pour toute question sur la maison.
Logement susceptibles de vous intéresser
Nous vous proposons de découvrir aussi cette sélection de logements situés à moins de 10km de Étainhus et qui seraient susceptibles de vous intéresser.
Bornambusc
TERRAINVENTE : terrain de 660 m² à BornambuscIDÉALEMENT SITUÉ – PROCHE DU HAVREÀ Bornambusc (76110) en vente à 14 km de la Manche et à deux pas du Havre, découvrez ce terrain de 660 m². Ce terrain, avec vue sur espace vert, est orienté au sud-ouest. Dans un secteur prisé, ce terrain idéalement situé est proche des écoles et des commerces. Côté transports en commun, on trouve les gares Virville-Manneville, Bréauté-Beuzeville et Étainhus-Saint-Romain à moins de 10 minutes en voiture. L’autoroute A29 est accessible à 8 km. Il y a une bibliothèque à quelques minutes à peine.Ce terrain est à vendre pour la somme de 72 500 €. Prenez contact avec notre agence (Lindsay COLLAY : (Numéro supprimé)) pour tout renseignement sur le terrain, sur les démarches à suivre ou sur les modalités de vente.
Bornambusc
TERRAIN ET MAISONA construire une maison T5 (91 m²) à BornambuscIDÉALEMENT SITUÉE – MAISON 5 PIÈCES NEUVEA construire : localisée à 14 km de la Manche et à 21 km du Havre, idéalement située dans Bornambusc (76110), nous vous proposons cette maison de 5 pièces de 91 m².Cette maison comporte 2 niveaux. Son intérieur inclut quatre chambres, une cuisine et une salle de bains. Cette maison est neuve.Le terrain du bien est de 660 m².La maison se trouve dans un quartier convoité. Côté transports en commun, il y a les gares Virville-Manneville, Bréauté-Beuzeville et Étainhus-Saint-Romain à moins de 10 minutes en voiture. Il y a un accès à l’autoroute A29 à 8 km. On trouve une bibliothèque à proximité du logement.Son prix de vente est de 221 277 €.Prenez contact avec notre agence (COLLAY Lindsay : (Numéro supprimé)) pour toute question sur la maison ou sur les démarches à suivre.
Beuzeville-la-Grenier
TERRAINBeuzeville-la-Grenier : terrain de 549 m² à vendrePROCHE DU HAVREÀ Beuzeville-la-Grenier (76210) à 13 km de la Manche et à quelques kilomètres du Havre, venez découvrir ce terrain de 549 m². L’École Élémentaire Lucienne Julien et l’École Maternelle Pierre Julien sont implantées à moins de 10 minutes à pied. Niveau transports, il y a quatre gares à moins de 10 minutes en voiture. On trouve un accès à l’autoroute A29 à 2 km. On trouve un tennis, une boulangerie et deux boucheries-charcuteries à proximité.Il est à vendre pour la somme de 69 000 €. Prenez contact avec Barbara PELLETER ((Numéro supprimé)) pour toute question sur ce terrain.
Beuzeville-la-Grenier
TERRAINVENTE : terrain de 571 m² à Beuzeville-la-GrenierPROCHE DU HAVREGrand terrain en vente à 13 km de la Manche et à quelques kilomètres du Havre. De 571 m², ce terrain se situe dans Beuzeville-la-Grenier (76210). Il y a l’École Élémentaire Lucienne Julien et l’École Maternelle Pierre Julien à moins de 10 minutes à pied. Niveau transports, on trouve quatre gares à moins de 10 minutes en voiture. L’autoroute A29 est accessible à 2 km. Il y a un tennis, une boulangerie et deux boucheries-charcuteries dans les environs.Il est à vendre pour la somme de 74 000 €. N’hésitez pas à prendre contact avec Barbara PELLETER (tél : (Numéro supprimé)) pour toute question sur ce terrain.
Beuzeville-la-Grenier
TERRAIN ET MAISONVENTE d’une maison de 4 pièces (82 m²) à Beuzeville-la-GrenierMAISON 4 PIÈCES NEUVE – PROCHE DU HAVREÀ vendre à 13 km de la Manche et à quelques kilomètres du Havre, nous vous présentons cette maison de 4 pièces de plain-pied de 82 m² à Beuzeville-la-Grenier (76210).Son intérieur dispose de trois chambres, d’une cuisine et d’une salle de bains. La maison est neuve.Le terrain de la propriété est de 549 m².Il y a l’École Élémentaire Lucienne Julien et l’École Maternelle Pierre Julien à moins de 10 minutes à pied. Côté transports en commun, on trouve quatre gares à moins de 10 minutes en voiture. L’autoroute A29 est accessible à 2 km. Il y a un tennis, une boulangerie et deux boucheries-charcuteries dans les environs.Son prix de vente est de 242 000 €.Contactez notre agence (PELLETER Barbara : (Numéro supprimé)) pour toute question sur cette maison ou sur les démarches à suivre. Faites de vos projets immobiliers une réalité avec Les Maisons Extraco Le Havre.
Beuzeville-la-Grenier
TERRAIN ET MAISONVENTE : maison de 4 pièces (81 m²) à Beuzeville-la-GrenierPROCHE DU HAVRE – MAISON 4 PIÈCES NEUVEÀ vendre à 13 km de la Manche et à quelques kilomètres du Havre, Les Maisons Extraco Le Havre vous présente cette maison de 4 pièces de 81 m² à Beuzeville-la-Grenier (76210).Cette maison compte 2 niveaux. Son intérieur propose deux chambres, une cuisine et une salle de bains. Cette maison est neuve.Le terrain de la propriété s’étend sur 549 m².Il y a l’École Élémentaire Lucienne Julien et l’École Maternelle Pierre Julien à moins de 10 minutes à pied. Niveau transports en commun, on trouve quatre gares à moins de 10 minutes en voiture. Il y a un accès à l’autoroute A29 à 2 km. Il y a un tennis, une boulangerie et deux boucheries-charcuteries à proximité de la maison.Elle est à vendre pour la somme de 241 500 €.Prenez contact avec Barbara PELLETER ((Numéro supprimé)) pour plus de renseignements sur la maison, sur les modalités de vente ou sur les démarches à suivre. Donnez vie à vos projets immobiliers avec Les Maisons Extraco Le Havre.
Beuzeville-la-Grenier
TERRAIN ET MAISONMaison T4 (84 m²) en vente à Beuzeville-la-GrenierPROCHE DU HAVRE – MAISON 4 PIÈCES NEUVEEn vente à 13 km de la Manche et à deux pas du Havre, venez découvrir cette maison de 4 pièces de plain-pied de 84 m² et de 549 m² de terrain à Beuzeville-la-Grenier (76210).Son intérieur dispose de trois chambres, d’une cuisine et d’une salle de bains. La maison est neuve.On trouve l’École Élémentaire Lucienne Julien et l’École Maternelle Pierre Julien à moins de 10 minutes à pied. Niveau transports, il y a quatre gares à moins de 10 minutes en voiture. L’autoroute A29 est accessible à 2 km. On trouve un tennis, une boulangerie et deux boucheries-charcuteries à quelques minutes de la maison.Son prix de vente est de 242 500 €.Contactez Barbara PELLETER (tél : (Numéro supprimé)) pour toute information sur cette maison ou sur les modalités de vente.
Beuzeville-la-Grenier
TERRAIN ET MAISONVENTE d’une maison de 4 pièces (75 m²) à Beuzeville-la-GrenierMAISON 4 PIÈCES NEUVE – PROCHE DU HAVREEn vente à 13 km de la Manche et à 23 km du Havre, votre agence Les Maisons Extraco Le Havre est heureuse de vous proposer cette maison de 4 pièces de plain-pied de 75 m² à Beuzeville-la-Grenier (76210).Son intérieur compte trois chambres, une cuisine et une salle de bains. Cette maison est neuve.Le terrain de la propriété s’étend sur 549 m².Il y a l’École Élémentaire Lucienne Julien et l’École Maternelle Pierre Julien à moins de 10 minutes à pied. Niveau transports en commun, on trouve quatre gares à moins de 10 minutes en voiture. On trouve un accès à l’autoroute A29 à 2 km. Il y a un tennis, une boulangerie et deux boucheries-charcuteries dans les environs.Elle est proposée à l’achat pour 239 500 €.Contactez Barbara PELLETER ((Numéro supprimé)) pour plus de renseignements sur la maison ou sur les modalités de vente. Donnez vie à vos projets immobiliers avec Les Maisons Extraco Le Havre.
Beuzeville-la-Grenier
TERRAIN ET MAISONVENTE : maison T5 (105 m²) à Beuzeville-la-GrenierPROCHE DU HAVRE – MAISON 5 PIÈCES NEUVEÀ 13 km de la Manche et à 23 km du Havre, nous vous proposons cette maison de 5 pièces de 105 m² et de 571 m² de terrain à vendre à Beuzeville-la-Grenier (76210).Il s’agit d’une maison de 2 niveaux. Son intérieur dispose de quatre chambres, d’une cuisine et de deux salles de bains. Cette maison est neuve.Il y a l’École Élémentaire Lucienne Julien et l’École Maternelle Pierre Julien à moins de 10 minutes à pied. Côté transports en commun, on trouve quatre gares à moins de 10 minutes en voiture. Il y a un accès à l’autoroute A29 à 2 km. Il y a un tennis, une boulangerie et deux boucheries-charcuteries à proximité.Son prix de vente est de 245 500 €.Prenez contact avec notre agence (PELLETER Barbara : (Numéro supprimé)) pour obtenir de plus amples informations sur la maison, sur les modalités de vente ou sur les démarches à suivre.
L’actualité immobilière à Étainhus
27/11/2023
02/11/2023
30/10/2023
20/10/2023
16/10/2023
16/10/2023