Maison à construire à Forges-les-Eaux (76440)
Images
Description
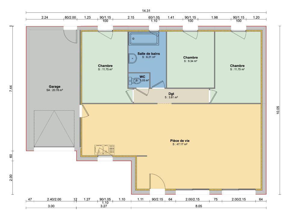
Forges-les-Eaux : maison F5 (90 m²) en vente
MAISON 5 PIÈCES NEUVE
Laissez vous charmer par cette maison de 5 pièces de plain-pied de 90 m² à vendre à Forges-les-Eaux (76440).
Elle dispose de trois chambres, d'une cuisine et d'une salle de bains. La maison est neuve.
Le terrain de la propriété s'étend sur 500 m².
L'École Primaire Privée Sacré-Coeur, l'École Maternelle Marguerite Couturier, l'École Élémentaire Eugène Anne, le Collège Saint-Exupéry et le Lycée Polyvalent Edouard Delamare Deboutteville sont implantés à moins de 10 minutes à pied. Niveau transports, il y a deux gares (Serqueux et Sommery) à moins de 10 minutes en voiture. Les autoroutes A28 et A29 sont accessibles à moins de 15 km. On trouve un tennis, une bibliothèque, deux supermarchés, des commerces, des boulangeries, trois boucheries-charcuteries et une supérette à proximité.
Son prix de vente est de 189 000 €.
Contactez notre agence (Sébastien MASSON : (Numéro supprimé)) pour obtenir de plus amples informations sur cette maison. Maisons Balency Boos est là pour vous accompagner à toutes les étapes de votre projet.
Annonce proposée par un Agent Commercial Partenaire.
Logement susceptibles de vous intéresser
Nous vous proposons de découvrir aussi cette sélection de logements situés à moins de 10km de Forges-les-Eaux et qui seraient susceptibles de vous intéresser.
Beaussault
TERRAINÀ découvrir en exclusivité sur la commune de Beaussault, dans un environnement verdoyant et paisible, ce terrain constructible d’environ 1602 m² offre un beau potentiel pour concrétiser votre projet immobilier.Localisation idéale :Beaussault est une commune rurale avec école, appréciée pour son calme et sa proximité avec Neufchâtel-en-Bray, ville dynamique offrant commerces, services, établissements scolaires et activités culturelles.Gare Sncf de Serqueux à 10 minutes en voiture (ligne Rouen-Amiens)Plage de mers les Bains ou Dieppe à 58 minutes en voitureTerrain non viabilisé – les réseaux passent à proximité (électricité et eau en bordure).libre de constructeur-Certificat d’urbanisme opérationnel positif4 autres terrains disponibles, parfait pour des projets familiaux ou des investisseurs Un cadre idéal pour bâtir la maison de vos rêves, dans un secteur mêlant nature, authenticité et qualité de vie. N’hésitez pas à me contacter pour plus d’informations ou organiser une visite sur place.Les informations sur les risques auxquels ce bien est exposé sont disponibles sur le site Géorisques : www.georisques.gouv.frPrix de vente : 49 000 €Honoraires charge vendeurContactez votre consultant megAgence : Claire FLORIN, Tél. : (Numéro supprimé), E-mail : (Email supprimé) – EI – Agent commercial immatriculé au RSAC de ROUEN sous le numéro 842 715 096
Beaussault
TERRAINÀ seulement 12 minutes de Neufchâtel-en-Bray, megAgence vous propose ce beau terrain constructible de 1686 m2 environ, idéalement situé à proximité du bourg de Beaussault, un charmant village au cœur de la campagne normande.Dans un environnement calme, verdoyant et familial, ce terrain borné offre une belle opportunité pour concrétiser votre projet de construction. Il n’est pas viabilisé, mais les raccordements en eau et électricité sont en bordure de parcelle, facilitant les démarches.A savoir :-Certificat d’urbanisme opérationnel positif-Terrain libre de constructeur-École maternelle dans le village-4 autres terrains disponibles, parfait pour des projets familiaux ou investisseurs-Environnement naturel, idéal pour une vie paisible à la campagneImaginez votre future maison dans ce décor champêtre, à deux pas de la nature, tout en restant proche des commodités de Neufchâtel-en-Bray.Contactez-moi pour plus d’informations ou pour organiser une visite !Les informations sur les risques auxquels ce bien est exposé sont disponibles sur le site Géorisques : www.georisques.gouv.frPrix de vente : 49 000 €Honoraires charge vendeurContactez votre consultant megAgence : Laurent GEORGE, Tél. : (Numéro supprimé), E-mail : (Email supprimé) – EI – Agent commercial immatriculé au RSAC de ROUEN sous le numéro 481 762 490
Beaussault
TERRAINÀ seulement 12 minutes de Neufchâtel-en-Bray, megAgence vous propose ce beau terrain constructible de 1634 m2 environ, idéalement situé à proximité du bourg de Beaussault, un charmant village au cœur de la campagne normande.Dans un environnement calme, verdoyant et familial, ce terrain borné offre une belle opportunité pour concrétiser votre projet de construction. Il n’est pas viabilisé, mais les raccordements en eau et électricité sont en bordure de parcelle, facilitant les démarches.A savoir :-Certificat d’urbanisme opérationnel positif-Terrain libre de constructeur-École maternelle dans le village-4 autres terrains disponibles, parfait pour des projets familiaux ou investisseurs-Environnement naturel, idéal pour une vie paisible à la campagneImaginez votre future maison dans ce décor champêtre, à deux pas de la nature, tout en restant proche des commodités de Neufchâtel-en-Bray.Contactez-moi pour plus d’informations ou pour organiser une visite !Les informations sur les risques auxquels ce bien est exposé sont disponibles sur le site Géorisques : www.georisques.gouv.frPrix de vente : 49 000 €Honoraires charge vendeurContactez votre consultant megAgence : Laurent GEORGE, Tél. : (Numéro supprimé), E-mail : (Email supprimé) – EI – Agent commercial immatriculé au RSAC de ROUEN sous le numéro 481 762 490
Forges-les-Eaux
TERRAINTerrain de 466 m² en vente à Forges-les-EauxÀ Forges-les-Eaux (76440), découvrez ce terrain de 466 m². L’École Primaire Privée Sacré-Coeur, l’École Maternelle Marguerite Couturier, l’École Élémentaire Eugène Anne, le Collège Saint-Exupéry et le Lycée Polyvalent Edouard Delamare Deboutteville sont implantés à moins de 10 minutes à pied. Côté transports en commun, on trouve les gares Serqueux et Sommery à moins de 10 minutes en voiture. Les autoroutes A28 et A29 sont accessibles à moins de 15 km. Il y a un tennis, une bibliothèque, deux supermarchés, des commerces, des boulangeries, un bureau de poste et deux épiceries à quelques minutes à peine.Il est proposé à l’achat pour 49 500 €. Prenez contact avec Natacha LECLERC (tél : (Numéro supprimé)) pour toute question sur ce terrain et sur les modalités de vente.
Forges-les-Eaux
TERRAIN ET MAISONForges-les-Eaux : maison T3 (71 m²) à vendreMAISON 3 PIÈCES NEUVENous sommes heureux de vous présenter cette maison de 3 pièces de 71 m² et de 466 m² de terrain à Forges-les-Eaux (76440). Son intérieur propose deux chambres, une cuisine et une salle de bains.C’est une maison de 2 niveaux. Elle est neuve.On trouve l’École Primaire Privée Sacré-Coeur, l’École Maternelle Marguerite Couturier, l’École Élémentaire Eugène Anne, le Collège Saint-Exupéry et le Lycée Polyvalent Edouard Delamare Deboutteville à moins de 10 minutes à pied. Côté transports, il y a deux gares (Serqueux et Sommery) à moins de 10 minutes en voiture. Les autoroutes A28 et A29 sont accessibles à moins de 15 km. On trouve un tennis, une bibliothèque, deux supermarchés, des commerces, des boulangeries, trois boucheries-charcuteries et deux épiceries dans les environs.Son prix de vente est de 229 600 €.Contactez notre agence (Natacha LECLERC : (Numéro supprimé)) pour tout renseignement sur la maison. Les Maisons Extraco Dieppe est là pour vous accompagner à toutes les étapes de l’achat.
Forges-les-Eaux
TERRAIN ET MAISONMaison T5 (86 m²) à vendre à Forges-les-EauxMAISON 5 PIÈCES NEUVEÀ vendre à Forges-les-Eaux (76440), Les Maisons Extraco Dieppe vous propose cette maison de 5 pièces de 86 m². Elle offre trois chambres, une cuisine et une salle de bains.Le terrain de la propriété est de 466 m².Cette maison compte 2 niveaux. Elle est neuve.L’École Primaire Privée Sacré-Coeur, l’École Maternelle Marguerite Couturier, l’École Élémentaire Eugène Anne, le Collège Saint-Exupéry et le Lycée Polyvalent Edouard Delamare Deboutteville sont implantés à moins de 10 minutes à pied. Côté transports, on trouve deux gares (Serqueux et Sommery) à moins de 10 minutes en voiture. Les autoroutes A28 et A29 sont accessibles à moins de 15 km. Il y a un tennis, une bibliothèque, deux supermarchés, des commerces, des boulangeries, un bureau de poste et deux épiceries à proximité du bien.Elle est à vendre pour la somme de 184 700 €.Contactez Natacha LECLERC (tél : (Numéro supprimé)) pour plus de renseignements sur cette maison.
Forges-les-Eaux
TERRAIN ET MAISONMaison de 3 pièces (65 m²) en vente à Forges-les-EauxMAISON 3 PIÈCES NEUVENous vous proposons cette maison de 3 pièces de plain-pied de 65 m² à vendre à Forges-les-Eaux (76440). Conçue de plain-pied, elle offre deux chambres, une cuisine et une salle de bains.Le terrain de la maison est de 466 m².Cette maison est neuve.Il y a l’École Primaire Privée Sacré-Coeur, l’École Maternelle Marguerite Couturier, l’École Élémentaire Eugène Anne, le Collège Saint-Exupéry et le Lycée Polyvalent Edouard Delamare Deboutteville à moins de 10 minutes à pied. Côté transports en commun, on trouve les gares Serqueux et Sommery à moins de 10 minutes en voiture. Les autoroutes A28 et A29 sont accessibles à moins de 15 km. Il y a un tennis, une bibliothèque, deux supermarchés, des commerces, des boulangeries, deux épiceries et un bureau de poste dans les environs.Elle est à vendre pour la somme de 159 900 €.Contactez notre agence (Natacha LECLERC : (Numéro supprimé)) pour toute question sur la propriété, sur les modalités de vente ou sur les démarches à suivre. Les Maisons Extraco Dieppe vous accompagne dans tous vos projets immobiliers et à toutes les étapes de votre projet.
Forges-les-Eaux
TERRAINVENTE d’un terrain de 500 m² à Forges-les-EauxÀ Forges-les-Eaux (76440), terrain de 500 m². Réalisez-y votre projet immobilier. L’École Primaire Privée Sacré-Coeur, l’École Maternelle Marguerite Couturier, l’École Élémentaire Eugène Anne, le Collège Saint-Exupéry et le Lycée Polyvalent Edouard Delamare Deboutteville sont implantés à moins de 10 minutes à pied. Niveau transports, on trouve deux gares (Serqueux et Sommery) à moins de 10 minutes en voiture. Les autoroutes A28 et A29 sont accessibles à moins de 15 km. Il y a un tennis, une bibliothèque, deux supermarchés, des commerces, des boulangeries, un bureau de poste et trois boucheries-charcuteries à quelques minutes.Il est à vendre pour la somme de 50 000 €. Contactez notre agence (MASSON Sébastien : (Numéro supprimé)) pour tout renseignement sur le terrain. Maisons Balency Boos est là pour vous accompagner dans tous vos projets immobiliers.Annonce proposée par un Agent Commercial Partenaire.
Forges-les-Eaux
TERRAIN ET MAISONForges-les-Eaux : maison T4 (49 m²) en venteMAISON 4 PIÈCES NEUVEMaisons Balency Boos vous présente cette maison de 4 pièces de plain-pied de 50 m² et de 500 m² de terrain à vendre à Forges-les-Eaux (76440).Son intérieur dispose de deux chambres, d’une cuisine et d’une salle de bains. Cette maison est neuve.Il y a l’École Primaire Privée Sacré-Coeur, l’École Maternelle Marguerite Couturier, l’École Élémentaire Eugène Anne, le Collège Saint-Exupéry et le Lycée Polyvalent Edouard Delamare Deboutteville à moins de 10 minutes à pied. Côté transports en commun, on trouve les gares Serqueux et Sommery à moins de 10 minutes en voiture. Les autoroutes A28 et A29 sont accessibles à moins de 15 km. Il y a un tennis, une bibliothèque, deux supermarchés, des commerces, des boulangeries, un bureau de poste et deux épiceries à quelques minutes.Elle est à vendre pour la somme de 155 000 €.Contactez notre agence (MASSON Sébastien : (Numéro supprimé)) pour obtenir de plus amples renseignements sur la maison ou sur les modalités de vente. Faites de vos projets immobiliers une réalité avec Maisons Balency Boos.Annonce proposée par un Agent Commercial Partenaire.
L’actualité immobilière à Forges-les-Eaux
27/11/2023
02/11/2023
30/10/2023
20/10/2023
16/10/2023
16/10/2023