Maison à construire à Frichemesnil (76690)
Images
Description
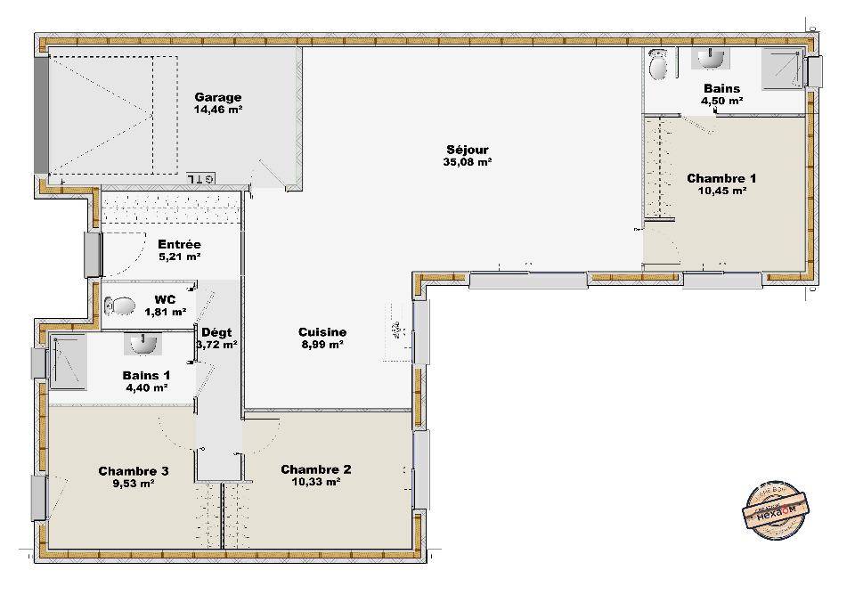
Maison idéalement située à FRICHEMESNIL sur un terrain de 700 m².
À proximité, dans le bourg : école, boulangerie, parc pour enfants, bus vert.
Cette maison contemporaine bénéficie d'un agencement agréable : - Salon/séjour avec cuisine ouverte de 50 m², avec une grande baie coulissante de 2,80 m en alu, - cellier, - 3 chambres avec placards, - suite parentale avec dressing et douche à l'italienne, - salle de bains avec baignoire et douche, - garage de 20m².
Isolation renforcée avec système de chauffage très économique par pompe à chaleur. Maison certifiée RE20. DPE : A / GSE : B.
Venez nous rencontrer et visiter notre showroom : Maisons EXTRACO - 11 Rue Jacques Monod, 76130 Mont-Saint-Aignan
Étude gratuite auprès de votre conseiller : Floriane LEBOUCHER ((Numéro supprimé))
(Premier échange par SMS possible)
Logement susceptibles de vous intéresser
Nous vous proposons de découvrir aussi cette sélection de logements situés à moins de 10km de Frichemesnil et qui seraient susceptibles de vous intéresser.
Critot
TERRAINVENTE d’un terrain de 1 384 m² à CritotIDÉALEMENT SITUÉ – PROCHE DE ROUENÀ 40 km de la Manche et à 22 km de Rouen à Critot (76680), grand terrain. Il donne sur un espace vert et est orienté au sud-ouest. Dans un secteur convoité, ce terrain idéalement situé est proche des écoles et des commerces. On trouve une école maternelle dans le quartier. Niveau transports, il y a trois gares (Montérolier-Buchy, Longuerue-Vieux-Manoir et Morgny-la-Pommeraye) à moins de 10 minutes en voiture. Les autoroutes A28 et A29 sont accessibles à moins de 5 km. On trouve un tennis et une bibliothèque à proximité du bien.Ce terrain est à vendre pour la somme de 65 000 €. Contactez notre agence (Lindsay COLLAY : (Numéro supprimé)) pour toute question sur le terrain ou sur les modalités de vente. Donnez vie à vos projets immobiliers avec Maisons France Confort Sainte-Marie-des-Champs.
Critot
TERRAIN ET MAISONCritot : maison de 5 pièces (85 m²) à construireIDÉALEMENT SITUÉE – MAISON 5 PIÈCES NEUVEÀ 40 km de la Manche et à 22 km de Rouen, venez découvrir cette maison de 5 pièces de plain-pied de 85 m² idéalement située dans Critot (76680).Conçue de plain-pied, elle inclut trois chambres, une cuisine et une salle de bains. La maison est neuve.Le terrain de la propriété s’étend sur 1 384 m².Cette maison se trouve dans un quartier convoité. Une école maternelle y est implantée. Niveau transports en commun, il y a les gares Montérolier-Buchy, Longuerue-Vieux-Manoir et Morgny-la-Pommeraye à moins de 10 minutes en voiture. Les autoroutes A28 et A29 sont accessibles à moins de 5 km. On trouve un tennis et une bibliothèque à quelques minutes.Son prix de vente est de 227 619 €.Contactez Lindsay COLLAY ((Numéro supprimé)) pour plus de renseignements sur la maison, sur les démarches à suivre ou sur les modalités de vente. Faites de vos projets immobiliers une réalité avec Maisons France Confort Sainte-Marie-des-Champs.
Critot
TERRAIN ET MAISONVente d’une maison à construire de 4 pièces (81 m²) à CritotIDÉALEMENT SITUÉE – MAISON 4 PIÈCES NEUVEÀ construire : située à 40 km de la Manche et à quelques kilomètres de Rouen, nous vous proposons cette maison de 4 pièces de plain-pied de 81 m² et de 1 384 m² de terrain idéalement située dans Critot (76680).Son intérieur compte trois chambres, une cuisine et une salle de bains. La maison est neuve.La maison se situe dans un quartier recherché. On y trouve une école maternelle. Niveau transports en commun, il y a trois gares (Montérolier-Buchy, Longuerue-Vieux-Manoir et Morgny-la-Pommeraye) à moins de 10 minutes en voiture. Les autoroutes A28 et A29 sont accessibles à moins de 5 km. On trouve un tennis et une bibliothèque à proximité du logement.Son prix de vente est de 190 478 €.Contactez Lindsay COLLAY (tél : (Numéro supprimé)) pour toute question sur la propriété, sur les démarches à suivre ou sur les modalités de vente. Maisons France Confort Sainte-Marie-des-Champs est là pour vous accompagner à toutes les étapes de votre projet.
Critot
TERRAIN ET MAISONVENTE d’une maison à construireF5 (89 m²) à CritotIDÉALEMENT SITUÉE – MAISON 5 PIÈCES NEUVEEn construire : à 40 km de la Manche et à deux pas de Rouen, Maisons France Confort Sainte-Marie-des-Champs vous propose, idéalement située dans Critot (76680), cette maison de 5 pièces de 89 m². Elle est composée de quatre chambres, d’une cuisine et d’une salle de bains.Le terrain du bien s’étend sur 1 384 m².Cette maison compte 2 niveaux. Elle est neuve.La maison se situe dans un quartier attractif. Une école maternelle y est implantée. Niveau transports, il y a trois gares (Montérolier-Buchy, Longuerue-Vieux-Manoir et Morgny-la-Pommeraye) à moins de 10 minutes en voiture. Les autoroutes A28 et A29 sont accessibles à moins de 5 km. On trouve un tennis et une bibliothèque à quelques minutes de la maison.Elle est à vendre pour la somme de 211 520 €.Contactez Lindsay COLLAY ((Numéro supprimé)) pour obtenir de plus amples renseignements sur la maison. Maisons France Confort Sainte-Marie-des-Champs vous accompagne à toutes les étapes de votre projet et dans tous vos projets immobiliers.
Bosc-le-Hard
TERRAINÀ BOSC-LE-HARD, terrain constructible à acheter.Sur la commune de BOSC-LE-HARD, opportunité à saisir avec ce terrain. Vous pourrez exploiter une surface de 537 m2 pour créer votre future maison. N’hésitez pas à contacter Floriane LEBOUCHER ((Numéro supprimé)) des Maisons EXTRACO Mont-Saint-Aignan si vous avez des questions. Premiers échanges par SMS ou mail possible.LEBOUCHER Floriane(Numéro supprimé)
Frichemesnil
TERRAINÀ FRICHEMESNIL, terrain constructible à acheter.Sur la commune de FRICHEMESNIL, opportunité à saisir avec ce terrain. Vous pourrez exploiter une surface de 700 m2 pour créer votre future maison. N’hésitez pas à contacter Floriane LEBOUCHER ((Numéro supprimé)) des Maisons EXTRACO Mont-Saint-Aignan si vous avez des questions. Premiers échanges par SMS ou mail possible.LEBOUCHER Floriane(Numéro supprimé)
Le Bocasse
TERRAINÀ LE BOCASSE, terrain constructible à acheter.Sur la commune de LE BOCASSE, opportunité à saisir avec ce terrain. Vous pourrez exploiter une surface de 728 m2 pour créer votre future maison. N’hésitez pas à contacter Floriane LEBOUCHER ((Numéro supprimé)) des Maisons EXTRACO Mont-Saint-Aignan si vous avez des questions. Premiers échanges par SMS ou mail possible.LEBOUCHER Floriane(Numéro supprimé)
Bosc-le-Hard
TERRAIN ET MAISONMaison idéalement située à BOSC-LE-HARD sur un terrain de 537 m². À proximité, dans le bourg : école, boulangerie, parc pour enfants, bus vert. Cette maison contemporaine bénéficie d’un agencement agréable : – Salon/séjour avec cuisine ouverte de 50 m², avec une grande baie coulissante de 2,80 m en alu, – cellier, – 3 chambres avec placards, – suite parentale avec dressing et douche à l’italienne, – salle de bains avec baignoire et douche, – garage de 20m². Isolation renforcée avec système de chauffage très économique par pompe à chaleur. Maison certifiée RE20. DPE : A / GSE : B.Venez nous rencontrer et visiter notre showroom : Maisons EXTRACO – 11 Rue Jacques Monod, 76130 Mont-Saint-AignanÉtude gratuite auprès de votre conseiller : Floriane LEBOUCHER ((Numéro supprimé))(Premier échange par SMS possible)
Bosc-le-Hard
TERRAIN ET MAISONMaison idéalement située à BOSC-LE-HARD sur un terrain de 537 m². À proximité, dans le bourg : école, boulangerie, parc pour enfants, bus vert. Cette maison contemporaine bénéficie d’un agencement agréable : – Salon/séjour avec cuisine ouverte de 50 m², avec une grande baie coulissante de 2,80 m en alu, – cellier, – 3 chambres avec placards, – suite parentale avec dressing et douche à l’italienne, – salle de bains avec baignoire et douche, – garage de 20m². Isolation renforcée avec système de chauffage très économique par pompe à chaleur. Maison certifiée RE20. DPE : A / GSE : B.Venez nous rencontrer et visiter notre showroom : Maisons EXTRACO – 11 Rue Jacques Monod, 76130 Mont-Saint-AignanÉtude gratuite auprès de votre conseiller : Floriane LEBOUCHER ((Numéro supprimé))(Premier échange par SMS possible)
L’actualité immobilière à Frichemesnil
27/11/2023
02/11/2023
30/10/2023
20/10/2023
16/10/2023
16/10/2023