Maison à construire à Gouy (76520)
Images
Description
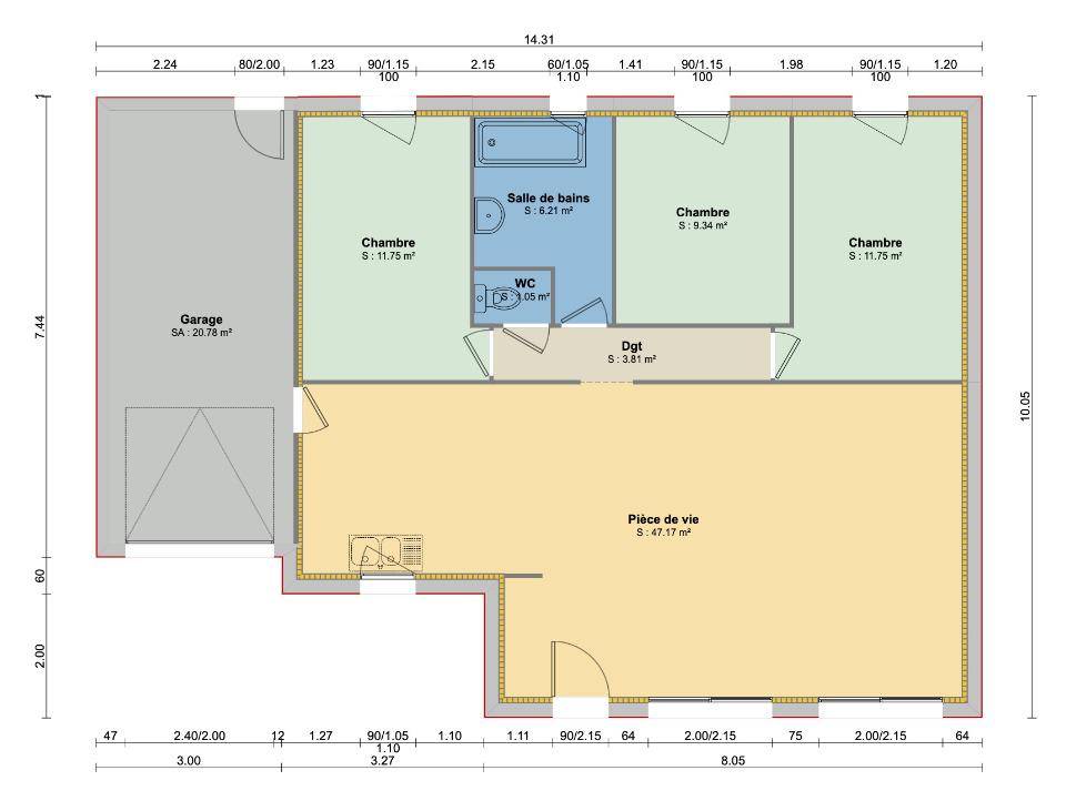
Maison F5 (90 m²) à vendre à Gouy
PROCHE DE ROUEN - MAISON 5 PIÈCES NEUVE
En vente : localisée à deux pas de Rouen, Maisons Balency Boos vous propose cette maison de 5 pièces de plain-pied de 90 m² et de 597 m² de terrain à Gouy (76520).
Elle dispose de trois chambres, d'une cuisine et d'une salle de bains. Cette maison est neuve.
Il y a l'École Primaire Préhistoval à moins de 10 minutes à pied. Niveau transports, on trouve cinq gares à moins de 10 minutes en voiture. Les autoroutes A13 et A139 et les nationales N138, N28 et N338 sont accessibles à moins de 10 km. Il y a une bibliothèque à proximité.
Elle est proposée à l'achat pour 263 000 €.
Prenez contact avec notre agence (Kévin XAVIER ALVES : (Numéro supprimé)) pour obtenir de plus amples renseignements sur la maison. Concrétisez vos projets immobiliers avec Maisons Balency Boos.
Annonce proposée par un Agent Commercial Partenaire.
Logement susceptibles de vous intéresser
Nous vous proposons de découvrir aussi cette sélection de logements situés à moins de 10km de Gouy et qui seraient susceptibles de vous intéresser.
Le Manoir
TERRAINSur la commune du MANOIR, dans un quartier résidentiel, terrain à bâtir prêt à accueillir votre future maison individuelle
Les Damps
TERRAINAccolé à la commune des DAMPS, sur la commune de PONT DE L’ARCHE, dans un quartier uniquement résidentiel, terrain à bâtir prêt à accueillir votre future maison individuelle
Le Manoir
TERRAIN ET MAISONVENTE : maison de 3 pièces (50 m²) au ManoirPROCHE DE ROUEN – MAISON 3 PIÈCES NEUVEEn vente : à deux pas de Rouen, ayez le coup de coeur pour cette maison de 3 pièces de plain-pied de 50 m² au Manoir (27460). Elle comporte deux chambres, une cuisine et une salle de bains.Le terrain de la propriété s’étend sur 454 m².Cette maison est neuve.On trouve l’École Maternelle Yannick Bayart et l’École Élémentaire Albert Becquart à moins de 10 minutes à pied. Niveau transports en commun, il y a six gares à moins de 10 minutes en voiture. Les autoroutes A13 et A154 sont accessibles à moins de 8 km. On trouve une boulangerie, une boucherie-charcuterie et une épicerie à quelques minutes à peine.Elle est à vendre pour la somme de 159 500 €.N’hésitez pas à prendre contact avec Peter MORIN (tél : (Numéro supprimé)) pour toute information sur la maison, sur les démarches à suivre ou sur les modalités de vente. Faites de vos projets immobiliers une réalité avec Les Maisons Extraco Pont-de-l’Arche.
Le Manoir
TERRAIN ET MAISONVENTE d’une maison de 3 pièces (65 m²) au ManoirPROCHE DE ROUEN – MAISON 3 PIÈCES NEUVEÀ vendre : à 15 km de Rouen, nous sommes ravis de vous proposer au Manoir (27460), cette maison de 3 pièces de plain-pied de 65 m². Elle compte deux chambres, une cuisine et une salle de bains.Le terrain de la propriété s’étend sur 454 m².La maison est neuve.Il y a l’École Maternelle Yannick Bayart et l’École Élémentaire Albert Becquart à moins de 10 minutes à pied. Niveau transports en commun, on trouve six gares à moins de 10 minutes en voiture. Les autoroutes A13 et A154 sont accessibles à moins de 8 km. Il y a une boulangerie, une épicerie et une boucherie-charcuterie à proximité.Elle est proposée à l’achat pour 171 100 €.N’hésitez pas à prendre contact avec notre agence (Peter MORIN : (Numéro supprimé)) pour plus d’informations sur cette maison. Donnez vie à vos projets immobiliers avec Les Maisons Extraco Pont-de-l’Arche.
Le Manoir
TERRAIN ET MAISONVENTE : maison T4 (80 m²) au ManoirPROCHE DE ROUEN – MAISON 4 PIÈCES NEUVEEn vente : à deux pas de Rouen, nous sommes heureux de vous proposer au Manoir (27460), cette maison de 4 pièces de plain-pied de 80 m² et de 454 m² de terrain. Son intérieur comporte trois chambres, une cuisine et une salle de bains.Cette maison est neuve.L’École Maternelle Yannick Bayart et l’École Élémentaire Albert Becquart sont implantées à moins de 10 minutes à pied. Niveau transports en commun, on trouve six gares à moins de 10 minutes en voiture. Les autoroutes A13 et A154 sont accessibles à moins de 8 km. Il y a une boulangerie, une boucherie-charcuterie et une épicerie dans les environs.Son prix de vente est de 186 000 €.Contactez notre agence (Peter MORIN : (Numéro supprimé)) pour obtenir de plus amples informations sur la maison ou sur les démarches à suivre.
Les Damps
TERRAIN ET MAISONVENTE : maison de 5 pièces (112 m²) accolée aux DampsPROCHE DE ROUEN – MAISON 5 PIÈCES NEUVEEn vente à quelques kilomètres de Rouen, Les Maisons Extraco Pont-de-l’Arche vous propose cette maison de 5 pièces de 112 m² et de 607 m² de terrain accolée aux Damps (27340).C’est une maison de 2 niveaux. Son intérieur compte quatre chambres, une cuisine et deux salles de bains. Cette maison est neuve.Il y a l’École Primaire Jules Verne à moins de 10 minutes à pied. Niveau transports, on trouve six gares à moins de 10 minutes en voiture. Les autoroutes A13 et A154 sont accessibles à moins de 7 km. Il y a un supermarché à quelques minutes à peine.Elle est proposée à l’achat pour 307 200 €.N’hésitez pas à prendre contact avec Peter MORIN ((Numéro supprimé)) pour toute information sur la maison, sur les démarches à suivre ou sur les modalités de vente. Les Maisons Extraco Pont-de-l’Arche est là pour vous accompagner à toutes les étapes de votre projet.
Les Damps
TERRAIN ET MAISONVENTE d’une maison T5 (137 m²) accolée aux DampsMAISON 5 PIÈCES NEUVE – PROCHE DE ROUENÀ vendre : à quelques kilomètres de Rouen, Les Maisons Extraco Pont-de-l’Arche vous présente cette maison de 5 pièces de 137 m² et de 607 m² de terrain accolée aux Damps (27340). Elle comporte quatre chambres, une cuisine et une salle de bains.C’est une maison de 2 niveaux. Elle est neuve.Il y a l’École Primaire Jules Verne à moins de 10 minutes à pied. Niveau transports en commun, on trouve six gares à moins de 10 minutes en voiture. Les autoroutes A13 et A154 sont accessibles à moins de 7 km. Il y a un supermarché à proximité.Son prix de vente est de 330 800 €.N’hésitez pas à prendre contact avec notre agence (Peter MORIN : (Numéro supprimé)) pour tout renseignement sur cette maison.
Les Damps
TERRAIN ET MAISONaccolée Les Damps : maison F5 (133 m²) à vendreMAISON 5 PIÈCES NEUVE – PROCHE DE ROUENEn vente à quelques kilomètres de Rouen, nous sommes heureux de vous présenter accolée aux Damps (27340), cette maison de 5 pièces de 133 m². Son intérieur est composé de quatre chambres, d’une cuisine et de deux salles de bains.Le terrain de la propriété s’étend sur 607 m².Cette maison possède 2 niveaux. Elle est neuve.L’École Primaire Jules Verne est implantée à moins de 10 minutes à pied. Niveau transports en commun, on trouve six gares à moins de 10 minutes en voiture. Les autoroutes A13 et A154 sont accessibles à moins de 7 km. Il y a un supermarché à proximité.Elle est à vendre pour la somme de 352 000 €.Contactez notre agence (Peter MORIN : (Numéro supprimé)) pour tout renseignement sur cette maison.
Les Damps
TERRAINTerrain de 611 m² à vendre aux DampsIDÉALEMENT SITUÉ – PROCHE DE ROUENÀ deux pas de Rouen aux Damps (27340), grand terrain. Il est prêt à accueillir votre projet de construction pour toute la famille. Dans un secteur recherché, le terrain idéalement situé est proche des commerces et des écoles. L’École Primaire Jules Verne se trouve à moins de 10 minutes à pied. Côté transports, il y a six gares à moins de 10 minutes en voiture. Les autoroutes A13 et A154 sont accessibles à moins de 7 km. On trouve un supermarché à proximité.Son prix de vente est de 85 000 €. N’hésitez pas à prendre contact avec notre agence (THOMAS Julien : (Numéro supprimé)) pour obtenir de plus amples informations sur le terrain. Les Maisons Extraco Pont-de-l’Arche est là pour vous accompagner dans toutes vos démarches.
L’actualité immobilière à Gouy
27/11/2023
02/11/2023
30/10/2023
20/10/2023
16/10/2023
16/10/2023