Maison à construire à Grainville-sur-Ry (76116)
Images
Description
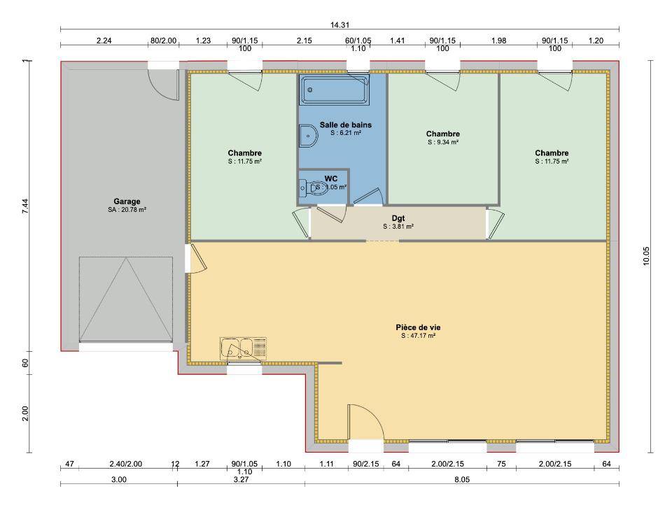
VENTE : maison T5 (90 m²) à Grainville-sur-Ry
MAISON 5 PIÈCES NEUVE - PROCHE DE ROUEN
En vente : à deux pas de Rouen, nous sommes ravis de vous proposer cette maison de 5 pièces de plain-pied de 90 m² et de 500 m² de terrain à Grainville-sur-Ry (76116).
Elle compte trois chambres, une cuisine et une salle de bains. Cette maison est neuve.
Une école élémentaire est implantée dans le quartier. Côté transports, il y a trois gares (Morgny-la-Pommeraye, Longuerue-Vieux-Manoir et Saint-Martin-du-Vivier) à moins de 10 minutes en voiture. Les autoroutes A28, A150 et A29 et les nationales N28 et N338 sont accessibles à moins de 20 km.
Elle est à vendre pour la somme de 192 000 €.
Prenez contact avec Kévin XAVIER ALVES (tél : (Numéro supprimé)) pour obtenir de plus amples renseignements sur le bien. Maisons Balency Boos est là pour vous accompagner dans tous vos projets immobiliers.
Annonce proposée par un Agent Commercial Partenaire.
Logement susceptibles de vous intéresser
Nous vous proposons de découvrir aussi cette sélection de logements situés à moins de 10km de Grainville-sur-Ry et qui seraient susceptibles de vous intéresser.
Perruel
TERRAINVENTE : terrain de 1 480 m² à PerruelPROCHE DE ROUENÀ vendre à quelques kilomètres de Rouen à Perruel (27910), grand terrain. Il est prêt à accueillir votre projet immobilier pour toute la famille. Il y a l’École Élémentaire du Centre à moins de 10 minutes à pied. L’autoroute A28 et la nationale N28 sont accessibles à moins de 18 km.Il est proposé à l’achat pour 51 000 €. Prenez contact avec Kévin XAVIER ALVES ((Numéro supprimé)) pour obtenir de plus amples renseignements sur ce terrain, sur les modalités de vente ou sur les démarches à suivre.Annonce proposée par un Agent Commercial Partenaire.
Montmain
TERRAINTerrain de 1 400 m² en vente à MontmainPROCHE DE ROUENGrand terrain à vendre à deux pas de Rouen. De 1 400 m², ce terrain se situe dans Montmain (76520). Il y a l’École Primaire les Catelaines à moins de 10 minutes à pied. Côté transports en commun, on trouve la gare Saint-Martin-du-Vivier à moins de 10 minutes en voiture. Il y a un accès à la nationale N28 à 9 km. Il y a un tennis, une bibliothèque et deux boulangeries à proximité du bien.Son prix de vente est de 100 000 €. Contactez notre agence (XAVIER ALVES Kévin : (Numéro supprimé)) pour tout renseignement sur ce terrain, sur les démarches à suivre ou sur les modalités de vente. Donnez vie à vos projets immobiliers avec Maisons Balency Boos.Annonce proposée par un Agent Commercial Partenaire.
Perruel
TERRAIN ET MAISONVENTE d’une maison de 5 pièces (120 m²) à PerruelMAISON 5 PIÈCES NEUVE – PROCHE DE ROUENÀ vendre : à deux pas de Rouen, venez découvrir cette maison de 5 pièces de plain-pied de 120 m² à Perruel (27910).Elle est composée de trois chambres, d’une cuisine et de deux salles de bains. Cette maison est neuve.Le terrain du bien s’étend sur 1 480 m².On trouve l’École Élémentaire du Centre à moins de 10 minutes à pied. L’autoroute A28 et la nationale N28 sont accessibles à moins de 18 km.Elle est proposée à l’achat pour 304 500 €.Contactez Kévin XAVIER ALVES ((Numéro supprimé)) pour tout renseignement sur cette maison, sur les démarches à suivre ou sur les modalités de vente. Maisons Balency Boos vous accompagne dans tous vos projets immobiliers et dans toutes vos démarches.Annonce proposée par un Agent Commercial Partenaire.
Perruel
TERRAIN ET MAISONVENTE : maison T5 (90 m²) à PerruelMAISON 5 PIÈCES NEUVE – PROCHE DE ROUENEn vente à quelques kilomètres de Rouen, à Perruel (27910), votre agence Maisons Balency Boos est heureuse de vous proposer cette maison de 5 pièces de plain-pied de 90 m². Elle inclut trois chambres, une cuisine et une salle de bains.Le terrain de la propriété s’étend sur 1 480 m².Cette maison est neuve.L’École Élémentaire du Centre se trouve à moins de 10 minutes à pied. L’autoroute A28 et la nationale N28 sont accessibles à moins de 18 km.Son prix de vente est de 215 000 €.N’hésitez pas à prendre contact avec notre constructeur (XAVIER ALVES Kévin : (Numéro supprimé)) pour obtenir de plus amples informations sur le bien. Donnez vie à vos projets immobiliers avec Maisons Balency Boos.Annonce proposée par un Agent Commercial Partenaire.
Perruel
TERRAIN ET MAISONVENTE : maison T6 (100 m²) à PerruelMAISON 6 PIÈCES NEUVE – PROCHE DE ROUENÀ vendre : à 20 km de Rouen, à Perruel (27910), Maisons Balency Boos vous propose cette maison de 6 pièces de 100 m² et de 1 480 m² de terrain. Son intérieur comporte quatre chambres, une cuisine et deux salles de bains.Cette maison compte 2 niveaux. Elle est neuve.L’École Élémentaire du Centre est implantée à moins de 10 minutes à pied. L’autoroute A28 et la nationale N28 sont accessibles à moins de 18 km.Son prix de vente est de 245 600 €.N’hésitez pas à prendre contact avec Kévin XAVIER ALVES (tél : (Numéro supprimé)) pour toute question sur cette maison ou sur les démarches à suivre.Annonce proposée par un Agent Commercial Partenaire.
Perruel
TERRAIN ET MAISONPerruel : maison T4 (60 m²) à vendrePROCHE DE ROUEN – MAISON 4 PIÈCES NEUVEÀ vendre : localisée à 20 km de Rouen, nous sommes ravis de vous proposer cette maison de 4 pièces de plain-pied de 60 m² et de 1 480 m² de terrain à Perruel (27910). Elle compte deux chambres, une cuisine et une salle de bains.La maison est neuve.L’École Élémentaire du Centre se trouve à moins de 10 minutes à pied. L’autoroute A28 et la nationale N28 sont accessibles à moins de 18 km.Elle est à vendre pour la somme de 159 000 €.Contactez Kévin XAVIER ALVES (tél : (Numéro supprimé)) pour tout renseignement sur le bien. Maisons Balency Boos vous accompagne à toutes les étapes de l’achat et dans tous vos projets immobiliers.Annonce proposée par un Agent Commercial Partenaire.
Perruel
TERRAIN ET MAISONVENTE : maison de 6 pièces (76 m²) à PerruelPROCHE DE ROUEN – MAISON 6 PIÈCES NEUVEÀ vendre : à 20 km de Rouen, découvrez cette maison de 6 pièces de plain-pied de 76 m² et de 1 480 m² de terrain à Perruel (27910). Son intérieur offre trois chambres, une cuisine et une salle de bains.La maison est neuve.L’École Élémentaire du Centre est implantée à moins de 10 minutes à pied. L’autoroute A28 et la nationale N28 sont accessibles à moins de 18 km.Elle est proposée à l’achat pour 178 900 €.Contactez notre agence (Kévin XAVIER ALVES : (Numéro supprimé)) pour toute question sur ce bien, sur les modalités de vente ou sur les démarches à suivre. Faites de vos projets immobiliers une réalité avec Maisons Balency Boos.Annonce proposée par un Agent Commercial Partenaire.
Montmain
TERRAIN ET MAISONMontmain : maison de 5 pièces (90 m²) en ventePROCHE DE ROUEN – MAISON 5 PIÈCES NEUVEÀ vendre : à deux pas de Rouen, à Montmain (76520), nous sommes heureux de vous présenter cette maison de 5 pièces de plain-pied de 90 m².Conçue de plain-pied, elle se divise en trois chambres, une cuisine et une salle de bains. La maison est neuve.Le terrain de la propriété s’étend sur 1 400 m².Il y a l’École Primaire les Catelaines à moins de 10 minutes à pied. Côté transports en commun, on trouve la gare Saint-Martin-du-Vivier à moins de 10 minutes en voiture. On trouve un accès à la nationale N28 à 9 km. Il y a un tennis, une bibliothèque et deux boulangeries à proximité.Son prix de vente est de 254 000 €.Contactez Kévin XAVIER ALVES ((Numéro supprimé)) pour plus de renseignements sur la maison.Annonce proposée par un Agent Commercial Partenaire.
Montmain
TERRAIN ET MAISONVENTE d’une maison de 7 pièces (170 m²) à MontmainMAISON 7 PIÈCES NEUVE – PROCHE DE ROUENÀ vendre à deux pas de Rouen, à Montmain (76520), ayez le coup de coeur pour cette maison de 7 pièces de plain-pied de 170 m². Elle comporte cinq chambres, une cuisine et trois salles de bains.Le terrain du bien s’étend sur 1 400 m².La maison est neuve.L’École Primaire les Catelaines est implantée à moins de 10 minutes à pied. Côté transports, il y a la gare Saint-Martin-du-Vivier à moins de 10 minutes en voiture. La nationale N28 est accessible à 9 km. On trouve un tennis, une bibliothèque et deux boulangeries dans les environs.Elle est proposée à l’achat pour 429 000 €.Prenez contact avec notre agence (Kévin XAVIER ALVES : (Numéro supprimé)) pour toute information sur ce bien, sur les démarches à suivre ou sur les modalités de vente. Faites de vos projets immobiliers une réalité avec Maisons Balency Boos.Annonce proposée par un Agent Commercial Partenaire.
L’actualité immobilière à Grainville-sur-Ry
27/11/2023
02/11/2023
30/10/2023
20/10/2023
16/10/2023
16/10/2023