Maison à construire à Grand-Couronne (76530)
Images
Description
Maison idéalement située à Grand-Couronne sur un terrain de 503 m².
À proximité, dans le bourg : école, boulangerie, parc pour enfants, bus vert.
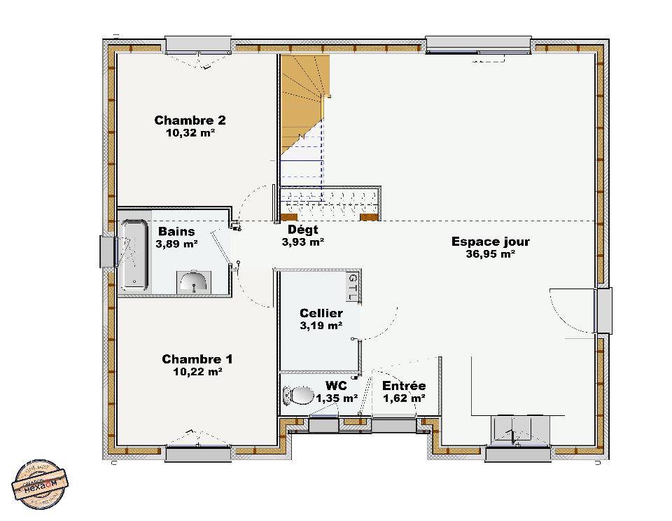
Cette maison contemporaine bénéficie d'un agencement agréable : - Salon/séjour avec cuisine ouverte de 45 m², avec une grande baie coulissante de 2,20 m en alu, - cellier, - 3 chambres avec placards, - suite parentale avec dressing et douche à l'italienne, - salle de bains avec baignoire et douche, - garage de 15 m².
Isolation renforcée avec système de chauffage très économique par pompe à chaleur. Maison certifiée RE20. DPE : A / GSE : B.
Venez nous rencontrer et visiter notre showroom : Maisons Extraco - 3 Rue de la Scierie - 76530 LES ESSARTS
Personnalisée sur les secteurs de votre choix. Étude gratuite auprès de votre conseillère : Justine LEROY ((Numéro supprimé) / j.leroy at extraco.fr).
(Premier échange par SMS possible)
Logement susceptibles de vous intéresser
Nous vous proposons de découvrir aussi cette sélection de logements situés à moins de 10km de Grand-Couronne et qui seraient susceptibles de vous intéresser.
Saint-Pierre-lès-Elbeuf
TERRAINAccolé à la commune de SAINT PIERRE LES ELBEUF, sur la commune de MARTOT, dans un quartier résidentiel, terrain à bâtir prêt à accueillir votre future maison individuelle
Saint-Pierre-lès-Elbeuf
TERRAIN ET MAISONVENTE d’une maison de 4 pièces (71 m²) accolée à Saint-Pierre-lès-ElbeufPROCHE DE ROUEN – MAISON 4 PIÈCES NEUVEEn vente : située à quelques kilomètres de Rouen, nous sommes ravis de vous proposer accolée à Saint-Pierre-lès-Elbeuf (76320), cette maison de 4 pièces de plain-pied de 71 m² et de 605 m² de terrain. Conçue de plain-pied, elle compte trois chambres, une cuisine et une salle de bains.Cette maison est neuve.Le Collège Jacques-Emile Blanche et le Groupe Scolaire Monod-Camus sont implantés à moins de 10 minutes à pied. Niveau transports, il y a quatre gares à moins de 10 minutes en voiture. Les autoroutes A13 et A139 et la nationale N138 sont accessibles à moins de 8 km. On trouve une bibliothèque, des commerces, quatre supermarchés, deux boulangeries, un bureau de poste et une boucherie-charcuterie à quelques minutes de la maison.Elle est à vendre pour la somme de 207 300 €.N’hésitez pas à prendre contact avec notre agence (MORIN Peter : (Numéro supprimé)) pour tout renseignement sur la maison. Faites de vos projets immobiliers une réalité avec Les Maisons Extraco Pont-de-l’Arche.
Saint-Pierre-lès-Elbeuf
TERRAIN ET MAISONMaison T5 (92 m²) en vente accolée à Saint-Pierre-lès-ElbeufPROCHE DE ROUEN – MAISON 5 PIÈCES NEUVEÀ vendre : à deux pas de Rouen, accolée à Saint-Pierre-lès-Elbeuf (76320), nous vous proposons cette maison de 5 pièces de plain-pied de 92 m² et de 605 m² de terrain.Conçue de plain-pied, elle inclut quatre chambres, une cuisine et une salle de bains. Cette maison est neuve.Il y a le Collège Jacques-Emile Blanche et le Groupe Scolaire Monod-Camus à moins de 10 minutes à pied. Niveau transports, on trouve quatre gares à moins de 10 minutes en voiture. Les autoroutes A13 et A139 et la nationale N138 sont accessibles à moins de 8 km. Il y a une bibliothèque, des commerces, quatre supermarchés, deux boulangeries, une boucherie-charcuterie et un bureau de poste à quelques minutes du logement.Elle est à vendre pour la somme de 241 300 €.Contactez notre agence (Peter MORIN : (Numéro supprimé)) pour tout renseignement sur la maison ou sur les modalités de vente. Les Maisons Extraco Pont-de-l’Arche vous accompagne à toutes les étapes de votre projet et dans tous vos projets immobiliers.
Saint-Pierre-lès-Elbeuf
TERRAIN ET MAISONVENTE : maison de 5 pièces (114 m²) accolée à Saint-Pierre-lès-ElbeufPROCHE DE ROUEN – MAISON 5 PIÈCES NEUVEÀ deux pas de Rouen, ayez le coup de coeur pour à vendre accolée à Saint-Pierre-lès-Elbeuf (76320), cette maison de 5 pièces de plain-pied de 114 m² et de 605 m² de terrain.Conçue de plain-pied, elle est composée de quatre chambres, d’une cuisine et d’une salle de bains. Cette maison est neuve.Le Collège Jacques-Emile Blanche et le Groupe Scolaire Monod-Camus se trouvent à moins de 10 minutes à pied. Côté transports en commun, il y a quatre gares à moins de 10 minutes en voiture. Les autoroutes A13 et A139 et la nationale N138 sont accessibles à moins de 8 km. On trouve une bibliothèque, des commerces, quatre supermarchés, deux boulangeries, un bureau de poste et une boucherie-charcuterie à proximité du logement.Son prix de vente est de 248 800 €.N’hésitez pas à prendre contact avec notre agence (MORIN Peter : (Numéro supprimé)) pour toute question sur la maison.
Martot
TERRAINMartot : terrain de 604 m² à vendreEMPLACEMENT PRIVILÉGIÉ – PROCHE DE ROUENEn vente à deux pas de Rouen à Martot (27340), grand terrain. Dans un secteur prisé, ce terrain bénéficiant d’un emplacement d’exception est proche des écoles et des commerces. Une école primaire est implantée dans le quartier. Niveau transports, il y a cinq gares à moins de 10 minutes en voiture. Les autoroutes A13 et A139 et la nationale N138 sont accessibles à moins de 7 km. On trouve un tennis et un commerce dans les environs.Son prix de vente est de 86 000 €. Contactez notre agence (Julien THOMAS : (Numéro supprimé)) pour toute question sur ce terrain.
Saint-Aubin-lès-Elbeuf
TERRAINVENTE : terrain de 903 m² à proximité de Saint-Aubin-lès-ElbeufProche de Rouen – À quelques minutes de Saint-Aubin-lès-Elbeuf (76410) : terrain de 903 m².À proximité : gare (Elbeuf-Saint-Aubin), établissements scolaires, crèche, bibliothèque, boulangeries, commerces, boucheries-charcuteries et bureau de poste. Autoroutes A13 et A139 et nationale N138 accessibles à 6 km.Son prix de vente est de 90 000 €. Contactez notre agence (THOMAS Julien : (Numéro supprimé)) pour toute question sur le terrain. Les Maisons Extraco Pont-de-l’Arche est là pour vous accompagner dans tous vos projets immobiliers.
Tourville-la-Rivière
TERRAINTerrain de 700 m² en vente à proximité de Tourville-la-RivièreEmplacement privilégié – À quelques minutes de Tourville-la-Rivière (76410) : terrain de 700 m².Proche gares, École Primaire les Cygnes, bibliothèque et commerce. Autoroutes A13 et A139 et nationales N138 et N338 à 10 km. Rouen à 12 km.Il est proposé à l’achat pour 102 500 €. Contactez notre agence (Julien THOMAS : (Numéro supprimé)) pour plus de renseignements sur le terrain et sur les démarches à suivre. Donnez vie à vos projets immobiliers avec Les Maisons Extraco Pont-de-l’Arche.
Martot
TERRAIN ET MAISONVENTE : maison T4 (82 m²) à MartotEMPLACEMENT PRIVILÉGIÉ – MAISON 4 PIÈCES NEUVEÀ vendre à 18 km de Rouen, Les Maisons Extraco Pont-de-l’Arche vous propose, bénéficiant d’un emplacement d’exception dans Martot (27340), cette maison de 4 pièces de plain-pied de 82 m² et de 604 m² de terrain.Son intérieur dispose de trois chambres, d’une cuisine et d’une salle de bains. La maison est neuve.Cette maison se trouve dans un quartier prisé. On y trouve une école primaire. Niveau transports, il y a cinq gares à moins de 10 minutes en voiture. Les autoroutes A13 et A139 et la nationale N138 sont accessibles à moins de 7 km. On trouve un tennis et un commerce dans les environs.Son prix de vente est de 210 817 €.Contactez Julien THOMAS ((Numéro supprimé)) pour obtenir de plus amples renseignements sur la maison. Les Maisons Extraco Pont-de-l’Arche vous accompagne dans tous vos projets immobiliers et dans toutes vos démarches.
Martot
TERRAIN ET MAISONVENTE : maison de 4 pièces (85 m²) à MartotEMPLACEMENT PRIVILÉGIÉ – MAISON 4 PIÈCES NEUVEEn vente : située à 18 km de Rouen, nous vous présentons cette maison de 4 pièces de plain-pied de 85 m² bénéficiant d’un emplacement privilégié dans Martot (27340).Conçue de plain-pied, elle propose trois chambres, une cuisine et une salle de bains. Cette maison est neuve.Le terrain du bien s’étend sur 604 m².La maison est située dans un secteur prisé. Une école primaire y est implantée. Niveau transports, il y a cinq gares à moins de 10 minutes en voiture. Les autoroutes A13 et A139 et la nationale N138 sont accessibles à moins de 7 km. On trouve un tennis et un commerce dans les environs.Son prix de vente est de 231 417 €.Contactez notre agence (THOMAS Julien : (Numéro supprimé)) pour plus d’informations sur la maison, sur les modalités de vente ou sur les démarches à suivre.
L’actualité immobilière à Grand-Couronne
27/11/2023
02/11/2023
30/10/2023
20/10/2023
16/10/2023
16/10/2023