Maison à construire à Houppeville (76770)
Images
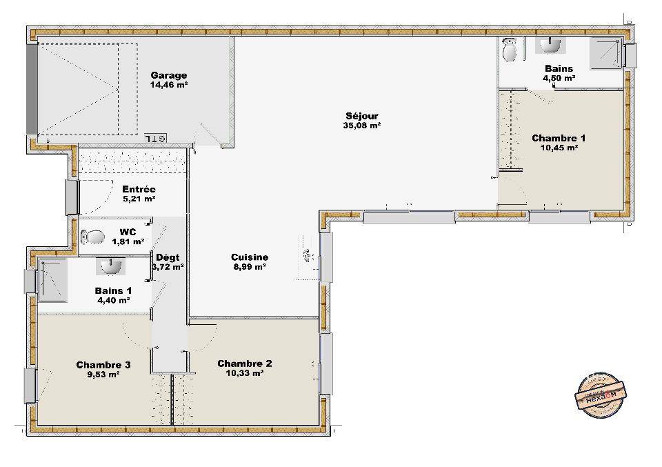
Description
Maison idéalement située à HOUPPEVILLE sur un terrain de 577 m².
À proximité, dans le bourg : école, boulangerie, parc pour enfants, bus vert.
Cette maison contemporaine bénéficie d'un agencement agréable : - Salon/séjour avec cuisine ouverte de 50 m², avec une grande baie coulissante de 2,80 m en alu, - cellier, - 3 chambres avec placards, - suite parentale avec dressing et douche à l'italienne, - salle de bains avec baignoire et douche, - garage de 20m².
Isolation renforcée avec système de chauffage très économique par pompe à chaleur. Maison certifiée RE20. DPE : A / GSE : B.
Venez nous rencontrer et visiter notre showroom : Maisons EXTRACO - 11 Rue Jacques Monod, 76130 Mont-Saint-Aignan
Étude gratuite auprès de votre conseiller : Floriane LEBOUCHER ((Numéro supprimé))
(Premier échange par SMS possible)
Logement susceptibles de vous intéresser
Nous vous proposons de découvrir aussi cette sélection de logements situés à moins de 10km de Houppeville et qui seraient susceptibles de vous intéresser.
Bois-Guillaume
TERRAIN ET MAISONNous vous proposons cette maison neuve, baptisée Barentine City, une demeure qui allie avec brio charme et élégance, s’inspirant de la magnifique architecture du sud de la France. Ce modèle, qui fait partie de nos propositions les plus prisées dans notre gamme traditionnelle, a été spécialement repensé pour s’adapter parfaitement aux exigences des environnements urbains, tout en conservant l’essence et la qualité qui ont fait la renommée de la Barentine originale.La Barentine City, d’une surface de 83 m², est conçue pour maximiser l’espace et la fonctionnalité sur un terrain étroit, sans jamais compromettre le style ou le confort. Elle dispose de trois chambres accueillantes et d’un total de quatre pièces, offrant ainsi un cadre de vie idéal pour une famille ou comme résidence secondaire. Son garage intégré assure une commodité supplémentaire, tandis que la galerie ajoute une touche d’élégance et d’ouverture vers l’extérieur.Parmi les caractéristiques qui distinguent la Barentine City, vous trouverez de série ou en option des menuiseries en aluminium, une terrasse bétonnée et un enduit bi-ton. Ces éléments s’associent harmonieusement pour créer une maison à la fois belle et fonctionnelle.Conscients de l’importance de la durabilité et de l’efficacité énergétique, nous avons conçu la Barentine City pour être une maison basse consommation, pleinement conforme à la réglementation environnementale RE2020. Cela signifie que vous bénéficierez non seulement d’un confort optimal tout au long de l’année, mais aussi d’une réduction significative de vos factures énergétiques.La Barentine City est plus qu’une maison ; c’est un lieu de vie pensé pour ceux qui cherchent à allier le charme traditionnel à des exigences modernes d’efficacité et de respect de l’environnement. Venez découvrir pourquoi ce modèle est tant apprécié et laissez-vous séduire par la possibilité de faire de la Barentine City votre nouveau chez-vous.
Bois-Guillaume
TERRAINDécouvrez ce magnifique terrain à vendre sur la commune prisée de Bois-Guillaume, dans le département de la Seine-Maritime. D’une surface généreuse de 368 m², ce terrain viabilisé offre une opportunité exceptionnelle pour la construction de votre future maison. Niché dans un quartier privilégié, il bénéficie d’une situation idéale, ensoleillée et arborée, garantissant une qualité de vie inégalée. Vous apprécierez la vue dégagée ainsi que le calme qui règne dans ce secteur recherché. Bois-Guillaume est une ville dynamique de Normandie, offrant un cadre de vie agréable à proximité de toutes les commodités nécessaires. Avec ses commerces de proximité, ses écoles et établissements secondaires, ainsi que l’accès facile aux transports en commun, vous serez au cœur de l’effervescence tout en profitant d’un environnement paisible. Les accès routiers à proximité vous permettront de rejoindre rapidement les grands axes et d’explorer la région. Ce terrain représente une opportunité rare, à saisir rapidement pour concrétiser votre projet immobilier. Ne manquez pas cette chance unique d’investir dans un terrain au fort potentiel, idéal pour bâtir la maison de vos rêves. Contactez-nous dès aujourd’hui pour plus d’informations! À noter qu’en tant que constructeur, nous ne sommes pas mandatés pour réaliser la vente de ce terrain.
Bois-Guillaume
TERRAIN ET MAISONNous vous proposons cette maison neuve, baptisée « »Barentine » », un modèle de résidence qui allie élégance et fonctionnalité, conçu pour répondre aux attentes des familles modernes. Avec une surface généreuse de 135 m², cette maison offre un espace de vie confortable et bien pensé, réparti en 4 chambres et 4 pièces principales, idéal pour accueillir une famille désireuse de confort et de bien-être.La Barentine se distingue par son plan en L, optimisant l’espace et offrant une séparation naturelle entre les espaces de vie et l’espace nuit, pour un quotidien harmonieux. La présence d’une tour centrale ajoute un cachet inimitable à l’ensemble, faisant de cette maison un lieu unique où il fait bon vivre.L’intégration d’un garage offre non seulement un espace de stationnement sécurisé mais aussi un espace de rangement supplémentaire, essentiel pour une vie de famille organisée. De plus, la maison dispose d’une deuxième salle de bains, garantissant confort et intimité pour tous les membres de la famille.Conforme à la norme RE2020, la Barentine est une maison basse consommation, conçue avec une attention particulière portée à l’efficacité énergétique et à l’impact environnemental. Ce modèle intègre des options très demandées telles que des menuiseries en aluminium et un système de domotique avancé, offrant ainsi un confort de vie inégalé tout en maîtrisant votre consommation d’énergie.L’extérieur de la maison peut être personnalisé avec un enduit bicolore, ajoutant une touche d’élégance et de personnalité à votre façade. La toiture, disponible en 2 ou 4 pans, complète le design provençal de cette demeure, faisant de la Barentine une maison prestigieuse et attachante qui saura vous séduire.Choisir la Barentine, c’est opter pour une maison neuve, moderne et écologique, prête à accueillir votre famille dans les meilleures conditions. Ne manquez pas l’opportunité de construire la maison de vos rêves, une maison qui allie beauté architecturale, confort de vie et respec
Bois-Guillaume
TERRAINIdéalement situé dans le charmant lotissement de Bois-Guillaume, ce terrain viabilisé de 791 mètres carrés offre une opportunité rare pour concrétiser votre projet de construction de maison. Grâce à ses caractéristiques uniques, cet espace est parfait pour ceux qui souhaitent bâtir une résidence à leur image, tout en bénéficiant d’un cadre de vie agréable et d’un environnement serein. La luminosité naturelle et la vue dégagée ajoutent un attrait indéniable à ce terrain de qualité. Bois-Guillaume, commune prisée de la Seine-Maritime en Normandie, se distingue par sa qualité de vie et son cadre verdoyant. À proximité des commerces et des commodités, vous trouverez également des écoles, un collège et un lycée, ce qui en fait un emplacement idéal pour les familles. Les transports en commun, ainsi que les accès autoroutiers, facilitent les déplacements vers les villes voisines. Le quartier, recherché pour son calme et ses espaces arborés, doit être visité pour apprécier pleinement son potentiel et ses atouts. Ne laissez pas passer cette occasion exceptionnelle d’acquérir un terrain au cœur d’une commune dynamique. Réalisez votre rêve de construction dans un cadre privilégié, à saisir rapidement. À noter qu’en tant que constructeur, nous ne sommes pas mandatés pour réaliser la vente de ce terrain.
Fresquiennes
TERRAINVENTE d’un terrain de 600 m² à FresquiennesIDÉALEMENT SITUÉ – PROCHE DE ROUENÀ vendre à 41 km de la Manche et à 15 km de Rouen à Fresquiennes (76570), grand terrain. Ce terrain, orienté plein sud-ouest, donne sur un espace vert. Dans un secteur convoité, le terrain idéalement situé est proche des commerces et des écoles. On trouve l’École Primaire des Marronniers à moins de 10 minutes à pied. Niveau transports, il y a six gares à moins de 10 minutes en voiture. Les autoroutes A151, A150 et A29 et la nationale N27 sont accessibles à moins de 10 km. On trouve une boulangerie dans les environs.Ce terrain est proposé à l’achat pour 90 000 €. Contactez notre agence (Lindsay COLLAY : (Numéro supprimé)) pour tout renseignement sur le terrain ou sur les modalités de vente. Maisons France Confort Sainte-Marie-des-Champs vous accompagne dans toutes vos démarches et à toutes les étapes de l’achat.
Fresquiennes
TERRAIN ET MAISONMaison de 5 pièces (91 m²) à construire à Fresquiennes DERNIER TERRAIN !!IDÉALEMENT SITUÉE – MAISON 5 PIÈCES NEUVEÀ construire à 41 km de la Manche et à deux pas de Rouen, nous sommes ravis de vous présenter cette maison de 5 pièces de 91 m² et de 600 m² de terrain idéalement située dans Fresquiennes (76570).C’est une maison de 2 niveaux. Elle se divise en quatre chambres, une cuisine et une salle de bains. La maison est neuve.La maison se trouve dans un quartier recherché. L’École Primaire des Marronniers est implantée à moins de 10 minutes à pied. Niveau transports, on trouve six gares à moins de 10 minutes en voiture. Les autoroutes A151, A150 et A29 et la nationale N27 sont accessibles à moins de 10 km. Il y a une boulangerie à proximité du bien.Elle est à vendre pour la somme de 238 777 €.Prenez contact avec notre agence (COLLAY Lindsay : (Numéro supprimé)) pour toute question sur la propriété, sur les modalités de vente ou sur les démarches à suivre.
Fresquiennes
TERRAIN ET MAISONA construire : maison F4 (60 m²) à Fresquiennes SPECIAL INVESTISSEURIDÉALEMENT SITUÉE – MAISON 4 PIÈCES NEUVEEn vente à 41 km de la Manche et à deux pas de Rouen, idéalement située dans Fresquiennes (76570), Maisons France Confort Sainte-Marie-des-Champs vous présente cette maison de 4 pièces de plain-pied de 60 m² et de 600 m² de terrain. Elle comporte deux chambres, une cuisine et une salle de bains.Cette maison est neuve.La maison se situe dans un secteur prisé. Il y a l’École Primaire des Marronniers à moins de 10 minutes à pied. Côté transports, on trouve six gares à moins de 10 minutes en voiture. Les autoroutes A151, A150 et A29 et la nationale N27 sont accessibles à moins de 10 km. Il y a une boulangerie à quelques minutes.Son prix de vente est de 194 315 €.Prenez contact avec Lindsay COLLAY (tél : (Numéro supprimé)) pour tout renseignement sur la maison ou sur les démarches à suivre. Maisons France Confort Sainte-Marie-des-Champs vous accompagne à toutes les étapes de l’achat et dans tous vos projets immobiliers.
Roumare
TERRAINÀ ROUMARE, terrain constructible à acheter.Sur la commune de ROUMARE, opportunité à saisir avec ce terrain. Vous pourrez exploiter une surface de 650 m2 pour créer votre future maison. N’hésitez pas à contacter Alexis RINGOT ((Numéro supprimé)) des Maisons Extraco Les Essarts si vous avez des questions. Premiers échanges par SMS ou mail possible.RINGOT Alexis(Numéro supprimé)a.ringot extraco.fr
Eslettes
TERRAINÀ ESLETTES, terrain constructible à acheter.Sur la commune de ESLETTES, opportunité à saisir avec ce terrain. Vous pourrez exploiter une surface de 600 m2 pour créer votre future maison. N’hésitez pas à contacter Alexis RINGOT ((Numéro supprimé)) Maisons Extraco Les Essarts si vous avez des questions. Premiers échanges par SMS ou mail possible.RINGOT Alexis(Numéro supprimé)a.ringot at extraco.fr
L’actualité immobilière à Houppeville
27/11/2023
02/11/2023
30/10/2023
20/10/2023
16/10/2023
16/10/2023