Maison à construire à Illois (76390)
Images
Description
Illois : maison T4 (75 m²) à vendre
MAISON 4 PIÈCES NEUVE
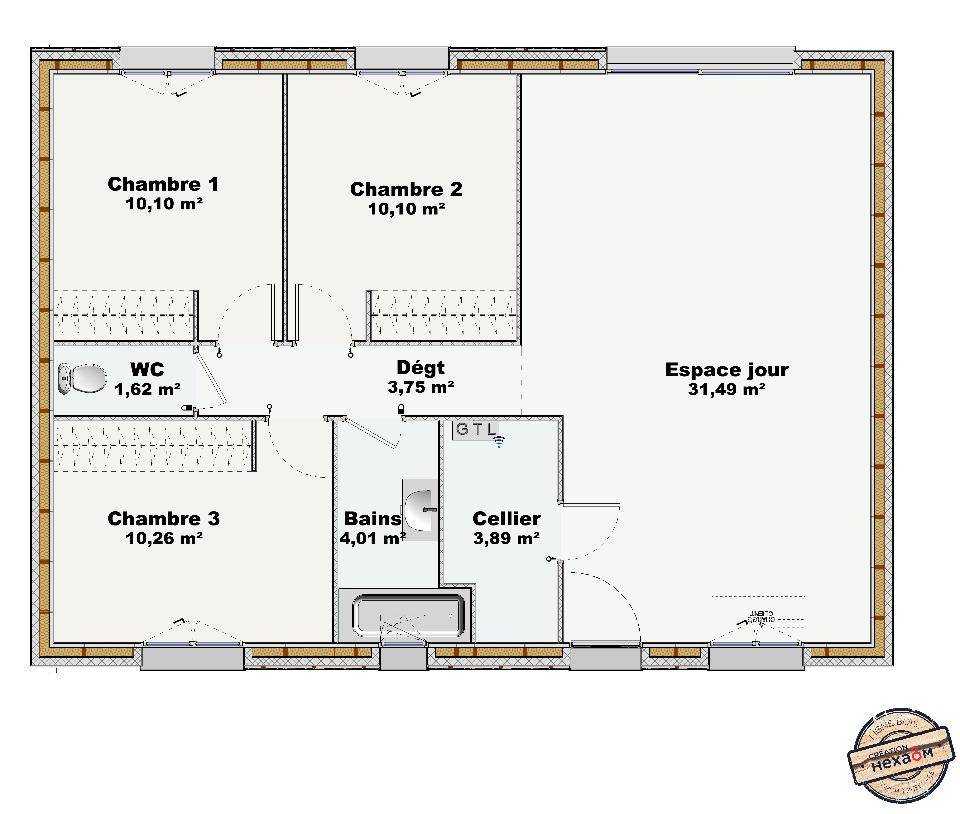
À vendre à 46 km de la Manche, votre agence Les Maisons Extraco Dieppe est heureuse de vous présenter cette maison de 4 pièces de plain-pied de 75 m² et de 861 m² de terrain à Illois (76390). Conçue de plain-pied, elle compte trois chambres, une cuisine et une salle de bains.
Cette maison est neuve.
Il y a une école primaire dans le quartier. Niveau transports, on trouve la gare Aumale à moins de 10 minutes en voiture. On trouve un accès à l'autoroute A29 à 4 km.
Elle est proposée à l'achat pour 186 550 €.
Contactez notre agence (Slimane ELHLOU : (Numéro supprimé)) pour toute question sur la maison, sur les démarches à suivre ou sur les modalités de vente.
Logement susceptibles de vous intéresser
Nous vous proposons de découvrir aussi cette sélection de logements situés à moins de 10km de Illois et qui seraient susceptibles de vous intéresser.
Aumale
TERRAIN ET MAISONAumale : maison de 5 pièces (104 m²) à vendreIDÉALEMENT SITUÉE – MAISON 5 PIÈCES NEUVENous vous proposons cette maison de 5 pièces de plain-pied de 104 m² en vente, idéalement située dans Aumale (76390).Elle offre quatre chambres, une cuisine et deux salles de bains. La maison est neuve.Le terrain de la propriété s’étend sur 682 m².Cette maison est située dans un quartier attractif. Il y a quatre établissements scolaires à moins de 10 minutes à pied et une structure d’accueil pour les enfants en bas âge. Côté transports, on trouve la gare Aumale dans les alentours. Il y a un accès à l’autoroute A29 à 4 km. Il y a une bibliothèque, un bassin de natation, un tennis, des commerces, trois boulangeries, un supermarché, quatre boucheries-charcuteries et quatre épiceries à quelques minutes. Enfin, le marché Place des Marchés a lieu chaque samedi matin.Elle est proposée à l’achat pour 213 200 €.N’hésitez pas à prendre contact avec Slimane ELHLOU (tél : (Numéro supprimé)) pour plus d’informations sur la maison, sur les modalités de vente ou sur les démarches à suivre. Faites de vos projets immobiliers une réalité avec Les Maisons Extraco Dieppe.
Aumale
TERRAIN ET MAISONMaison T5 (92 m²) à vendre à AumaleIDÉALEMENT SITUÉE – MAISON 5 PIÈCES NEUVEÀ vendre : ayez le coup de coeur pour cette maison de 5 pièces de plain-pied de 92 m², idéalement située dans Aumale (76390). Son intérieur propose quatre chambres, une cuisine et une salle de bains.Le terrain de la propriété s’étend sur 682 m².Cette maison est neuve.La maison est située dans un secteur attractif. Quatre établissements scolaires se trouvent à moins de 10 minutes à pied, tout comme une crèche. Côté transports, il y a la gare Aumale dans les alentours. Il y a un accès à l’autoroute A29 à 4 km. On trouve une bibliothèque, un bassin de natation, un tennis, des commerces, trois boulangeries, un supermarché, quatre épiceries et un bureau de poste à proximité. Ne manquez pas le marché Place des Marchés chaque samedi matin.Son prix de vente est de 175 250 €.N’hésitez pas à prendre contact avec Slimane ELHLOU (tél : (Numéro supprimé)) pour plus d’informations sur la maison.
Aumale
TERRAINVENTE : terrain de 682 m² à AumaleIDÉALEMENT SITUÉIdéalement situé dans Aumale (76390), grand terrain. Il donne sur un espace vert. Dans un secteur prisé, le terrain est proche des écoles et des commerces. Il y a quatre établissements scolaires à moins de 10 minutes à pied et une structure d’accueil pour la petite enfance. Côté transports, on trouve la gare Aumale à quelques pas du bien. L’autoroute A29 est accessible à 4 km. Il y a une bibliothèque, un bassin de natation, un tennis, des commerces, trois boulangeries, un supermarché, une poissonnerie et quatre boucheries-charcuteries à proximité. Le marché Place des Marchés a lieu chaque samedi matin.Ce terrain est à vendre pour la somme de 42 400 €. Contactez notre agence (ELHLOU Slimane : (Numéro supprimé)) pour toute information sur le terrain ou sur les démarches à suivre. Les Maisons Extraco Dieppe est là pour vous accompagner à toutes les étapes de l’achat.
Aumale
TERRAIN ET MAISONMaison de 4 pièces (71 m²) en vente à AumaleIDÉALEMENT SITUÉE – MAISON 4 PIÈCES NEUVEEn vente : nous sommes ravis de vous présenter cette maison de 4 pièces de plain-pied de 71 m² idéalement située dans Aumale (76390). Conçue de plain-pied, elle compte deux chambres, une cuisine et une salle de bains.Le terrain du bien est de 682 m².Cette maison est neuve.La maison est située dans un quartier prisé. On trouve quatre établissements scolaires à moins de 10 minutes à pied et une structure d’accueil pour les enfants en bas âge. Niveau transports, il y a la gare Aumale dans les alentours. L’autoroute A29 est accessible à 4 km. On trouve une bibliothèque, un bassin de natation, un tennis, des commerces, trois boulangeries, un supermarché, une poissonnerie et quatre boucheries-charcuteries à quelques minutes à peine. Le marché Place des Marchés a lieu chaque samedi matin.Son prix de vente est de 161 280 €.N’hésitez pas à prendre contact avec notre agence (ELHLOU Slimane : (Numéro supprimé)) pour obtenir de plus amples renseignements sur la propriété, sur les démarches à suivre ou sur les modalités de vente.
Haudricourt
TERRAINTerrain de 1 000 m² à vendre à HaudricourtIDÉALEMENT SITUÉ – VUE PANORAMIQUEÀ Haudricourt (76390), grand terrain. Il est prêt à accueillir votre projet de construction pour toute la famille. Il profite d’une vue panoramique. Il se trouve dans un quartier attractif. On y trouve une école élémentaire. Niveau transports en commun, il y a quatre gares à moins de 10 minutes en voiture. Il y a un accès à l’autoroute A29 à 3 km.Son prix de vente est de 29 000 €. Prenez contact avec notre agence (ELHLOU Slimane : (Numéro supprimé)) pour obtenir de plus amples informations sur ce terrain, sur les modalités de vente et sur les démarches à suivre. Les Maisons Extraco Dieppe vous accompagne dans tous vos projets immobiliers et à toutes les étapes de l’achat.
Haudricourt
TERRAIN ET MAISONVENTE d’une maison de 4 pièces (84 m²) à HaudricourtIDÉALEMENT SITUÉE – MAISON 4 PIÈCES NEUVELes Maisons Extraco Dieppe vous présente à vendre, idéalement située dans Haudricourt (76390), cette maison de 4 pièces de plain-pied de 84 m². Conçue de plain-pied, elle comporte trois chambres, une cuisine et une salle de bains.Le terrain du bien est de 1 000 m².La maison est neuve.Cette maison se trouve dans un secteur recherché. On y trouve une école élémentaire. Niveau transports en commun, il y a quatre gares à moins de 10 minutes en voiture. L’autoroute A29 est accessible à 3 km.Elle est proposée à l’achat pour 187 300 €.Prenez contact avec notre agence (ELHLOU Slimane : (Numéro supprimé)) pour tout renseignement sur la maison, sur les démarches à suivre et sur les modalités de vente.
Haudricourt
TERRAIN ET MAISONVENTE d’une maison F4 (93 m²) à HaudricourtIDÉALEMENT SITUÉE – MAISON 4 PIÈCES NEUVEEn vente idéalement située dans Haudricourt (76390), votre agence Les Maisons Extraco Dieppe est ravie de vous proposer cette maison de 4 pièces de plain-pied de 93 m² et de 1 000 m² de terrain.Elle propose trois chambres, une cuisine et une salle de bains. La maison est neuve.Cette maison se situe dans un quartier recherché. On y trouve une école élémentaire. Niveau transports en commun, on trouve quatre gares à moins de 10 minutes en voiture. L’autoroute A29 est accessible à 3 km.Son prix de vente est de 168 000 €.Contactez notre agence (ELHLOU Slimane : (Numéro supprimé)) pour obtenir de plus amples informations sur la maison ou sur les démarches à suivre. Les Maisons Extraco Dieppe est là pour vous accompagner à toutes les étapes de votre projet.
Haudricourt
TERRAIN ET MAISONMaison T4 (80 m²) à vendre à HaudricourtIDÉALEMENT SITUÉE – MAISON 4 PIÈCES NEUVENotre agence Les Maisons Extraco Dieppe est ravie de vous présenter cette maison de 4 pièces de plain-pied de 80 m² idéalement située dans Haudricourt (76390). Son intérieur compte trois chambres, une cuisine et une salle de bains.Le terrain de cette maison s’étend sur 1 000 m².La maison est neuve.La maison est située dans un secteur prisé. Une école élémentaire y est implantée. Niveau transports en commun, on trouve quatre gares à moins de 10 minutes en voiture. L’autoroute A29 est accessible à 3 km.Elle est proposée à l’achat pour 156 600 €.N’hésitez pas à prendre contact avec Slimane ELHLOU ((Numéro supprimé)) pour plus de renseignements sur la maison ou sur les modalités de vente. Les Maisons Extraco Dieppe est là pour vous accompagner dans toutes vos démarches.
Gaillefontaine
TERRAINGaillefontaine : terrain de 1 053 m² à vendreEMPLACEMENT PRIVILÉGIÉ – VUE PANORAMIQUEBénéficiant d’un emplacement d’exception dans Gaillefontaine (76870), grand terrain. Il profite d’une vue panoramique. Dans un secteur attractif, ce terrain est proche des écoles et des commerces. L’École Primaire les Petit Mots Passants et l’École Élémentaire Lazare Hoche sont implantées à moins de 10 minutes à pied. Niveau transports en commun, on trouve les gares Serqueux et Formerie à moins de 10 minutes en voiture. Les autoroutes A29 et A28 sont accessibles à moins de 15 km. Il y a un tennis, deux boulangeries, un commerce, une boucherie-charcuterie, une supérette et un bureau de poste à quelques minutes de la propriété.Ce terrain est à vendre pour la somme de 31 590 €. Contactez Slimane ELHLOU (tél : (Numéro supprimé)) pour tout renseignement sur le terrain ou sur les modalités de vente. Les Maisons Extraco Dieppe est là pour vous accompagner dans toutes vos démarches.
L’actualité immobilière à Illois
27/11/2023
02/11/2023
30/10/2023
20/10/2023
16/10/2023
16/10/2023