Maison à construire à La Frénaye (76170)
Images
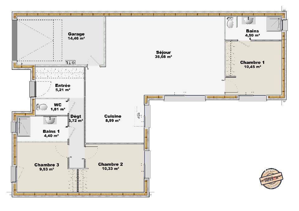
Description
Maison idéalement située à La Frenaye sur un terrain de 707 m².
À proximité, dans le bourg : école, boulangerie, parc pour enfants, bus vert.
Cette maison contemporaine bénéficie d'un agencement agréable : - Salon/séjour avec cuisine ouverte de 45 m², avec une grande baie coulissante de 2,20 m en alu, - cellier, - 3 chambres avec placards, - suite parentale avec dressing et douche à l'italienne, - salle de bains avec baignoire et douche, - garage de 15 m².
Isolation renforcée avec système de chauffage très économique par pompe à chaleur. Maison certifiée RE20. DPE : A / GSE : B.
Venez nous rencontrer et visiter notre showroom : Maisons Extraco - 3 Rue de la Scierie - 76530 LES ESSARTS
Personnalisée sur les secteurs de votre choix. Étude gratuite auprès de votre conseillère : Justine LEROY ((Numéro supprimé) / j.leroy at extraco.fr).
(Premier échange par SMS possible)
Logement susceptibles de vous intéresser
Nous vous proposons de découvrir aussi cette sélection de logements situés à moins de 10km de La Frénaye et qui seraient susceptibles de vous intéresser.
Petiville
TERRAINVENTE : terrain de 670 m² à PetivilleÀ Petiville (76330) à vendre à 11 km de la Manche, donnez vie à votre résidence principale ou secondaire sur ce terrain de 670 m². Il y a l’École Primaire Antoine de Saint-Exupéry à moins de 10 minutes à pied. Les autoroutes A131 et A13 et la nationale N182 sont accessibles à moins de 10 km. On trouve un tennis et une boucherie-charcuterie à proximité.Il est à vendre pour la somme de 59 000 €. N’hésitez pas à prendre contact avec Barbara PELLETER ((Numéro supprimé)) pour toute information sur ce terrain, sur les démarches à suivre et sur les modalités de vente. Les Maisons Extraco Le Havre vous accompagne dans tous vos projets immobiliers et à toutes les étapes de votre projet.
Petiville
TERRAIN ET MAISONVENTE d’une maison T4 (81 m²) à PetivilleMAISON 4 PIÈCES NEUVEÀ vendre : située à 11 km de la Manche, à Petiville (76330), nous vous proposons cette maison de 4 pièces de 81 m² et de 670 m² de terrain.Il s’agit d’une maison de 2 niveaux. Elle compte deux chambres, une cuisine et une salle de bains. La maison est neuve.On trouve l’École Primaire Antoine de Saint-Exupéry à moins de 10 minutes à pied. Les autoroutes A131 et A13 et la nationale N182 sont accessibles à moins de 10 km. Il y a un tennis et une boucherie-charcuterie dans les environs.Elle est proposée à l’achat pour 199 000 €.Contactez Barbara PELLETER (tél : (Numéro supprimé)) pour toute question sur la maison, sur les modalités de vente ou sur les démarches à suivre. Les Maisons Extraco Le Havre vous accompagne à toutes les étapes de l’achat et dans tous vos projets immobiliers.
Petiville
TERRAIN ET MAISONVENTE d’une maison de 5 pièces (100 m²) à PetivilleMAISON 5 PIÈCES NEUVEÀ 11 km de la Manche, à vendre à Petiville (76330), nous vous proposons cette maison de 5 pièces de 100 m² et de 670 m² de terrain.C’est une maison de 2 niveaux. Son intérieur inclut quatre chambres, une cuisine et une salle de bains. Cette maison est neuve.Il y a l’École Primaire Antoine de Saint-Exupéry à moins de 10 minutes à pied. Les autoroutes A131 et A13 et la nationale N182 sont accessibles à moins de 10 km. On trouve un tennis et une boucherie-charcuterie à proximité.Elle est proposée à l’achat pour 239 000 €.Contactez notre agence (Barbara PELLETER : (Numéro supprimé)) pour toute question sur la maison, sur les démarches à suivre ou sur les modalités de vente. Les Maisons Extraco Le Havre vous accompagne dans tous vos projets immobiliers et dans toutes vos démarches.
Petiville
TERRAIN ET MAISONVENTE : maison T5 (86 m²) à PetivilleMAISON 5 PIÈCES NEUVEÀ 11 km de la Manche, Les Maisons Extraco Le Havre vous présente cette maison de 5 pièces de 86 m² à vendre à Petiville (76330). Son intérieur compte trois chambres, une cuisine et une salle de bains.Le terrain de la propriété s’étend sur 670 m².Il s’agit d’une maison de 2 niveaux. Elle est neuve.L’École Primaire Antoine de Saint-Exupéry est implantée à moins de 10 minutes à pied. Les autoroutes A131 et A13 et la nationale N182 sont accessibles à moins de 10 km. On trouve un tennis et une boucherie-charcuterie à proximité du bien.Son prix de vente est de 195 000 €.Contactez Barbara PELLETER (tél : (Numéro supprimé)) pour obtenir de plus amples renseignements sur cette maison, sur les modalités de vente ou sur les démarches à suivre. Les Maisons Extraco Le Havre vous accompagne dans tous vos projets immobiliers et à toutes les étapes de l’achat.
Petiville
TERRAIN ET MAISONVENTE d’une maison de 4 pièces (75 m²) à PetivilleMAISON 4 PIÈCES NEUVEÀ vendre : à 11 km de la Manche, Les Maisons Extraco Le Havre vous présente cette maison de 4 pièces de plain-pied de 75 m² et de 670 m² de terrain à Petiville (76330). Conçue de plain-pied, elle compte trois chambres, une cuisine et une salle de bains.Cette maison est neuve.Il y a l’École Primaire Antoine de Saint-Exupéry à moins de 10 minutes à pied. Les autoroutes A131 et A13 et la nationale N182 sont accessibles à moins de 10 km. On trouve un tennis et une boucherie-charcuterie à quelques minutes du logement.Son prix de vente est de 192 000 €.N’hésitez pas à prendre contact avec Barbara PELLETER (tél : (Numéro supprimé)) pour obtenir de plus amples renseignements sur cette maison, sur les démarches à suivre ou sur les modalités de vente. Les Maisons Extraco Le Havre est là pour vous accompagner dans tous vos projets immobiliers.
Petiville
TERRAINTerrain de 649 m² à vendre à PetivilleEn vente à 11 km de la Manche à Petiville (76330), grand terrain. Il est prêt à accueillir votre résidence principale ou secondaire pour toute la famille. L’École Primaire Antoine de Saint-Exupéry est implantée à moins de 10 minutes à pied. Les autoroutes A131 et A13 et la nationale N182 sont accessibles à moins de 10 km. Il y a un tennis et une boucherie-charcuterie dans les environs.Il est proposé à l’achat pour 63 500 €. N’hésitez pas à prendre contact avec notre agence (PELLETER Barbara : (Numéro supprimé)) pour tout renseignement sur ce terrain.
Petiville
TERRAINVENTE : terrain de 722 m² à PetivilleÀ Petiville (76330) à 11 km de la Manche, projetez la maison de vos rêves sur ce terrain de 722 m². Il y a l’École Primaire Antoine de Saint-Exupéry à moins de 10 minutes à pied. Les autoroutes A131 et A13 et la nationale N182 sont accessibles à moins de 10 km. On trouve un tennis et une boucherie-charcuterie dans les environs.Il est proposé à l’achat pour 67 500 €. Prenez contact avec notre agence (PELLETER Barbara : (Numéro supprimé)) pour tout renseignement sur le terrain.
Petiville
TERRAIN ET MAISONVENTE : maison F4 (93 m²) à PetivilleMAISON 4 PIÈCES NEUVEÀ 11 km de la Manche, à vendre à Petiville (76330), notre agence Les Maisons Extraco Le Havre est heureuse de vous proposer cette maison de 4 pièces de plain-pied de 93 m² et de 649 m² de terrain.Son intérieur propose trois chambres, une cuisine et une salle de bains. La maison est neuve.On trouve l’École Primaire Antoine de Saint-Exupéry à moins de 10 minutes à pied. Les autoroutes A131 et A13 et la nationale N182 sont accessibles à moins de 10 km. Il y a un tennis et une boucherie-charcuterie à proximité du bien.Elle est à vendre pour la somme de 222 500 €.N’hésitez pas à prendre contact avec notre agence (PELLETER Barbara : (Numéro supprimé)) pour tout renseignement sur cette maison. Les Maisons Extraco Le Havre vous accompagne dans tous vos projets immobiliers et dans toutes vos démarches.
Petiville
TERRAIN ET MAISONPetiville : maison de 4 pièces (82 m²) à vendreMAISON 4 PIÈCES NEUVEÀ vendre : à 11 km de la Manche, votre agence Les Maisons Extraco Le Havre est ravie de vous présenter à Petiville (76330), cette maison de 4 pièces de plain-pied de 82 m².Elle propose trois chambres, une cuisine et une salle de bains. Cette maison est neuve.Le terrain de la propriété est de 649 m².Il y a l’École Primaire Antoine de Saint-Exupéry à moins de 10 minutes à pied. Les autoroutes A131 et A13 et la nationale N182 sont accessibles à moins de 10 km. On trouve un tennis et une boucherie-charcuterie dans les environs.Son prix de vente est de 205 000 €.Contactez notre constructeur (PELLETER Barbara : (Numéro supprimé)) pour toute question sur cette maison ou sur les modalités de vente.
L’actualité immobilière à La Frénaye
27/11/2023
02/11/2023
30/10/2023
20/10/2023
16/10/2023
16/10/2023