Maison à construire à La Londe (76500)
Images
Description
VENTE : maison de 5 pièces (80 m²) à La Londe
PROCHE DE ROUEN - MAISON 5 PIÈCES NEUVE
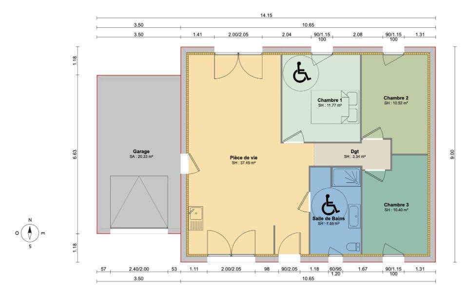
À deux pas de Rouen, en vente à La Londe (76500), découvrez cette maison de 5 pièces de plain-pied de 80 m². Elle inclut trois chambres, une cuisine et une salle de bains.
Le terrain de la propriété est de 840 m².
Cette maison est neuve.
Tous les types d'écoles (maternelle, élémentaire et secondaire) sont implantés à moins de 10 minutes en voiture, tout comme quatre structures d'accueil pour les tout-petits à moins de 10 minutes à pied. Niveau transports, on trouve les gares Elbeuf-Saint-Aubin, Tourville-la-Rivière et Oissel à moins de 10 minutes en voiture. Les autoroutes A13 et A139 et la nationale N138 sont accessibles à moins de 6 km. Il y a des tennis, des bibliothèques, des bassins de natation, des boulangeries, des commerces, des supermarchés, trois poissonneries et des boucheries-charcuteries à proximité du logement. 3 marchés animent le quartier.
Elle est proposée à l'achat pour 189 000 €.
Contactez notre agence (XAVIER ALVES Kévin : (Numéro supprimé)) pour plus de renseignements sur le bien ou sur les modalités de vente. Maisons Balency Boos vous accompagne dans tous vos projets immobiliers et dans toutes vos démarches.
Annonce proposée par un Agent Commercial Partenaire.
Logement susceptibles de vous intéresser
Nous vous proposons de découvrir aussi cette sélection de logements situés à moins de 10km de La Londe et qui seraient susceptibles de vous intéresser.
Bosroumois
TERRAINTerrain de 705 m² en vente à BosroumoisPROCHE DE ROUENÀ vendre à quelques kilomètres de Rouen à Bosroumois (27670), grand terrain. L’École Élémentaire René Bellanger et l’École Maternelle le Petit Prince sont implantées à moins de 10 minutes à pied. Niveau transports, on trouve deux gares (Elbeuf-Saint-Aubin et Bourgtheroulde-Thuit-Hébert) à moins de 10 minutes en voiture. Les autoroutes A13 et A139 et la nationale N138 sont accessibles à moins de 10 km. Il y a un tennis, une bibliothèque, deux commerces, une boulangerie, un bureau de poste, une supérette et une boucherie-charcuterie à proximité.Il est à vendre pour la somme de 60 000 €. Contactez notre agence (Kévin XAVIER ALVES : (Numéro supprimé)) pour toute information sur ce terrain. Donnez vie à vos projets immobiliers avec Maisons Balency Boos.Annonce proposée par un Agent Commercial Partenaire.
La Londe
TERRAINLa Londe : terrain de 840 m² à vendrePROCHE DE ROUENÀ La Londe (76500) en vente à deux pas de Rouen, imaginez la maison de vos rêves sur ce terrain de 840 m². Des écoles de tous niveaux (de la maternelle au lycée) sont implantées à moins de 10 minutes en voiture, tout comme quatre crèches à moins de 10 minutes à pied. Niveau transports en commun, il y a trois gares (Elbeuf-Saint-Aubin, Tourville-la-Rivière et Oissel) à moins de 10 minutes en voiture. Les autoroutes A13 et A139 et la nationale N138 sont accessibles à moins de 6 km. On trouve des tennis, des bibliothèques, des bassins de natation, des boulangeries, des commerces, des supermarchés, des bureaux de poste et des boucheries-charcuteries dans les environs. Enfin, 3 marchés animent le quartier.Il est à vendre pour la somme de 69 000 €. Prenez contact avec Kévin XAVIER ALVES ((Numéro supprimé)) pour toute information sur le terrain ou sur les modalités de vente. Maisons Balency Boos est là pour vous accompagner à toutes les étapes de votre projet.Annonce proposée par un Agent Commercial Partenaire.
Saint-Ouen-du-Tilleul
TERRAINVENTE : terrain de 821 m² à Saint-Ouen-du-TilleulPROCHE DE ROUENÀ Saint-Ouen-du-Tilleul (27670) en vente à quelques kilomètres de Rouen, donnez vie à votre résidence principale ou secondaire sur ce terrain de 821 m². L’École Élémentaire René Bellanger et l’École Maternelle le Petit Prince sont implantées à moins de 10 minutes à pied. Niveau transports, il y a les gares Elbeuf-Saint-Aubin et Bourgtheroulde-Thuit-Hébert à moins de 10 minutes en voiture. Les autoroutes A13 et A139 et la nationale N138 sont accessibles à moins de 10 km. On trouve un tennis, une bibliothèque, deux commerces, une boulangerie, un bureau de poste, une boucherie-charcuterie et une supérette dans les environs.Son prix de vente est de 840 000 €. Contactez Kévin XAVIER ALVES (tél : (Numéro supprimé)) pour toute question sur ce terrain, sur les démarches à suivre et sur les modalités de vente. Maisons Balency Boos est là pour vous accompagner à toutes les étapes de l’achat.Annonce proposée par un Agent Commercial Partenaire.
Bosroumois
TERRAIN ET MAISONMaison de 5 pièces (90 m²) en vente à BosroumoisMAISON 5 PIÈCES NEUVE – PROCHE DE ROUENÀ vendre : située à deux pas de Rouen, Maisons Balency Boos vous propose cette maison de 5 pièces de plain-pied de 90 m² à Bosroumois (27670).Conçue de plain-pied, elle offre trois chambres, une cuisine et une salle de bains. Cette maison est neuve.Le terrain de la propriété est de 705 m².Il y a l’École Élémentaire René Bellanger et l’École Maternelle le Petit Prince à moins de 10 minutes à pied. Côté transports, on trouve les gares Elbeuf-Saint-Aubin et Bourgtheroulde-Thuit-Hébert à moins de 10 minutes en voiture. Les autoroutes A13 et A139 et la nationale N138 sont accessibles à moins de 10 km. Il y a un tennis, une bibliothèque, deux commerces, une boulangerie, une boucherie-charcuterie, une supérette et un bureau de poste à proximité de la maison.Son prix de vente est de 205 000 €.Contactez Kévin XAVIER ALVES (tél : (Numéro supprimé)) pour toute information sur cette maison, sur les modalités de vente ou sur les démarches à suivre. Maisons Balency Boos vous accompagne à toutes les étapes de l’achat et dans tous vos projets immobiliers.Annonce proposée par un Agent Commercial Partenaire.
Bosroumois
TERRAIN ET MAISONVENTE d’une maison F6 (76 m²) à BosroumoisPROCHE DE ROUEN – MAISON 6 PIÈCES NEUVEÀ quelques kilomètres de Rouen, à vendre à Bosroumois (27670), venez découvrir cette maison de 6 pièces de plain-pied de 76 m².Son intérieur se divise en trois chambres, une cuisine et une salle de bains. La maison est neuve.Le terrain de la propriété est de 705 m².Il y a l’École Élémentaire René Bellanger et l’École Maternelle le Petit Prince à moins de 10 minutes à pied. Niveau transports en commun, on trouve deux gares (Elbeuf-Saint-Aubin et Bourgtheroulde-Thuit-Hébert) à moins de 10 minutes en voiture. Les autoroutes A13 et A139 et la nationale N138 sont accessibles à moins de 10 km. Il y a un tennis, une bibliothèque, deux commerces, une boulangerie, une supérette, un bureau de poste et une boucherie-charcuterie à quelques minutes.Son prix de vente est de 189 000 €.Prenez contact avec Kévin XAVIER ALVES ((Numéro supprimé)) pour toute information sur cette maison ou sur les modalités de vente.Annonce proposée par un Agent Commercial Partenaire.
Bosroumois
TERRAIN ET MAISONVENTE : maison T4 (60 m²) à BosroumoisMAISON 4 PIÈCES NEUVE – PROCHE DE ROUENEn vente à quelques kilomètres de Rouen, laissez vous charmer par cette maison de 4 pièces de plain-pied de 60 m² et de 705 m² de terrain à Bosroumois (27670).Son intérieur comporte deux chambres, une cuisine et une salle de bains. Cette maison est neuve.L’École Élémentaire René Bellanger et l’École Maternelle le Petit Prince sont implantées à moins de 10 minutes à pied. Niveau transports en commun, il y a les gares Elbeuf-Saint-Aubin et Bourgtheroulde-Thuit-Hébert à moins de 10 minutes en voiture. Les autoroutes A13 et A139 et la nationale N138 sont accessibles à moins de 10 km. On trouve un tennis, une bibliothèque, deux commerces, une boulangerie, une supérette, un bureau de poste et une boucherie-charcuterie à proximité.Elle est à vendre pour la somme de 167 000 €.Contactez notre agence (XAVIER ALVES Kévin : (Numéro supprimé)) pour obtenir de plus amples informations sur la maison, sur les modalités de vente ou sur les démarches à suivre.Annonce proposée par un Agent Commercial Partenaire.
Bosroumois
TERRAIN ET MAISONMaison F6 (117 m²) en vente à BosroumoisMAISON 6 PIÈCES NEUVE – PROCHE DE ROUENÀ vendre : située à quelques kilomètres de Rouen, nous vous présentons cette maison de 6 pièces de plain-pied de 117 m² à Bosroumois (27670).Son intérieur est composé de quatre chambres, d’une cuisine et de deux salles de bains. Cette maison est neuve.Le terrain du bien s’étend sur 705 m².L’École Élémentaire René Bellanger et l’École Maternelle le Petit Prince sont implantées à moins de 10 minutes à pied. Côté transports, il y a deux gares (Elbeuf-Saint-Aubin et Bourgtheroulde-Thuit-Hébert) à moins de 10 minutes en voiture. Les autoroutes A13 et A139 et la nationale N138 sont accessibles à moins de 10 km. On trouve un tennis, une bibliothèque, deux commerces, une boulangerie, une supérette, une boucherie-charcuterie et un bureau de poste dans les environs.Son prix de vente est de 266 000 €.Contactez notre agence (XAVIER ALVES Kévin : (Numéro supprimé)) pour plus de renseignements sur le bien, sur les démarches à suivre ou sur les modalités de vente.Annonce proposée par un Agent Commercial Partenaire.
La Londe
TERRAIN ET MAISONVENTE : maison T6 (100 m²) à La LondeMAISON 6 PIÈCES NEUVE – PROCHE DE ROUENEn vente à deux pas de Rouen, à La Londe (76500), Maisons Balency Boos vous propose cette maison de 6 pièces de 100 m² et de 840 m² de terrain.C’est une maison de 2 niveaux. Elle propose quatre chambres, une cuisine et deux salles de bains. La maison est neuve.Il y a des écoles (de la maternelle au lycée) à moins de 10 minutes en voiture, tout comme quatre structures d’accueil pour les enfants en bas âge à moins de 10 minutes à pied. Côté transports en commun, on trouve trois gares (Elbeuf-Saint-Aubin, Tourville-la-Rivière et Oissel) à moins de 10 minutes en voiture. Les autoroutes A13 et A139 et la nationale N138 sont accessibles à moins de 6 km. Il y a des tennis, des bibliothèques, des bassins de natation, des boulangeries, des commerces, des supermarchés, des supérettes et des bureaux de poste à quelques minutes. Enfin, 3 marchés animent les environs.Elle est à vendre pour la somme de 269 000 €.Prenez contact avec Kévin XAVIER ALVES (tél : (Numéro supprimé)) pour obtenir de plus amples informations sur cette maison ou sur les modalités de vente.Annonce proposée par un Agent Commercial Partenaire.
La Londe
TERRAIN ET MAISONVENTE : maison de 5 pièces (80 m²) à La LondePROCHE DE ROUEN – MAISON 5 PIÈCES NEUVEÀ deux pas de Rouen, en vente à La Londe (76500), découvrez cette maison de 5 pièces de plain-pied de 80 m². Elle inclut trois chambres, une cuisine et une salle de bains.Le terrain de la propriété est de 840 m².Cette maison est neuve.Tous les types d’écoles (maternelle, élémentaire et secondaire) sont implantés à moins de 10 minutes en voiture, tout comme quatre structures d’accueil pour les tout-petits à moins de 10 minutes à pied. Niveau transports, on trouve les gares Elbeuf-Saint-Aubin, Tourville-la-Rivière et Oissel à moins de 10 minutes en voiture. Les autoroutes A13 et A139 et la nationale N138 sont accessibles à moins de 6 km. Il y a des tennis, des bibliothèques, des bassins de natation, des boulangeries, des commerces, des supermarchés, trois poissonneries et des boucheries-charcuteries à proximité du logement. 3 marchés animent le quartier.Elle est proposée à l’achat pour 189 000 €.Contactez notre agence (XAVIER ALVES Kévin : (Numéro supprimé)) pour plus de renseignements sur le bien ou sur les modalités de vente. Maisons Balency Boos vous accompagne dans tous vos projets immobiliers et dans toutes vos démarches.Annonce proposée par un Agent Commercial Partenaire.
L’actualité immobilière à La Londe
27/11/2023
02/11/2023
30/10/2023
20/10/2023
16/10/2023
16/10/2023