Maison à construire à Le Bois-Robert (76590)
Images
Description
Le Bois-Robert : maison de 6 pièces (76 m²) en vente
PROCHE DE DIEPPE - MAISON 6 PIÈCES NEUVE
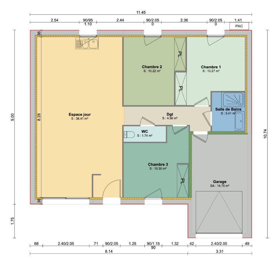
À 13 km de la Manche et à quelques kilomètres de Dieppe, Maisons Balency Boos vous propose à vendre au Bois-Robert (76590), cette maison de 6 pièces de plain-pied de 76 m² et de 1 000 m² de terrain.
Elle propose trois chambres, une cuisine et une salle de bains. La maison est neuve.
Niveau transports en commun, il y a les gares Longueville-sur-Scie et Saint-Aubin-sur-Scie à moins de 10 minutes en voiture. La nationale N27 est accessible à 6 km. On trouve une bibliothèque à proximité de la maison.
Elle est proposée à l'achat pour 189 000 €.
N'hésitez pas à prendre contact avec Sébastien MASSON (tél : (Numéro supprimé)) pour tout renseignement sur cette maison. Maisons Balency Boos est là pour vous accompagner dans tous vos projets immobiliers.
Annonce proposée par un Agent Commercial Partenaire.
Logement susceptibles de vous intéresser
Nous vous proposons de découvrir aussi cette sélection de logements situés à moins de 10km de Le Bois-Robert et qui seraient susceptibles de vous intéresser.
Rouxmesnil-Bouteilles
TERRAIN ET MAISONVENTE d’une maison de 4 pièces (92 m²) à Rouxmesnil-BouteillesIDÉALEMENT SITUÉE – MAISON 4 PIÈCES NEUVE A CONSTRUIREEn vente à 3 km de la Manche et à deux pas de Dieppe, idéalement située dans Rouxmesnil-Bouteilles (76370), notre agence Maisons France Confort Sainte-Marie-des-Champs est heureuse de vous présenter cette maison de 4 pièces de plain-pied de 92 m².Conçue de plain-pied, elle est composée de trois chambres, d’une cuisine et d’une salle de bains. La maison est neuve.Le terrain de la propriété est de 275 m².La maison se situe dans un secteur prisé. L’École Primaire le Vallon-les Farfadets la Salicorne se trouve à moins de 10 minutes à pied, tout comme deux crèches. Côté transports, il y a les gares Dieppe et Saint-Aubin-sur-Scie à moins de 10 minutes en voiture. La nationale N27 est accessible à 9 km. On trouve un tennis, sept commerces, une boulangerie et une épicerie dans les environs.Elle est proposée à l’achat pour 214 901 €.Contactez Noemie DEMEILLERS (tél : (Numéro supprimé)) pour obtenir de plus amples renseignements sur la maison ou sur les modalités de vente.
Manéhouville
TERRAINTerrain de 2.800 m² pour locaux à usage professionnel à 5 mn de l’axe Rouen Dieppe,Viabilisation non faite, réseaux disponible à proximité.
Saint-Vaast-d'Équiqueville
TERRAIN ET MAISONVENTE d’une maison de 4 pièces (81 m²) à Saint-Vaast-d’ÉquiquevilleMAISON 4 PIÈCES NEUVE – PROCHE DE DIEPPEÀ vendre à 18 km de la Manche et à deux pas de Dieppe, Les Maisons Extraco Dieppe vous propose à Saint-Vaast-d’Équiqueville (76510), cette maison de 4 pièces de 81 m² et de 850 m² de terrain.C’est une maison de 2 niveaux. Son intérieur inclut deux chambres, une cuisine et une salle de bains. Cette maison est neuve.L’École Primaire la Courte Echelle est implantée à moins de 10 minutes à pied. Les autoroutes A28 et A29 et la nationale N27 sont accessibles à moins de 18 km. Il y a une épicerie dans les environs.Il est proposé à l’achat pour 178 500 €.N’hésitez pas à prendre contact avec notre agence (Natacha LECLERC : (Numéro supprimé)) pour obtenir de plus amples renseignements sur cette maison, sur les démarches à suivre ou sur les modalités de vente. Les Maisons Extraco Dieppe est là pour vous accompagner à toutes les étapes de l’achat.
Saint-Nicolas-d'Aliermont
TERRAIN ET MAISONMaison F3 (50 m²) à vendre à Saint-Nicolas-d’AliermontMAISON 3 PIÈCES NEUVE – PROCHE DE DIEPPEÀ 10 km de la Manche et à 12 km de Dieppe, laissez vous charmer par cette maison de 3 pièces de plain-pied de 50 m² en vente à Saint-Nicolas-d’Aliermont (76510). Son intérieur dispose de deux chambres, d’une cuisine et d’une salle de bains.Le terrain du bien est de 606 m².Cette maison est neuve.Il y a l’École Maternelle Jacques de Thevray, le Collège Claude Monet et l’École Élémentaire Jean Rostand à moins de 10 minutes à pied. La nationale N27 est accessible à 13 km. On trouve un tennis, des commerces, deux boulangeries, un bureau de poste, trois boucheries-charcuteries et deux épiceries dans les environs.Elle est proposée à l’achat pour 157 500 €.N’hésitez pas à prendre contact avec Natacha LECLERC (tél : (Numéro supprimé)) pour plus d’informations sur ce bien ou sur les modalités de vente.
Torcy-le-Grand
TERRAINVENTE : terrain de 611 m² à Torcy-le-GrandPROCHE DE DIEPPEGrand terrain à vendre à 18 km de la Manche et à 16 km de Dieppe. De 611 m², ce terrain se situe dans Torcy-le-Grand (76590). On trouve une école primaire dans le quartier. Côté transports, il y a la gare Longueville-sur-Scie à moins de 10 minutes en voiture. On trouve un accès à la nationale N27 à 9 km. On trouve un tennis, une bibliothèque, une boulangerie et une épicerie dans les environs.Il est à vendre pour la somme de 59 000 €. Prenez contact avec notre agence (Natacha LECLERC : (Numéro supprimé)) pour toute information sur ce terrain ou sur les modalités de vente. Concrétisez vos projets immobiliers avec Les Maisons Extraco Dieppe.
Freulleville
TERRAIN ET MAISONVENTE d’une maison de 3 pièces (65 m²) à FreullevilleMAISON 3 PIÈCES NEUVE – PROCHE DE DIEPPEÀ vendre : à 16 km de la Manche et à 15 km de Dieppe, à Freulleville (76510), Les Maisons Extraco Dieppe vous propose cette maison de 3 pièces de plain-pied de 65 m². Elle comporte deux chambres, une cuisine et une salle de bains.Le terrain de la maison s’étend sur 1 251 m².Cette maison est neuve.Il y a l’École Élémentaire Marie Pape-Carpantier à moins de 10 minutes à pied. Côté transports en commun, on trouve la gare Longueville-sur-Scie à moins de 10 minutes en voiture. Les autoroutes A28 et A29 et la nationale N27 sont accessibles à moins de 20 km.Elle est à vendre pour la somme de 152 900 €.Prenez contact avec notre agence (LECLERC Natacha : (Numéro supprimé)) pour obtenir de plus amples renseignements sur cette propriété ou sur les modalités de vente.
Saint-Vaast-d'Équiqueville
TERRAIN ET MAISONVENTE d’une maison de 6 pièces (114 m²) à Saint-Vaast-d’ÉquiquevillePROCHE DE DIEPPE – MAISON 6 PIÈCES NEUVEEn vente à 18 km de la Manche et à quelques kilomètres de Dieppe, à Saint-Vaast-d’Équiqueville (76510), nous sommes heureux de vous présenter cette maison de 6 pièces de 114 m² et de 850 m² de terrain.Il s’agit d’une maison de 2 niveaux. Elle est composée de cinq chambres, d’une cuisine et de deux salles de bains. Cette maison est neuve.Il y a l’École Primaire la Courte Echelle à moins de 10 minutes à pied. Les autoroutes A28 et A29 et la nationale N27 sont accessibles à moins de 18 km. On trouve une épicerie à proximité.Son prix de vente est de 297 390 €.N’hésitez pas à prendre contact avec Natacha LECLERC (tél : (Numéro supprimé)) pour tout renseignement sur cette maison. Concrétisez vos projets immobiliers avec Les Maisons Extraco Dieppe.
Saint-Vaast-d'Équiqueville
TERRAIN ET MAISONVENTE d’une maison de 4 pièces (112 m²) à Saint-Vaast-d’ÉquiquevillePROCHE DE DIEPPE – MAISON 4 PIÈCES NEUVEÀ vendre à 18 km de la Manche et à 17 km de Dieppe, notre agence Les Maisons Extraco Dieppe est ravie de vous proposer cette maison de 4 pièces de 112 m² et de 850 m² de terrain à Saint-Vaast-d’Équiqueville (76510).Il s’agit d’une maison de 2 niveaux. Elle propose quatre chambres, une cuisine et deux salles de bains. La maison est neuve.L’École Primaire la Courte Echelle est implantée à moins de 10 minutes à pied. Les autoroutes A28 et A29 et la nationale N27 sont accessibles à moins de 18 km. Il y a une épicerie à quelques minutes à peine.Elle est à vendre pour la somme de 248 200 €.Contactez Natacha LECLERC (tél : (Numéro supprimé)) pour toute question sur la maison, sur les modalités de vente ou sur les démarches à suivre.
Saint-Nicolas-d'Aliermont
TERRAINVENTE : terrain de 606 m² à Saint-Nicolas-d’AliermontPROCHE DE DIEPPEGrand terrain en vente à 10 km de la Manche et à deux pas de Dieppe. De 606 m², ce terrain se situe dans Saint-Nicolas-d’Aliermont (76510). L’École Maternelle Jacques de Thevray, le Collège Claude Monet et l’École Élémentaire Jean Rostand sont implantés à moins de 10 minutes à pied. La nationale N27 est accessible à 13 km. On trouve un tennis, des commerces, deux boulangeries, trois boucheries-charcuteries, un bureau de poste et deux épiceries dans les environs.Son prix de vente est de 59 500 €. Contactez Natacha LECLERC (tél : (Numéro supprimé)) pour toute information sur ce terrain ou sur les modalités de vente. Les Maisons Extraco Dieppe est là pour vous accompagner à toutes les étapes de l’achat.
L’actualité immobilière à Le Bois-Robert
27/11/2023
02/11/2023
30/10/2023
20/10/2023
16/10/2023
16/10/2023