Maison à construire à Le Tilleul (76790)
Images
Description
VENTE : maison T3 (99 m²) au Tilleul
PROCHE DU HAVRE - MAISON 3 PIÈCES NEUVE
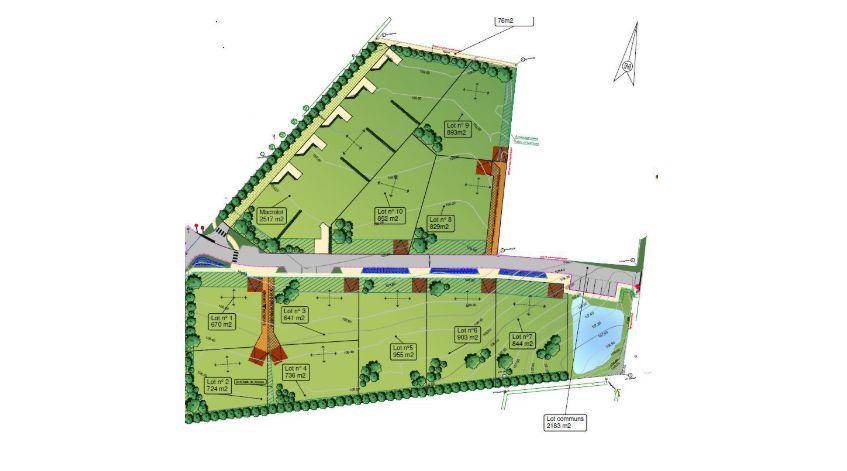
À vendre à 3 km de la Manche et à deux pas du Havre, au Tilleul (76790), nous sommes ravis de vous proposer cette maison de 3 pièces de plain-pied de 99 m² et de 670 m² de terrain.
Elle comporte trois chambres, une cuisine et deux salles de bains. Cette maison est neuve.
Une école élémentaire est implantée dans le quartier. Il y a un accès à l'autoroute A29 à 18 km. Il y a un tennis, une boulangerie et une supérette dans les environs.
Elle est à vendre pour la somme de 289 000 €.
N'hésitez pas à prendre contact avec Barbara PELLETER ((Numéro supprimé)) pour tout renseignement sur cette maison ou sur les démarches à suivre. Les Maisons Extraco Le Havre vous accompagne à toutes les étapes de l'achat et dans tous vos projets immobiliers.
Logement susceptibles de vous intéresser
Nous vous proposons de découvrir aussi cette sélection de logements situés à moins de 10km de Le Tilleul et qui seraient susceptibles de vous intéresser.
Saint-Jouin-Bruneval
TERRAINTerrain de 400 m² en vente à Saint-Jouin-BrunevalPROCHE DU HAVREÀ Saint-Jouin-Bruneval (76280) à vendre à 5 km de la Manche et à deux pas du Havre, venez découvrir ce terrain de 400 m². L »École Primaire le Pélican est implantée à moins de 10 minutes à pied. Niveau transports, il y a deux gares (Rolleville et Épouville) à moins de 10 minutes en voiture. Les autoroutes A29 et A131 et la nationale N282 sont accessibles à moins de 17 km. On trouve un tennis, une boulangerie, une supérette et une boucherie-charcuterie dans les environs.Il est proposé à l »achat pour 93 800 €. Prenez contact avec notre agence Maisons France Confort Boos (Numéro supprimé) / (Numéro supprimé) pour toute question sur ce terrain, sur les démarches à suivre ou sur les modalités de vente. Maisons France Confort Boos vous accompagne dans tous vos projets immobiliers et à toutes les étapes de votre projet.Annonce proposée par un Agent Commercial Partenaire.
Saint-Jouin-Bruneval
TERRAIN ET MAISONVENTE : maison F4 (92 m²) à Saint-Jouin-BrunevalPROCHE DU HAVRE – MAISON 4 PIÈCES NEUVEÀ vendre : située à 5 km de la Manche et à deux pas du Havre, nous vous proposons cette maison de 4 pièces de plain-pied de 92 m² à Saint-Jouin-Bruneval (76280). Elle est composée de trois chambres, d’une cuisine et d’une salle de bains.Le terrain du bien est de 400 m².La maison est neuve.L’École Primaire le Pélican est implantée à moins de 10 minutes à pied. Côté transports en commun, il y a deux gares (Rolleville et Épouville) à moins de 10 minutes en voiture. Les autoroutes A29 et A131 et la nationale N282 sont accessibles à moins de 17 km. On trouve un tennis, une boulangerie, une boucherie-charcuterie et une supérette dans les environs.Elle est proposée à l’achat pour 192 500 €.Contactez notre agence Maisons France Confort Boos (Numéro supprimé) / (Numéro supprimé) pour plus d’informations sur cette maison, sur les modalités de vente ou sur les démarches à suivre. Faites de vos projets immobiliers une réalité avec Maisons France Confort Boos.Annonce proposée par un Agent Commercial Partenaire.
Saint-Jouin-Bruneval
TERRAIN ET MAISONVENTE : maison F4 (78 m²) à Saint-Jouin-BrunevalPROCHE DU HAVRE – MAISON 4 PIÈCES NEUVEÀ vendre : à 5 km de la Manche et à 16 km du Havre, ayez le coup de coeur pour cette maison de 4 pièces de 78 m² à Saint-Jouin-Bruneval (76280). Son intérieur compte trois chambres, une cuisine et une salle de bains.Le terrain de cette maison est de 400 m².C’est une maison de 2 niveaux. Elle est neuve.L’École Primaire le Pélican est implantée à moins de 10 minutes à pied. Niveau transports, il y a deux gares (Rolleville et Épouville) à moins de 10 minutes en voiture. Les autoroutes A29 et A131 et la nationale N282 sont accessibles à moins de 17 km. On trouve un tennis, une boulangerie, une boucherie-charcuterie et une supérette à proximité.Elle est proposée à l’achat pour 213 800 €.Prenez contact avec notre agence Maisons France Confort Boos (Numéro supprimé) / (Numéro supprimé) pour tout renseignement sur la propriété. Concrétisez vos projets immobiliers avec Maisons France Confort Boos.Annonce proposée par un Agent Commercial Partenaire.
Saint-Jouin-Bruneval
TERRAIN ET MAISONVENTE : maison F4 (92 m²) à Saint-Jouin-BrunevalPROCHE DU HAVRE – MAISON 4 PIÈCES NEUVEÀ vendre : située à 5 km de la Manche et à deux pas du Havre, nous vous proposons cette maison de 4 pièces de plain-pied de 92 m² à Saint-Jouin-Bruneval (76280). Elle est composée de trois chambres, d’une cuisine et d’une salle de bains.Le terrain du bien est de 400 m².La maison est neuve.L’École Primaire le Pélican est implantée à moins de 10 minutes à pied. Côté transports en commun, il y a deux gares (Rolleville et Épouville) à moins de 10 minutes en voiture. Les autoroutes A29 et A131 et la nationale N282 sont accessibles à moins de 17 km. On trouve un tennis, une boulangerie, une boucherie-charcuterie et une supérette dans les environs.Elle est proposée à l’achat pour 192 500 €.Contactez notre agence Maisons France Confort Boos (Numéro supprimé) / (Numéro supprimé) pour plus d’informations sur cette maison, sur les modalités de vente ou sur les démarches à suivre. Faites de vos projets immobiliers une réalité avec Maisons France Confort Boos.Annonce proposée par un Agent Commercial Partenaire.
Saint-Jouin-Bruneval
TERRAIN ET MAISONSaint-Jouin-Bruneval : maison T3 (71 m²) en ventePROCHE DU HAVRE – MAISON 3 PIÈCES NEUVEÀ 5 km de la Manche et à deux pas du Havre, nous sommes heureux de vous présenter à vendre à Saint-Jouin-Bruneval (76280), cette maison de 3 pièces de plain-pied de 71 m².Son intérieur est composé de deux chambres, d’une cuisine et d’une salle de bains. La maison est neuve.Le terrain du bien s’étend sur 400 m².L’École Primaire le Pélican est implantée à moins de 10 minutes à pied. Côté transports en commun, on trouve deux gares (Rolleville et Épouville) à moins de 10 minutes en voiture. Les autoroutes A29 et A131 et la nationale N282 sont accessibles à moins de 17 km. Il y a un tennis, une boulangerie, une boucherie-charcuterie et une supérette à quelques minutes à peine.Elle est à vendre pour la somme de 208 700 €.N’hésitez pas à prendre contact avec notre agence Maisons France Confort Boos (Numéro supprimé) / (Numéro supprimé) pour toute question sur la maison, sur les démarches à suivre ou sur les modalités de vente. Donnez vie à vos projets immobiliers avec Maisons France Confort Boos.Annonce proposée par un Agent Commercial Partenaire.
Saint-Jouin-Bruneval
TERRAIN ET MAISONSaint-Jouin-Bruneval : maison T3 (71 m²) en ventePROCHE DU HAVRE – MAISON 3 PIÈCES NEUVEÀ 5 km de la Manche et à deux pas du Havre, nous sommes heureux de vous présenter à vendre à Saint-Jouin-Bruneval (76280), cette maison de 3 pièces de plain-pied de 71 m².Son intérieur est composé de deux chambres, d’une cuisine et d’une salle de bains. La maison est neuve.Le terrain du bien s’étend sur 400 m².L’École Primaire le Pélican est implantée à moins de 10 minutes à pied. Côté transports en commun, on trouve deux gares (Rolleville et Épouville) à moins de 10 minutes en voiture. Les autoroutes A29 et A131 et la nationale N282 sont accessibles à moins de 17 km. Il y a un tennis, une boulangerie, une boucherie-charcuterie et une supérette à quelques minutes à peine.Elle est à vendre pour la somme de 208 700 €.N’hésitez pas à prendre contact avec notre agence Maisons France Confort Boos (Numéro supprimé) / (Numéro supprimé) pour toute question sur la maison, sur les démarches à suivre ou sur les modalités de vente. Donnez vie à vos projets immobiliers avec Maisons France Confort Boos.Annonce proposée par un Agent Commercial Partenaire.
Saint-Jouin-Bruneval
TERRAIN ET MAISONSaint-Jouin-Bruneval : maison F4 (92 m²) en ventePROCHE DU HAVRE – MAISON 4 PIÈCES NEUVEEn vente : à 5 km de la Manche et à 16 km du Havre, nous sommes ravis de vous présenter cette maison de 4 pièces de plain-pied de 92 m² à Saint-Jouin-Bruneval (76280).Conçue de plain-pied, elle est composée de trois chambres, d’une cuisine et d’une salle de bains. Cette maison est neuve.Le terrain de la propriété est de 400 m².L’École Primaire le Pélican est implantée à moins de 10 minutes à pied. Côté transports en commun, on trouve les gares Rolleville et Épouville à moins de 10 minutes en voiture. Les autoroutes A29 et A131 et la nationale N282 sont accessibles à moins de 17 km. Il y a un tennis, une boulangerie, une supérette et une boucherie-charcuterie dans les environs.Son prix de vente est de 229 800 €.N’hésitez pas à prendre contact avec notre agence Maisons France Confort Boos (Numéro supprimé) / (Numéro supprimé) pour tout renseignement sur cette maison. Maisons France Confort Boos est là pour vous accompagner dans toutes vos démarches.Annonce proposée par un Agent Commercial Partenaire.
Saint-Jouin-Bruneval
TERRAIN ET MAISONMaison F3 (71 m²) à vendre à Saint-Jouin-BrunevalPROCHE DU HAVRE – MAISON 3 PIÈCES NEUVEEn vente : localisée à 5 km de la Manche et à quelques kilomètres du Havre, nous vous proposons cette maison de 3 pièces de plain-pied de 71 m² à Saint-Jouin-Bruneval (76280).Elle offre deux chambres, une cuisine et une salle de bains. La maison est neuve.Le terrain de la propriété s’étend sur 400 m².L’École Primaire le Pélican est implantée à moins de 10 minutes à pied. Côté transports, on trouve les gares Rolleville et Épouville à moins de 10 minutes en voiture. Les autoroutes A29 et A131 et la nationale N282 sont accessibles à moins de 17 km. Il y a un tennis, une boulangerie, une supérette et une boucherie-charcuterie à quelques minutes à peine.Elle est proposée à l’achat pour 205 900 €.Prenez contact avec notre agence Maisons France Confort Boos (Numéro supprimé) / (Numéro supprimé) pour toute information sur cette maison et sur les modalités de vente.Annonce proposée par un Agent Commercial Partenaire.
Saint-Jouin-Bruneval
TERRAIN ET MAISONVENTE : maison F4 (78 m²) à Saint-Jouin-BrunevalPROCHE DU HAVRE – MAISON 4 PIÈCES NEUVEÀ vendre : à 5 km de la Manche et à 16 km du Havre, ayez le coup de coeur pour cette maison de 4 pièces de 78 m² à Saint-Jouin-Bruneval (76280). Son intérieur compte trois chambres, une cuisine et une salle de bains.Le terrain de cette maison est de 400 m².C’est une maison de 2 niveaux. Elle est neuve.L’École Primaire le Pélican est implantée à moins de 10 minutes à pied. Niveau transports, il y a deux gares (Rolleville et Épouville) à moins de 10 minutes en voiture. Les autoroutes A29 et A131 et la nationale N282 sont accessibles à moins de 17 km. On trouve un tennis, une boulangerie, une boucherie-charcuterie et une supérette à proximité.Elle est proposée à l’achat pour 213 800 €.Prenez contact avec notre agence Maisons France Confort Boos (Numéro supprimé) / (Numéro supprimé) pour tout renseignement sur la propriété. Concrétisez vos projets immobiliers avec Maisons France Confort Boos.Annonce proposée par un Agent Commercial Partenaire.
L’actualité immobilière à Le Tilleul
27/11/2023
02/11/2023
30/10/2023
20/10/2023
16/10/2023
16/10/2023