Maison à construire à Morgny-la-Pommeraye (76750)
Images
Description
Maison idéalement située à MORGNY-LA-POMMERAYE sur un terrain de 858 m².
À proximité, dans le bourg : école, boulangerie, parc pour enfants, bus vert.
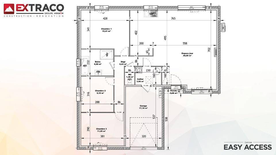
Cette maison contemporaine bénéficie d'un agencement agréable : - Salon/séjour avec cuisine ouverte de 50 m², avec une grande baie coulissante de 2,80 m en alu, - cellier, - 3 chambres avec placards, - suite parentale avec dressing et douche à l'italienne, - salle de bains avec baignoire et douche, - garage de 20m².
Isolation renforcée avec système de chauffage très économique par pompe à chaleur. Maison certifiée RE20. DPE : A / GSE : B.
Venez nous rencontrer et visiter notre showroom : Maisons EXTRACO - 11 Rue Jacques Monod, 76130 Mont-Saint-Aignan
Étude gratuite auprès de votre conseiller : Floriane LEBOUCHER ((Numéro supprimé))
(Premier échange par SMS possible)
Logement susceptibles de vous intéresser
Nous vous proposons de découvrir aussi cette sélection de logements situés à moins de 10km de Morgny-la-Pommeraye et qui seraient susceptibles de vous intéresser.
Servaville-Salmonville
TERRAINVENTE : terrain de 616 m² à Servaville-SalmonvilleIDÉALEMENT SITUÉ – PROCHE DE ROUENÀ Servaville-Salmonville (76116) à vendre à deux pas de Rouen, venez découvrir ce terrain de 616 m². Il donne sur un espace vert et bénéficie d’une exposition sud-ouest. Dans un quartier recherché, ce terrain idéalement situé est proche des commerces et des écoles. L’École Maternelle Joseph Bara est implantée dans la commune. Niveau transports, il y a les gares Morgny-la-Pommeraye, Saint-Martin-du-Vivier et Longuerue-Vieux-Manoir à moins de 10 minutes en voiture. L’autoroute A28 et la nationale N28 sont accessibles à moins de 10 km. On trouve une bibliothèque, un tennis, un commerce et une boulangerie à quelques minutes à peine.Ce terrain est proposé à l’achat pour 75 000 €. N’hésitez pas à prendre contact avec notre agence (COLLAY Lindsay : (Numéro supprimé)) pour obtenir de plus amples informations sur le terrain ou sur les démarches à suivre. Maisons France Confort Sainte-Marie-des-Champs est là pour vous accompagner à toutes les étapes de votre projet.
Servaville-Salmonville
TERRAIN ET MAISONMaison de 5 pièces (85 m²) à construire à Servaville-SalmonvilleIDÉALEMENT SITUÉE – MAISON 5 PIÈCES NEUVEÀ quelques kilomètres de Rouen, en vente idéalement située dans Servaville-Salmonville (76116), Maisons France Confort Sainte-Marie-des-Champs vous propose cette maison de 5 pièces de plain-pied de 85 m². Son intérieur se divise en trois chambres, une cuisine et une salle de bains.Le terrain de la propriété est de 616 m².Cette maison est neuve.Le bien se situe dans un secteur attractif. On y trouve l’École Maternelle Joseph Bara. Côté transports en commun, il y a les gares Morgny-la-Pommeraye, Saint-Martin-du-Vivier et Longuerue-Vieux-Manoir à moins de 10 minutes en voiture. L’autoroute A28 et la nationale N28 sont accessibles à moins de 10 km. On trouve une bibliothèque, un tennis, un commerce et une boulangerie dans les environs.Il est à vendre pour la somme de 237 619 €.Contactez Lindsay COLLAY ((Numéro supprimé)) pour tout renseignement sur la maison, sur les démarches à suivre ou sur les modalités de vente. Maisons France Confort Sainte-Marie-des-Champs vous accompagne dans tous vos projets immobiliers et à toutes les étapes de votre projet.
La Rue-Saint-Pierre
TERRAINLa Rue-Saint-Pierre : terrain de 461 m² à vendreIDÉALEMENT SITUÉ – PROCHE DE ROUENÀ La Rue-Saint-Pierre (76690) à 45 km de la Manche et à deux pas de Rouen, découvrez ce terrain de 461 m². Ce terrain, exposé au sud-ouest, donne sur un espace vert. Dans un secteur prisé, ce terrain idéalement situé est proche des écoles et des commerces. Une école élémentaire est implantée dans le quartier. Niveau transports, il y a les gares Longuerue-Vieux-Manoir, Morgny-la-Pommeraye et Montérolier-Buchy à moins de 10 minutes en voiture. Les autoroutes A28 et A29 sont accessibles à moins de 10 km. On trouve un tennis et deux commerces dans les environs.Ce terrain est à vendre pour la somme de 73 000 €. Contactez notre agence (Lindsay COLLAY : (Numéro supprimé)) pour toute question sur le terrain ou sur les modalités de vente. Concrétisez vos projets immobiliers avec Maisons France Confort Sainte-Marie-des-Champs.
La Rue-Saint-Pierre
TERRAIN ET MAISONLa Rue-Saint-Pierre : maison F5 (89 m²) à construireIDÉALEMENT SITUÉE – MAISON 5 PIÈCES NEUVEÀ 45 km de la Manche et à 18 km de Rouen, à vendre idéalement située dans La Rue-Saint-Pierre (76690), ayez le coup de coeur pour cette maison de 5 pièces de 89 m² et de 461 m² de terrain. Elle offre quatre chambres, une cuisine et une salle de bains.C’est une maison de 2 niveaux. Elle est neuve.Le bien se situe dans un secteur attractif. On y trouve une école élémentaire. Niveau transports, on trouve les gares Longuerue-Vieux-Manoir, Morgny-la-Pommeraye et Montérolier-Buchy à moins de 10 minutes en voiture. Les autoroutes A28 et A29 sont accessibles à moins de 10 km. Il y a un tennis et deux commerces à proximité.Il est à vendre pour la somme de 219 520 €.Contactez Lindsay COLLAY (tél : (Numéro supprimé)) pour toute information sur la maison. Donnez vie à vos projets immobiliers avec Maisons France Confort Sainte-Marie-des-Champs.
La Rue-Saint-Pierre
TERRAIN ET MAISONA construire : maison T5 (85 m²) à La Rue-Saint-PierreIDÉALEMENT SITUÉE – MAISON 5 PIÈCES NEUVEA construire à 45 km de la Manche et à 18 km de Rouen, Maisons France Confort Sainte-Marie-des-Champs vous présente cette maison de 5 pièces de plain-pied de 85 m² et de 461 m² de terrain idéalement située dans La Rue-Saint-Pierre (76690). Elle compte trois chambres, une cuisine et une salle de bains.La maison est neuve.Cette maison se trouve dans un quartier convoité. Une école élémentaire y est implantée. Côté transports, il y a trois gares (Longuerue-Vieux-Manoir, Morgny-la-Pommeraye et Montérolier-Buchy) à moins de 10 minutes en voiture. Les autoroutes A28 et A29 sont accessibles à moins de 10 km. On trouve un tennis et deux commerces à quelques minutes du logement.Elle est à vendre pour la somme de 235 619 €.Prenez contact avec Lindsay COLLAY ((Numéro supprimé)) pour toute information sur le bien, sur les démarches à suivre ou sur les modalités de vente. Maisons France Confort Sainte-Marie-des-Champs est là pour vous accompagner à toutes les étapes de l’achat.
La Rue-Saint-Pierre
TERRAIN ET MAISONA construire : maison T4 (81 m²) à La Rue-Saint-PierreIDÉALEMENT SITUÉE – MAISON 4 PIÈCES NEUVEÀ construire à 45 km de la Manche et à 18 km de Rouen, Maisons France Confort Sainte-Marie-des-Champs vous propose cette maison de 4 pièces de plain-pied de 81 m², idéalement située dans La Rue-Saint-Pierre (76690). Conçue de plain-pied, elle se divise en trois chambres, une cuisine et une salle de bains.Le terrain du bien est de 461 m².Cette maison est neuve.La maison est située dans un quartier convoité. On y trouve une école élémentaire. Niveau transports en commun, on trouve les gares Longuerue-Vieux-Manoir, Morgny-la-Pommeraye et Montérolier-Buchy à moins de 10 minutes en voiture. Les autoroutes A28 et A29 sont accessibles à moins de 10 km. Il y a un tennis et deux commerces dans les environs.Elle est à vendre pour la somme de 198 478 €.Contactez Lindsay COLLAY ((Numéro supprimé)) pour toute question sur la propriété et sur les démarches à suivre.
Bois-l'Évêque
TERRAINÀ BOIS-L’EVEQUE, terrain constructible à acheter.Sur la commune de BOIS-L’EVEQUE, opportunité à saisir avec ce terrain. Vous pourrez exploiter une surface de 504 m2 pour créer votre future maison. N’hésitez pas à contacter Floriane LEBOUCHER ((Numéro supprimé)) des Maisons EXTRACO Mont-Saint-Aignan si vous avez des questions. Premiers échanges par SMS ou mail possible.LEBOUCHER Floriane(Numéro supprimé)
Blainville-Crevon
TERRAINÀ BLAINVILLE-CREVON, terrain constructible à acheter.Sur la commune de BLAINVILLE-CREVON , opportunité à saisir avec ce terrain. Vous pourrez exploiter une surface de 811 m2 pour créer votre future maison. N’hésitez pas à contacter Floriane LEBOUCHER ((Numéro supprimé)) des Maisons EXTRACO Mont-Saint-Aignan si vous avez des questions. Premiers échanges par SMS ou mail possible.LEBOUCHER Floriane(Numéro supprimé)
La Rue-Saint-Pierre
TERRAINÀ LA-RUE-SAINT-PIERRE, terrain constructible à acheter.Sur la commune de LA-RUE-SAINT-PIERRE, opportunité à saisir avec ce terrain. Vous pourrez exploiter une surface de 630 m2 pour créer votre future maison. N’hésitez pas à contacter Floriane LEBOUCHER ((Numéro supprimé)) des Maisons EXTRACO Mont-Saint-Aignan si vous avez des questions. Premiers échanges par SMS ou mail possible.LEBOUCHER Floriane(Numéro supprimé)
L’actualité immobilière à Morgny-la-Pommeraye
27/11/2023
02/11/2023
30/10/2023
20/10/2023
16/10/2023
16/10/2023