Images
Description
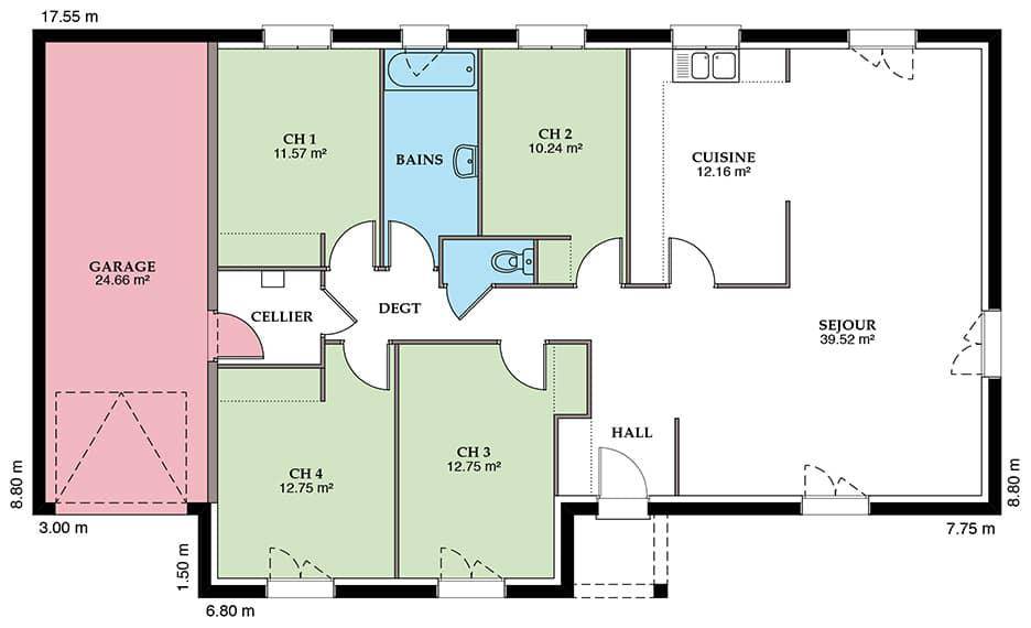
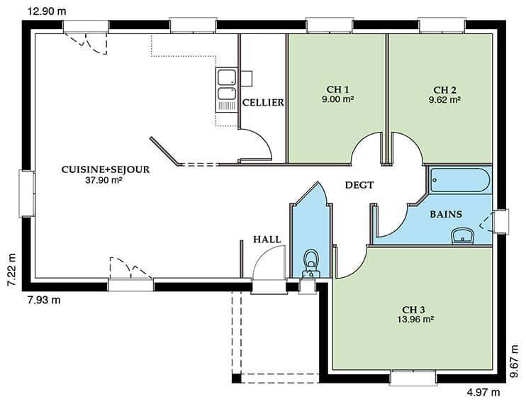
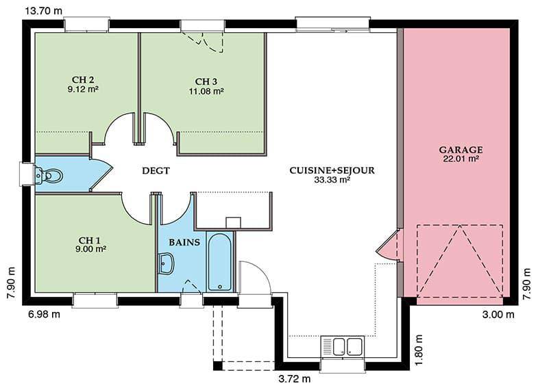
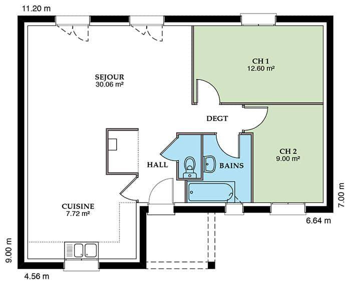
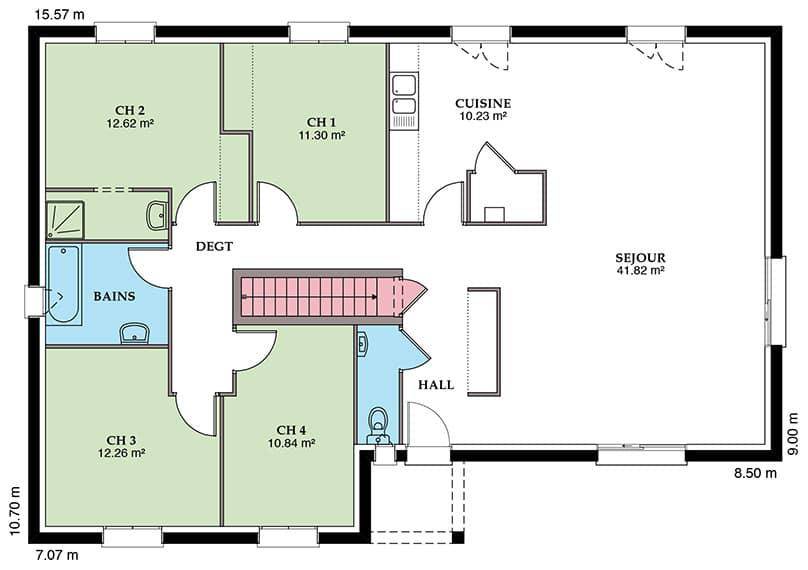
Nous vous proposons cette maison neuve, modèle Montivilliere, une habitation qui allie élégance, fonctionnalité et respect de l'environnement. Conçue pour répondre aux attentes des plus exigeants, cette maison de 79 m² offre un cadre de vie idéal pour une petite famille ou un couple, avec ses 2 chambres et ses 3 pièces réparties dans un plan en T optimisant chaque espace.
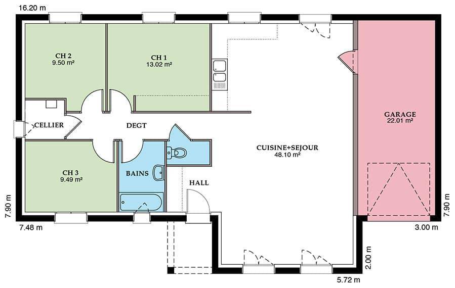
Le porche accueillant vous invite à découvrir un intérieur pensé pour votre confort et votre bien-être, où la lumière naturelle est mise à l'honneur grâce à des menuiseries en aluminium, option plébiscitée pour son esthétique et sa durabilité. La possibilité d'ajouter un garage accolé offre une solution pratique pour votre véhicule ou pour un espace de rangement supplémentaire, répondant ainsi à toutes vos attentes en matière d'aménagement.
La Montivilliere se distingue par son excellent rapport qualité/prix, vous garantissant de faire le meilleur investissement pour votre avenir. De plus, cette maison est conçue pour être basse consommation et est entièrement conforme à la réglementation environnementale RE2020, vous assurant ainsi des économies d'énergie significatives et un respect total de l'environnement.
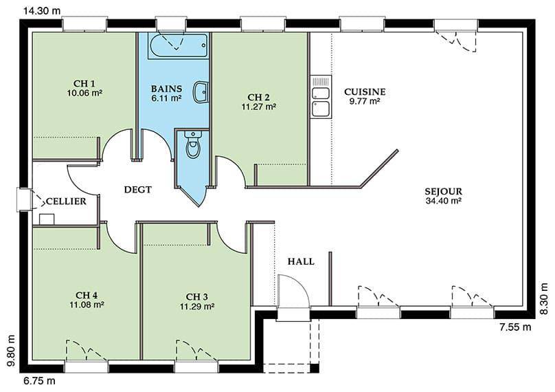
Avec sept versions différentes disponibles, allant de deux à quatre chambres, et une multitude d'options de personnalisation, la Montivilliere est la promesse d'une maison qui s'adapte parfaitement à vos besoins et à votre style de vie. Que vous rêviez d'une demeure cosy de 72 m² ou d'un espace plus vaste de 127 m², ce modèle offre une flexibilité inégalée pour créer le foyer de vos rêves.
Ne manquez pas l'opportunité de vous offrir cette maison neuve, symbole d'un mode de vie moderne, confortable et responsable. La Montivilliere vous attend pour commencer un nouveau chapitre de votre vie dans un cadre exceptionnel. Contactez-nous dès maintenant pour plus d'informations et laissez-vous séduire par le charme et les avantages de cette magnifique propriété.
Logement susceptibles de vous intéresser
Nous vous proposons de découvrir aussi cette sélection de logements situés à moins de 10km de Osmoy-Saint-Valery et qui seraient susceptibles de vous intéresser.
Torcy-le-Petit
TERRAINVENTE : terrain de 612 m² à Torcy-le-PetitPROCHE DE DIEPPEGrand terrain en vente à 17 km de la Manche et à 13 km de Dieppe. De 612 m², ce terrain se situe dans Torcy-le-Petit (76590). Une école primaire est implantée dans le quartier. Niveau transports en commun, il y a la gare Longueville-sur-Scie à moins de 10 minutes en voiture. On trouve un accès à la nationale N27 à 9 km. On trouve un commerce et un supermarché dans les environs.Il est à vendre pour la somme de 48 000 €. Prenez contact avec Natacha LECLERC ((Numéro supprimé)) pour tout renseignement sur ce terrain, sur les modalités de vente ou sur les démarches à suivre. Concrétisez vos projets immobiliers avec Les Maisons Extraco Dieppe.
Torcy-le-Petit
TERRAIN ET MAISONMaison de 5 pièces (100 m²) à vendre à Torcy-le-PetitMAISON 5 PIÈCES NEUVE – PROCHE DE DIEPPEÀ vendre à 17 km de la Manche et à 13 km de Dieppe, Les Maisons Extraco Dieppe vous présente cette maison de 5 pièces de 100 m² et de 612 m² de terrain à Torcy-le-Petit (76590). Elle se divise en quatre chambres, une cuisine et une salle de bains.Il s’agit d’une maison de 2 niveaux. Elle est neuve.Une école primaire est implantée dans le quartier. Côté transports, on trouve la gare Longueville-sur-Scie à moins de 10 minutes en voiture. La nationale N27 est accessible à 9 km. Il y a un commerce et un supermarché à quelques minutes de la maison.Elle est proposée à l’achat pour 225 000 €.Contactez Natacha LECLERC (tél : (Numéro supprimé)) pour toute information sur cette maison. Concrétisez vos projets immobiliers avec Les Maisons Extraco Dieppe.
Torcy-le-Petit
TERRAIN ET MAISONTorcy-le-Petit : maison T3 (50 m²) à vendrePROCHE DE DIEPPE – MAISON 3 PIÈCES NEUVEEn vente : située à 17 km de la Manche et à quelques kilomètres de Dieppe, Les Maisons Extraco Dieppe vous propose cette maison de 3 pièces de plain-pied de 50 m² à Torcy-le-Petit (76590). Son intérieur offre deux chambres, une cuisine et une salle de bains.Le terrain de cette maison s’étend sur 612 m².Cette maison est neuve.Il y a une école primaire dans le quartier. Côté transports, on trouve la gare Longueville-sur-Scie à moins de 10 minutes en voiture. On trouve un accès à la nationale N27 à 9 km. Il y a un commerce et un supermarché à quelques minutes à peine.Son prix de vente est de 147 000 €.Contactez Natacha LECLERC (tél : (Numéro supprimé)) pour obtenir de plus amples informations sur la maison, sur les modalités de vente ou sur les démarches à suivre. Les Maisons Extraco Dieppe est là pour vous accompagner à toutes les étapes de votre projet.
Torcy-le-Petit
TERRAIN ET MAISONVENTE d’une maison F4 (81 m²) à Torcy-le-PetitMAISON 4 PIÈCES NEUVE – PROCHE DE DIEPPEEn vente : localisée à 17 km de la Manche et à deux pas de Dieppe, nous vous présentons à Torcy-le-Petit (76590), cette maison de 4 pièces de 81 m² et de 612 m² de terrain.Il s’agit d’une maison de 2 niveaux. Elle est composée de deux chambres, d’une cuisine et d’une salle de bains. Cette maison est neuve.Il y a une école primaire dans le quartier. Niveau transports en commun, on trouve la gare Longueville-sur-Scie à moins de 10 minutes en voiture. La nationale N27 est accessible à 9 km. Il y a un commerce et un supermarché dans les environs.Son prix de vente est de 187 000 €.Prenez contact avec notre agence (LECLERC Natacha : (Numéro supprimé)) pour plus de renseignements sur cette propriété ou sur les modalités de vente. Les Maisons Extraco Dieppe vous accompagne dans toutes vos démarches et dans tous vos projets immobiliers.
Osmoy-Saint-Valery
TERRAINVENTE d’un terrain de 1 414 m² à Osmoy-Saint-ValeryPROCHE DE DIEPPEGrand terrain en vente à 23 km de la Manche et à quelques kilomètres de Dieppe. De 1 414 m², ce terrain se situe dans Osmoy-Saint-Valery (76660). Une crèche est implantée à moins de 10 minutes à pied. Les autoroutes A28 et A29 et la nationale N27 sont accessibles à moins de 19 km.Il est à vendre pour la somme de 35 000 €. Prenez contact avec Natacha LECLERC ((Numéro supprimé)) pour obtenir de plus amples renseignements sur ce terrain. Les Maisons Extraco Dieppe est là pour vous accompagner dans tous vos projets immobiliers.
Osmoy-Saint-Valery
TERRAIN ET MAISONVENTE d’une maison F4 (93 m²) à Osmoy-Saint-ValeryPROCHE DE DIEPPE – MAISON 4 PIÈCES NEUVEEn vente : à 23 km de la Manche et à deux pas de Dieppe, notre agence Les Maisons Extraco Dieppe est heureuse de vous proposer cette maison de 4 pièces de plain-pied de 93 m² à Osmoy-Saint-Valery (76660). Son intérieur propose trois chambres, une cuisine et une salle de bains.Le terrain de cette maison est de 1 414 m².La maison est neuve.Il y a pour la petite enfance une crèche à moins de 10 minutes à pied. Les autoroutes A28 et A29 et la nationale N27 sont accessibles à moins de 19 km.Elle est proposée à l’achat pour 188 000 €.Contactez Natacha LECLERC ((Numéro supprimé)) pour tout renseignement sur cette maison.
Osmoy-Saint-Valery
TERRAIN ET MAISONVENTE : maison de 5 pièces (92 m²) à Osmoy-Saint-ValeryMAISON 5 PIÈCES NEUVE – PROCHE DE DIEPPEÀ vendre : à 23 km de la Manche et à quelques kilomètres de Dieppe, à Osmoy-Saint-Valery (76660), notre agence Les Maisons Extraco Dieppe est heureuse de vous présenter cette maison de 5 pièces de plain-pied de 92 m².Son intérieur dispose de quatre chambres, d’une cuisine et d’une salle de bains. Cette maison est neuve.Le terrain du bien s’étend sur 1 414 m².Une crèche est implantée à moins de 10 minutes à pied. Les autoroutes A28 et A29 et la nationale N27 sont accessibles à moins de 19 km.Son prix de vente est de 193 000 €.Prenez contact avec notre agence (Natacha LECLERC : (Numéro supprimé)) pour tout renseignement sur la maison et sur les démarches à suivre. Donnez vie à vos projets immobiliers avec Les Maisons Extraco Dieppe.
Osmoy-Saint-Valery
TERRAIN ET MAISONVENTE d’une maison de 3 pièces (99 m²) à Osmoy-Saint-ValeryPROCHE DE DIEPPE – MAISON 3 PIÈCES NEUVEÀ vendre à 23 km de la Manche et à 21 km de Dieppe, venez découvrir à Osmoy-Saint-Valery (76660), cette maison de 3 pièces de plain-pied de 99 m². Conçue de plain-pied, elle se divise en trois chambres, une cuisine et deux salles de bains.Le terrain de cette maison est de 1 414 m².La maison est neuve.Il y a pour les tout-petits une crèche à moins de 10 minutes à pied. Les autoroutes A28 et A29 et la nationale N27 sont accessibles à moins de 19 km.Elle est à vendre pour la somme de 218 000 €.Prenez contact avec Natacha LECLERC (tél : (Numéro supprimé)) pour plus de renseignements sur la maison. Les Maisons Extraco Dieppe vous accompagne dans tous vos projets immobiliers et dans toutes vos démarches.
Sainte-Agathe-d'Aliermont
TERRAINVENTE : terrain de 1 100 m² à Sainte-Agathe-d’AliermontPROCHE DE DIEPPEGrand terrain en vente à 20 km de la Manche et à deux pas de Dieppe. De 1 100 m², ce terrain se situe dans Sainte-Agathe-d’Aliermont (76660). On trouve plusieurs établissements scolaires (élémentaire, collège et lycée) à moins de 10 minutes en voiture, tout comme une crèche à moins de 10 minutes à pied. Il y a quatre tennis, quatre bibliothèques, un bassin de natation, des commerces, des boulangeries, quatre supermarchés, trois bureaux de poste et des épiceries à quelques minutes de la propriété.Son prix de vente est de 30 800 €. Contactez notre agence (Natacha LECLERC : (Numéro supprimé)) pour plus de renseignements sur ce terrain. Les Maisons Extraco Dieppe est là pour vous accompagner dans toutes vos démarches.
L’actualité immobilière à Osmoy-Saint-Valery
27/11/2023
02/11/2023
30/10/2023
20/10/2023
16/10/2023
16/10/2023