Maison à construire à Derchigny (76370)
Images
Description
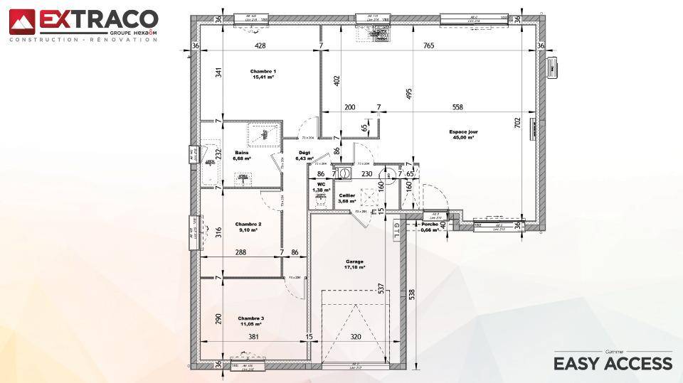
VENTE : maison de 4 pièces (98 m²) à Derchigny
PROCHE DE DIEPPE - MAISON 4 PIÈCES NEUVE
À 4 km de la Manche et à deux pas de Dieppe, Les Maisons Extraco Dieppe vous propose cette maison de 4 pièces de plain-pied de 98 m² et de 500 m² de terrain à Derchigny (76370).
Elle comporte trois chambres, une cuisine et une salle de bains. La maison est neuve.
Niveau transports en commun, il y a la gare Dieppe à moins de 10 minutes en voiture. Il y a un accès à la nationale N27 à 16 km. On trouve une bibliothèque à quelques minutes à peine.
Elle est à vendre pour la somme de 208 520 €.
Contactez Natacha LECLERC ((Numéro supprimé)) pour obtenir de plus amples renseignements sur la maison ou sur les démarches à suivre. Concrétisez vos projets immobiliers avec Les Maisons Extraco Dieppe.
Logement susceptibles de vous intéresser
Nous vous proposons de découvrir aussi cette sélection de logements situés à moins de 10km de Petit-Caux et qui seraient susceptibles de vous intéresser.
Petit-Caux
TERRAINTerrain de 500 m² en vente à DerchignyPROCHE DE DIEPPETerrain de 500 m² en vente à 4 km de la Manche et à 8 km de Dieppe. Ce terrain se situe dans Derchigny (76370). Côté transports en commun, il y a la gare Dieppe à moins de 10 minutes en voiture. La nationale N27 est accessible à 16 km. On trouve une bibliothèque à quelques minutes du terrain.Il est proposé à l’achat pour 59 000 €. Contactez Natacha LECLERC ((Numéro supprimé)) pour toute question sur ce terrain, sur les démarches à suivre et sur les modalités de vente. Donnez vie à vos projets immobiliers avec Les Maisons Extraco Dieppe.
Petit-Caux
TERRAIN ET MAISONDerchigny : maison T4 (80 m²) à vendrePROCHE DE DIEPPE – MAISON 4 PIÈCES NEUVEÀ 4 km de la Manche et à quelques kilomètres de Dieppe, nous sommes heureux de vous présenter cette maison de 4 pièces de plain-pied de 80 m² à vendre à Derchigny (76370).Son intérieur offre trois chambres, une cuisine et une salle de bains. Cette maison est neuve.Le terrain du bien s’étend sur 500 m².Niveau transports, il y a la gare Dieppe à moins de 10 minutes en voiture. Il y a un accès à la nationale N27 à 16 km. On trouve une bibliothèque dans les environs.Elle est proposée à l’achat pour 175 200 €.N’hésitez pas à prendre contact avec Natacha LECLERC ((Numéro supprimé)) pour toute information sur la maison ou sur les démarches à suivre. Faites de vos projets immobiliers une réalité avec Les Maisons Extraco Dieppe.
Petit-Caux
TERRAIN ET MAISONDerchigny : maison de 4 pièces (81 m²) en ventePROCHE DE DIEPPE – MAISON 4 PIÈCES NEUVEÀ vendre : à 4 km de la Manche et à quelques kilomètres de Dieppe, Les Maisons Extraco Dieppe vous propose cette maison de 4 pièces de 81 m² à Derchigny (76370). Son intérieur comporte trois chambres, une cuisine et une salle de bains.Le terrain de la propriété est de 500 m².Cette maison compte 2 niveaux. Elle est neuve.Niveau transports, on trouve la gare Dieppe à moins de 10 minutes en voiture. On trouve un accès à la nationale N27 à 16 km. Il y a une bibliothèque dans les environs.Elle est à vendre pour la somme de 202 400 €.Prenez contact avec Natacha LECLERC (tél : (Numéro supprimé)) pour obtenir de plus amples informations sur la maison, sur les modalités de vente ou sur les démarches à suivre. Les Maisons Extraco Dieppe est là pour vous accompagner dans tous vos projets immobiliers.
Petit-Caux
TERRAIN ET MAISONVENTE : maison de 4 pièces (98 m²) à DerchignyPROCHE DE DIEPPE – MAISON 4 PIÈCES NEUVEÀ 4 km de la Manche et à deux pas de Dieppe, Les Maisons Extraco Dieppe vous propose cette maison de 4 pièces de plain-pied de 98 m² et de 500 m² de terrain à Derchigny (76370).Elle comporte trois chambres, une cuisine et une salle de bains. La maison est neuve.Niveau transports en commun, il y a la gare Dieppe à moins de 10 minutes en voiture. Il y a un accès à la nationale N27 à 16 km. On trouve une bibliothèque à quelques minutes à peine.Elle est à vendre pour la somme de 208 520 €.Contactez Natacha LECLERC ((Numéro supprimé)) pour obtenir de plus amples renseignements sur la maison ou sur les démarches à suivre. Concrétisez vos projets immobiliers avec Les Maisons Extraco Dieppe.
Sauchay
TERRAINVENTE d’un terrain de 700 m² à SauchayPROCHE DE DIEPPEÀ vendre à 6 km de la Manche et à deux pas de Dieppe à Sauchay (76630), grand terrain. Réalisez-y votre résidence principale ou secondaire. Il y a une école élémentaire dans le quartier. Niveau transports en commun, on trouve la gare Dieppe à moins de 10 minutes en voiture. La nationale N27 est accessible à 15 km.Il est à vendre pour la somme de 57 500 €. Prenez contact avec Natacha LECLERC (tél : (Numéro supprimé)) pour tout renseignement sur ce terrain, sur les démarches à suivre et sur les modalités de vente. Les Maisons Extraco Dieppe vous accompagne à toutes les étapes de l’achat et dans tous vos projets immobiliers.
Sauchay
TERRAIN ET MAISONSauchay : maison T6 (139 m²) en ventePROCHE DE DIEPPE – MAISON 6 PIÈCES NEUVEÀ 6 km de la Manche et à quelques kilomètres de Dieppe, nous vous présentons cette maison de 6 pièces de 139 m² et de 700 m² de terrain à vendre à Sauchay (76630).Cette maison possède 2 niveaux. Elle est composée de quatre chambres, d’une cuisine et de deux salles de bains. Cette maison est neuve.Une école élémentaire est implantée dans le quartier. Niveau transports, il y a la gare Dieppe à moins de 10 minutes en voiture. La nationale N27 est accessible à 15 km.Elle est proposée à l’achat pour 335 800 €.Prenez contact avec notre agence (Natacha LECLERC : (Numéro supprimé)) pour plus d’informations sur la maison.
Sauchay
TERRAIN ET MAISONVENTE d’une maison T5 (100 m²) à SauchayPROCHE DE DIEPPE – MAISON 5 PIÈCES NEUVEEn vente à 6 km de la Manche et à 9 km de Dieppe, Les Maisons Extraco Dieppe vous présente cette maison de 5 pièces de 100 m² à Sauchay (76630). Son intérieur est composé de trois chambres, d’une cuisine et d’une salle de bains.Le terrain de la propriété s’étend sur 700 m².C’est une maison de 2 niveaux. Elle est neuve.Il y a une école élémentaire dans le quartier. Côté transports en commun, on trouve la gare Dieppe à moins de 10 minutes en voiture. Il y a un accès à la nationale N27 à 15 km.Elle est à vendre pour la somme de 257 500 €.N’hésitez pas à prendre contact avec notre agence (Natacha LECLERC : (Numéro supprimé)) pour toute information sur la maison, sur les démarches à suivre ou sur les modalités de vente. Faites de vos projets immobiliers une réalité avec Les Maisons Extraco Dieppe.
Sauchay
TERRAIN ET MAISONVENTE : maison F6 (156 m²) à SauchayPROCHE DE DIEPPE – MAISON 6 PIÈCES NEUVEÀ vendre : localisée à 6 km de la Manche et à deux pas de Dieppe, à Sauchay (76630), nous sommes heureux de vous proposer cette maison de 6 pièces de 156 m² et de 700 m² de terrain.Il s’agit d’une maison de 2 niveaux. Elle inclut quatre chambres, une cuisine et deux salles de bains. Cette maison est neuve.On trouve une école élémentaire dans le quartier. Niveau transports en commun, il y a la gare Dieppe à moins de 10 minutes en voiture. La nationale N27 est accessible à 15 km.Elle est proposée à l’achat pour 368 700 €.Contactez Natacha LECLERC ((Numéro supprimé)) pour toute question sur cette propriété ou sur les démarches à suivre. Les Maisons Extraco Dieppe est là pour vous accompagner à toutes les étapes de votre projet.
Petit-Caux
TERRAINTerrain de 1 000 m² en vente à GrenyPROCHE DE DIEPPEÀ Greny (76630) à vendre à 9 km de la Manche et à deux pas de Dieppe, projetez la maison de vos rêves sur ce terrain de 1 000 m². Plusieurs établissements scolaires (maternelle, élémentaire, primaire et lycée) se trouvent à moins de 10 minutes en voiture, tout comme une crèche à moins de 10 minutes à pied. Il y a des bibliothèques, des tennis, deux bassins de natation, des commerces, des boulangeries, quatre supermarchés, des boucheries-charcuteries et quatre épiceries à proximité.Il est à vendre pour la somme de 50 000 €. Contactez Natacha LECLERC (tél : (Numéro supprimé)) pour toute information sur ce terrain. Les Maisons Extraco Dieppe est là pour vous accompagner dans toutes vos démarches.
L’actualité immobilière à Petit-Caux
27/11/2023
02/11/2023
30/10/2023
20/10/2023
16/10/2023
16/10/2023