Maison à construire à Rebets (76750)
Images
Description
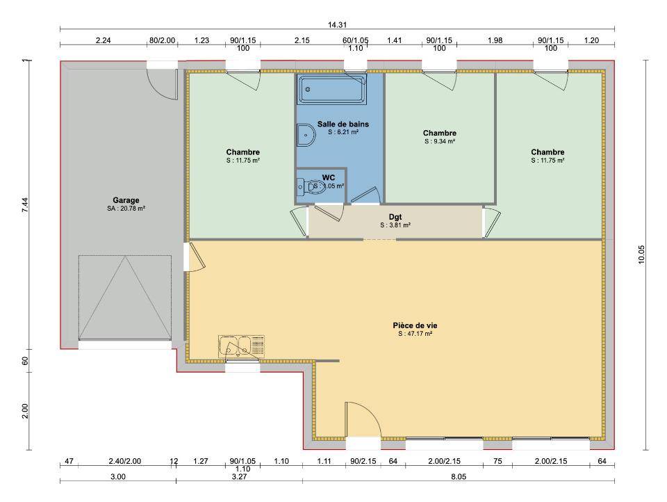
Maison T6 (90 m²) à vendre à Rebets
IDÉALEMENT SITUÉE - MAISON 6 PIÈCES NEUVE
En vente : localisée à quelques kilomètres de Rouen, idéalement située dans Rebets (76750), nous sommes heureux de vous présenter cette maison de 6 pièces de plain-pied de 90 m² et de 1 000 m² de terrain. Elle inclut trois chambres, une cuisine et une salle de bains.
Cette maison est neuve.
La maison est située dans un secteur convoité. Plusieurs établissements scolaires (maternelle, élémentaire, primaire et collège) sont implantés à moins de 10 minutes en voiture, tout comme une structure d'accueil pour les enfants en bas âge à moins de 10 minutes à pied. Niveau transports en commun, on trouve la gare Longuerue-Vieux-Manoir à moins de 10 minutes en voiture. Il y a des bibliothèques, des tennis, des commerces, des boulangeries, deux supermarchés, trois bureaux de poste et des boucheries-charcuteries à proximité.
Elle est à vendre pour la somme de 222 000 €.
Prenez contact avec notre agence (Aurélien LEOVANT : (Numéro supprimé)) pour plus de renseignements sur la maison. Donnez vie à vos projets immobiliers avec Maisons Balency Boos.
Annonce proposée par un Agent Commercial Partenaire.
Logement susceptibles de vous intéresser
Nous vous proposons de découvrir aussi cette sélection de logements situés à moins de 10km de Rebets et qui seraient susceptibles de vous intéresser.
Servaville-Salmonville
TERRAINVENTE : terrain de 616 m² à Servaville-SalmonvilleIDÉALEMENT SITUÉ – PROCHE DE ROUENÀ Servaville-Salmonville (76116) à vendre à deux pas de Rouen, venez découvrir ce terrain de 616 m². Il donne sur un espace vert et bénéficie d’une exposition sud-ouest. Dans un quartier recherché, ce terrain idéalement situé est proche des commerces et des écoles. L’École Maternelle Joseph Bara est implantée dans la commune. Niveau transports, il y a les gares Morgny-la-Pommeraye, Saint-Martin-du-Vivier et Longuerue-Vieux-Manoir à moins de 10 minutes en voiture. L’autoroute A28 et la nationale N28 sont accessibles à moins de 10 km. On trouve une bibliothèque, un tennis, un commerce et une boulangerie à quelques minutes à peine.Ce terrain est proposé à l’achat pour 75 000 €. N’hésitez pas à prendre contact avec notre agence (COLLAY Lindsay : (Numéro supprimé)) pour obtenir de plus amples informations sur le terrain ou sur les démarches à suivre. Maisons France Confort Sainte-Marie-des-Champs est là pour vous accompagner à toutes les étapes de votre projet.
Servaville-Salmonville
TERRAIN ET MAISONMaison de 5 pièces (85 m²) à construire à Servaville-SalmonvilleIDÉALEMENT SITUÉE – MAISON 5 PIÈCES NEUVEÀ quelques kilomètres de Rouen, en vente idéalement située dans Servaville-Salmonville (76116), Maisons France Confort Sainte-Marie-des-Champs vous propose cette maison de 5 pièces de plain-pied de 85 m². Son intérieur se divise en trois chambres, une cuisine et une salle de bains.Le terrain de la propriété est de 616 m².Cette maison est neuve.Le bien se situe dans un secteur attractif. On y trouve l’École Maternelle Joseph Bara. Côté transports en commun, il y a les gares Morgny-la-Pommeraye, Saint-Martin-du-Vivier et Longuerue-Vieux-Manoir à moins de 10 minutes en voiture. L’autoroute A28 et la nationale N28 sont accessibles à moins de 10 km. On trouve une bibliothèque, un tennis, un commerce et une boulangerie dans les environs.Il est à vendre pour la somme de 237 619 €.Contactez Lindsay COLLAY ((Numéro supprimé)) pour tout renseignement sur la maison, sur les démarches à suivre ou sur les modalités de vente. Maisons France Confort Sainte-Marie-des-Champs vous accompagne dans tous vos projets immobiliers et à toutes les étapes de votre projet.
Buchy
TERRAINÀ BUCHY, terrain constructible à acheter.Sur la commune de BUCHY, opportunité à saisir avec ce terrain. Vous pourrez exploiter une surface de 771 m2 pour créer votre future maison. N’hésitez pas à contacter Alexis RINGOT ((Numéro supprimé)) des Maisons Extraco Les Essarts si vous avez des questions. Premiers échanges par SMS ou mail possible.RINGOT Alexis(Numéro supprimé)a.ringot at extraco.fr
Buchy
TERRAIN ET MAISONÀ BUCHY, terrain constructible à acheter.Sur la commune de BUCHY, opportunité à saisir avec ce terrain. Vous pourrez exploiter une surface de 771 m2 pour créer votre future maison. N’hésitez pas à contacter Alexis RINGOT ((Numéro supprimé)) des Maisons Extraco Les Essarts si vous avez des questions. Premiers échanges par SMS ou mail possible.RINGOT Alexis(Numéro supprimé)a.ringot at extraco.fr
Buchy
TERRAIN ET MAISONÀ BUCHY, terrain constructible à acheter.Sur la commune de BUCHY, opportunité à saisir avec ce terrain. Vous pourrez exploiter une surface de 771 m2 pour créer votre future maison. N’hésitez pas à contacter Alexis RINGOT ((Numéro supprimé)) des Maisons Extraco Les Essarts si vous avez des questions. Premiers échanges par SMS ou mail possible.RINGOT Alexis(Numéro supprimé)a.ringot at extraco.fr
Buchy
TERRAIN ET MAISONÀ BUCHY, terrain constructible à acheter.Sur la commune de BUCHY, opportunité à saisir avec ce terrain. Vous pourrez exploiter une surface de 771 m2 pour créer votre future maison. N’hésitez pas à contacter Alexis RINGOT ((Numéro supprimé)) des Maisons Extraco Les Essarts si vous avez des questions. Premiers échanges par SMS ou mail possible.RINGOT Alexis(Numéro supprimé)a.ringot at extraco.fr
Buchy
TERRAIN ET MAISONÀ BUCHY, terrain constructible à acheter.Sur la commune de BUCHY, opportunité à saisir avec ce terrain. Vous pourrez exploiter une surface de 771 m2 pour créer votre future maison. N’hésitez pas à contacter Alexis RINGOT ((Numéro supprimé)) des Maisons Extraco Les Essarts si vous avez des questions. Premiers échanges par SMS ou mail possible.RINGOT Alexis(Numéro supprimé)a.ringot at extraco.fr
Buchy
TERRAIN ET MAISONÀ BUCHY, terrain constructible à acheter.Sur la commune de BUCHY, opportunité à saisir avec ce terrain. Vous pourrez exploiter une surface de 771 m2 pour créer votre future maison. N’hésitez pas à contacter Alexis RINGOT ((Numéro supprimé)) des Maisons Extraco Les Essarts si vous avez des questions. Premiers échanges par SMS ou mail possible.RINGOT Alexis(Numéro supprimé)a.ringot at extraco.fr
Buchy
TERRAIN ET MAISONÀ BUCHY, terrain constructible à acheter.Sur la commune de BUCHY, opportunité à saisir avec ce terrain. Vous pourrez exploiter une surface de 771 m2 pour créer votre future maison. N’hésitez pas à contacter Alexis RINGOT ((Numéro supprimé)) des Maisons Extraco Les Essarts si vous avez des questions. Premiers échanges par SMS ou mail possible.RINGOT Alexis(Numéro supprimé)a.ringot at extraco.fr
L’actualité immobilière à Rebets
27/11/2023
02/11/2023
30/10/2023
20/10/2023
16/10/2023
16/10/2023