Maison à construire à Ry (76116)
Images
Description
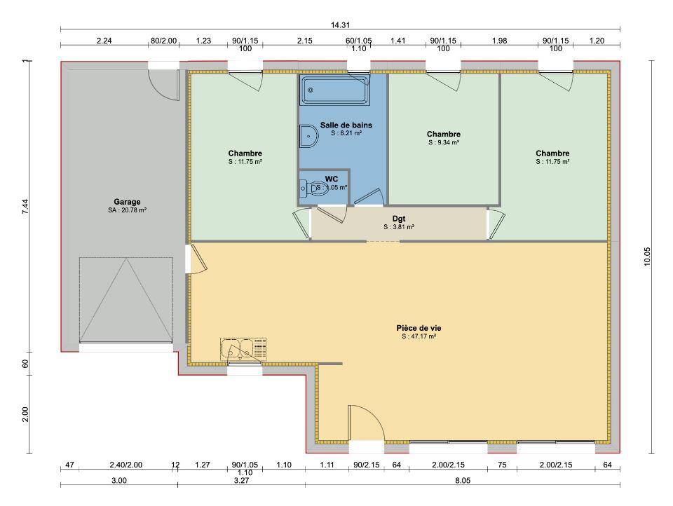
VENTE d'une maison F5 (90 m²) à Ry
IDÉALEMENT SITUÉE - MAISON 5 PIÈCES NEUVE
À quelques kilomètres de Rouen, à vendre idéalement située dans Ry (76116), nous sommes ravis de vous présenter cette maison de 5 pièces de plain-pied de 90 m² et de 1 319 m² de terrain. Son intérieur inclut trois chambres, une cuisine et une salle de bains.
Cette maison est neuve.
Le bien se situe dans un quartier attractif. L'École Primaire Sobelman est implantée à moins de 10 minutes à pied. Niveau transports, on trouve la gare Morgny-la-Pommeraye à moins de 10 minutes en voiture. L'autoroute A28 et les nationales N28 et N338 sont accessibles à moins de 20 km. Il y a un tennis, une bibliothèque, trois commerces, une boulangerie, un supermarché, deux boucheries-charcuteries et deux épiceries à proximité du logement.
Son prix de vente est de 204 000 €.
N'hésitez pas à prendre contact avec Aurélien LEOVANT ((Numéro supprimé)) pour tout renseignement sur la maison, sur les démarches à suivre ou sur les modalités de vente. Maisons Balency Boos est là pour vous accompagner à toutes les étapes de votre projet.
Annonce proposée par un Agent Commercial Partenaire.
Logement susceptibles de vous intéresser
Nous vous proposons de découvrir aussi cette sélection de logements situés à moins de 10km de Ry et qui seraient susceptibles de vous intéresser.
Servaville-Salmonville
TERRAINVENTE : terrain de 616 m² à Servaville-SalmonvilleIDÉALEMENT SITUÉ – PROCHE DE ROUENÀ Servaville-Salmonville (76116) à vendre à deux pas de Rouen, venez découvrir ce terrain de 616 m². Il donne sur un espace vert et bénéficie d’une exposition sud-ouest. Dans un quartier recherché, ce terrain idéalement situé est proche des commerces et des écoles. L’École Maternelle Joseph Bara est implantée dans la commune. Niveau transports, il y a les gares Morgny-la-Pommeraye, Saint-Martin-du-Vivier et Longuerue-Vieux-Manoir à moins de 10 minutes en voiture. L’autoroute A28 et la nationale N28 sont accessibles à moins de 10 km. On trouve une bibliothèque, un tennis, un commerce et une boulangerie à quelques minutes à peine.Ce terrain est proposé à l’achat pour 75 000 €. N’hésitez pas à prendre contact avec notre agence (COLLAY Lindsay : (Numéro supprimé)) pour obtenir de plus amples informations sur le terrain ou sur les démarches à suivre. Maisons France Confort Sainte-Marie-des-Champs est là pour vous accompagner à toutes les étapes de votre projet.
Servaville-Salmonville
TERRAIN ET MAISONMaison de 5 pièces (85 m²) à construire à Servaville-SalmonvilleIDÉALEMENT SITUÉE – MAISON 5 PIÈCES NEUVEÀ quelques kilomètres de Rouen, en vente idéalement située dans Servaville-Salmonville (76116), Maisons France Confort Sainte-Marie-des-Champs vous propose cette maison de 5 pièces de plain-pied de 85 m². Son intérieur se divise en trois chambres, une cuisine et une salle de bains.Le terrain de la propriété est de 616 m².Cette maison est neuve.Le bien se situe dans un secteur attractif. On y trouve l’École Maternelle Joseph Bara. Côté transports en commun, il y a les gares Morgny-la-Pommeraye, Saint-Martin-du-Vivier et Longuerue-Vieux-Manoir à moins de 10 minutes en voiture. L’autoroute A28 et la nationale N28 sont accessibles à moins de 10 km. On trouve une bibliothèque, un tennis, un commerce et une boulangerie dans les environs.Il est à vendre pour la somme de 237 619 €.Contactez Lindsay COLLAY ((Numéro supprimé)) pour tout renseignement sur la maison, sur les démarches à suivre ou sur les modalités de vente. Maisons France Confort Sainte-Marie-des-Champs vous accompagne dans tous vos projets immobiliers et à toutes les étapes de votre projet.
Fresne-le-Plan
TERRAINÀ FRESNE LE PLAN, terrain constructible à acheter.Sur la commune de FRESNE-LE-PLAN, opportunité à saisir avec ce terrain. Vous pourrez exploiter une surface de 1000 m2 pour créer votre future maison. N’hésitez pas à contacter Alexis RINGOT ((Numéro supprimé)) des Maisons Extraco Les Essarts si vous avez des questions. Premiers échanges par SMS ou mail possible.RINGOT Alexis(Numéro supprimé)a.ringot at extraco.fr
Fresne-le-Plan
TERRAIN ET MAISONMaison idéalement située à FRESNE LE PLAN sur un terrain de 1000 m². À proximité, dans le bourg : école, boulangerie, parc pour enfants, bus vert. Cette maison contemporaine bénéficie d’un agencement agréable : – Salon/séjour avec cuisine ouverte de 45 m², avec une grande baie coulissante de 2,20 m en alu, – cellier, – 3 chambres avec placards, – suite parentale avec dressing et douche à l’italienne, – salle de bains avec baignoire et douche, – garage de 15 m². Isolation renforcée avec système de chauffage très économique par pompe à chaleur. Maison certifiée RE20. DPE : A / GSE : B.Venez nous rencontrer et visiter notre showroom : Maisons Extraco – 3 Rue de la Scierie – 76530 LES ESSARTS Personnalisée sur les secteurs de votre choix. Étude gratuite auprès de votre conseiller : Alexis RINGOT ((Numéro supprimé) / a.ringot at extraco.fr). (Premier échange par SMS possible)
Fresne-le-Plan
TERRAIN ET MAISONMaison idéalement située à FRESNE LE PLAN sur un terrain de 1000 m². À proximité, dans le bourg : école, boulangerie, parc pour enfants, bus vert. Cette maison contemporaine bénéficie d’un agencement agréable : – Salon/séjour avec cuisine ouverte de 45 m², avec une grande baie coulissante de 2,20 m en alu, – cellier, – 3 chambres avec placards, – suite parentale avec dressing et douche à l’italienne, – salle de bains avec baignoire et douche, – garage de 15 m². Isolation renforcée avec système de chauffage très économique par pompe à chaleur. Maison certifiée RE20. DPE : A / GSE : B.Venez nous rencontrer et visiter notre showroom : Maisons Extraco – 3 Rue de la Scierie – 76530 LES ESSARTS Personnalisée sur les secteurs de votre choix. Étude gratuite auprès de votre conseiller : Alexis RINGOT ((Numéro supprimé) / a.ringot at extraco.fr). (Premier échange par SMS possible)
Fresne-le-Plan
TERRAIN ET MAISONMaison idéalement située à FRESNE LE PLAN sur un terrain de 1000 m². À proximité, dans le bourg : école, boulangerie, parc pour enfants, bus vert. Cette maison contemporaine bénéficie d’un agencement agréable : – Salon/séjour avec cuisine ouverte de 45 m², avec une grande baie coulissante de 2,20 m en alu, – cellier, – 3 chambres avec placards, – suite parentale avec dressing et douche à l’italienne, – salle de bains avec baignoire et douche, – garage de 15 m². Isolation renforcée avec système de chauffage très économique par pompe à chaleur. Maison certifiée RE20. DPE : A / GSE : B.Venez nous rencontrer et visiter notre showroom : Maisons Extraco – 3 Rue de la Scierie – 76530 LES ESSARTS Personnalisée sur les secteurs de votre choix. Étude gratuite auprès de votre conseiller : Alexis RINGOT ((Numéro supprimé) / a.ringot at extraco.fr). (Premier échange par SMS possible)
Fresne-le-Plan
TERRAIN ET MAISONMaison idéalement située à FRESNE LE PLAN sur un terrain de 1000 m². À proximité, dans le bourg : école, boulangerie, parc pour enfants, bus vert. Cette maison contemporaine bénéficie d’un agencement agréable : – Salon/séjour avec cuisine ouverte de 45 m², avec une grande baie coulissante de 2,20 m en alu, – cellier, – 3 chambres avec placards, – suite parentale avec dressing et douche à l’italienne, – salle de bains avec baignoire et douche, – garage de 15 m². Isolation renforcée avec système de chauffage très économique par pompe à chaleur. Maison certifiée RE20. DPE : A / GSE : B.Venez nous rencontrer et visiter notre showroom : Maisons Extraco – 3 Rue de la Scierie – 76530 LES ESSARTS Personnalisée sur les secteurs de votre choix. Étude gratuite auprès de votre conseiller : Alexis RINGOT ((Numéro supprimé) / a.ringot at extraco.fr). (Premier échange par SMS possible)
Fresne-le-Plan
TERRAIN ET MAISONMaison idéalement située à FRESNE LE PLAN sur un terrain de 1000 m². À proximité, dans le bourg : école, boulangerie, parc pour enfants, bus vert. Cette maison contemporaine bénéficie d’un agencement agréable : – Salon/séjour avec cuisine ouverte de 45 m², avec une grande baie coulissante de 2,20 m en alu, – cellier, – 3 chambres avec placards, – suite parentale avec dressing et douche à l’italienne, – salle de bains avec baignoire et douche, – garage de 15 m². Isolation renforcée avec système de chauffage très économique par pompe à chaleur. Maison certifiée RE20. DPE : A / GSE : B.Venez nous rencontrer et visiter notre showroom : Maisons Extraco – 3 Rue de la Scierie – 76530 LES ESSARTS Personnalisée sur les secteurs de votre choix. Étude gratuite auprès de votre conseiller : Alexis RINGOT ((Numéro supprimé) / a.ringot at extraco.fr). (Premier échange par SMS possible)
Fresne-le-Plan
TERRAIN ET MAISONMaison idéalement située à FRESNE LE PLAN sur un terrain de 1000 m². À proximité, dans le bourg : école, boulangerie, parc pour enfants, bus vert. Cette maison contemporaine bénéficie d’un agencement agréable : – Salon/séjour avec cuisine ouverte de 45 m², avec une grande baie coulissante de 2,20 m en alu, – cellier, – 3 chambres avec placards, – suite parentale avec dressing et douche à l’italienne, – salle de bains avec baignoire et douche, – garage de 15 m². Isolation renforcée avec système de chauffage très économique par pompe à chaleur. Maison certifiée RE20. DPE : A / GSE : B.Venez nous rencontrer et visiter notre showroom : Maisons Extraco – 3 Rue de la Scierie – 76530 LES ESSARTS Personnalisée sur les secteurs de votre choix. Étude gratuite auprès de votre conseiller : Alexis RINGOT ((Numéro supprimé) / a.ringot at extraco.fr). (Premier échange par SMS possible)