Maison à construire à Ry (76116)
Images
Description
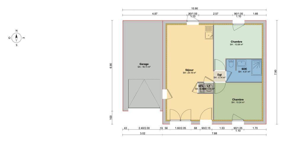
VENTE : maison T4 (50 m²) à Ry
IDÉALEMENT SITUÉE - MAISON 4 PIÈCES NEUVE
En vente à quelques kilomètres de Rouen, Maisons Balency Boos vous présente cette maison de 4 pièces de plain-pied de 50 m² idéalement située dans Ry (76116).
Conçue de plain-pied, elle dispose de deux chambres, d'une cuisine et d'une salle de bains. Cette maison est neuve.
Le terrain du bien est de 941 m².
Ce bien se trouve dans un secteur recherché. Il y a l'École Primaire Sobelman à moins de 10 minutes à pied. Niveau transports en commun, on trouve la gare Morgny-la-Pommeraye à moins de 10 minutes en voiture. L'autoroute A28 et les nationales N28 et N338 sont accessibles à moins de 20 km. Il y a un tennis, une bibliothèque, trois commerces, une boulangerie, un supermarché, deux boucheries-charcuteries et deux épiceries à proximité du logement.
Son prix de vente est de 184 000 €.
Contactez notre agence (Dany LEOVANT : (Numéro supprimé)) pour plus de renseignements sur la maison ou sur les démarches à suivre. Maisons Balency Boos est là pour vous accompagner dans tous vos projets immobiliers.
Annonce proposée par un Agent Commercial Partenaire.
Logement susceptibles de vous intéresser
Nous vous proposons de découvrir aussi cette sélection de logements situés à moins de 10km de Ry et qui seraient susceptibles de vous intéresser.
Servaville-Salmonville
TERRAINVENTE : terrain de 616 m² à Servaville-SalmonvilleIDÉALEMENT SITUÉ – PROCHE DE ROUENÀ Servaville-Salmonville (76116) à vendre à deux pas de Rouen, venez découvrir ce terrain de 616 m². Il donne sur un espace vert et bénéficie d’une exposition sud-ouest. Dans un quartier recherché, ce terrain idéalement situé est proche des commerces et des écoles. L’École Maternelle Joseph Bara est implantée dans la commune. Niveau transports, il y a les gares Morgny-la-Pommeraye, Saint-Martin-du-Vivier et Longuerue-Vieux-Manoir à moins de 10 minutes en voiture. L’autoroute A28 et la nationale N28 sont accessibles à moins de 10 km. On trouve une bibliothèque, un tennis, un commerce et une boulangerie à quelques minutes à peine.Ce terrain est proposé à l’achat pour 75 000 €. N’hésitez pas à prendre contact avec notre agence (COLLAY Lindsay : (Numéro supprimé)) pour obtenir de plus amples informations sur le terrain ou sur les démarches à suivre. Maisons France Confort Sainte-Marie-des-Champs est là pour vous accompagner à toutes les étapes de votre projet.
Servaville-Salmonville
TERRAIN ET MAISONMaison de 5 pièces (85 m²) à construire à Servaville-SalmonvilleIDÉALEMENT SITUÉE – MAISON 5 PIÈCES NEUVEÀ quelques kilomètres de Rouen, en vente idéalement située dans Servaville-Salmonville (76116), Maisons France Confort Sainte-Marie-des-Champs vous propose cette maison de 5 pièces de plain-pied de 85 m². Son intérieur se divise en trois chambres, une cuisine et une salle de bains.Le terrain de la propriété est de 616 m².Cette maison est neuve.Le bien se situe dans un secteur attractif. On y trouve l’École Maternelle Joseph Bara. Côté transports en commun, il y a les gares Morgny-la-Pommeraye, Saint-Martin-du-Vivier et Longuerue-Vieux-Manoir à moins de 10 minutes en voiture. L’autoroute A28 et la nationale N28 sont accessibles à moins de 10 km. On trouve une bibliothèque, un tennis, un commerce et une boulangerie dans les environs.Il est à vendre pour la somme de 237 619 €.Contactez Lindsay COLLAY ((Numéro supprimé)) pour tout renseignement sur la maison, sur les démarches à suivre ou sur les modalités de vente. Maisons France Confort Sainte-Marie-des-Champs vous accompagne dans tous vos projets immobiliers et à toutes les étapes de votre projet.
Fresne-le-Plan
TERRAINÀ FRESNE LE PLAN, terrain constructible à acheter.Sur la commune de FRESNE-LE-PLAN, opportunité à saisir avec ce terrain. Vous pourrez exploiter une surface de 1000 m2 pour créer votre future maison. N’hésitez pas à contacter Alexis RINGOT ((Numéro supprimé)) des Maisons Extraco Les Essarts si vous avez des questions. Premiers échanges par SMS ou mail possible.RINGOT Alexis(Numéro supprimé)a.ringot at extraco.fr
Fresne-le-Plan
TERRAIN ET MAISONMaison idéalement située à FRESNE LE PLAN sur un terrain de 1000 m². À proximité, dans le bourg : école, boulangerie, parc pour enfants, bus vert. Cette maison contemporaine bénéficie d’un agencement agréable : – Salon/séjour avec cuisine ouverte de 45 m², avec une grande baie coulissante de 2,20 m en alu, – cellier, – 3 chambres avec placards, – suite parentale avec dressing et douche à l’italienne, – salle de bains avec baignoire et douche, – garage de 15 m². Isolation renforcée avec système de chauffage très économique par pompe à chaleur. Maison certifiée RE20. DPE : A / GSE : B.Venez nous rencontrer et visiter notre showroom : Maisons Extraco – 3 Rue de la Scierie – 76530 LES ESSARTS Personnalisée sur les secteurs de votre choix. Étude gratuite auprès de votre conseiller : Alexis RINGOT ((Numéro supprimé) / a.ringot at extraco.fr). (Premier échange par SMS possible)
Fresne-le-Plan
TERRAIN ET MAISONMaison idéalement située à FRESNE LE PLAN sur un terrain de 1000 m². À proximité, dans le bourg : école, boulangerie, parc pour enfants, bus vert. Cette maison contemporaine bénéficie d’un agencement agréable : – Salon/séjour avec cuisine ouverte de 45 m², avec une grande baie coulissante de 2,20 m en alu, – cellier, – 3 chambres avec placards, – suite parentale avec dressing et douche à l’italienne, – salle de bains avec baignoire et douche, – garage de 15 m². Isolation renforcée avec système de chauffage très économique par pompe à chaleur. Maison certifiée RE20. DPE : A / GSE : B.Venez nous rencontrer et visiter notre showroom : Maisons Extraco – 3 Rue de la Scierie – 76530 LES ESSARTS Personnalisée sur les secteurs de votre choix. Étude gratuite auprès de votre conseiller : Alexis RINGOT ((Numéro supprimé) / a.ringot at extraco.fr). (Premier échange par SMS possible)
Fresne-le-Plan
TERRAIN ET MAISONMaison idéalement située à FRESNE LE PLAN sur un terrain de 1000 m². À proximité, dans le bourg : école, boulangerie, parc pour enfants, bus vert. Cette maison contemporaine bénéficie d’un agencement agréable : – Salon/séjour avec cuisine ouverte de 45 m², avec une grande baie coulissante de 2,20 m en alu, – cellier, – 3 chambres avec placards, – suite parentale avec dressing et douche à l’italienne, – salle de bains avec baignoire et douche, – garage de 15 m². Isolation renforcée avec système de chauffage très économique par pompe à chaleur. Maison certifiée RE20. DPE : A / GSE : B.Venez nous rencontrer et visiter notre showroom : Maisons Extraco – 3 Rue de la Scierie – 76530 LES ESSARTS Personnalisée sur les secteurs de votre choix. Étude gratuite auprès de votre conseiller : Alexis RINGOT ((Numéro supprimé) / a.ringot at extraco.fr). (Premier échange par SMS possible)
Fresne-le-Plan
TERRAIN ET MAISONMaison idéalement située à FRESNE LE PLAN sur un terrain de 1000 m². À proximité, dans le bourg : école, boulangerie, parc pour enfants, bus vert. Cette maison contemporaine bénéficie d’un agencement agréable : – Salon/séjour avec cuisine ouverte de 45 m², avec une grande baie coulissante de 2,20 m en alu, – cellier, – 3 chambres avec placards, – suite parentale avec dressing et douche à l’italienne, – salle de bains avec baignoire et douche, – garage de 15 m². Isolation renforcée avec système de chauffage très économique par pompe à chaleur. Maison certifiée RE20. DPE : A / GSE : B.Venez nous rencontrer et visiter notre showroom : Maisons Extraco – 3 Rue de la Scierie – 76530 LES ESSARTS Personnalisée sur les secteurs de votre choix. Étude gratuite auprès de votre conseiller : Alexis RINGOT ((Numéro supprimé) / a.ringot at extraco.fr). (Premier échange par SMS possible)
Fresne-le-Plan
TERRAIN ET MAISONMaison idéalement située à FRESNE LE PLAN sur un terrain de 1000 m². À proximité, dans le bourg : école, boulangerie, parc pour enfants, bus vert. Cette maison contemporaine bénéficie d’un agencement agréable : – Salon/séjour avec cuisine ouverte de 45 m², avec une grande baie coulissante de 2,20 m en alu, – cellier, – 3 chambres avec placards, – suite parentale avec dressing et douche à l’italienne, – salle de bains avec baignoire et douche, – garage de 15 m². Isolation renforcée avec système de chauffage très économique par pompe à chaleur. Maison certifiée RE20. DPE : A / GSE : B.Venez nous rencontrer et visiter notre showroom : Maisons Extraco – 3 Rue de la Scierie – 76530 LES ESSARTS Personnalisée sur les secteurs de votre choix. Étude gratuite auprès de votre conseiller : Alexis RINGOT ((Numéro supprimé) / a.ringot at extraco.fr). (Premier échange par SMS possible)
Fresne-le-Plan
TERRAIN ET MAISONMaison idéalement située à FRESNE LE PLAN sur un terrain de 1000 m². À proximité, dans le bourg : école, boulangerie, parc pour enfants, bus vert. Cette maison contemporaine bénéficie d’un agencement agréable : – Salon/séjour avec cuisine ouverte de 45 m², avec une grande baie coulissante de 2,20 m en alu, – cellier, – 3 chambres avec placards, – suite parentale avec dressing et douche à l’italienne, – salle de bains avec baignoire et douche, – garage de 15 m². Isolation renforcée avec système de chauffage très économique par pompe à chaleur. Maison certifiée RE20. DPE : A / GSE : B.Venez nous rencontrer et visiter notre showroom : Maisons Extraco – 3 Rue de la Scierie – 76530 LES ESSARTS Personnalisée sur les secteurs de votre choix. Étude gratuite auprès de votre conseiller : Alexis RINGOT ((Numéro supprimé) / a.ringot at extraco.fr). (Premier échange par SMS possible)