Maison à construire à Sauchay (76630)
Images
Description
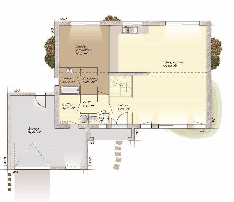
Maison F8 (200 m²) en vente à Sauchay
PROCHE DE DIEPPE - MAISON 8 PIÈCES NEUVE
À 6 km de la Manche et à 9 km de Dieppe, ayez le coup de coeur pour cette maison de 8 pièces de 200 m² et de 800 m² de terrain en vente à Sauchay (76630).
Cette maison possède 2 niveaux. Elle propose cinq chambres, une cuisine et deux salles de bains. Cette maison est neuve.
Une école élémentaire est implantée dans le quartier. Niveau transports en commun, il y a la gare Dieppe à moins de 10 minutes en voiture. La nationale N27 est accessible à 15 km.
Elle est proposée à l'achat pour 426 000 €.
N'hésitez pas à prendre contact avec notre agence (MASSON Sébastien : (Numéro supprimé)) pour obtenir de plus amples informations sur ce bien.
Annonce proposée par un Agent Commercial Partenaire.
Logement susceptibles de vous intéresser
Nous vous proposons de découvrir aussi cette sélection de logements situés à moins de 10km de Sauchay et qui seraient susceptibles de vous intéresser.
Rouxmesnil-Bouteilles
TERRAIN ET MAISONVENTE d’une maison de 4 pièces (92 m²) à Rouxmesnil-BouteillesIDÉALEMENT SITUÉE – MAISON 4 PIÈCES NEUVE A CONSTRUIREEn vente à 3 km de la Manche et à deux pas de Dieppe, idéalement située dans Rouxmesnil-Bouteilles (76370), notre agence Maisons France Confort Sainte-Marie-des-Champs est heureuse de vous présenter cette maison de 4 pièces de plain-pied de 92 m².Conçue de plain-pied, elle est composée de trois chambres, d’une cuisine et d’une salle de bains. La maison est neuve.Le terrain de la propriété est de 275 m².La maison se situe dans un secteur prisé. L’École Primaire le Vallon-les Farfadets la Salicorne se trouve à moins de 10 minutes à pied, tout comme deux crèches. Côté transports, il y a les gares Dieppe et Saint-Aubin-sur-Scie à moins de 10 minutes en voiture. La nationale N27 est accessible à 9 km. On trouve un tennis, sept commerces, une boulangerie et une épicerie dans les environs.Elle est proposée à l’achat pour 214 901 €.Contactez Noemie DEMEILLERS (tél : (Numéro supprimé)) pour obtenir de plus amples renseignements sur la maison ou sur les modalités de vente.
Saint-Nicolas-d'Aliermont
TERRAIN ET MAISONMaison F3 (50 m²) à vendre à Saint-Nicolas-d’AliermontMAISON 3 PIÈCES NEUVE – PROCHE DE DIEPPEÀ 10 km de la Manche et à 12 km de Dieppe, laissez vous charmer par cette maison de 3 pièces de plain-pied de 50 m² en vente à Saint-Nicolas-d’Aliermont (76510). Son intérieur dispose de deux chambres, d’une cuisine et d’une salle de bains.Le terrain du bien est de 606 m².Cette maison est neuve.Il y a l’École Maternelle Jacques de Thevray, le Collège Claude Monet et l’École Élémentaire Jean Rostand à moins de 10 minutes à pied. La nationale N27 est accessible à 13 km. On trouve un tennis, des commerces, deux boulangeries, un bureau de poste, trois boucheries-charcuteries et deux épiceries dans les environs.Elle est proposée à l’achat pour 157 500 €.N’hésitez pas à prendre contact avec Natacha LECLERC (tél : (Numéro supprimé)) pour plus d’informations sur ce bien ou sur les modalités de vente.
Douvrend
TERRAIN ET MAISONMaison de 4 pièces (84 m²) à vendre à DouvrendPROCHE DE DIEPPE – MAISON 4 PIÈCES NEUVEÀ vendre : située à 16 km de la Manche et à 18 km de Dieppe, à Douvrend (76630), nous vous proposons cette maison de 4 pièces de plain-pied de 84 m². Son intérieur comporte trois chambres, une cuisine et une salle de bains.Le terrain de la maison s’étend sur 3 200 m².La maison est neuve.Il y a une école maternelle dans le quartier. Les autoroutes A28 et A29 et la nationale N27 sont accessibles à moins de 19 km.Elle est à vendre pour la somme de 171 000 €.Contactez notre agence (LECLERC Natacha : (Numéro supprimé)) pour tout renseignement sur cette maison. Les Maisons Extraco Dieppe vous accompagne à toutes les étapes de l’achat et dans toutes vos démarches.
Dieppe
TERRAIN ET MAISONMaison F4 (74 m²) à vendre à Petit-CauxMAISON 4 PIÈCES NEUVE – PROCHE DE DIEPPEÀ vendre : à 8 km de la Manche et à 11 km de Dieppe, nous vous présentons cette maison de 4 pièces de plain-pied de 74 m² et de 900 m² de terrain à Petit-Caux (76370). Elle inclut trois chambres, une cuisine et une salle de bains.La maison est neuve.Il y a une école primaire dans le quartier. Niveau transports en commun, on trouve les gares Dieppe et Saint-Aubin-sur-Scie à moins de 10 minutes en voiture. La nationale N27 est accessible à 13 km. Il y a une bibliothèque et un commerce à proximité du logement.Elle est proposée à l’achat pour 198 500 €.N’hésitez pas à prendre contact avec Natacha LECLERC (tél : (Numéro supprimé)) pour obtenir de plus amples renseignements sur la maison ou sur les démarches à suivre.
Dieppe
TERRAIN ET MAISONVENTE d’une maison F3 (124 m²) à Petit-CauxPROCHE DE DIEPPE – MAISON 3 PIÈCES NEUVEÀ vendre : située à 8 km de la Manche et à 11 km de Dieppe, laissez vous charmer par à Petit-Caux (76370), cette maison de 3 pièces de plain-pied de 124 m². Son intérieur propose deux chambres, une cuisine et une salle de bains.Le terrain du bien s’étend sur 1 420 m².La maison est neuve.Il y a une école primaire dans le quartier. Côté transports, on trouve deux gares (Dieppe et Saint-Aubin-sur-Scie) à moins de 10 minutes en voiture. Il y a un accès à la nationale N27 à 13 km. Il y a une bibliothèque et un commerce dans les environs.Son prix de vente est de 349 500 €.N’hésitez pas à prendre contact avec notre agence (Natacha LECLERC : (Numéro supprimé)) pour obtenir de plus amples renseignements sur cette maison ou sur les démarches à suivre. Les Maisons Extraco Dieppe vous accompagne à toutes les étapes de l’achat et dans tous vos projets immobiliers.
Saint-Nicolas-d'Aliermont
TERRAINVENTE : terrain de 606 m² à Saint-Nicolas-d’AliermontPROCHE DE DIEPPEGrand terrain en vente à 10 km de la Manche et à deux pas de Dieppe. De 606 m², ce terrain se situe dans Saint-Nicolas-d’Aliermont (76510). L’École Maternelle Jacques de Thevray, le Collège Claude Monet et l’École Élémentaire Jean Rostand sont implantés à moins de 10 minutes à pied. La nationale N27 est accessible à 13 km. On trouve un tennis, des commerces, deux boulangeries, trois boucheries-charcuteries, un bureau de poste et deux épiceries dans les environs.Son prix de vente est de 59 500 €. Contactez Natacha LECLERC (tél : (Numéro supprimé)) pour toute information sur ce terrain ou sur les modalités de vente. Les Maisons Extraco Dieppe est là pour vous accompagner à toutes les étapes de l’achat.
Dieppe
TERRAIN ET MAISONVENTE d’une maison de 5 pièces (113 m²) à Petit-CauxPROCHE DE DIEPPE – MAISON 5 PIÈCES NEUVEEn vente : localisée à 8 km de la Manche et à deux pas de Dieppe, nous sommes ravis de vous proposer cette maison de 5 pièces de 113 m² à Petit-Caux (76370).Il s’agit d’une maison de 2 niveaux. Elle est composée de trois chambres, d’une cuisine et de deux salles de bains. La maison est neuve.Le terrain de la propriété s’étend sur 900 m².Il y a une école primaire dans le quartier. Côté transports, on trouve les gares Dieppe et Saint-Aubin-sur-Scie à moins de 10 minutes en voiture. On trouve un accès à la nationale N27 à 13 km. Il y a une bibliothèque et un commerce à proximité du logement.Elle est proposée à l’achat pour 299 500 €.Prenez contact avec Natacha LECLERC (tél : (Numéro supprimé)) pour tout renseignement sur cette maison. Les Maisons Extraco Dieppe vous accompagne dans toutes vos démarches et à toutes les étapes de l’achat.
Saint-Nicolas-d'Aliermont
TERRAIN ET MAISONMaison de 3 pièces (80 m²) en vente à Saint-Nicolas-d’AliermontMAISON 3 PIÈCES NEUVE – PROCHE DE DIEPPEEn vente : localisée à 10 km de la Manche et à 12 km de Dieppe, Les Maisons Extraco Dieppe vous propose cette maison de 3 pièces de plain-pied de 80 m² à Saint-Nicolas-d’Aliermont (76510).Conçue de plain-pied, elle inclut deux chambres, une cuisine et une salle de bains. La maison est neuve.Le terrain du bien s’étend sur 606 m².Il y a l’École Maternelle Jacques de Thevray, le Collège Claude Monet et l’École Élémentaire Jean Rostand à moins de 10 minutes à pied. On trouve un accès à la nationale N27 à 13 km. On trouve un tennis, des commerces, deux boulangeries, deux épiceries, un bureau de poste et trois boucheries-charcuteries à proximité de la maison.Son prix de vente est de 198 500 €.Contactez Natacha LECLERC (tél : (Numéro supprimé)) pour tout renseignement sur la maison, sur les modalités de vente ou sur les démarches à suivre.
Petit-Caux
TERRAIN ET MAISONBiville-sur-Mer : maison de 4 pièces (96 m²) à vendreMAISON 4 PIÈCES NEUVE – PROCHE DE DIEPPEÀ vendre à 2 km de la Manche et à deux pas de Dieppe, notre agence Les Maisons Extraco Dieppe est heureuse de vous présenter à Biville-sur-Mer (76630), cette maison de 4 pièces de plain-pied de 96 m². Conçue de plain-pied, elle se divise en trois chambres, une cuisine et deux salles de bains.Le terrain du bien est de 1 000 m².Cette maison est neuve.L’École Élémentaire de Biville se trouve à moins de 10 minutes à pied. Il y a un tennis, une bibliothèque et une boulangerie à proximité.Elle est proposée à l’achat pour 257 400 €.Prenez contact avec Natacha LECLERC (tél : (Numéro supprimé)) pour toute information sur cette maison, sur les modalités de vente ou sur les démarches à suivre. Les Maisons Extraco Dieppe vous accompagne à toutes les étapes de l’achat et dans tous vos projets immobiliers.
L’actualité immobilière à Sauchay
27/11/2023
02/11/2023
30/10/2023
20/10/2023
16/10/2023
16/10/2023