Maison à construire à Saint-Aubin-Épinay (76160)
Images
Description
VENTE d'une maison F6 (89 m²) à Saint-Aubin-Épinay
MAISON 6 PIÈCES NEUVE - PROCHE DE ROUEN
À vendre : localisée à quelques kilomètres de Rouen, notre agence Maisons Balency Boos est ravie de vous présenter cette maison de 6 pièces de 89 m² et de 800 m² de terrain à Saint-Aubin-Épinay (76160).
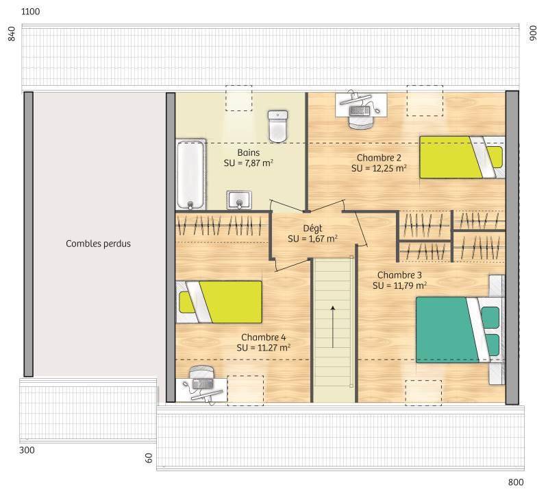
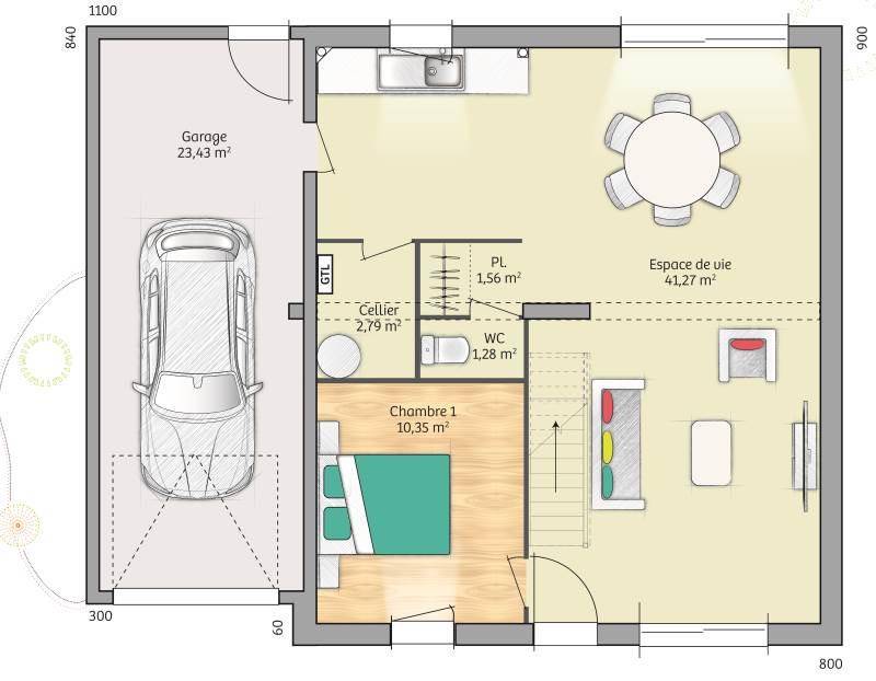
Cette maison comporte 2 niveaux. Elle se divise en quatre chambres, une cuisine et une salle de bains. Cette maison est neuve.
Des établissements scolaires primaires sont implantés à moins de 10 minutes à pied, tout comme, parmi lesquels l'École Maternelle l'Eau Vive. Niveau transports en commun, il y a quatre gares à moins de 10 minutes en voiture. Les autoroutes A28 et A150 et les nationales N28 et N338 sont accessibles à moins de 9 km.
Son prix de vente est de 310 000 €.
Contactez notre agence (MASSON Sébastien : (Numéro supprimé)) pour toute information sur cette maison ou sur les démarches à suivre. Maisons Balency Boos est là pour vous accompagner à toutes les étapes de votre projet.
Annonce proposée par un Agent Commercial Partenaire.
Logement susceptibles de vous intéresser
Nous vous proposons de découvrir aussi cette sélection de logements situés à moins de 10km de Saint-Aubin-Épinay et qui seraient susceptibles de vous intéresser.
Amfreville-la-Mi-Voie
TERRAIN ET MAISONMaison de 7 pièces (158 m²) à vendre à Amfreville-la-Mi-VoieIDÉALEMENT SITUÉE – MAISON 7 PIÈCES NEUVEEn vente à 5 km de Rouen, nous sommes ravis de vous présenter cette maison de 7 pièces de 158 m² et de 725 m² de terrain idéalement située dans Amfreville-la-Mi-Voie (76920).Cette maison compte 2 niveaux. Elle inclut quatre chambres, une cuisine et trois salles de bains. Cette maison est neuve.Cette maison est située dans un quartier recherché. On trouve l’École Maternelle Louise Michel, l’École Élémentaire Gérard Philipe et l’École Élémentaire Marcel Van à moins de 10 minutes à pied. Niveau transports, il y a sept gares à moins de 10 minutes en voiture. Des autoroutes et les nationales N28, N338 et N138 sont accessibles à moins de 10 km. On trouve une bibliothèque, un tennis, deux boulangeries, des commerces, une épicerie, un bureau de poste et une boucherie-charcuterie dans les environs.Elle est proposée à l’achat pour 499 000 €.Prenez contact avec Julien THOMAS ((Numéro supprimé)) pour toute information sur le bien, sur les démarches à suivre ou sur les modalités de vente.
Amfreville-la-Mi-Voie
TERRAIN ET MAISONVENTE d’une maison T5 (148 m²) à Amfreville-la-Mi-VoieEMPLACEMENT PRIVILÉGIÉ – MAISON 5 PIÈCES NEUVEÀ 5 km de Rouen, nous sommes ravis de vous proposer cette maison de 5 pièces de 148 m² et de 500 m² de terrain bénéficiant d’un emplacement privilégié dans Amfreville-la-Mi-Voie (76920).Cette maison possède 2 niveaux. Elle est composée de quatre chambres, d’une cuisine et de deux salles de bains. Cette maison est neuve.La maison se situe dans un secteur convoité. On trouve l’École Maternelle Louise Michel, l’École Élémentaire Gérard Philipe et l’École Élémentaire Marcel Van à moins de 10 minutes à pied. Niveau transports en commun, il y a sept gares à moins de 10 minutes en voiture. Des autoroutes et les nationales N28, N338 et N138 sont accessibles à moins de 10 km. On trouve une bibliothèque, un tennis, deux boulangeries, des commerces, une épicerie, un bureau de poste et une boucherie-charcuterie à quelques minutes de la maison.Elle est à vendre pour la somme de 469 000 €.Prenez contact avec notre agence (THOMAS Julien : (Numéro supprimé)) pour obtenir de plus amples renseignements sur la maison, sur les modalités de vente ou sur les démarches à suivre. Les Maisons Extraco Pont-de-l’Arche est là pour vous accompagner à toutes les étapes de l’achat.
Amfreville-la-Mi-Voie
TERRAINMaison neuve et prête à livrer sur un terrain de 725 m² en vente en VEFA à Amfreville-la-Mi-Voie. (prix terrain à titre indicatif)Idéalement situé – En vente : Faites l’acquisition de cette magnifique maison dernière génération au prix de 499 000€ à Amfreville-la-Mi-Voie (76920).Proche gares, écoles, bibliothèque, tennis, boulangeries, commerces, bureau de poste, boucherie-charcuterie et épicerie. Autoroutes et nationales à 10 km. Rouen à 5 km.Son prix de vente est de 131 000 €. N’hésitez pas à prendre contact avec notre agence (THOMAS Julien : (Numéro supprimé)) pour tout renseignement sur le terrain.
Bois-l'Évêque
TERRAIN ET MAISONMaison idéalement située à BOIS-L’EVEQUE sur un terrain de 504 m². À proximité, dans le bourg : école, boulangerie, parc pour enfants, bus vert. Cette maison contemporaine bénéficie d’un agencement agréable : – Salon/séjour avec cuisine ouverte de 50 m², avec une grande baie coulissante de 2,80 m en alu, – cellier, – 3 chambres avec placards, – suite parentale avec dressing et douche à l’italienne, – salle de bains avec baignoire et douche, – garage de 20m². Isolation renforcée avec système de chauffage très économique par pompe à chaleur. Maison certifiée RE20. DPE : A / GSE : B.Venez nous rencontrer et visiter notre showroom : Maisons EXTRACO – 11 Rue Jacques Monod, 76130 Mont-Saint-AignanÉtude gratuite auprès de votre conseiller : Floriane LEBOUCHER ((Numéro supprimé))(Premier échange par SMS possible)
Amfreville-la-Mi-Voie
TERRAINVENTE en VEFA : Maison neuve et prête à livrer sur un terrain de 500 m² à Amfreville-la-Mi-Voie. (prix terrain à titre indicatif)Emplacement privilégié – À proximité des écoles et commerces, maison contemporaine en vente au prix de 469 000€ à Amfreville-la-Mi-Voie (76920).À proximité : gares, écoles, bibliothèque, tennis, boulangeries, commerces, bureau de poste, boucherie-charcuterie et épicerie. Accès autoroutes et nationales à 10 km. Rouen à 5 km.Il est proposé à l’achat pour 129 000 €. Contactez notre agence (THOMAS Julien : (Numéro supprimé)) pour toute information sur le terrain. Les Maisons Extraco Pont-de-l’Arche est là pour vous accompagner à toutes les étapes de l’achat.
Bois-l'Évêque
TERRAINÀ BOIS-L’EVEQUE, terrain constructible à acheter.Sur la commune de BOIS-L’EVEQUE, opportunité à saisir avec ce terrain. Vous pourrez exploiter une surface de 504 m2 pour créer votre future maison. N’hésitez pas à contacter Floriane LEBOUCHER ((Numéro supprimé)) des Maisons EXTRACO Mont-Saint-Aignan si vous avez des questions. Premiers échanges par SMS ou mail possible.LEBOUCHER Floriane(Numéro supprimé)
Servaville-Salmonville
TERRAIN ET MAISONMaison idéalement située à SERVAVILLE-SALMONVILLE sur un terrain de 851 m². À proximité, dans le bourg : école, boulangerie, parc pour enfants, bus vert. Cette maison contemporaine bénéficie d’un agencement agréable : – Salon/séjour avec cuisine ouverte de 50 m², avec une grande baie coulissante de 2,80 m en alu, – cellier, – 3 chambres avec placards, – suite parentale avec dressing et douche à l’italienne, – salle de bains avec baignoire et douche, – garage de 20m². Isolation renforcée avec système de chauffage très économique par pompe à chaleur. Maison certifiée RE20. DPE : A / GSE : B.Venez nous rencontrer et visiter notre showroom : Maisons EXTRACO – 11 Rue Jacques Monod, 76130 Mont-Saint-AignanÉtude gratuite auprès de votre conseiller : Floriane LEBOUCHER ((Numéro supprimé))(Premier échange par SMS possible)
Servaville-Salmonville
TERRAIN ET MAISONMaison idéalement située à SERVAVILLE-SALMONVILLE sur un terrain de 851 m². À proximité, dans le bourg : école, boulangerie, parc pour enfants, bus vert. Cette maison contemporaine bénéficie d’un agencement agréable : – Salon/séjour avec cuisine ouverte de 50 m², avec une grande baie coulissante de 2,80 m en alu, – cellier, – 3 chambres avec placards, – suite parentale avec dressing et douche à l’italienne, – salle de bains avec baignoire et douche, – garage de 20m². Isolation renforcée avec système de chauffage très économique par pompe à chaleur. Maison certifiée RE20. DPE : A / GSE : B.Venez nous rencontrer et visiter notre showroom : Maisons EXTRACO – 11 Rue Jacques Monod, 76130 Mont-Saint-AignanÉtude gratuite auprès de votre conseiller : Floriane LEBOUCHER ((Numéro supprimé))(Premier échange par SMS possible)
Bois-l'Évêque
TERRAIN ET MAISONMaison idéalement située à BOIS-L’EVEQUE sur un terrain de 504 m². À proximité, dans le bourg : école, boulangerie, parc pour enfants, bus vert. Cette maison contemporaine bénéficie d’un agencement agréable : – Salon/séjour avec cuisine ouverte de 50 m², avec une grande baie coulissante de 2,80 m en alu, – cellier, – 3 chambres avec placards, – suite parentale avec dressing et douche à l’italienne, – salle de bains avec baignoire et douche, – garage de 20m². Isolation renforcée avec système de chauffage très économique par pompe à chaleur. Maison certifiée RE20. DPE : A / GSE : B.Venez nous rencontrer et visiter notre showroom : Maisons EXTRACO – 11 Rue Jacques Monod, 76130 Mont-Saint-AignanÉtude gratuite auprès de votre conseiller : Floriane LEBOUCHER ((Numéro supprimé))(Premier échange par SMS possible)
L’actualité immobilière à Saint-Aubin-Épinay
27/11/2023
02/11/2023
30/10/2023
20/10/2023
16/10/2023
16/10/2023