Maison à construire à Saint-Denis-sur-Scie (76890)
Images
Description
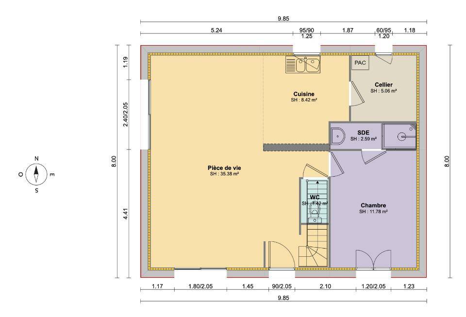
VENTE d'une maison de 9 pièces (124 m²) à Saint-Denis-sur-Scie
MAISON 9 PIÈCES NEUVE - PROCHE DE ROUEN
À 25 km de la Manche et à 29 km de Rouen, votre agence Maisons Balency Boos est heureuse de vous présenter en vente à Saint-Denis-sur-Scie (76890), cette maison de 9 pièces de 124 m². Elle se divise en cinq chambres, une cuisine et trois salles de bains.
Le terrain de cette maison est de 1 500 m².
Cette maison compte 2 niveaux. Elle est neuve.
Trois établissements scolaires sont implantés à moins de 10 minutes en voiture, dont le Collège René Coty et le Collège Jean Malaurie, tout comme une crèche à moins de 10 minutes à pied. Niveau transports en commun, il y a trois gares (Auffay, Saint-Victor-l'Abbaye et Longueville-sur-Scie) à moins de 10 minutes en voiture. Les autoroutes A151 et A29 et la nationale N27 sont accessibles à moins de 8 km. On trouve des tennis, des bibliothèques, un bassin de natation, des commerces, trois supermarchés, des boulangeries, des boucheries-charcuteries et deux bureaux de poste dans les environs. Enfin, le marché Place Blekedé anime le quartier chaque vendredi matin.
Son prix de vente est de 264 000 €.
Contactez notre constructeur (MASSON Sébastien : (Numéro supprimé)) pour toute question sur cette maison ou sur les démarches à suivre.
Annonce proposée par un Agent Commercial Partenaire.
Logement susceptibles de vous intéresser
Nous vous proposons de découvrir aussi cette sélection de logements situés à moins de 10km de Saint-Denis-sur-Scie et qui seraient susceptibles de vous intéresser.
Frichemesnil
TERRAIN ET MAISONMaison idéalement située à FRICHEMESNIL sur un terrain de 677 m². À proximité, dans le bourg : école, boulangerie, parc pour enfants, bus vert. Cette maison contemporaine bénéficie d’un agencement agréable : – Salon/séjour avec cuisine ouverte de 50 m², avec une grande baie coulissante de 2,80 m en alu, – cellier, – 3 chambres avec placards, – suite parentale avec dressing et douche à l’italienne, – salle de bains avec baignoire et douche, – garage de 20m². Isolation renforcée avec système de chauffage très économique par pompe à chaleur. Maison certifiée RE20. DPE : A / GSE : B.Venez nous rencontrer et visiter notre showroom : Maisons EXTRACO – 11 Rue Jacques Monod, 76130 Mont-Saint-AignanÉtude gratuite auprès de votre conseiller : Floriane LEBOUCHER ((Numéro supprimé))(Premier échange par SMS possible)
Frichemesnil
TERRAIN ET MAISONMaison idéalement située à FRICHEMESNIL sur un terrain de 677 m². À proximité, dans le bourg : école, boulangerie, parc pour enfants, bus vert. Cette maison contemporaine bénéficie d’un agencement agréable : – Salon/séjour avec cuisine ouverte de 50 m², avec une grande baie coulissante de 2,80 m en alu, – cellier, – 3 chambres avec placards, – suite parentale avec dressing et douche à l’italienne, – salle de bains avec baignoire et douche, – garage de 20m². Isolation renforcée avec système de chauffage très économique par pompe à chaleur. Maison certifiée RE20. DPE : A / GSE : B.Venez nous rencontrer et visiter notre showroom : Maisons EXTRACO – 11 Rue Jacques Monod, 76130 Mont-Saint-AignanÉtude gratuite auprès de votre conseiller : Floriane LEBOUCHER ((Numéro supprimé))(Premier échange par SMS possible)
Frichemesnil
TERRAIN ET MAISONMaison idéalement située à FRICHEMESNIL sur un terrain de 677 m². À proximité, dans le bourg : école, boulangerie, parc pour enfants, bus vert. Cette maison contemporaine bénéficie d’un agencement agréable : – Salon/séjour avec cuisine ouverte de 50 m², avec une grande baie coulissante de 2,80 m en alu, – cellier, – 3 chambres avec placards, – suite parentale avec dressing et douche à l’italienne, – salle de bains avec baignoire et douche, – garage de 20m². Isolation renforcée avec système de chauffage très économique par pompe à chaleur. Maison certifiée RE20. DPE : A / GSE : B.Venez nous rencontrer et visiter notre showroom : Maisons EXTRACO – 11 Rue Jacques Monod, 76130 Mont-Saint-AignanÉtude gratuite auprès de votre conseiller : Floriane LEBOUCHER ((Numéro supprimé))(Premier échange par SMS possible)
Frichemesnil
TERRAINÀ FRICHEMESNIL, terrain constructible à acheter.Sur la commune de FRICHEMESNIL, opportunité à saisir avec ce terrain. Vous pourrez exploiter une surface de 677 m2 pour créer votre future maison. N’hésitez pas à contacter Floriane LEBOUCHER ((Numéro supprimé)) des Maisons EXTRACO Mont-Saint-Aignan si vous avez des questions. Premiers échanges par SMS ou mail possible.LEBOUCHER Floriane(Numéro supprimé)
La Crique
TERRAINÀ La Crique, terrain constructible à acheter. Sur la commune de La Crique, opportunité à saisir avec ce terrain.Vous pourrez exploiter une surface de 750 m2 pour créer votre future maison.N’hésitez pas à contacter Justine LEROY ((Numéro supprimé)) des Maisons Extraco Les Essarts si vous avez des questions. Premiers échanges par SMS ou mail possible.
Saint-Denis-sur-Scie
TERRAIN ET MAISONMaison de 4 pièces (60 m²) en vente à Saint-Denis-sur-ScieMAISON 4 PIÈCES NEUVE – PROCHE DE ROUENEn vente : située à 25 km de la Manche et à deux pas de Rouen, nous vous présentons à Saint-Denis-sur-Scie (76890), cette maison de 4 pièces de plain-pied de 60 m². Elle inclut deux chambres, une cuisine et une salle de bains.Le terrain du bien s’étend sur 1 500 m².Cette maison est neuve.On trouve trois établissements scolaires à moins de 10 minutes en voiture, dont le Collège René Coty et le Collège Jean Malaurie et une structure d’accueil pour les enfants en bas âge à moins de 10 minutes à pied. Niveau transports, il y a trois gares (Auffay, Saint-Victor-l’Abbaye et Longueville-sur-Scie) à moins de 10 minutes en voiture. Les autoroutes A151 et A29 et la nationale N27 sont accessibles à moins de 8 km. On trouve des tennis, des bibliothèques, un bassin de natation, des commerces, trois supermarchés, des boulangeries, des boucheries-charcuteries et une supérette dans les environs. Enfin, le marché Place Blekedé a lieu chaque vendredi matin.Elle est à vendre pour la somme de 176 000 €.Contactez Sébastien MASSON (tél : (Numéro supprimé)) pour toute information sur la maison. Maisons Balency Boos vous accompagne dans toutes vos démarches et dans tous vos projets immobiliers.Annonce proposée par un Agent Commercial Partenaire.
Saint-Denis-sur-Scie
TERRAIN ET MAISONMaison de 7 pièces (91 m²) en vente à Saint-Denis-sur-SciePROCHE DE ROUEN – MAISON 7 PIÈCES NEUVEEn vente : à 25 km de la Manche et à deux pas de Rouen, nous vous présentons cette maison de 7 pièces de 91 m² et de 1 500 m² de terrain à Saint-Denis-sur-Scie (76890). Elle comporte quatre chambres, une cuisine et une salle de bains.Cette maison possède 2 niveaux. Elle est neuve.Il y a trois établissements scolaires à moins de 10 minutes en voiture,, comme le Collège René Coty ou le Collège Jean Malaurie et une crèche à moins de 10 minutes à pied. Niveau transports, on trouve trois gares (Auffay, Saint-Victor-l’Abbaye et Longueville-sur-Scie) à moins de 10 minutes en voiture. Les autoroutes A151 et A29 et la nationale N27 sont accessibles à moins de 8 km. Il y a des tennis, des bibliothèques, un bassin de natation, des commerces, trois supermarchés, des boulangeries, quatre épiceries et une supérette à quelques minutes. Le marché Place Blekedé a lieu tous les vendredis matin.Son prix de vente est de 245 000 €.Prenez contact avec notre agence (MASSON Sébastien : (Numéro supprimé)) pour obtenir de plus amples informations sur cette maison, sur les modalités de vente ou sur les démarches à suivre. Maisons Balency Boos est là pour vous accompagner dans tous vos projets immobiliers.Annonce proposée par un Agent Commercial Partenaire.
Saint-Denis-sur-Scie
TERRAIN ET MAISONVENTE d’une maison de 9 pièces (124 m²) à Saint-Denis-sur-ScieMAISON 9 PIÈCES NEUVE – PROCHE DE ROUENÀ 25 km de la Manche et à 29 km de Rouen, votre agence Maisons Balency Boos est heureuse de vous présenter en vente à Saint-Denis-sur-Scie (76890), cette maison de 9 pièces de 124 m². Elle se divise en cinq chambres, une cuisine et trois salles de bains.Le terrain de cette maison est de 1 500 m².Cette maison compte 2 niveaux. Elle est neuve.Trois établissements scolaires sont implantés à moins de 10 minutes en voiture, dont le Collège René Coty et le Collège Jean Malaurie, tout comme une crèche à moins de 10 minutes à pied. Niveau transports en commun, il y a trois gares (Auffay, Saint-Victor-l’Abbaye et Longueville-sur-Scie) à moins de 10 minutes en voiture. Les autoroutes A151 et A29 et la nationale N27 sont accessibles à moins de 8 km. On trouve des tennis, des bibliothèques, un bassin de natation, des commerces, trois supermarchés, des boulangeries, des boucheries-charcuteries et deux bureaux de poste dans les environs. Enfin, le marché Place Blekedé anime le quartier chaque vendredi matin.Son prix de vente est de 264 000 €.Contactez notre constructeur (MASSON Sébastien : (Numéro supprimé)) pour toute question sur cette maison ou sur les démarches à suivre.Annonce proposée par un Agent Commercial Partenaire.
Étaimpuis
TERRAIN ET MAISONA construire : maison T9 (124 m²) à ÉtaimpuisIDÉALEMENT SITUÉE – MAISON 9 PIÈCES NEUVEÀ vendre : à 32 km de la Manche et à deux pas de Rouen, nous vous présentons, idéalement située dans Étaimpuis (76850), cette maison de 9 pièces de 124 m². Son intérieur se divise en cinq chambres, une cuisine et trois salles de bains.Le terrain de la propriété s’étend sur 1 100 m².Cette maison compte 2 niveaux. Elle est neuve.La maison se trouve dans un quartier attractif. Il y a trois établissements scolaires à moins de 10 minutes en voiture, dont le Collège Jean Delacour et le Collège René Coty et une crèche à moins de 10 minutes à pied. Côté transports, on trouve les gares Saint-Victor-l’Abbaye, Clères et Auffay à moins de 10 minutes en voiture. Les autoroutes A151, A29 et A28 et la nationale N27 sont accessibles à moins de 9 km. Il y a des bibliothèques, des tennis, des commerces, des supermarchés, des boulangeries, des épiceries et quatre bureaux de poste à proximité du bien. Enfin, 2 marchés animent le quartier.Son prix de vente est de 244 631 €.Contactez notre agence (RENIER Célia : (Numéro supprimé)) pour tout renseignement sur la maison.Annonce proposée par un Agent Commercial Partenaire.
L’actualité immobilière à Saint-Denis-sur-Scie
27/11/2023
02/11/2023
30/10/2023
20/10/2023
16/10/2023
16/10/2023