Maison à construire à Sainte-Marguerite-sur-Duclair (76480)
Images
Description
Sainte-Marguerite-sur-Duclair : maison de 6 pièces (114 m²) en vente
IDÉALEMENT SITUÉE - MAISON 6 PIÈCES NEUVE
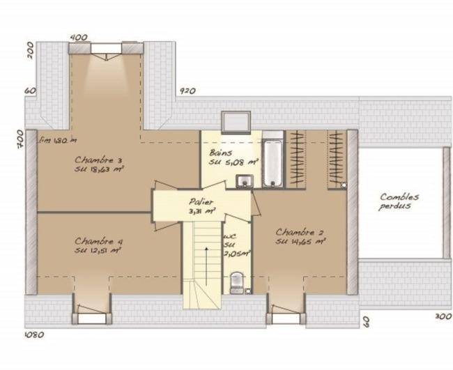
En vente à 39 km de la Manche et à 22 km de Rouen, nous sommes heureux de vous proposer, idéalement située dans Sainte-Marguerite-sur-Duclair (76480), cette maison de 6 pièces de 114 m² et de 938 m² de terrain.
Cette maison compte 2 niveaux. Elle se divise en quatre chambres, une cuisine et deux salles de bains. La maison est neuve.
La maison se situe dans un quartier prisé. On trouve l'École Maternelle Mary Poppins à moins de 10 minutes à pied. Niveau transports en commun, il y a les gares Barentin et Pavilly à moins de 10 minutes en voiture. L'autoroute A150 est accessible à 9 km. On trouve une boulangerie, un commerce et une épicerie à proximité.
Elle est à vendre pour la somme de 312 400 €.
N'hésitez pas à prendre contact avec notre agence (Aurélien LEOVANT : (Numéro supprimé)) pour plus d'informations sur la maison ou sur les démarches à suivre. Maisons Balency Boos est là pour vous accompagner à toutes les étapes de votre projet.
Annonce proposée par un Agent Commercial Partenaire.
Logement susceptibles de vous intéresser
Nous vous proposons de découvrir aussi cette sélection de logements situés à moins de 10km de Sainte-Marguerite-sur-Duclair et qui seraient susceptibles de vous intéresser.
Saint Martin de l'If
TERRAINFréville : terrain de 629 m² en ventePROCHE DE ROUENGrand terrain à 37 km de la Manche et à deux pas de Rouen. De 629 m², ce terrain se situe dans Fréville (76190). L’École Primaire de Betteville et l’École Primaire de Fréville sont implantées dans la commune. Niveau transports en commun, on trouve quatre gares à moins de 10 minutes en voiture. Les autoroutes A150 et A29 sont accessibles à moins de 9 km. Il y a un tennis, une bibliothèque, deux commerces et un bureau de poste à proximité.Il est à vendre pour la somme de 69 000 €. Contactez Sébastien LENFANT (tél : (Numéro supprimé)) pour toute information sur ce terrain, sur les modalités de vente ou sur les démarches à suivre. Donnez vie à vos projets immobiliers avec Extraco construction rénovation Yvetot.
Saint Martin de l'If
TERRAIN ET MAISONA construire: maison T4 (84 m²) à FrévilleCENTRE-VILLE – MAISON 4 PIÈCES NEUVEÀ quelques kilomètres de Rouen, Extraco construction rénovation Yvetot vous propose cette maison de 4 pièces de plain-pied de 84 m² et de 629 m² de terrain, à Fréville (76190), en centre-ville. Conçue de plain-pied, elle propose trois chambres, une cuisine et une salle de bains.Cette maison est neuve.On trouve l’École Primaire de Betteville et l’École Primaire de Fréville dans la commune. Côté transports en commun, il y a quatre gares à moins de 10 minutes en voiture. Les autoroutes A150 et A29 sont accessibles à moins de 9 km. On trouve un tennis, une bibliothèque, deux commerces et un bureau de poste à proximité.Elle est à vendre pour la somme de 230 560 €.N’hésitez pas à prendre contact avec notre agence (LENFANT Sébastien : (Numéro supprimé)) pour toute question sur la maison, sur les modalités de vente ou sur les démarches à suivre.
Saint Martin de l'If
TERRAIN ET MAISONMaison de 5 pièces (105 m²) à construire à FrévilleCENTRE-VILLE – MAISON 5 PIÈCES NEUVEÀ quelques kilomètres de Rouen, nous vous présentons cette maison de 5 pièces de 105 m² dans le centre de Fréville (76190).Cette maison comporte 2 niveaux. Elle comporte quatre chambres, une cuisine et deux salles de bains. Cette maison est neuve.Le terrain de la propriété est de 629 m².L’École Primaire de Betteville et l’École Primaire de Fréville sont implantées dans la commune. Niveau transports en commun, on trouve quatre gares à moins de 10 minutes en voiture. Les autoroutes A150 et A29 sont accessibles à moins de 9 km. Il y a un tennis, une bibliothèque, deux commerces et un bureau de poste à quelques minutes.Elle est proposée à l’achat pour 264 200 €.Contactez notre agence (LENFANT Sébastien : (Numéro supprimé)) pour plus d’informations sur la maison, sur les démarches à suivre ou sur les modalités de vente. Faites de vos projets immobiliers une réalité avec Extraco construction rénovation Yvetot.
Saint Martin de l'If
TERRAIN ET MAISONMaison T4 (85 m²) à construire à FrévilleCENTRE-VILLE – MAISON 4 PIÈCES NEUVEÀ 37 km de la Manche et à 23 km de Rouen, à vendre dans le centre de Fréville (76190), découvrez cette maison de 4 pièces de plain-pied de 85 m² et de 629 m² de terrain.Son intérieur dispose de trois chambres, d’une cuisine et d’une salle de bains. Cette maison est neuve.Il y a l’École Primaire de Betteville et l’École Primaire de Fréville dans la commune. Niveau transports en commun, on trouve quatre gares à moins de 10 minutes en voiture. Les autoroutes A150 et A29 sont accessibles à moins de 9 km. Il y a un tennis, une bibliothèque, deux commerces et un bureau de poste dans les environs.Elle est à vendre pour la somme de 233 680 €.Contactez Sébastien LENFANT ((Numéro supprimé)) pour tout renseignement sur la maison. Extraco construction rénovation Yvetot est là pour vous accompagner dans toutes vos démarches.
Saint Martin de l'If
TERRAIN ET MAISONA construire : maison de 4 pièces (83 m²) à FrévilleCENTRE-VILLE – MAISON 4 PIÈCES NEUVEÀ 37 km de la Manche et à deux pas de Rouen, en vente au coeur de Fréville (76190), laissez vous charmer par cette maison de 4 pièces de plain-pied de 83 m² et de 629 m² de terrain. Son intérieur est composé de trois chambres, d’une cuisine et d’une salle de bains.Cette maison est neuve.L’École Primaire de Betteville et l’École Primaire de Fréville sont implantées dans la commune. Côté transports, on trouve quatre gares à moins de 10 minutes en voiture. Les autoroutes A150 et A29 sont accessibles à moins de 9 km. Il y a un tennis, une bibliothèque, deux commerces et un bureau de poste à proximité.Elle est proposée à l’achat pour 236 970 €.Contactez notre agence (LENFANT Sébastien : (Numéro supprimé)) pour tout renseignement sur la maison, sur les modalités de vente ou sur les démarches à suivre. Extraco construction rénovation Yvetot est là pour vous accompagner à toutes les étapes de votre projet.
Saint-Pierre-de-Varengeville
TERRAINTerrain de 639 m² en vente à Saint-Pierre-de-VarengevilleIDÉALEMENT SITUÉ – PROCHE DE ROUENEn vente à 48 km de la Manche et à deux pas de Rouen à Saint-Pierre-de-Varengeville (76480), grand terrain. Ce terrain, avec vue sur espace vert, est orienté au sud-ouest. Dans un secteur attractif, le terrain idéalement situé est proche des écoles et des commerces. L’École Élémentaire Germaine Coty et l’École Maternelle Jacques Prévert sont implantées à moins de 10 minutes à pied. Niveau transports, on trouve quatre gares à moins de 10 minutes en voiture. Les autoroutes A150 et A151 sont accessibles à moins de 10 km. Il y a un tennis, une bibliothèque, une boulangerie, un supermarché, un commerce, une boucherie-charcuterie et un bureau de poste à proximité de la propriété.Ce terrain est proposé à l’achat pour 85 000 €. N’hésitez pas à prendre contact avec notre agence (COLLAY Lindsay : (Numéro supprimé)) pour plus d’informations sur le terrain ou sur les démarches à suivre. Maisons France Confort Sainte-Marie-des-Champs est là pour vous accompagner dans tous vos projets immobiliers.
Saint-Pierre-de-Varengeville
TERRAIN ET MAISONMaison T5 (85 m²) à construire à Saint-Pierre-de-VarengevilleIDÉALEMENT SITUÉE – MAISON 5 PIÈCES NEUVEÀ 48 km de la Manche et à 14 km de Rouen, découvrez cette maison de 5 pièces de plain-pied de 85 m² en vente, idéalement située dans Saint-Pierre-de-Varengeville (76480).Elle dispose de trois chambres, d’une cuisine et d’une salle de bains. Cette maison est neuve.Le terrain de la propriété est de 639 m².La maison se situe dans un quartier prisé. On trouve l’École Élémentaire Germaine Coty et l’École Maternelle Jacques Prévert à moins de 10 minutes à pied. Côté transports en commun, il y a quatre gares à moins de 10 minutes en voiture. Les autoroutes A150 et A151 sont accessibles à moins de 10 km. On trouve un tennis, une bibliothèque, une boulangerie, un supermarché, un commerce, une boucherie-charcuterie et un bureau de poste à quelques minutes.Elle est à vendre pour la somme de 247 619 €.Contactez notre agence (COLLAY Lindsay : (Numéro supprimé)) pour tout renseignement sur la maison ou sur les modalités de vente. Maisons France Confort Sainte-Marie-des-Champs est là pour vous accompagner dans toutes vos démarches.
Saint-Pierre-de-Varengeville
TERRAIN ET MAISONCONSTRUIRE : maison de 8 pièces (140 m²) à Saint-Pierre-de-VarengevilleIDÉALEMENT SITUÉE – MAISON 8 PIÈCES NEUVEÀ 48 km de la Manche et à 14 km de Rouen, en vente idéalement située dans Saint-Pierre-de-Varengeville (76480), nous sommes heureux de vous présenter cette maison de 8 pièces de 140 m² et de 639 m² de terrain. Elle offre cinq chambres, une cuisine et deux salles de bains.Il s’agit d’une maison de 2 niveaux. Elle est neuve.La maison se trouve dans un secteur recherché. Il y a l’École Élémentaire Germaine Coty et l’École Maternelle Jacques Prévert à moins de 10 minutes à pied. Côté transports, on trouve quatre gares à moins de 10 minutes en voiture. Les autoroutes A150 et A151 sont accessibles à moins de 10 km. Il y a un tennis, une bibliothèque, une boulangerie, un supermarché, un commerce, un bureau de poste et une boucherie-charcuterie à quelques minutes à peine.Elle est proposée à l’achat pour 323 315 €.Contactez notre agence (COLLAY Lindsay : (Numéro supprimé)) pour plus d’informations sur la maison.
Saint-Pierre-de-Varengeville
TERRAIN ET MAISONMaison de 5 pièces (110 m²) à construire à Saint-Pierre-de-VarengevilleIDÉALEMENT SITUÉE – MAISON 5 PIÈCES NEUVEA construire : située à 48 km de la Manche et à 14 km de Rouen, Maisons France Confort Sainte-Marie-des-Champs vous présente, idéalement située dans Saint-Pierre-de-Varengeville (76480), cette maison de 5 pièces de plain-pied de 110 m² et de 639 m² de terrain. Conçue de plain-pied, elle comporte quatre chambres, une cuisine et deux salles de bains.Cette maison est neuve.Cette maison se situe dans un secteur recherché. On trouve l’École Élémentaire Germaine Coty et l’École Maternelle Jacques Prévert à moins de 10 minutes à pied. Niveau transports, il y a quatre gares à moins de 10 minutes en voiture. Les autoroutes A150 et A151 sont accessibles à moins de 10 km. On trouve un tennis, une bibliothèque, une boulangerie, un supermarché, un commerce, une boucherie-charcuterie et un bureau de poste dans les environs.Son prix de vente est de 272 587 €.Contactez Lindsay COLLAY (tél : (Numéro supprimé)) pour tout renseignement sur la maison ou sur les démarches à suivre. Maisons France Confort Sainte-Marie-des-Champs est là pour vous accompagner à toutes les étapes de l’achat.
L’actualité immobilière à Sainte-Marguerite-sur-Duclair
27/11/2023
02/11/2023
30/10/2023
20/10/2023
16/10/2023
16/10/2023