Images
Description
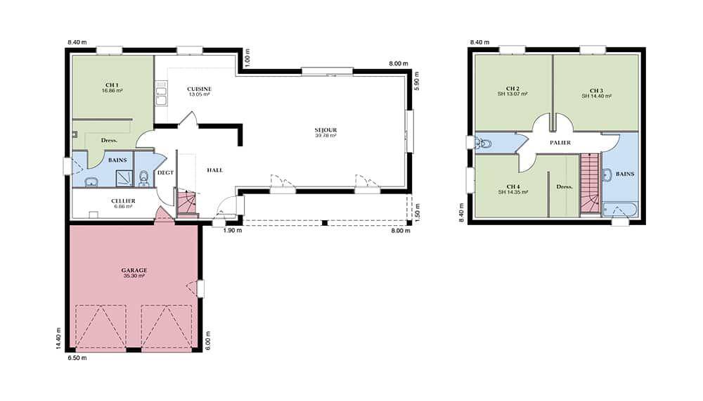
Nous vous proposons cette maison neuve, baptisée ""Barentine"", un modèle de résidence qui allie élégance et fonctionnalité, conçu pour répondre aux attentes des familles modernes. Avec une surface généreuse de 135 m², cette maison offre un espace de vie confortable et bien pensé, réparti en 4 chambres et 4 pièces principales, idéal pour accueillir une famille désireuse de confort et de bien-être.
La Barentine se distingue par son plan en L, optimisant l'espace et offrant une séparation naturelle entre les espaces de vie et l'espace nuit, pour un quotidien harmonieux. La présence d'une tour centrale ajoute un cachet inimitable à l'ensemble, faisant de cette maison un lieu unique où il fait bon vivre.
L'intégration d'un garage offre non seulement un espace de stationnement sécurisé mais aussi un espace de rangement supplémentaire, essentiel pour une vie de famille organisée. De plus, la maison dispose d'une deuxième salle de bains, garantissant confort et intimité pour tous les membres de la famille.
Conforme à la norme RE2020, la Barentine est une maison basse consommation, conçue avec une attention particulière portée à l'efficacité énergétique et à l'impact environnemental. Ce modèle intègre des options très demandées telles que des menuiseries en aluminium et un système de domotique avancé, offrant ainsi un confort de vie inégalé tout en maîtrisant votre consommation d'énergie.
L'extérieur de la maison peut être personnalisé avec un enduit bicolore, ajoutant une touche d'élégance et de personnalité à votre façade. La toiture, disponible en 2 ou 4 pans, complète le design provençal de cette demeure, faisant de la Barentine une maison prestigieuse et attachante qui saura vous séduire.
Choisir la Barentine, c'est opter pour une maison neuve, moderne et écologique, prête à accueillir votre famille dans les meilleures conditions. Ne manquez pas l'opportunité de construire la maison de vos rêves, une maison qui allie beauté architecturale, confort de vie et respec
Logement susceptibles de vous intéresser
Nous vous proposons de découvrir aussi cette sélection de logements situés à moins de 10km de Torcy-le-Petit et qui seraient susceptibles de vous intéresser.
Torcy-le-Petit
TERRAINVENTE : terrain de 612 m² à Torcy-le-PetitPROCHE DE DIEPPEGrand terrain en vente à 17 km de la Manche et à 13 km de Dieppe. De 612 m², ce terrain se situe dans Torcy-le-Petit (76590). Une école primaire est implantée dans le quartier. Niveau transports en commun, il y a la gare Longueville-sur-Scie à moins de 10 minutes en voiture. On trouve un accès à la nationale N27 à 9 km. On trouve un commerce et un supermarché dans les environs.Il est à vendre pour la somme de 48 000 €. Prenez contact avec Natacha LECLERC ((Numéro supprimé)) pour tout renseignement sur ce terrain, sur les modalités de vente ou sur les démarches à suivre. Concrétisez vos projets immobiliers avec Les Maisons Extraco Dieppe.
Le Bois-Robert
TERRAINLe Bois-Robert : terrain de 1 072 m² à vendrePROCHE DE DIEPPEÀ 13 km de la Manche et à deux pas de Dieppe au Bois-Robert (76590), grand terrain. Côté transports en commun, il y a deux gares (Longueville-sur-Scie et Saint-Aubin-sur-Scie) à moins de 10 minutes en voiture. On trouve un accès à la nationale N27 à 6 km. On trouve une bibliothèque à proximité du terrain.Il est à vendre pour la somme de 64 500 €. Contactez Natacha LECLERC (tél : (Numéro supprimé)) pour toute information sur ce terrain ou sur les démarches à suivre. Concrétisez vos projets immobiliers avec Les Maisons Extraco Dieppe.
Torcy-le-Petit
TERRAIN ET MAISONMaison de 5 pièces (100 m²) à vendre à Torcy-le-PetitMAISON 5 PIÈCES NEUVE – PROCHE DE DIEPPEÀ vendre à 17 km de la Manche et à 13 km de Dieppe, Les Maisons Extraco Dieppe vous présente cette maison de 5 pièces de 100 m² et de 612 m² de terrain à Torcy-le-Petit (76590). Elle se divise en quatre chambres, une cuisine et une salle de bains.Il s’agit d’une maison de 2 niveaux. Elle est neuve.Une école primaire est implantée dans le quartier. Côté transports, on trouve la gare Longueville-sur-Scie à moins de 10 minutes en voiture. La nationale N27 est accessible à 9 km. Il y a un commerce et un supermarché à quelques minutes de la maison.Elle est proposée à l’achat pour 225 000 €.Contactez Natacha LECLERC (tél : (Numéro supprimé)) pour toute information sur cette maison. Concrétisez vos projets immobiliers avec Les Maisons Extraco Dieppe.
Torcy-le-Petit
TERRAIN ET MAISONTorcy-le-Petit : maison T3 (50 m²) à vendrePROCHE DE DIEPPE – MAISON 3 PIÈCES NEUVEEn vente : située à 17 km de la Manche et à quelques kilomètres de Dieppe, Les Maisons Extraco Dieppe vous propose cette maison de 3 pièces de plain-pied de 50 m² à Torcy-le-Petit (76590). Son intérieur offre deux chambres, une cuisine et une salle de bains.Le terrain de cette maison s’étend sur 612 m².Cette maison est neuve.Il y a une école primaire dans le quartier. Côté transports, on trouve la gare Longueville-sur-Scie à moins de 10 minutes en voiture. On trouve un accès à la nationale N27 à 9 km. Il y a un commerce et un supermarché à quelques minutes à peine.Son prix de vente est de 147 000 €.Contactez Natacha LECLERC (tél : (Numéro supprimé)) pour obtenir de plus amples informations sur la maison, sur les modalités de vente ou sur les démarches à suivre. Les Maisons Extraco Dieppe est là pour vous accompagner à toutes les étapes de votre projet.
Torcy-le-Petit
TERRAIN ET MAISONVENTE d’une maison F4 (81 m²) à Torcy-le-PetitMAISON 4 PIÈCES NEUVE – PROCHE DE DIEPPEEn vente : localisée à 17 km de la Manche et à deux pas de Dieppe, nous vous présentons à Torcy-le-Petit (76590), cette maison de 4 pièces de 81 m² et de 612 m² de terrain.Il s’agit d’une maison de 2 niveaux. Elle est composée de deux chambres, d’une cuisine et d’une salle de bains. Cette maison est neuve.Il y a une école primaire dans le quartier. Niveau transports en commun, on trouve la gare Longueville-sur-Scie à moins de 10 minutes en voiture. La nationale N27 est accessible à 9 km. Il y a un commerce et un supermarché dans les environs.Son prix de vente est de 187 000 €.Prenez contact avec notre agence (LECLERC Natacha : (Numéro supprimé)) pour plus de renseignements sur cette propriété ou sur les modalités de vente. Les Maisons Extraco Dieppe vous accompagne dans toutes vos démarches et dans tous vos projets immobiliers.
Le Bois-Robert
TERRAIN ET MAISONLe Bois-Robert : maison de 5 pièces (105 m²) en venteMAISON 5 PIÈCES NEUVE – PROCHE DE DIEPPEÀ vendre à 13 km de la Manche et à quelques kilomètres de Dieppe, nous vous proposons cette maison de 5 pièces de 105 m² et de 1 072 m² de terrain au Bois-Robert (76590). Son intérieur compte quatre chambres, une cuisine et deux salles de bains.Cette maison comporte 2 niveaux. Elle est neuve.Niveau transports en commun, il y a les gares Longueville-sur-Scie et Saint-Aubin-sur-Scie à moins de 10 minutes en voiture. On trouve un accès à la nationale N27 à 6 km. On trouve une bibliothèque dans les environs.Son prix de vente est de 231 900 €.Contactez notre agence (LECLERC Natacha : (Numéro supprimé)) pour plus de renseignements sur cette maison ou sur les modalités de vente. Les Maisons Extraco Dieppe vous accompagne à toutes les étapes de l’achat et dans toutes vos démarches.
Le Bois-Robert
TERRAIN ET MAISONLe Bois-Robert : maison T4 (75 m²) en ventePROCHE DE DIEPPE – MAISON 4 PIÈCES NEUVEÀ vendre à 13 km de la Manche et à 10 km de Dieppe, au Bois-Robert (76590), Les Maisons Extraco Dieppe vous présente cette maison de 4 pièces de plain-pied de 75 m². Son intérieur propose trois chambres, une cuisine et une salle de bains.Le terrain du bien est de 1 072 m².Cette maison est neuve.Côté transports en commun, il y a deux gares (Longueville-sur-Scie et Saint-Aubin-sur-Scie) à moins de 10 minutes en voiture. La nationale N27 est accessible à 6 km. On trouve une bibliothèque à quelques minutes à peine.Son prix de vente est de 213 600 €.Contactez Natacha LECLERC ((Numéro supprimé)) pour obtenir de plus amples renseignements sur cette maison, sur les modalités de vente ou sur les démarches à suivre.
Le Bois-Robert
TERRAIN ET MAISONMaison F4 (74 m²) à vendre au Bois-RobertPROCHE DE DIEPPE – MAISON 4 PIÈCES NEUVEÀ 13 km de la Manche et à quelques kilomètres de Dieppe, en vente au Bois-Robert (76590), nous sommes heureux de vous proposer cette maison de 4 pièces de plain-pied de 74 m². Son intérieur dispose de trois chambres, d’une cuisine et d’une salle de bains.Le terrain de la maison s’étend sur 1 072 m².La maison est neuve.Côté transports, il y a deux gares (Longueville-sur-Scie et Saint-Aubin-sur-Scie) à moins de 10 minutes en voiture. Il y a un accès à la nationale N27 à 6 km. On trouve une bibliothèque dans les environs.Son prix de vente est de 206 500 €.Prenez contact avec Natacha LECLERC ((Numéro supprimé)) pour toute question sur cette maison, sur les modalités de vente ou sur les démarches à suivre. Les Maisons Extraco Dieppe vous accompagne à toutes les étapes de l’achat et dans tous vos projets immobiliers.
Martigny
TERRAINVENTE d’un terrain de 1 690 m² à MartignyPROCHE DE DIEPPEÀ Martigny (76880) à 11 km de la Manche et à 8 km de Dieppe, découvrez ce terrain de 1 690 m². Il y a l’École Maternelle André Tavernier à moins de 10 minutes à pied. Niveau transports, on trouve les gares Saint-Aubin-sur-Scie, Longueville-sur-Scie et Dieppe à moins de 10 minutes en voiture. On trouve un accès à la nationale N27 à 7 km. Il y a une bibliothèque dans les environs.Il est proposé à l’achat pour 85 000 €. Contactez notre agence (Natacha LECLERC : (Numéro supprimé)) pour tout renseignement sur ce terrain ou sur les modalités de vente. Donnez vie à vos projets immobiliers avec Les Maisons Extraco Dieppe.
L’actualité immobilière à Torcy-le-Petit
27/11/2023
02/11/2023
30/10/2023
20/10/2023
16/10/2023
16/10/2023