Maison à construire à Tourville-la-Rivière (76410)
Images
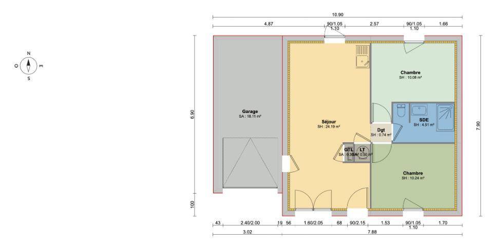
Description
VENTE d'une maison de 4 pièces (50 m²) à Tourville-la-Rivière
IDÉALEMENT SITUÉE - MAISON 4 PIÈCES NEUVE
En vente : située à 12 km de Rouen, nous vous proposons cette maison de 4 pièces de plain-pied de 50 m², idéalement située dans Tourville-la-Rivière (76410). Son intérieur est composé de deux chambres, d'une cuisine et d'une salle de bains.
Le terrain de la maison est de 630 m².
La maison est neuve.
Ce bien se situe dans un secteur attractif. L'École Primaire les Cygnes se trouve à moins de 10 minutes à pied. Côté transports, il y a cinq gares à moins de 10 minutes en voiture. Les autoroutes A13 et A139 et les nationales N138 et N338 sont accessibles à moins de 10 km. On trouve une bibliothèque et un commerce à quelques minutes du bien.
Il est proposé à l'achat pour 185 000 €.
Contactez Aurélien LEOVANT ((Numéro supprimé)) pour plus d'informations sur la maison.
Annonce proposée par un Agent Commercial Partenaire.
Logement susceptibles de vous intéresser
Nous vous proposons de découvrir aussi cette sélection de logements situés à moins de 10km de Tourville-la-Rivière et qui seraient susceptibles de vous intéresser.
Saint-Pierre-lès-Elbeuf
TERRAINAccolé à la commune de SAINT PIERRE LES ELBEUF, sur la commune de MARTOT, dans un quartier résidentiel, terrain à bâtir prêt à accueillir votre future maison individuelle
Incarville
TERRAINSur la commune de INCARVILLE, dans un quartier résidentiel, terrain à bâtir prêt à accueillir votre future maison individuelle
Saint-Pierre-lès-Elbeuf
TERRAIN ET MAISONVENTE d’une maison de 4 pièces (71 m²) accolée à Saint-Pierre-lès-ElbeufPROCHE DE ROUEN – MAISON 4 PIÈCES NEUVEEn vente : située à quelques kilomètres de Rouen, nous sommes ravis de vous proposer accolée à Saint-Pierre-lès-Elbeuf (76320), cette maison de 4 pièces de plain-pied de 71 m² et de 605 m² de terrain. Conçue de plain-pied, elle compte trois chambres, une cuisine et une salle de bains.Cette maison est neuve.Le Collège Jacques-Emile Blanche et le Groupe Scolaire Monod-Camus sont implantés à moins de 10 minutes à pied. Niveau transports, il y a quatre gares à moins de 10 minutes en voiture. Les autoroutes A13 et A139 et la nationale N138 sont accessibles à moins de 8 km. On trouve une bibliothèque, des commerces, quatre supermarchés, deux boulangeries, un bureau de poste et une boucherie-charcuterie à quelques minutes de la maison.Elle est à vendre pour la somme de 207 300 €.N’hésitez pas à prendre contact avec notre agence (MORIN Peter : (Numéro supprimé)) pour tout renseignement sur la maison. Faites de vos projets immobiliers une réalité avec Les Maisons Extraco Pont-de-l’Arche.
Saint-Pierre-lès-Elbeuf
TERRAIN ET MAISONMaison T5 (92 m²) en vente accolée à Saint-Pierre-lès-ElbeufPROCHE DE ROUEN – MAISON 5 PIÈCES NEUVEÀ vendre : à deux pas de Rouen, accolée à Saint-Pierre-lès-Elbeuf (76320), nous vous proposons cette maison de 5 pièces de plain-pied de 92 m² et de 605 m² de terrain.Conçue de plain-pied, elle inclut quatre chambres, une cuisine et une salle de bains. Cette maison est neuve.Il y a le Collège Jacques-Emile Blanche et le Groupe Scolaire Monod-Camus à moins de 10 minutes à pied. Niveau transports, on trouve quatre gares à moins de 10 minutes en voiture. Les autoroutes A13 et A139 et la nationale N138 sont accessibles à moins de 8 km. Il y a une bibliothèque, des commerces, quatre supermarchés, deux boulangeries, une boucherie-charcuterie et un bureau de poste à quelques minutes du logement.Elle est à vendre pour la somme de 241 300 €.Contactez notre agence (Peter MORIN : (Numéro supprimé)) pour tout renseignement sur la maison ou sur les modalités de vente. Les Maisons Extraco Pont-de-l’Arche vous accompagne à toutes les étapes de votre projet et dans tous vos projets immobiliers.
Saint-Pierre-lès-Elbeuf
TERRAIN ET MAISONVENTE : maison de 5 pièces (114 m²) accolée à Saint-Pierre-lès-ElbeufPROCHE DE ROUEN – MAISON 5 PIÈCES NEUVEÀ deux pas de Rouen, ayez le coup de coeur pour à vendre accolée à Saint-Pierre-lès-Elbeuf (76320), cette maison de 5 pièces de plain-pied de 114 m² et de 605 m² de terrain.Conçue de plain-pied, elle est composée de quatre chambres, d’une cuisine et d’une salle de bains. Cette maison est neuve.Le Collège Jacques-Emile Blanche et le Groupe Scolaire Monod-Camus se trouvent à moins de 10 minutes à pied. Côté transports en commun, il y a quatre gares à moins de 10 minutes en voiture. Les autoroutes A13 et A139 et la nationale N138 sont accessibles à moins de 8 km. On trouve une bibliothèque, des commerces, quatre supermarchés, deux boulangeries, un bureau de poste et une boucherie-charcuterie à proximité du logement.Son prix de vente est de 248 800 €.N’hésitez pas à prendre contact avec notre agence (MORIN Peter : (Numéro supprimé)) pour toute question sur la maison.
Incarville
TERRAIN ET MAISONVENTE : maison de 6 pièces (151 m²) à IncarvilleMAISON 6 PIÈCES NEUVE – PROCHE DE ROUENEn vente : à 21 km de Rouen, Les Maisons Extraco Pont-de-l’Arche vous propose à Incarville (27400), cette maison de 6 pièces de 151 m². Elle inclut cinq chambres, une cuisine et deux salles de bains.Le terrain de la maison est de 732 m².Cette maison compte 2 niveaux. Elle est neuve.Il y a des écoles maternelles et élémentaires dans le quartier. Niveau transports, on trouve trois gares (Saint-Pierre-du-Vauvray, Val-de-Reuil et Pont-de-l’Arche) à moins de 10 minutes en voiture. On trouve un accès à l’autoroute A154 à 1 km. Il y a un tennis, quatre commerces, une boulangerie et deux épiceries à proximité du bien.Elle est proposée à l’achat pour 377 300 €.Contactez Peter MORIN ((Numéro supprimé)) pour toute information sur cette maison, sur les démarches à suivre ou sur les modalités de vente. Concrétisez vos projets immobiliers avec Les Maisons Extraco Pont-de-l’Arche.
Incarville
TERRAIN ET MAISONVENTE d’une maison T6 (139 m²) à IncarvillePROCHE DE ROUEN – MAISON 6 PIÈCES NEUVEÀ vendre à quelques kilomètres de Rouen, nous vous présentons à Incarville (27400), cette maison de 6 pièces de 139 m². Elle propose quatre chambres, une cuisine et deux salles de bains.Le terrain de la maison s’étend sur 732 m².Il s’agit d’une maison de 2 niveaux. Elle est neuve.Des écoles maternelles et élémentaires sont implantées dans le quartier. Niveau transports, il y a les gares Saint-Pierre-du-Vauvray, Val-de-Reuil et Pont-de-l’Arche à moins de 10 minutes en voiture. On trouve un accès à l’autoroute A154 à 1 km. On trouve un tennis, quatre commerces, une boulangerie et deux épiceries dans les environs.Son prix de vente est de 388 900 €.Contactez notre agence (MORIN Peter : (Numéro supprimé)) pour toute question sur cette maison.
Incarville
TERRAIN ET MAISONVENTE : maison F6 (149 m²) à IncarvillePROCHE DE ROUEN – MAISON 6 PIÈCES NEUVEÀ quelques kilomètres de Rouen, nous vous proposons cette maison de 6 pièces de 149 m² en vente à Incarville (27400).Il s’agit d’une maison de 2 niveaux. Elle compte quatre chambres, une cuisine et deux salles de bains. La maison est neuve.Le terrain du bien est de 732 m².On trouve des écoles maternelles et élémentaires dans le quartier. Niveau transports en commun, il y a trois gares (Saint-Pierre-du-Vauvray, Val-de-Reuil et Pont-de-l’Arche) à moins de 10 minutes en voiture. Il y a un accès à l’autoroute A154 à 1 km. On trouve un tennis, quatre commerces, une boulangerie et deux épiceries à quelques minutes à peine.Elle est à vendre pour la somme de 392 600 €.Contactez notre agence (Peter MORIN : (Numéro supprimé)) pour toute question sur la maison.
L’actualité immobilière à Tourville-la-Rivière
27/11/2023
02/11/2023
30/10/2023
20/10/2023
16/10/2023
16/10/2023