Images
Description
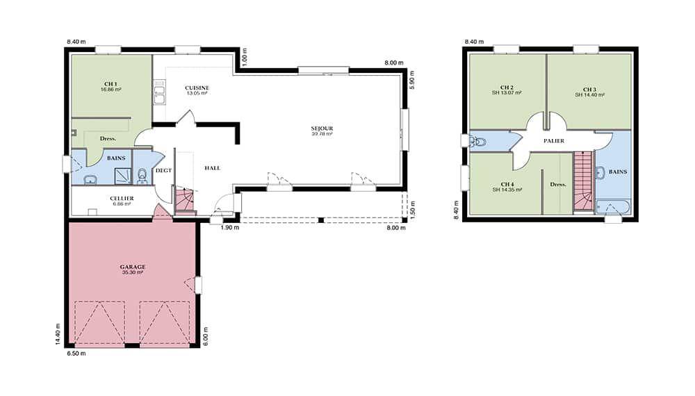
Nous vous proposons cette maison neuve, baptisée ""Barentine"", un modèle de résidence qui allie élégance et fonctionnalité, conçu pour répondre aux attentes des familles modernes. Avec une surface habitable de 115 m², cette maison se distingue par son plan en L, offrant une disposition originale et pratique des espaces de vie.
La ""Barentine"" comprend 3 chambres spacieuses, garantissant confort et intimité à chaque membre de la famille. Au total, la maison se compose de 4 pièces, pensées pour maximiser l'espace et la luminosité. L'une des caractéristiques remarquables de ce modèle est son garage intégré, assurant une transition fluide entre l'espace de vie et l'espace de stationnement, tout en offrant un espace de rangement supplémentaire très pratique.
La maison dispose également d'une deuxième salle de bains, offrant ainsi une commodité supplémentaire et évitant les embouteillages matinaux. Conforme à la norme RE2020, la ""Barentine"" est une maison basse consommation, conçue avec une attention particulière portée à l'efficacité énergétique et à l'impact environnemental. Cela signifie des factures d'énergie réduites et un confort accru toute l'année pour ses habitants.
Les options les plus plébiscitées par nos clients, telles que les menuiseries en aluminium et la domotique, sont disponibles pour personnaliser votre maison selon vos goûts et vos besoins. Ces améliorations non seulement renforcent l'esthétique moderne de la maison, mais améliorent également son efficacité et sa fonctionnalité, rendant la vie quotidienne plus pratique et agréable.
Inspirée du charme provençal, la ""Barentine"" présente une architecture cohérente et attrayante. Son design extérieur peut être personnalisé avec un enduit bicolore, ajoutant une touche d'élégance et de distinction. Que vous optiez pour une toiture à 2 ou 4 pans, cette maison vous propose raffinement et confort.
Découvrez le plaisir de vivre dans une maison qui allie beauté, confort et durabilité.
Logement susceptibles de vous intéresser
Nous vous proposons de découvrir aussi cette sélection de logements situés à moins de 10km de Varengeville-sur-Mer et qui seraient susceptibles de vous intéresser.
Dieppe
TERRAINIdéalement situé à Bellengreville! 12km Dieppe, beau terrain viabilisé, tout à l’égout, CU positif, étude de sol faite.Bel environnement. Les honoraires sont à la charge du vendeur.Les informations sur les risques auxquels ce bien est exposé sont disponibles sur le site Géorisques : www. georisques. gouv. fr.Contactez Stéphanie DUJARDIN Entrepreneur Individuel, Agent commercial OptimHome (RSAC N(Numéro supprimé) Greffe de DIEPPE) (Numéro supprimé) (réf. 596121 )
Tourville-sur-Arques
TERRAINVENTE d’un terrain de 881 m² à Tourville-sur-ArquesPROCHE DE DIEPPEÀ vendre à 8 km de la Manche et à deux pas de Dieppe à Tourville-sur-Arques (76550), grand terrain. Une école primaire est implantée dans le quartier. Niveau transports, il y a trois gares (Saint-Aubin-sur-Scie, Dieppe et Longueville-sur-Scie) à moins de 10 minutes en voiture. La nationale N27 est accessible à 4 km. On trouve une boulangerie à quelques minutes du terrain.Il est à vendre pour la somme de 79 000 €. Contactez Natacha LECLERC ((Numéro supprimé)) pour plus d’informations sur ce terrain ou sur les démarches à suivre. Donnez vie à vos projets immobiliers avec Les Maisons Extraco Dieppe.
Tourville-sur-Arques
TERRAIN ET MAISONMaison de 4 pièces (135 m²) en vente à Tourville-sur-ArquesMAISON 4 PIÈCES NEUVE – PROCHE DE DIEPPEÀ vendre : à 8 km de la Manche et à quelques kilomètres de Dieppe, Les Maisons Extraco Dieppe vous présente à Tourville-sur-Arques (76550), cette maison de 4 pièces de 135 m² et de 881 m² de terrain. Son intérieur se divise en cinq chambres, une cuisine et deux salles de bains.Il s’agit d’une maison de 2 niveaux. Elle est neuve.Il y a une école primaire dans le quartier. Niveau transports en commun, on trouve trois gares (Saint-Aubin-sur-Scie, Dieppe et Longueville-sur-Scie) à moins de 10 minutes en voiture. On trouve un accès à la nationale N27 à 4 km. Il y a une boulangerie à proximité du logement.Son prix de vente est de 348 530 €.N’hésitez pas à prendre contact avec Natacha LECLERC ((Numéro supprimé)) pour plus de renseignements sur cette maison.
Tourville-sur-Arques
TERRAIN ET MAISONVENTE d’une maison T4 (110 m²) à Tourville-sur-ArquesPROCHE DE DIEPPE – MAISON 4 PIÈCES NEUVEEn vente à 8 km de la Manche et à deux pas de Dieppe, à Tourville-sur-Arques (76550), votre agence Les Maisons Extraco Dieppe est heureuse de vous présenter cette maison de 4 pièces de plain-pied de 110 m² et de 881 m² de terrain. Elle compte deux chambres, une cuisine et une salle de bains.Cette maison est neuve.Une école primaire est implantée dans le quartier. Niveau transports, il y a trois gares (Saint-Aubin-sur-Scie, Dieppe et Longueville-sur-Scie) à moins de 10 minutes en voiture. On trouve un accès à la nationale N27 à 4 km. On trouve une boulangerie à proximité.Elle est proposée à l’achat pour 289 600 €.N’hésitez pas à prendre contact avec notre agence (LECLERC Natacha : (Numéro supprimé)) pour toute question sur cette maison, sur les modalités de vente ou sur les démarches à suivre. Donnez vie à vos projets immobiliers avec Les Maisons Extraco Dieppe.
Tourville-sur-Arques
TERRAIN ET MAISONMaison 1 pièce (229 m²) en vente à Tourville-sur-ArquesPROCHE DE DIEPPE – MAISON 1 PIÈCE NEUVEÀ 8 km de la Manche et à deux pas de Dieppe, nous vous proposons cette maison 1 pièce de plain-pied de 229 m² et de 881 m² de terrain à Tourville-sur-Arques (76550). Conçue de plain-pied, elle dispose de six chambres, d’une cuisine et de quatre salles de bains.La maison est neuve.Une école primaire est implantée dans le quartier. Côté transports en commun, il y a les gares Saint-Aubin-sur-Scie, Dieppe et Longueville-sur-Scie à moins de 10 minutes en voiture. Il y a un accès à la nationale N27 à 4 km. On trouve une boulangerie à proximité du bien.Elle est proposée à l’achat pour 527 000 €.Contactez Natacha LECLERC ((Numéro supprimé)) pour plus de renseignements sur cette maison. Les Maisons Extraco Dieppe vous accompagne dans tous vos projets immobiliers et à toutes les étapes de votre projet.
Dieppe
TERRAINArques-la-Bataille : terrain de 663 m² en venteIDÉALEMENT SITUÉ – PROCHE DE DIEPPEÀ Arques-la-Bataille (76880) en vente à 9 km de la Manche et à 5 km de Dieppe, donnez vie à votre résidence principale ou secondaire sur ce terrain de 663 m². Il donne sur un jardin et bénéficie d’une exposition sud-ouest. Dans un secteur attractif, ce terrain idéalement situé est proche des commerces et des écoles. Des établissements scolaires primaires sont implantés dans le quartier. Niveau transports en commun, il y a deux gares (Saint-Aubin-sur-Scie et Dieppe) à moins de 10 minutes en voiture. La nationale N27 est accessible à 9 km. On trouve un tennis, un commerce, trois boulangeries, une boucherie-charcuterie, une épicerie et un bureau de poste dans les environs.Ce terrain est à vendre pour la somme de 62 900 €. Contactez notre agence (JOURDON Michael : (Numéro supprimé)) pour tout renseignement sur le terrain, sur les modalités de vente ou sur les démarches à suivre.Annonce proposée par un Agent Commercial Partenaire.
Dieppe
TERRAIN ET MAISONVENTE d’une maison de 6 pièces (114 m²) à Arques-la-BatailleIDÉALEMENT SITUÉE – MAISON 6 PIÈCES NEUVEEn vente : localisée à 9 km de la Manche et à deux pas de Dieppe, nous sommes ravis de vous présenter cette maison de 6 pièces de 114 m² et de 663 m² de terrain idéalement située dans Arques-la-Bataille (76880).Il s’agit d’une maison de 2 niveaux. Son intérieur est composé de cinq chambres, d’une cuisine et de deux salles de bains. La maison est neuve.La maison est située dans un quartier prisé. On y trouve des écoles maternelles et élémentaires. Niveau transports, on trouve deux gares (Saint-Aubin-sur-Scie et Dieppe) à moins de 10 minutes en voiture. La nationale N27 est accessible à 9 km. Il y a un tennis, un commerce, trois boulangeries, un bureau de poste, une épicerie et une boucherie-charcuterie à quelques minutes à peine.Son prix de vente est de 279 000 €.Prenez contact avec notre agence (JOURDON Michael : (Numéro supprimé)) pour toute information sur le bien. Faites de vos projets immobiliers une réalité avec MICHAEL.Annonce proposée par un Agent Commercial Partenaire.
Dieppe
TERRAIN ET MAISONArques-la-Bataille : maison de 3 pièces (65 m²) en venteIDÉALEMENT SITUÉE – MAISON 3 PIÈCES NEUVEEn vente à 9 km de la Manche et à 5 km de Dieppe, nous vous proposons cette maison de 3 pièces de plain-pied de 65 m² et de 663 m² de terrain idéalement située dans Arques-la-Bataille (76880).Elle offre deux chambres, une cuisine et une salle de bains. La maison est neuve.Cette maison est située dans un secteur attractif. Des écoles maternelles et élémentaires y sont implantées. Niveau transports, on trouve les gares Saint-Aubin-sur-Scie et Dieppe à moins de 10 minutes en voiture. La nationale N27 est accessible à 9 km. Il y a un tennis, un commerce, trois boulangeries, une boucherie-charcuterie, une épicerie et un bureau de poste dans les environs.Son prix de vente est de 189 750 €.N’hésitez pas à prendre contact avec notre agence (Michael JOURDON : (Numéro supprimé)) pour toute question sur la maison. Michael est là pour vous accompagner dans toutes vos démarches.Annonce proposée par un Agent Commercial Partenaire.
Dieppe
TERRAIN ET MAISONArques-la-Bataille : maison F4 (94 m²) à vendreIDÉALEMENT SITUÉE – MAISON 4 PIÈCES NEUVEÀ vendre : située à 9 km de la Manche et à quelques kilomètres de Dieppe, nous sommes ravis de vous présenter cette maison de 4 pièces de plain-pied de 94 m² et de 663 m² de terrain, idéalement située dans Arques-la-Bataille (76880).Conçue de plain-pied, elle comporte trois chambres, une cuisine et deux salles de bains. La maison est neuve.Cette maison est située dans un quartier recherché. Des écoles maternelles et élémentaires y sont implantées. Côté transports en commun, on trouve deux gares (Saint-Aubin-sur-Scie et Dieppe) à moins de 10 minutes en voiture. La nationale N27 est accessible à 9 km. Il y a un tennis, un commerce, trois boulangeries, une épicerie, un bureau de poste et une boucherie-charcuterie dans les environs.Elle est à vendre pour la somme de 219 750 €.Contactez notre agence (Michael JOURDON : (Numéro supprimé)) pour tout renseignement sur la maison ou sur les modalités de vente. Maisons Balency Boos vous accompagne à toutes les étapes de votre projet et dans toutes vos démarches.Annonce proposée par un Agent Commercial Partenaire.
L’actualité immobilière à Varengeville-sur-Mer
27/11/2023
02/11/2023
30/10/2023
20/10/2023
16/10/2023
16/10/2023