Maison à construire à Yvecrique (76560)
Images
Description
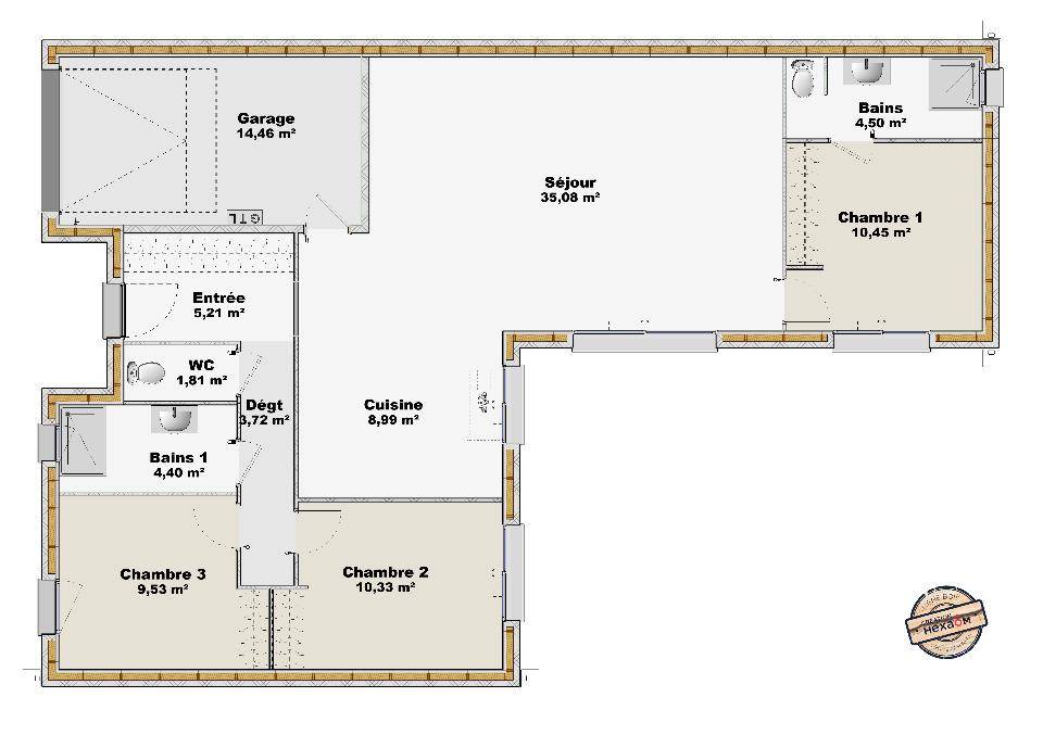
Criquetot-sur-Ouville : maison F4 (94 m²) à construire.
IDÉALEMENT SITUÉE - MAISON 4 PIÈCES NEUVE
À 26 km de la Manche, nous sommes ravis de vous présenter cette maison de 4 pièces de plain-pied de 94 m² à vendre, idéalement située dans Criquetot-sur-Ouville (76760).
Conçue de plain-pied, elle est composée de trois chambres, d'une cuisine et de deux salles de bains. La maison est neuve.
Le terrain du bien s'étend sur 1 044 m².
Cette maison se trouve dans un secteur attractif. Une école primaire y est implantée. Niveau transports en commun, il y a les gares Motteville et Yvetot à moins de 10 minutes en voiture. Les autoroutes A29 et A150 sont accessibles à moins de 7 km. On trouve une boulangerie à quelques minutes à peine.
Elle est proposée à l'achat pour 271 630 €.
Contactez Sébastien LENFANT (tél : (Numéro supprimé)) pour plus de renseignements sur la maison, sur les modalités de vente ou sur les démarches à suivre.
Logement susceptibles de vous intéresser
Nous vous proposons de découvrir aussi cette sélection de logements situés à moins de 10km de Yvecrique et qui seraient susceptibles de vous intéresser.
Étalleville
TERRAINTerrain de 1 700 m² en vente à ÉtallevilleIDÉALEMENT SITUÉ – PROCHE DE DIEPPEEn vente à 20 km de la Manche et à 28 km de Dieppe à Étalleville (76560), grand terrain. Il est prêt à accueillir votre projet immobilier pour toute la famille. Il est situé dans un quartier attractif. Une école élémentaire y est implantée. L’autoroute A29 est accessible à 10 km.Ce terrain est proposé à l’achat pour 45 000 €. N’hésitez pas à prendre contact avec notre agence (Sébastien LENFANT : (Numéro supprimé)) pour tout renseignement sur le terrain ou sur les modalités de vente.
Étalleville
TERRAINÉtalleville : terrain de 1 300 m² en ventePROCHE DE DIEPPEEn vente à 20 km de la Manche et à 28 km de Dieppe à Étalleville (76560), grand terrain. Réalisez-y votre projet immobilier. Il y a une école élémentaire dans le quartier. L’autoroute A29 est accessible à 10 km.Il est proposé à l’achat pour 45 000 €. Prenez contact avec Sébastien LENFANT (tél : (Numéro supprimé)) pour toute question sur ce terrain.
Étalleville
TERRAIN ET MAISONÉtalleville : maison T4 (93 m²) à construire.IDÉALEMENT SITUÉE – MAISON 4 PIÈCES NEUVEA deux pas de Dieppe, Extraco construction rénovation Yvetot vous présente cette maison de 4 pièces de plain-pied de 93 m², idéalement située dans Étalleville (76560). Elle offre trois chambres, une cuisine et une salle de bains.Le terrain de la propriété s’étend sur 1 700 m².Cette maison est neuve.Cette maison se trouve dans un secteur attractif. On y trouve une école élémentaire. L’autoroute A29 est accessible à 10 km.Son prix de vente est de 205 690 €.Prenez contact avec notre agence (Sébastien LENFANT : (Numéro supprimé)) pour toute question sur la maison, sur les démarches à suivre ou sur les modalités de vente. Concrétisez vos projets immobiliers avec Extraco construction rénovation Yvetot.
Étalleville
TERRAIN ET MAISONMaison de 3 pièces (99 m²) à construire à ÉtallevilleIDÉALEMENT SITUÉE – MAISON 3 PIÈCES NEUVEA 28 km de Dieppe, nous vous proposons, idéalement située dans Étalleville (76560), cette maison de 3 pièces de plain-pied de 99 m² et de 1 700 m² de terrain.Elle propose trois chambres, une cuisine et deux salles de bains. La maison est neuve.Cette maison se trouve dans un quartier convoité. Une école élémentaire y est implantée. L’autoroute A29 est accessible à 10 km.Son prix de vente est de 237 780 €.Prenez contact avec Sébastien LENFANT (tél : (Numéro supprimé)) pour toute question sur la maison ou sur les démarches à suivre. Extraco construction rénovation Yvetot est là pour vous accompagner à toutes les étapes de votre projet.
Étalleville
TERRAIN ET MAISONMaison de 4 pièces (112 m²) à construire à ÉtallevilleIDÉALEMENT SITUÉE – MAISON 4 PIÈCES NEUVEÀ 20 km de la Manche et à deux pas de Dieppe, en vente idéalement située dans Étalleville (76560), venez découvrir cette maison de 4 pièces de 112 m² et de 1 700 m² de terrain. Elle inclut quatre chambres, une cuisine et deux salles de bains.C’est une maison de 2 niveaux. Elle est neuve.Ce bien se trouve dans un secteur prisé. Une école élémentaire y est implantée. On trouve un accès à l’autoroute A29 à 10 km.Son prix de vente est de 243 250 €.N’hésitez pas à prendre contact avec notre agence (LENFANT Sébastien : (Numéro supprimé)) pour tout renseignement sur la maison ou sur les démarches à suivre.
Étalleville
TERRAIN ET MAISONÉtalleville : maison T4 (94 m²) à construire.IDÉALEMENT SITUÉE – MAISON 4 PIÈCES NEUVEEn vente à 20 km de la Manche et à quelques kilomètres de Dieppe, idéalement située dans Étalleville (76560), Extraco construction rénovation Yvetot vous présente cette maison de 4 pièces de plain-pied de 94 m² et de 1 700 m² de terrain. Son intérieur inclut trois chambres, une cuisine et deux salles de bains.Cette maison est neuve.Cette maison se trouve dans un quartier convoité. On y trouve une école élémentaire. L’autoroute A29 est accessible à 10 km.Son prix de vente est de 245 930 €.Contactez notre agence (LENFANT Sébastien : (Numéro supprimé)) pour tout renseignement sur la propriété, sur les démarches à suivre ou sur les modalités de vente. Extraco construction rénovation Yvetot est là pour vous accompagner à toutes les étapes de votre projet.
Étalleville
TERRAIN ET MAISONÉtalleville : maison de 4 pièces (83 m²) à construire.MAISON 4 PIÈCES NEUVE – PROCHE DE DIEPPEÀ deux pas de Dieppe, découvrez à Étalleville (76560), cette maison de 4 pièces de plain-pied de 83 m² et de 1 300 m² de terrain.Conçue de plain-pied, elle comporte trois chambres, une cuisine et une salle de bains. Cette maison est neuve.Une école élémentaire est implantée dans le quartier. Il y a un accès à l’autoroute A29 à 10 km.Son prix de vente est de 211 060 €.Contactez Sébastien LENFANT (tél : (Numéro supprimé)) pour obtenir de plus amples informations sur la maison ou sur les démarches à suivre. Concrétisez vos projets immobiliers avec Extraco construction rénovation Yvetot.
Étalleville
TERRAIN ET MAISONMaison de 5 pièces (105 m²) à construire à ÉtallevillePROCHE DE DIEPPE – MAISON 5 PIÈCES NEUVEEn vente à 20 km de la Manche et à 28 km de Dieppe, à Étalleville (76560), découvrez cette maison de 5 pièces de 105 m² et de 1 300 m² de terrain. Elle propose quatre chambres, une cuisine et deux salles de bains.Cette maison compte 2 niveaux. Elle est neuve.Une école élémentaire est implantée dans le quartier. Il y a un accès à l’autoroute A29 à 10 km.Elle est à vendre pour la somme de 239 540 €.Prenez contact avec notre agence (Sébastien LENFANT : (Numéro supprimé)) pour obtenir de plus amples renseignements sur la maison ou sur les modalités de vente. Extraco construction rénovation Yvetot vous accompagne à toutes les étapes de l’achat et dans toutes vos démarches.
Étalleville
TERRAIN ET MAISONMaison de 5 pièces (105 m²) à construire à ÉtallevillePROCHE DE DIEPPE – MAISON 5 PIÈCES NEUVEÀ 28 km de Dieppe, à Étalleville (76560), notre agence Extraco construction rénovation Yvetot est heureuse de vous proposer cette maison de 5 pièces de plain-pied de 105 m².Elle compte quatre chambres, une cuisine et une salle de bains. La maison est neuve.Le terrain du bien s’étend sur 1 300 m².Une école élémentaire est implantée dans le quartier. Il y a un accès à l’autoroute A29 à 10 km.Son prix de vente est de 217 960 €.Contactez Sébastien LENFANT ((Numéro supprimé)) pour plus de renseignements sur cette maison ou sur les démarches à suivre. Donnez vie à vos projets immobiliers avec Extraco construction rénovation Yvetot.
L’actualité immobilière à Yvecrique
27/11/2023
02/11/2023
30/10/2023
20/10/2023
16/10/2023
16/10/2023