Maison à construire à Noisy-le-Grand (93160)
Images
Description
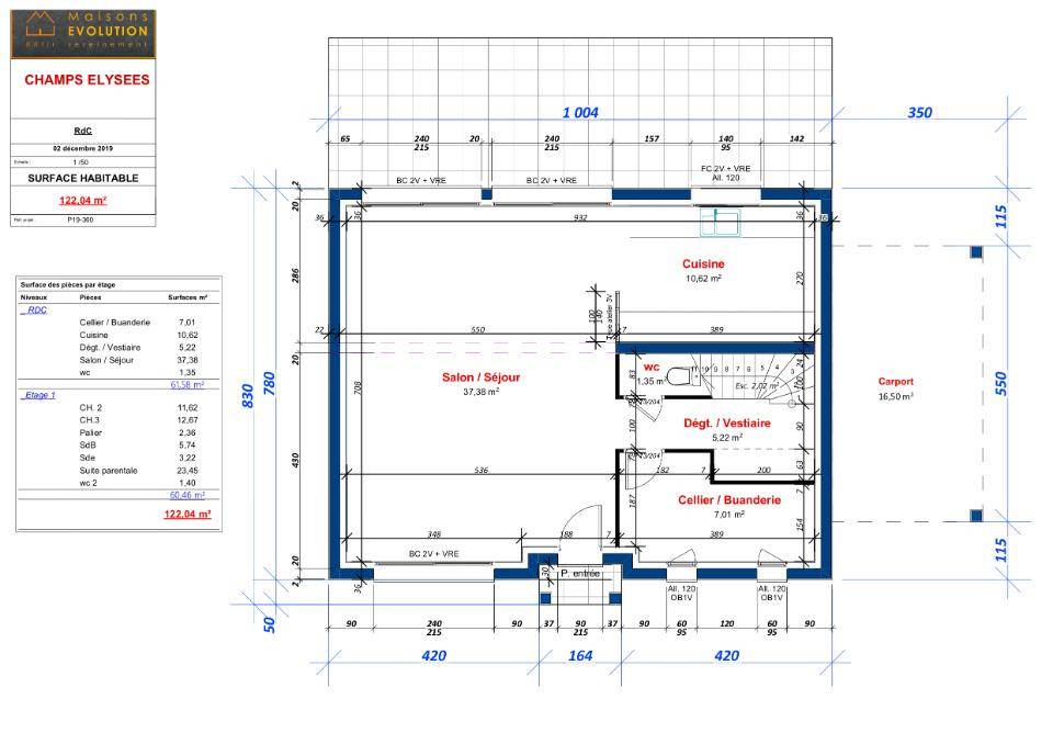
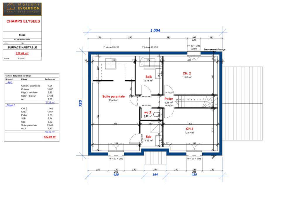
Maison de 6 pièces (122 m²) en vente à Noisy-le-Grand
Paris à 15 min (RER A, Noisy-le-Grand-Mont d'Est) - À Noisy-le-Grand (93160), maison neuve en vente de 6 pièces, 2 niveaux, 122 m² sur 188 m² de terrain. Son intérieur dispose de quatre chambres, d'une cuisine et de deux salles de bains.
Proche RER (lignes A, E et B), gares, établissements scolaires, crèches, bassin de natation, tennis, commerces, boulangeries, supermarchés, supérettes et bureau de poste.
Cette maison de 6 pièces est à vendre pour la somme de 572 900 €.
Contactez Guillaume BORDES (tél : (Numéro supprimé)) pour toute question sur la maison. Maisons Evolution Mareuil-lès-Meaux est là pour vous accompagner dans toutes vos démarches.
Annonce proposée par un Agent Commercial Partenaire.
Logement susceptibles de vous intéresser
Nous vous proposons de découvrir aussi cette sélection de logements situés à moins de 10km de Noisy-le-Grand et qui seraient susceptibles de vous intéresser.
Bondy
TERRAIN ET MAISONBondy : maison T5 (89 m²) en venteIDÉALEMENT SITUÉE – MAISON 5 PIÈCES NEUVEProche du RER E (10 min de Paris), nous sommes ravis de vous proposer en vente, idéalement située dans Bondy (93140), cette maison de 5 pièces de 89 m². Elle dispose de trois chambres, d’une cuisine et de deux salles de bains.Le terrain de la propriété s’étend sur 337 m².Cette maison possède 2 niveaux. Elle est neuve.Cette maison est située dans un secteur attractif. On trouve des établissements scolaires de tous types à moins de 10 minutes à pied, tout comme neuf crèches. Niveau transports, il y a la station de RER Bondy (ligne E) ainsi que deux gares (Remise à Jorelle et Bondy) juste à côté. On trouve deux tennis, une bibliothèque, un bassin de natation, des boulangeries, des commerces, quatre supermarchés, des épiceries et deux poissonneries dans les environs. Ne manquez pas le marché Place de la Gare tous les mercredis matin.Elle est proposée à l’achat pour 374 500 €.Contactez Emmanuel au (Numéro supprimé) pour tout renseignement sur la maison. Maisons France Confort Moisselles est là pour vous accompagner dans tous vos projets immobiliers.
Chelles
TERRAIN ET MAISONChelles : maison T7 (124 m²) en venteParis à 20 min (RER E, Chelles-Gournay) – Bénéficiant d’un emplacement privilégié dans Chelles (77500), maison neuve à vendre de 7 pièces, 2 niveaux, 124 m² de surface sur 749 m² de terrain. Son intérieur offre cinq chambres, une cuisine et trois salles de bains.À proximité : RER (lignes E, A et B), gares, établissements scolaires, crèches, tennis, bibliothèque, commerces, boulangeries, supermarché, supérettes et boucheries-charcuteries.Le prix de vente de cette maison de 7 pièces est de 454 900 €.Contactez Stephanie SEBAG ((Numéro supprimé)) pour tout renseignement sur la maison, sur les démarches à suivre ou sur les modalités de vente. Maisons Evolution Mareuil-lès-Meaux est là pour vous accompagner dans tous vos projets immobiliers.Annonce proposée par un Agent Commercial Partenaire.
Coubron
TERRAINVENTE d’un terrain de 151 m² à CoubronIDÉALEMENT SITUÉ – PROCHE DE PARISÀ Coubron (93470) à proximité du RER B (station Vert Galant, 25 min de Paris), donnez vie à la maison de vos rêves sur ce terrain de 151 m². Il donne sur un jardin et est exposé au sud-ouest. Dans un quartier attractif, ce terrain idéalement situé est proche des commerces et des écoles. On trouve des établissements scolaires maternelles et élémentaires à moins de 10 minutes à pied. Côté transports en commun, il y a le RER B, E et A ainsi que 31 gares à moins de 10 minutes en voiture. Il y a une bibliothèque, un tennis, des commerces, une boulangerie, un supermarché, une épicerie et un bureau de poste à proximité du terrain.Ce terrain est à vendre pour la somme de 128 000 €. Contactez Dominique TCHICAYA ((Numéro supprimé)) pour tout renseignement sur le terrain. Maisons France Confort La Queue-en-Brie est là pour vous accompagner dans toutes vos démarches.
Chelles
TERRAIN ET MAISONVENTE : maison de 5 pièces (98 m²) à ChellesParis à 20 min (RER E, Chelles-Gournay) – À découvrir bénéficiant d’un emplacement privilégié dans Chelles (77500) : maison neuve 5 pièces à vendre, 2 niveaux, 98 m² de surface sur 749 m² de terrain. Son intérieur comporte quatre chambres, une cuisine et une salle de bains.À dix minutes : RER (lignes E, A et B), gares, établissements scolaires, crèches, tennis, bibliothèque, commerces, boulangeries, supermarché, supérettes et épiceries.Le prix de vente de cette maison de 5 pièces est de 435 000 €.N’hésitez pas à prendre contact avec notre agence (Stephanie SEBAG : (Numéro supprimé)) pour plus de renseignements sur la maison. Donnez vie à vos projets immobiliers avec Maisons Evolution Mareuil-lès-Meaux.Annonce proposée par un Agent Commercial Partenaire.
Sucy-en-Brie
TERRAIN ET MAISONRéalisez votre projet de construction de maison RE 2020 avec PAVILLONS D'ÎLE-DE-FRANCE (constructeur de maisons de gamme et sur-mesure depuis plus de 50 ans) :- Plan sur-mesure et personnalisé de 2 à 5 chambres- Mode de chauffage au choix- Grands choix d'équipements et de prestations- Matériaux de qualité selon les normes en vigueur- Accompagnement dans le choix et l’acquisition du terrainDemandez une étude gratuite et personnalisée de votre projet de construction !Contactez Stéphane VERHAUVEN au (Numéro supprimé) ou au (Numéro supprimé) (Pavillons d'Île-de-France – Agence de Meaux).Prix avec assurance dommages-ouvrage comprise, hors VRD, terrain non viabilisé, assainissement non compris, frais de notaire non compris, taxes non comprises, frais divers non compris. Terrain sélectionné et vu pour vous sous réserve de disponibilité et au prix indiqué par notre partenaire foncier. Visuels non contractuels.Cette annonce a été créée et diffusée avec le logiciel VITAHOME.
Saint-Maur-des-Fossés
TERRAIN ET MAISONRéalisez votre projet de construction de maison RE 2020 avec PAVILLONS D'ÎLE-DE-FRANCE (constructeur de maisons de gamme et sur-mesure depuis plus de 50 ans) :- Plan sur-mesure et personnalisé de 2 à 5 chambres- Mode de chauffage au choix- Grands choix d'équipements et de prestations- Matériaux de qualité selon les normes en vigueur- Accompagnement dans le choix et l’acquisition du terrainInformations du terrain : A proximitéDemandez une étude gratuite et personnalisée de votre projet de construction !Contactez Stéphane VERHAUVEN au (Numéro supprimé) ou au (Numéro supprimé) (Pavillons d'Île-de-France – Agence de Meaux).Prix avec assurance dommages-ouvrage comprise, hors VRD, terrain non viabilisé, assainissement non compris, frais de notaire non compris, taxes non comprises, frais divers non compris. Terrain sélectionné et vu pour vous sous réserve de disponibilité et au prix indiqué par notre partenaire foncier. Visuels non contractuels.Cette annonce a été créée et diffusée avec le logiciel VITAHOME.
Champigny-sur-Marne
TERRAIN ET MAISONChampigny-sur-Marne : maison de 5 pièces (96 m²) en venteQUARTIER RECHERCHÉ – MAISON 5 PIÈCES NEUVEEn vente : au pied de la station Les Boullereaux Champigny du RER E (20 min de Paris), nous sommes heureux de vous présenter cette maison de 5 pièces de 96 m² et de 340 m² de terrain située dans un quartier attractif de Champigny-sur-Marne (94500).Cette maison compte 2 niveaux. Son intérieur comporte quatre chambres, une cuisine et une salle de bains. Cette maison est neuve.La maison se situe dans un secteur convoité. On trouve plusieurs établissements scolaires (maternelle, élémentaire et collège) à moins de 10 minutes à pied, tout comme quatre structures d’accueil pour les tout-petits. Niveau transports en commun, il y a les lignes E, A, D et C du RER ainsi que 26 gares à moins de 10 minutes en voiture. On trouve un tennis, une bibliothèque, des commerces, des boulangeries, trois supermarchés, deux bureaux de poste et deux supérettes à proximité du logement. Enfin, le marché Centre-Ville anime le quartier.Elle est à vendre pour la somme de 370 000 €.N’hésitez pas à prendre contact avec notre agence (SOUMARMON Félix : (Numéro supprimé)) pour toute question sur la maison.Annonce proposée par un Agent Commercial Partenaire.
Champigny-sur-Marne
TERRAIN ET MAISONChampigny-sur-Marne : maison de 7 pièces (120 m²) à vendreQUARTIER RECHERCHÉ – MAISON 7 PIÈCES NEUVEEn vente : à quelques minutes du RER E (station Les Boullereaux Champigny, 20 min de Paris), dans un quartier recherché de Champigny-sur-Marne (94500), nous sommes heureux de vous proposer cette maison de 7 pièces de 120 m². Son intérieur dispose de cinq chambres, d’une cuisine et de deux salles de bains.Le terrain de cette maison est de 340 m².Il s’agit d’une maison de 2 niveaux. Elle est neuve.La maison se situe dans un secteur convoité. Plusieurs écoles (maternelle, élémentaire et collège) sont implantées à moins de 10 minutes à pied, tout comme quatre crèches. Niveau transports en commun, on trouve les lignes de RER E, A, D et C ainsi que 26 gares à moins de 10 minutes en voiture. Il y a un tennis, une bibliothèque, des commerces, des boulangeries, trois supermarchés, des épiceries et deux supérettes à proximité du logement. Le marché Centre-Ville anime les environs.Elle est à vendre pour la somme de 395 000 €.Prenez contact avec notre agence (Félix SOUMARMON : (Numéro supprimé)) pour obtenir de plus amples informations sur la propriété ou sur les démarches à suivre. Faites de vos projets immobiliers une réalité avec Maisons France Confort Magny-le-Hongre.Annonce proposée par un Agent Commercial Partenaire.
Saint-Thibault-des-Vignes
TERRAINSecteur RecherchéPrix : 190000 €.Sur ce terrain, réalisez votre projet de construction de maison RE 2020 avec PAVILLONS D'ÎLE-DE-FRANCE (constructeur de maisons de gamme et sur-mesure depuis plus de 50 ans) :- Plan sur-mesure et personnalisé de 2 à 5 chambres- Mode de chauffage au choix- Grands choix d'équipements et de prestations- Matériaux de qualité selon les normes en vigueur- Accompagnement dans le choix et l’acquisition du terrainDemandez une étude gratuite et personnalisée de votre projet de construction sur ce terrain !Contactez Stéphane VERHAUVEN au (Numéro supprimé) ou au (Numéro supprimé) (Pavillons d'Île-de-France – Agence de Meaux).Prix hors frais de notaire. Terrain sélectionné et vu pour vous sous réserve de disponibilité et au prix indiqué par notre partenaire foncier. Visuels non contractuels.Cette annonce a été créée et diffusée avec le logiciel VITAHOME.
L’actualité immobilière à Noisy-le-Grand
27/11/2023
02/11/2023
30/10/2023
20/10/2023
16/10/2023
16/10/2023