Images
Description
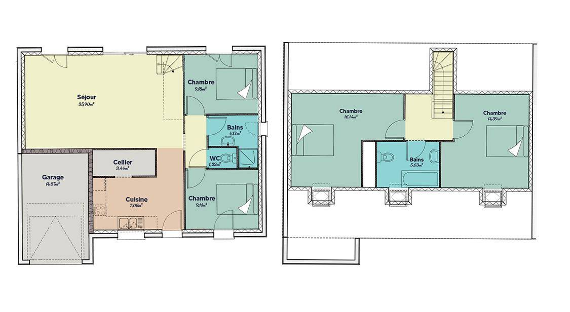
Sur ce terrain, nous vous proposons cette maison neuve : la Focus EVO, un modèle unique de 110 m² conçu par Babeau-Seguin, constructeur offrant le meilleur rapport qualité/prix du marché. Cette maison basse consommation est conforme à la norme RE2020, garantissant des performances énergétiques exceptionnelles.
La Focus EVO se distingue par son concept évolutif, alliant une maison neuve prête à vivre et une maison prête à finir. Livrée avec 73 m² habitables, elle est conçue pour évoluer avec vos besoins futurs. Grâce à ses combles aménageables, vous pouvez facilement augmenter votre surface habitable à 110 m², ajoutant ainsi deux chambres supplémentaires et une salle de bain, pour un total de 4 chambres et 2 salles de bains.
Les caractéristiques principales de cette maison incluent un garage intégré, un cellier, et des combles aménageables. Les options les plus demandées par nos clients, telles que la version Investisseur et les prises USB murales, sont également disponibles.
La Focus EVO est idéale pour tous ceux qui recherchent une maison complète à un prix compétitif. Elle comprend une grande pièce de jour traversante, 4 chambres, une salle de bain, et un garage de 15 m². Que vous soyez un jeune couple, un célibataire ou une famille en pleine expansion, cette maison saura s'adapter à vos besoins et à vos envies.
Ne manquez pas cette occasion unique de devenir propriétaire d'une maison évolutive, économe en énergie et conforme aux dernières normes environnementales. Contactez-nous dès aujourd'hui pour plus d'informations et pour planifier une visite.
Logement susceptibles de vous intéresser
Nous vous proposons de découvrir aussi cette sélection de logements situés à moins de 10km de Albert et qui seraient susceptibles de vous intéresser.
Beaucourt-sur-l'Ancre
TERRAIN ET MAISONRéalisez votre projet de construction de maison RE 2020 avec PAVILLONS D'ÎLE-DE-FRANCE (constructeur de maisons de gamme et sur-mesure depuis plus de 50 ans) :- Plan sur-mesure et personnalisé de 2 à 5 chambres- Mode de chauffage au choix- Grands choix d'équipements et de prestations- Matériaux de qualité selon les normes en vigueur- Accompagnement dans le choix et l’acquisition du terrainInformations du terrain : Beau terrain plat, grande façade, belle expositionDemandez une étude gratuite et personnalisée de votre projet de construction !Contactez Didier PHILIPPON au (Numéro supprimé) ou au (Numéro supprimé) (Pavillons d'Île-de-France – Agence d'Amiens).Prix avec assurance dommages-ouvrage comprise, hors VRD, terrain non viabilisé, assainissement non compris, frais de notaire non compris, taxes non comprises, frais divers non compris. Terrain sélectionné et vu pour vous sous réserve de disponibilité et au prix indiqué par notre partenaire foncier. Visuels non contractuels.Cette annonce a été créée et diffusée avec le logiciel VITAHOME.
Beaucourt-sur-l'Ancre
TERRAIN ET MAISONRéalisez votre projet de construction de maison RE 2020 avec PAVILLONS D'ÎLE-DE-FRANCE (constructeur de maisons de gamme et sur-mesure depuis plus de 50 ans) :- Plan sur-mesure et personnalisé de 2 à 5 chambres- Mode de chauffage au choix- Grands choix d'équipements et de prestations- Matériaux de qualité selon les normes en vigueur- Accompagnement dans le choix et l’acquisition du terrainInformations du terrain : Beau terrain plat, grande façade, belle expositionDemandez une étude gratuite et personnalisée de votre projet de construction !Contactez Didier PHILIPPON au (Numéro supprimé) ou au (Numéro supprimé) (Pavillons d'Île-de-France – Agence d'Amiens).Prix avec assurance dommages-ouvrage comprise, hors VRD, terrain non viabilisé, assainissement non compris, frais de notaire non compris, taxes non comprises, frais divers non compris. Terrain sélectionné et vu pour vous sous réserve de disponibilité et au prix indiqué par notre partenaire foncier. Visuels non contractuels.Cette annonce a été créée et diffusée avec le logiciel VITAHOME.
Beaucourt-sur-l'Ancre
TERRAIN ET MAISONRéalisez votre projet de construction de maison RE 2020 avec PAVILLONS D'ÎLE-DE-FRANCE (constructeur de maisons de gamme et sur-mesure depuis plus de 50 ans) :- Plan sur-mesure et personnalisé de 2 à 5 chambres- Mode de chauffage au choix- Grands choix d'équipements et de prestations- Matériaux de qualité selon les normes en vigueur- Accompagnement dans le choix et l’acquisition du terrainInformations du terrain : Beau terrain plat, grande façade, belle expositionDemandez une étude gratuite et personnalisée de votre projet de construction !Contactez Didier PHILIPPON au (Numéro supprimé) ou au (Numéro supprimé) (Pavillons d'Île-de-France – Agence d'Amiens).Prix avec assurance dommages-ouvrage comprise, hors VRD, terrain non viabilisé, assainissement non compris, frais de notaire non compris, taxes non comprises, frais divers non compris. Terrain sélectionné et vu pour vous sous réserve de disponibilité et au prix indiqué par notre partenaire foncier. Visuels non contractuels.Cette annonce a été créée et diffusée avec le logiciel VITAHOME.
Beaucourt-sur-l'Ancre
TERRAINBeau terrain plat, grande façade, belle expositionPrix : 30000 €.Sur ce terrain, réalisez votre projet de construction de maison RE 2020 avec PAVILLONS D'ÎLE-DE-FRANCE (constructeur de maisons de gamme et sur-mesure depuis plus de 50 ans) :- Plan sur-mesure et personnalisé de 2 à 5 chambres- Mode de chauffage au choix- Grands choix d'équipements et de prestations- Matériaux de qualité selon les normes en vigueur- Accompagnement dans le choix et l’acquisition du terrainDemandez une étude gratuite et personnalisée de votre projet de construction sur ce terrain !Contactez Didier PHILIPPON au (Numéro supprimé) ou au (Numéro supprimé) (Pavillons d'Île-de-France – Agence d'Amiens).Prix hors frais de notaire. Terrain sélectionné et vu pour vous sous réserve de disponibilité et au prix indiqué par notre partenaire foncier. Visuels non contractuels.Cette annonce a été créée et diffusée avec le logiciel VITAHOME.
Méaulte
TERRAIN ET MAISONRéalisez votre projet de construction de maison RE 2020 avec PAVILLONS D'ÎLE-DE-FRANCE (constructeur de maisons de gamme et sur-mesure depuis plus de 50 ans) :- Plan sur-mesure et personnalisé de 2 à 5 chambres- Mode de chauffage au choix- Grands choix d'équipements et de prestations- Matériaux de qualité selon les normes en vigueur- Accompagnement dans le choix et l’acquisition du terrainInformations du terrain : Superbe terrain plat, borné, proche toutes commodités, grande façadeDemandez une étude gratuite et personnalisée de votre projet de construction !Contactez Didier PHILIPPON au (Numéro supprimé) ou au (Numéro supprimé) (Pavillons d'Île-de-France – Agence d'Amiens).Prix avec assurance dommages-ouvrage comprise, hors VRD, terrain viabilisé, assainissement non compris, frais de notaire non compris, taxes non comprises, frais divers non compris. Terrain sélectionné et vu pour vous sous réserve de disponibilité et au prix indiqué par notre partenaire foncier. Visuels non contractuels.Cette annonce a été créée et diffusée avec le logiciel VITAHOME.
Méaulte
TERRAIN ET MAISONRéalisez votre projet de construction de maison RE 2020 avec PAVILLONS D'ÎLE-DE-FRANCE (constructeur de maisons de gamme et sur-mesure depuis plus de 50 ans) :- Plan sur-mesure et personnalisé de 2 à 5 chambres- Mode de chauffage au choix- Grands choix d'équipements et de prestations- Matériaux de qualité selon les normes en vigueur- Accompagnement dans le choix et l’acquisition du terrainInformations du terrain : Superbe terrain plat, borné, proche toutes commodités, grande façadeDemandez une étude gratuite et personnalisée de votre projet de construction !Contactez Didier PHILIPPON au (Numéro supprimé) ou au (Numéro supprimé) (Pavillons d'Île-de-France – Agence d'Amiens).Prix avec assurance dommages-ouvrage comprise, hors VRD, terrain viabilisé, assainissement non compris, frais de notaire non compris, taxes non comprises, frais divers non compris. Terrain sélectionné et vu pour vous sous réserve de disponibilité et au prix indiqué par notre partenaire foncier. Visuels non contractuels.Cette annonce a été créée et diffusée avec le logiciel VITAHOME.
Méaulte
TERRAIN ET MAISONRéalisez votre projet de construction de maison RE 2020 avec PAVILLONS D'ÎLE-DE-FRANCE (constructeur de maisons de gamme et sur-mesure depuis plus de 50 ans) :- Plan sur-mesure et personnalisé de 2 à 5 chambres- Mode de chauffage au choix- Grands choix d'équipements et de prestations- Matériaux de qualité selon les normes en vigueur- Accompagnement dans le choix et l’acquisition du terrainInformations du terrain : Superbe terrain plat, borné, proche toutes commodités, grande façadeDemandez une étude gratuite et personnalisée de votre projet de construction !Contactez Didier PHILIPPON au (Numéro supprimé) ou au (Numéro supprimé) (Pavillons d'Île-de-France – Agence d'Amiens).Prix avec assurance dommages-ouvrage comprise, hors VRD, terrain viabilisé, assainissement non compris, frais de notaire non compris, taxes non comprises, frais divers non compris. Terrain sélectionné et vu pour vous sous réserve de disponibilité et au prix indiqué par notre partenaire foncier. Visuels non contractuels.Cette annonce a été créée et diffusée avec le logiciel VITAHOME.
Méaulte
TERRAINSuperbe terrain plat, borné, proche toutes commodités, grande façadePrix : 55000 €.Sur ce terrain, réalisez votre projet de construction de maison RE 2020 avec PAVILLONS D'ÎLE-DE-FRANCE (constructeur de maisons de gamme et sur-mesure depuis plus de 50 ans) :- Plan sur-mesure et personnalisé de 2 à 5 chambres- Mode de chauffage au choix- Grands choix d'équipements et de prestations- Matériaux de qualité selon les normes en vigueur- Accompagnement dans le choix et l’acquisition du terrainDemandez une étude gratuite et personnalisée de votre projet de construction sur ce terrain !Contactez Didier PHILIPPON au (Numéro supprimé) ou au (Numéro supprimé) (Pavillons d'Île-de-France – Agence d'Amiens).Prix hors frais de notaire. Terrain sélectionné et vu pour vous sous réserve de disponibilité et au prix indiqué par notre partenaire foncier. Visuels non contractuels.Cette annonce a été créée et diffusée avec le logiciel VITAHOME.
Albert
TERRAIN ET MAISONSur ce terrain, nous vous proposons cette maison neuve : la Focus EVO, un modèle unique de 110 m² conçu par Babeau-Seguin, constructeur offrant le meilleur rapport qualité/prix du marché. Cette maison basse consommation est conforme à la norme RE2020, garantissant des performances énergétiques exceptionnelles.La Focus EVO se distingue par son concept évolutif, alliant une maison neuve prête à vivre et une maison prête à finir. Livrée avec 73 m² habitables, elle est conçue pour évoluer avec vos besoins futurs. Grâce à ses combles aménageables, vous pouvez facilement augmenter votre surface habitable à 110 m², ajoutant ainsi deux chambres supplémentaires et une salle de bain, pour un total de 4 chambres et 2 salles de bains.Les caractéristiques principales de cette maison incluent un garage intégré, un cellier, et des combles aménageables. Les options les plus demandées par nos clients, telles que la version Investisseur et les prises USB murales, sont également disponibles.La Focus EVO est idéale pour tous ceux qui recherchent une maison complète à un prix compétitif. Elle comprend une grande pièce de jour traversante, 4 chambres, une salle de bain, et un garage de 15 m². Que vous soyez un jeune couple, un célibataire ou une famille en pleine expansion, cette maison saura s’adapter à vos besoins et à vos envies.Ne manquez pas cette occasion unique de devenir propriétaire d’une maison évolutive, économe en énergie et conforme aux dernières normes environnementales. Contactez-nous dès aujourd’hui pour plus d’informations et pour planifier une visite.
L’actualité immobilière à Albert
27/11/2023
02/11/2023
30/10/2023
20/10/2023
16/10/2023
16/10/2023