Images
Description
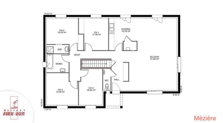
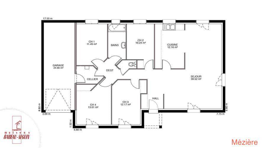
Sur ce terrain, nous vous proposons cette maison neuve, modèle Mézière, conçue par Babeau-Seguin, constructeur offrant le meilleur rapport qualité/prix du marché. Avec une surface de 108 m², cette maison basse consommation, conforme à la RE2020, saura répondre à toutes vos attentes.
La Mézière se distingue par son plan en L, disponible en version 2 pans ou 4 pans, et ses 4 chambres spacieuses réparties sur 4 pièces. Grâce à ses nombreuses versions, elle sait séduire et s’adapter aux besoins de chacun, ce qui fait de la Mézière une véritable maison sur mesure.
Les options les plus demandées par nos clients, telles que les menuiseries en aluminium, la domotique, ainsi que le garage ou le sous-sol, sont disponibles pour personnaliser votre maison selon vos envies et besoins.
Véritable coup de cœur pour de nombreux clients Babeau-Seguin, la Mézière est facilement modifiable, ce qui justifie pleinement son succès. Craquerez-vous aussi pour elle ?
N'attendez plus pour découvrir cette maison qui répondra aux besoins de nombreuses familles. Contactez-nous pour plus d'informations et pour organiser une visite.
Logement susceptibles de vous intéresser
Nous vous proposons de découvrir aussi cette sélection de logements situés à moins de 10km de Andechy et qui seraient susceptibles de vous intéresser.

Carrépuis
TERRAINNous vous présentons un terrain exceptionnel à vendre, offrant une surface généreuse de 796 m². Ce terrain, situé à Carrépuis dans la magnifique région des Hauts-de-France, représente une opportunité rare pour tous ceux souhaitant réaliser un projet de construction de maison. Arboré et non-viabilisé, il possède des caractéristiques uniques qui séduiront les amateurs de tranquillité et de nature. Idéalement situé dans le département de la Somme, Carrépuis est une commune qui allie authenticité et modernité. Vous y trouverez toutes les commodités nécessaires à votre quotidien, ainsi que des attractions locales qui feront le bonheur de toute la famille. Que ce soit pour des activités de loisirs, des balades en pleine nature ou des visites culturelles, cette ville a tout pour plaire. Profitez de ce cadre de vie où la qualité de vie est au rendez-vous, tout en étant à proximité des grandes villes comme Amiens. Ne manquez pas cette opportunité unique d’acquérir un terrain au potentiel illimité. Prenez dès maintenant contact pour découvrir ce bien rare qui n’attend plus que votre projet d’avenir. À noter qu’en tant que constructeur, nous ne sommes pas mandatés pour réaliser la vente de ce terrain.

Carrépuis
TERRAIN ET MAISONSur ce terrain, nous vous proposons cette maison neuve, le modèle Ménilière, une maison plain-pied moderne qui intègre de base un garage et une longue galerie sur la face avant. Avec une surface de 100 m², cette maison dispose de 4 chambres et de 4 pièces, offrant ainsi un espace de vie confortable et fonctionnel pour toute la famille.Véritable « »tout-en-un » » de la maison individuelle, ce modèle est idéal pour votre projet de construction sur-mesure. La Ménilière est disponible avec un toit à 2 pans ou 4 pans, selon vos préférences esthétiques. Le garage intégré et la galerie avant ajoutent une touche pratique et élégante à cette maison.Les options les plus demandées par nos clients, telles que les menuiseries en aluminium et le sous-sol, sont également disponibles pour personnaliser davantage votre future maison. De plus, cette maison neuve est basse consommation et conforme à la réglementation environnementale RE2020, garantissant ainsi des performances énergétiques optimales et un impact environnemental réduit.Le constructeur Babeau-Seguin, reconnu pour offrir le meilleur rapport qualité/prix du marché, vous accompagne dans la réalisation de votre projet immobilier. Avec un prix serré et une personnalisation facile, il n’est pas étonnant que la Ménilière soit dans le top 5 des ventes de Babeau-Seguin.Ne manquez pas cette opportunité unique de devenir propriétaire d’une maison moderne, économe en énergie et parfaitement adaptée à vos besoins. Contactez-nous dès maintenant pour plus d’informations et pour planifier une visite de ce modèle exceptionnel.

Andechy
TERRAINÀ la recherche d’un terrain idéal pour concrétiser votre projet de construction ? Ne cherchez plus ! Ce terrain non-viabilisé de 865 m², situé à Andechy, se caractérise par un ensoleillement optimal et un cadre de vie paisible. Avec son emplacement stratégique et ses nombreuses qualités, ce site offre une situation rêvée pour bâtir la maison de vos rêves. Ce terrain représente une opportunité unique, tant par sa taille que par ses atouts exceptionnels, parfaits pour un projet immobilier personnel. Ne laissez pas passer cette opportunité d’achat unique et envisagez dès maintenant le potentiel de ce terrain fascinant ! À noter qu’en tant que constructeur, nous ne sommes pas mandatés pour réaliser la vente de ce terrain.

Andechy
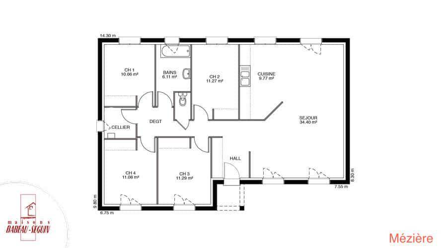
TERRAIN ET MAISONSur ce terrain, nous vous proposons cette maison neuve, modèle Mézière, conçue par Babeau-Seguin, constructeur offrant le meilleur rapport qualité/prix du marché. Avec une surface de 108 m², cette maison basse consommation, conforme à la RE2020, saura répondre à toutes vos attentes.La Mézière se distingue par son plan en L, disponible en version 2 pans ou 4 pans, et ses 4 chambres spacieuses réparties sur 4 pièces. Grâce à ses nombreuses versions, elle sait séduire et s’adapter aux besoins de chacun, ce qui fait de la Mézière une véritable maison sur mesure.Les options les plus demandées par nos clients, telles que les menuiseries en aluminium, la domotique, ainsi que le garage ou le sous-sol, sont disponibles pour personnaliser votre maison selon vos envies et besoins.Véritable coup de cœur pour de nombreux clients Babeau-Seguin, la Mézière est facilement modifiable, ce qui justifie pleinement son succès. Craquerez-vous aussi pour elle ?N’attendez plus pour découvrir cette maison qui répondra aux besoins de nombreuses familles. Contactez-nous pour plus d’informations et pour organiser une visite.

Arvillers
TERRAINDécouvrez ce terrain exceptionnel situé à Arvillers, dans le département de la Somme, en région Hauts-de-France. Avec une surface généreuse de 8000 m², ce terrain non-viabilisé vous offre une toile blanche idéale pour concrétiser votre projet de construction de maison. Ensoleillé et arboré, il bénéficie d’un emplacement de choix, parfait pour ceux qui souhaitent s’installer dans un cadre verdoyant et paisible. Arvillers est une ville charmante qui allie tranquillité et proximité avec toutes les commodités nécessaires. Elle est idéalement située à quelques minutes des principales attractions locales, vous permettant de profiter d’un cadre de vie agréable tout en bénéficiant des services de proximité. Les amoureux de la nature apprécieront les espaces verts environnants, tandis que les familles trouveront diverses infrastructures scolaires et commerciales à leur disposition. Ne manquez pas cette opportunité d’acquérir un terrain au potentiel immense au cœur des Hauts-de-France. Ce terrain représente une occasion rare d’investir dans un emplacement stratégique et attrayant. N’attendez plus pour envisager votre future maison sur ce terrain unique. À noter qu’en tant que constructeur, nous ne sommes pas mandatés pour réaliser la vente de ce terrain.

Arvillers
TERRAIN ET MAISONSur ce terrain, nous vous proposons Focus Flex, une maison neuve et flexible qui s’adapte à vos besoins actuels et futurs !Avec un espace de vie entièrement prêt à habiter de 50 m², cette maison moderne et économe en énergie, respectant la norme RE2020, vous offre tout le confort nécessaire à un prix exceptionnel.Le vrai plus ? Une extension aménageable de 45 m², prête à accueillir vos futurs projets ! Que votre famille s’agrandisse ou que vous ayez simplement besoin de plus d’espace, cette partie flexible, directement attenante à la maison principale, vous permet d’évoluer à votre rythme.Finis les travaux interminables et les trajets coûteux vers un chantier éloigné. Vous restez chez vous, tout en ajoutant des mètres carrés en fonction de vos envies. De plus, des options comme la dalle béton et l’extension des réseaux électriques et d’eau vous facilitent encore plus la tâche.Avec Focus Flex, vous choisissez une maison évolutive qui s’adapte à vos besoins tout en respectant votre style de vie. Profitez d’une maison neuve, immédiatement habitable, qui peut grandir avec vous ! Des conseils d’aménagement vous seront proposés pour vous accompagner dans cette aventure.

Hangest-en-Santerre
TERRAIN ET MAISONPavillon de 3 chambres dont 1 au rez-de-chausséeContactez Didier PHILIPPON au (Numéro supprimé) ou au (Numéro supprimé) (Pavillons d'Île-de-France – Agence d'Amiens).Prix avec assurance dommages-ouvrage comprise, hors VRD, terrain viabilisé, assainissement non compris, frais de notaire non compris, taxes non comprises, frais divers non compris. Terrain sélectionné et vu pour vous sous réserve de disponibilité et au prix indiqué par notre partenaire foncier. Visuels non contractuels.Cette annonce a été créée et diffusée avec le logiciel VITAHOME.

Hangest-en-Santerre
TERRAIN ET MAISONPavillon de plain pied, 3 chambres, belles prestationsContactez Didier PHILIPPON au (Numéro supprimé) ou au (Numéro supprimé) (Pavillons d'Île-de-France – Agence d'Amiens).Prix avec assurance dommages-ouvrage comprise, hors VRD, terrain viabilisé, assainissement non compris, frais de notaire non compris, taxes non comprises, frais divers non compris. Terrain sélectionné et vu pour vous sous réserve de disponibilité et au prix indiqué par notre partenaire foncier. Visuels non contractuels.Cette annonce a été créée et diffusée avec le logiciel VITAHOME.

Hangest-en-Santerre
TERRAIN ET MAISONRéalisez votre projet de construction de maison RE 2020 avec PAVILLONS D'ÎLE-DE-FRANCE (constructeur de maisons de gamme et sur-mesure depuis plus de 50 ans) :- Plan sur-mesure et personnalisé de 2 à 5 chambres- Mode de chauffage au choix- Grands choix d'équipements et de prestations- Matériaux de qualité selon les normes en vigueur- Accompagnement dans le choix et l’acquisition du terrainInformations du terrain : Magnifique terrain plat, arboré, borné dans bourg toutes commodités à 10mn de ROYE et 20mn de LONGUEAUDemandez une étude gratuite et personnalisée de votre projet de construction !Contactez Didier PHILIPPON au (Numéro supprimé) ou au (Numéro supprimé) (Pavillons d'Île-de-France – Agence d'Amiens).Prix avec assurance dommages-ouvrage comprise, hors VRD, terrain viabilisé, assainissement non compris, frais de notaire non compris, taxes non comprises, frais divers non compris. Terrain sélectionné et vu pour vous sous réserve de disponibilité et au prix indiqué par notre partenaire foncier. Visuels non contractuels.Cette annonce a été créée et diffusée avec le logiciel VITAHOME.
L’actualité immobilière à Andechy





