Maison à construire à Frohen le Grand (80370)
Images
Description
VENTE d'une maison F8 (145 m²) à Frohen le Grand - 12 minutes de Doullens
MAISON 8 PIÈCES NEUVE
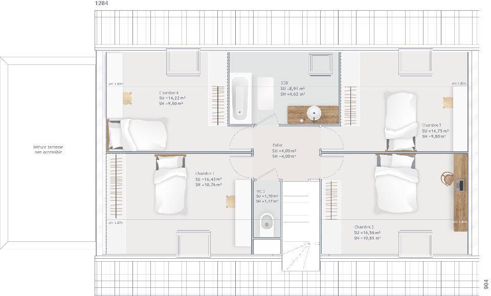
En vente : à Frohen le Grand (80370), votre agence Maisons Les Naturelles Abbeville est ravie de vous proposer cette maison de 8 pièces de 145 m² et de 2 844 m² de terrain. Son intérieur inclut six chambres, une cuisine et deux salles de bains.
C'est une maison de 2 niveaux. Elle est neuve.
Il y a une boucherie-charcuterie à quelques minutes à peine.
Son prix de vente est de 319 316 €.
Contactez Camille CISSEVILLE (tél : (Numéro supprimé)) pour toute question sur la maison ou sur les démarches à suivre. Donnez vie à vos projets immobiliers avec Maisons Les Naturelles Abbeville.
Logement susceptibles de vous intéresser
Nous vous proposons de découvrir aussi cette sélection de logements situés à moins de 10km de Bernaville et qui seraient susceptibles de vous intéresser.

Pernois
TERRAINDécouvrez ce terrain d’exception situé à Pernois, un havre de paix arboré et ensoleillé, parfait pour concrétiser votre projet de construction de maison. Avec une surface généreuse, ce terrain viabilisé vous offre une belle opportunité de développer votre espace de vie dans un cadre champêtre et calme. Profitez de la qualité de vie qu’offre cet emplacement unique, idéal pour les familles en quête de tranquillité et de confort. Ne manquez pas cette chance d’investir dans un projet de vie sur mesure. Ne passez pas à côté de cette opportunité d’acquérir un terrain avec un potentiel immense. Imaginez votre future maison dans ce cadre idyllique et lancez-vous dans cette belle aventure. À noter qu’en tant que constructeur, nous ne sommes pas mandatés pour réaliser la vente de ce terrain.

Pernois
TERRAIN ET MAISONSur ce terrain, nous vous proposons cette maison neuve Aubetière, un modèle traditionnel de la gamme Babeau-Seguin, constructeur reconnu pour offrir le meilleur rapport qualité/prix du marché. Avec une surface de 88 m², cette maison de plain-pied se compose de 4 pièces, dont 3 chambres spacieuses, idéales pour accueillir toute votre famille.L’Aubetière se distingue par son excellent rapport qualité/prix et sa conformité aux normes RE2020, garantissant une basse consommation énergétique. Vous avez la possibilité de personnaliser votre maison en choisissant entre un toit à 2 pans ou à 4 pans, ainsi qu’en ajoutant un garage ou un sous-sol selon vos besoins.Cette maison moderne et fonctionnelle est conçue pour s’adapter à vos envies et à votre mode de vie. Profitez de la flexibilité offerte par les nombreux plans et déclinaisons disponibles pour créer votre maison individuelle sur mesure.Ne manquez pas cette opportunité de donner vie à votre projet de construction avec le modèle Aubetière, une maison neuve qui allie confort, économie d’énergie et personnalisation. Contactez-nous dès maintenant pour plus d’informations et pour découvrir toutes les options disponibles pour votre future maison.

Bernaville
TERRAINFrohen le Grand : terrain de 2 844 m² en vente – 12 minutes de DoullensÀ Frohen le Grand (80370), donnez vie à votre résidence principale ou secondaire sur ce terrain de 2 844 m². Il donne sur un espace vert. On trouve une boucherie-charcuterie dans les environs.Il est proposé à l’achat pour 71 100 €. Contactez notre agence (CISSEVILLE Camille : (Numéro supprimé)) pour obtenir de plus amples informations sur ce terrain.

Bernaville
TERRAIN ET MAISONMaison à ossature bois de 5 pièces (113 m²) à vendre à Frohen le Grand – 12 minutes de DoullensMAISON OSSATURE BOIS 5 PIÈCES NEUVENotre agence Maisons Les Naturelles Abbeville est heureuse de vous présenter cette maison de 5 pièces de plain-pied de 113 m² et de 2 844 m² de terrain en vente à Frohen le Grand (80370). Elle compte quatre chambres, une cuisine et deux salles de bains.La maison est neuve.Il y a une boucherie-charcuterie à quelques minutes.Elle est à vendre pour la somme de 309 056 €.Prenez contact avec notre agence (Camille CISSEVILLE : (Numéro supprimé)) pour plus de renseignements sur cette maison. Maisons Les Naturelles Abbeville est là pour vous accompagner dans toutes vos démarches.

Bernaville
TERRAIN ET MAISONVENTE d’une maison à ossature bois de 4 pièces (120 m²) à Frohen le Grand – 12 minutes de DoullensMAISON OSSATURE BOIS 4 PIÈCES NEUVENotre agence Maisons Les Naturelles Abbeville est ravie de vous proposer en vente à Frohen le Grand (80370), cette maison de 4 pièces de plain-pied de 120 m² et de 2 844 m² de terrain.Conçue de plain-pied, elle compte trois chambres, une cuisine et deux salles de bains. La maison est neuve.Il y a une boucherie-charcuterie dans les environs.Son prix de vente est de 395 397 €.Prenez contact avec Camille CISSEVILLE (tél : (Numéro supprimé)) pour toute question sur la maison, sur les démarches à suivre ou sur les modalités de vente.

Bernaville
TERRAIN ET MAISONVENTE : maison de 7 pièces (120 m²) à Frohen le Grand – 12 minutes de DoullensMAISON 7 PIÈCES NEUVEEn vente : ayez le coup de coeur pour cette maison de 7 pièces de 120 m² à Frohen le Grand (80370). Son intérieur se divise en cinq chambres, une cuisine et deux salles de bains.Le terrain du bien s’étend sur 2 844 m².C’est une maison de 2 niveaux. Elle est neuve.Il y a une boucherie-charcuterie à proximité de la maison.Elle est proposée à l’achat pour 299 879 €.Contactez Camille CISSEVILLE ((Numéro supprimé)) pour toute information sur la maison, sur les modalités de vente ou sur les démarches à suivre. Concrétisez vos projets immobiliers avec Maisons Les Naturelles Abbeville.

Bernaville
TERRAIN ET MAISONVENTE : maison de 6 pièces (140 m²) à Frohen le Grand – 12 minutes de DoullensMAISON 6 PIÈCES NEUVEMaisons Les Naturelles Abbeville vous présente en vente à Frohen le Grand (80370), cette maison de 6 pièces de plain-pied de 140 m² et de 2 844 m² de terrain.Conçue de plain-pied, elle se divise en cinq chambres, une cuisine et deux salles de bains. La maison est neuve.On trouve une boucherie-charcuterie dans les environs.Son prix de vente est de 333 460 €.Contactez notre agence (CISSEVILLE Camille : (Numéro supprimé)) pour plus de renseignements sur la maison. Faites de vos projets immobiliers une réalité avec Maisons Les Naturelles Abbeville.

Bernaville
TERRAIN ET MAISONVENTE d’une maison F8 (145 m²) à Frohen le Grand – 12 minutes de DoullensMAISON 8 PIÈCES NEUVEEn vente : à Frohen le Grand (80370), votre agence Maisons Les Naturelles Abbeville est ravie de vous proposer cette maison de 8 pièces de 145 m² et de 2 844 m² de terrain. Son intérieur inclut six chambres, une cuisine et deux salles de bains.C’est une maison de 2 niveaux. Elle est neuve.Il y a une boucherie-charcuterie à quelques minutes à peine.Son prix de vente est de 319 316 €.Contactez Camille CISSEVILLE (tél : (Numéro supprimé)) pour toute question sur la maison ou sur les démarches à suivre. Donnez vie à vos projets immobiliers avec Maisons Les Naturelles Abbeville.

Bernaville
TERRAIN ET MAISONFrohen le Grand : maison de 5 pièces (90 m²) à vendre – 12 minutes de DoullensMAISON 5 PIÈCES NEUVEÀ vendre : notre agence Maisons Les Naturelles Abbeville est heureuse de vous présenter cette maison de 5 pièces de plain-pied de 90 m² à Frohen le Grand (80370). Elle inclut trois chambres, une cuisine et deux salles de bains.Le terrain du bien est de 2 844 m².La maison est neuve.Il y a une boucherie-charcuterie à quelques minutes.Elle est à vendre pour la somme de 253 197 €.Contactez Camille CISSEVILLE (tél : (Numéro supprimé)) pour obtenir de plus amples renseignements sur cette propri��té, sur les démarches à suivre et sur les modalités de vente.
L’actualité immobilière à Bernaville





