Images
Description
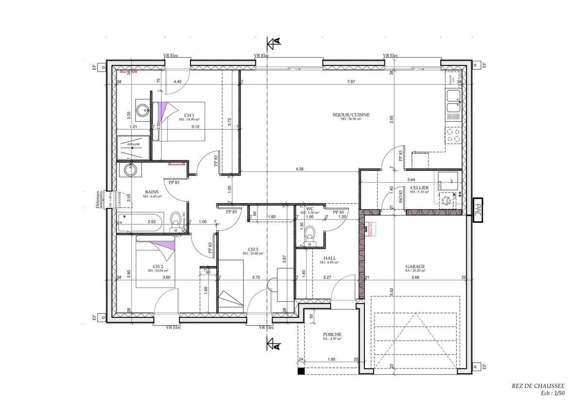
Sur ce terrain, nous vous proposons cette maison neuve : Verdania. Conçue par Babeau-Seguin, constructeur offrant le meilleur rapport qualité/prix du marché, cette maison de 91 m² allie harmonieusement bien-être et facilité d’accès.
Verdania est un modèle astucieux qui fusionne le confort familial avec un prix accessible. Fruit d’une collaboration étroite avec des partenaires industriels de confiance, cette maison en forme de L est pensée pour satisfaire les exigences des familles modernes soucieuses de leur budget.
Avec ses 4 pièces, dont 3 chambres et une suite parentale, Verdania offre un espace de vie optimal. Le vaste séjour lumineux, éclairé par des baies coulissantes, crée un espace convivial et chaleureux. La maison comprend également un cellier et un garage intégré dans la partie en L, ajoutant une touche de praticité.
La toiture à 4 pans et à faible pente, ainsi que le porche accueillant à l’entrée, confèrent à Verdania une allure élégante et moderne. Les options les plus demandées, comme la terrasse bétonnée, peuvent être ajoutées pour encore plus de confort.
Cette maison neuve est basse consommation et conforme à la norme RE2020, garantissant une performance énergétique optimale et un respect de l’environnement. Verdania va au-delà de la maîtrise financière en intégrant des équipements économiques et écologiques de pointe.
Avec une salle de bain comprenant à la fois une douche et une baignoire, Verdania répond aux besoins d’un grand nombre de familles tout en respectant leur budget. L’équilibre parfait entre un prix maîtrisé et un confort de vie optimal.
Ne manquez pas cette opportunité unique de devenir propriétaire d’une maison Verdania, où chaque détail est pensé pour votre bien-être et votre confort.
Logement susceptibles de vous intéresser
Nous vous proposons de découvrir aussi cette sélection de logements situés à moins de 10km de Blangy-sous-Poix et qui seraient susceptibles de vous intéresser.
Quevauvillers
TERRAINTrès beau terrain plat à 15 mn de l'hôpital Sud, borné, plat, dans commune avec écoles, commercesPrix : 85700 €.Sur ce terrain, réalisez votre projet de construction de maison RE 2020 avec PAVILLONS D'ÎLE-DE-FRANCE (constructeur de maisons de gamme et sur-mesure depuis plus de 50 ans) :- Plan sur-mesure et personnalisé de 2 à 5 chambres- Mode de chauffage au choix- Grands choix d'équipements et de prestations- Matériaux de qualité selon les normes en vigueur- Accompagnement dans le choix et l’acquisition du terrainDemandez une étude gratuite et personnalisée de votre projet de construction sur ce terrain !Contactez Didier PHILIPPON au (Numéro supprimé) ou au (Numéro supprimé) (Pavillons d'Île-de-France – Agence d'Amiens).Prix hors frais de notaire. Terrain sélectionné et vu pour vous sous réserve de disponibilité et au prix indiqué par notre partenaire foncier. Visuels non contractuels.Cette annonce a été créée et diffusée avec le logiciel VITAHOME.
Quevauvillers
TERRAINTerrain à bâtir de 850m² à QuevauvillersVenez découvrir ce terrain viabilisé de 820m² avec uyne façade de 21.84m, situé dans une zone calme et verdoyante, à seulement 15 minutes du CHU d'Amiens. Proche de toutes commodités et commerces. Idéal pour réaliser votre projet de maison. À saisir pour 73 800€.Contactez-nous pour plus de détails !Prix : 73800 €.Sur ce terrain, réalisez votre projet de construction de maison RE 2020 avec PAVILLONS D'ÎLE-DE-FRANCE (constructeur de maisons de gamme et sur-mesure depuis plus de 50 ans) :- Plan sur-mesure et personnalisé de 2 à 5 chambres- Mode de chauffage au choix- Grands choix d'équipements et de prestations- Matériaux de qualité selon les normes en vigueur- Accompagnement dans le choix et l’acquisition du terrainDemandez une étude gratuite et personnalisée de votre projet de construction sur ce terrain !Contactez Didier PHILIPPON au (Numéro supprimé) ou au (Numéro supprimé) (Pavillons d'Île-de-France – Agence d'Amiens).Prix hors frais de notaire. Terrain sélectionné et vu pour vous sous réserve de disponibilité et au prix indiqué par notre partenaire foncier. Visuels non contractuels.Cette annonce a été créée et diffusée avec le logiciel VITAHOME.
Quevauvillers
TERRAINA 15mn de l'hôpital Sud, superbe terrain avec grande façade, plat, bornéPrix : 82000 €.Sur ce terrain, réalisez votre projet de construction de maison RE 2020 avec PAVILLONS D'ÎLE-DE-FRANCE (constructeur de maisons de gamme et sur-mesure depuis plus de 50 ans) :- Plan sur-mesure et personnalisé de 2 à 5 chambres- Mode de chauffage au choix- Grands choix d'équipements et de prestations- Matériaux de qualité selon les normes en vigueur- Accompagnement dans le choix et l’acquisition du terrainDemandez une étude gratuite et personnalisée de votre projet de construction sur ce terrain !Contactez Didier PHILIPPON au (Numéro supprimé) ou au (Numéro supprimé) (Pavillons d'Île-de-France – Agence d'Amiens).Prix hors frais de notaire. Terrain sélectionné et vu pour vous sous réserve de disponibilité et au prix indiqué par notre partenaire foncier. Visuels non contractuels.Cette annonce a été créée et diffusée avec le logiciel VITAHOME.
Quevauvillers
TERRAIN ET MAISONRéalisez votre projet de construction de maison RE 2020 avec PAVILLONS D'ÎLE-DE-FRANCE (constructeur de maisons de gamme et sur-mesure depuis plus de 50 ans) :- Plan sur-mesure et personnalisé de 2 à 5 chambres- Mode de chauffage au choix- Grands choix d'équipements et de prestations- Matériaux de qualité selon les normes en vigueur- Accompagnement dans le choix et l’acquisition du terrainInformations du terrain : Terrain à bâtir de 850m² à QuevauvillersVenez découvrir ce terrain viabilisé de 820m² avec uyne façade de 21.84m, situé dans une zone calme et verdoyante, à seulement 15 minutes du CHU d'Amiens. Proche de toutes commodités et commerces. Idéal pour réaliser votre projet de maison. À saisir pour 73 800€.Contactez-nous pour plus de détails !Demandez une étude gratuite et personnalisée de votre projet de construction !Contactez Didier PHILIPPON au (Numéro supprimé) ou au (Numéro supprimé) (Pavillons d'Île-de-France – Agence d'Amiens).Prix avec assurance dommages-ouvrage comprise, hors VRD, terrain non viabilisé, assainissement non compris, frais de notaire non compris, taxes non comprises, frais divers non compris. Terrain sélectionné et vu pour vous sous réserve de disponibilité et au prix indiqué par notre partenaire foncier. Visuels non contractuels.Cette annonce a été créée et diffusée avec le logiciel VITAHOME.
Quevauvillers
TERRAIN ET MAISONRéalisez votre projet de construction de maison RE 2020 avec PAVILLONS D'ÎLE-DE-FRANCE (constructeur de maisons de gamme et sur-mesure depuis plus de 50 ans) :- Plan sur-mesure et personnalisé de 2 à 5 chambres- Mode de chauffage au choix- Grands choix d'équipements et de prestations- Matériaux de qualité selon les normes en vigueur- Accompagnement dans le choix et l’acquisition du terrainInformations du terrain : Terrain à bâtir de 850m² à QuevauvillersVenez découvrir ce terrain viabilisé de 820m² avec uyne façade de 21.84m, situé dans une zone calme et verdoyante, à seulement 15 minutes du CHU d'Amiens. Proche de toutes commodités et commerces. Idéal pour réaliser votre projet de maison. À saisir pour 73 800€.Contactez-nous pour plus de détails !Demandez une étude gratuite et personnalisée de votre projet de construction !Contactez Didier PHILIPPON au (Numéro supprimé) ou au (Numéro supprimé) (Pavillons d'Île-de-France – Agence d'Amiens).Prix avec assurance dommages-ouvrage comprise, hors VRD, terrain non viabilisé, assainissement non compris, frais de notaire non compris, taxes non comprises, frais divers non compris. Terrain sélectionné et vu pour vous sous réserve de disponibilité et au prix indiqué par notre partenaire foncier. Visuels non contractuels.Cette annonce a été créée et diffusée avec le logiciel VITAHOME.
Quevauvillers
TERRAIN ET MAISONRéalisez votre projet de construction de maison RE 2020 avec PAVILLONS D'ÎLE-DE-FRANCE (constructeur de maisons de gamme et sur-mesure depuis plus de 50 ans) :- Plan sur-mesure et personnalisé de 2 à 5 chambres- Mode de chauffage au choix- Grands choix d'équipements et de prestations- Matériaux de qualité selon les normes en vigueur- Accompagnement dans le choix et l’acquisition du terrainInformations du terrain : Terrain à bâtir de 850m² à QuevauvillersVenez découvrir ce terrain viabilisé de 820m² avec uyne façade de 21.84m, situé dans une zone calme et verdoyante, à seulement 15 minutes du CHU d'Amiens. Proche de toutes commodités et commerces. Idéal pour réaliser votre projet de maison. À saisir pour 73 800€.Contactez-nous pour plus de détails !Demandez une étude gratuite et personnalisée de votre projet de construction !Contactez Didier PHILIPPON au (Numéro supprimé) ou au (Numéro supprimé) (Pavillons d'Île-de-France – Agence d'Amiens).Prix avec assurance dommages-ouvrage comprise, hors VRD, terrain non viabilisé, assainissement non compris, frais de notaire non compris, taxes non comprises, frais divers non compris. Terrain sélectionné et vu pour vous sous réserve de disponibilité et au prix indiqué par notre partenaire foncier. Visuels non contractuels.Cette annonce a été créée et diffusée avec le logiciel VITAHOME.
Dargies
TERRAINNous avons le plaisir de vous présenter un terrain à vendre d’une surface généreuse de 562m², idéalement situé dans la charmante commune de Dargies, dans le département de l’Oise. Ce terrain viabilisé est parfait pour le projet de construction de votre future maison. Bénéficiez d’un environnement paisible et serein, tout en ayant accès à des commodités locales qui font de Dargies un lieu de vie privilégié. Ne manquez pas cette opportunité rare d’acquérir un terrain dont le potentiel est illimité. Ce terrain représente une occasion unique de concrétiser vos rêves d’habitat dans un environnement d’exception. À noter qu’en tant que constructeur, nous ne sommes pas mandatés pour réaliser la vente de ce terrain.
Dargies
TERRAIN ET MAISONSur ce terrain, nous vous proposons cette maison neuve, modèle Flavière, construite par Babeau-Seguin, le constructeur offrant le meilleur rapport qualité/prix du marché. Cette maison basse consommation, conforme à la RE2020, figure parmi les plus petits modèles de plain-pied actuellement disponibles sur le marché de la maison individuelle.Avec une surface de 69 m², cette maison compacte et fonctionnelle dispose de 4 pièces, dont 3 chambres, offrant ainsi un espace de vie confortable et optimisé. Le vaste séjour lumineux est idéal pour des moments de convivialité en famille ou entre amis.Le modèle Flavière intègre également un garage, répondant ainsi aux besoins de stationnement et de rangement de ses futurs occupants. Cette maison à prix réduit est une opportunité à ne pas manquer pour ceux qui recherchent une habitation moderne, économique et respectueuse de l’environnement.N’attendez plus pour découvrir cette maison neuve et basse consommation, parfaitement adaptée à vos besoins et à votre budget. Contactez-nous dès maintenant pour plus d’informations et pour organiser une visite du terrain.
Poix-de-Picardie
TERRAINFrancis Gense Immobilierà Proximité de POIX-de-PicardieTERRAIN à Bâtir de 2292 m² plat et clos.avec façade d’environ 40 m.Merci de me téléphoner de préférence, pour plus de renseignements et visite.Honoraires d’agence à la charge du vendeur.Consultez nos tarifs sur le site de Immobilier Email.Annonce publiée le 14/12/2025 par Francis Gense (Numéro supprimé), RSAC 528623630 – agent commercial indépendant de IMMOBILIER EMAIL SAS – EI, Tribunal de Commerce de Amiens
L’actualité immobilière à Blangy-sous-Poix
27/11/2023
02/11/2023
30/10/2023
20/10/2023
16/10/2023
16/10/2023