Images
Description
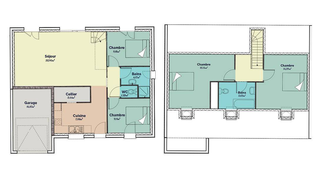
Sur ce terrain, nous vous proposons cette maison neuve : la Focus EVO, un modèle unique de 110 m² conçu par Babeau-Seguin, constructeur offrant le meilleur rapport qualité/prix du marché. Cette maison basse consommation est conforme à la norme RE2020, garantissant des performances énergétiques exceptionnelles.
La Focus EVO se distingue par son concept évolutif, alliant une maison neuve prête à vivre et une maison prête à finir. Livrée avec 73 m² habitables, elle est conçue pour évoluer avec vos besoins futurs. Grâce à ses combles aménageables, vous pouvez facilement augmenter votre surface habitable à 110 m², ajoutant ainsi deux chambres supplémentaires et une salle de bain, pour un total de 4 chambres et 2 salles de bains.
Les caractéristiques principales de cette maison incluent un garage intégré, un cellier, et des combles aménageables. Les options les plus demandées par nos clients, telles que la version Investisseur et les prises USB murales, sont également disponibles.
La Focus EVO est idéale pour tous ceux qui recherchent une maison complète à un prix compétitif. Elle comprend une grande pièce de jour traversante, 4 chambres, une salle de bain, et un garage de 15 m². Que vous soyez un jeune couple, un célibataire ou une famille en pleine expansion, cette maison saura s'adapter à vos besoins et à vos envies.
Ne manquez pas cette occasion unique de devenir propriétaire d'une maison évolutive, économe en énergie et conforme aux dernières normes environnementales. Contactez-nous dès aujourd'hui pour plus d'informations et pour planifier une visite.
Logement susceptibles de vous intéresser
Nous vous proposons de découvrir aussi cette sélection de logements situés à moins de 10km de Brassy et qui seraient susceptibles de vous intéresser.
Dargies
TERRAINNous avons le plaisir de vous présenter un terrain à vendre d’une surface généreuse de 562m², idéalement situé dans la charmante commune de Dargies, dans le département de l’Oise. Ce terrain viabilisé est parfait pour le projet de construction de votre future maison. Bénéficiez d’un environnement paisible et serein, tout en ayant accès à des commodités locales qui font de Dargies un lieu de vie privilégié. Ne manquez pas cette opportunité rare d’acquérir un terrain dont le potentiel est illimité. Ce terrain représente une occasion unique de concrétiser vos rêves d’habitat dans un environnement d’exception. À noter qu’en tant que constructeur, nous ne sommes pas mandatés pour réaliser la vente de ce terrain.
Dargies
TERRAIN ET MAISONSur ce terrain, nous vous proposons cette maison neuve, modèle Flavière, construite par Babeau-Seguin, le constructeur offrant le meilleur rapport qualité/prix du marché. Cette maison basse consommation, conforme à la RE2020, figure parmi les plus petits modèles de plain-pied actuellement disponibles sur le marché de la maison individuelle.Avec une surface de 69 m², cette maison compacte et fonctionnelle dispose de 4 pièces, dont 3 chambres, offrant ainsi un espace de vie confortable et optimisé. Le vaste séjour lumineux est idéal pour des moments de convivialité en famille ou entre amis.Le modèle Flavière intègre également un garage, répondant ainsi aux besoins de stationnement et de rangement de ses futurs occupants. Cette maison à prix réduit est une opportunité à ne pas manquer pour ceux qui recherchent une habitation moderne, économique et respectueuse de l’environnement.N’attendez plus pour découvrir cette maison neuve et basse consommation, parfaitement adaptée à vos besoins et à votre budget. Contactez-nous dès maintenant pour plus d’informations et pour organiser une visite du terrain.
Poix-de-Picardie
TERRAINFrancis Gense Immobilierà Proximité de POIX-de-PicardieTERRAIN à Bâtir de 2292 m² plat et clos.avec façade d’environ 40 m.Merci de me téléphoner de préférence, pour plus de renseignements et visite.Honoraires d’agence à la charge du vendeur.Consultez nos tarifs sur le site de Immobilier Email.Annonce publiée le 12/12/2025 par Francis Gense (Numéro supprimé), RSAC 528623630 – agent commercial indépendant de IMMOBILIER EMAIL SAS – EI, Tribunal de Commerce de Amiens
Poix-de-Picardie
TERRAIN ET MAISONRéalisez votre projet de construction de maison RE 2020 avec PAVILLONS D'ÎLE-DE-FRANCE (constructeur de maisons de gamme et sur-mesure depuis plus de 50 ans) :- Plan sur-mesure et personnalisé de 2 à 5 chambres- Mode de chauffage au choix- Grands choix d'équipements et de prestations- Matériaux de qualité selon les normes en vigueur- Accompagnement dans le choix et l’acquisition du terrainInformations du terrain : Terrain à bâtir de 387m² à Poix-de-PicardieTerrain de 387m² situé dans un village calme avec gare et commerces, à seulement 25 minutes du CHU d'Amiens. Idéal pour votre projet de construction. À saisir pour 29 400€.Contactez-nous pour plus d'infos !Demandez une étude gratuite et personnalisée de votre projet de construction !Contactez Didier PHILIPPON au (Numéro supprimé) ou au (Numéro supprimé) (Pavillons d'Île-de-France – Agence d'Amiens).Prix avec assurance dommages-ouvrage comprise, hors VRD, terrain viabilisé, assainissement non compris, frais de notaire non compris, taxes non comprises, frais divers non compris. Terrain sélectionné et vu pour vous sous réserve de disponibilité et au prix indiqué par notre partenaire foncier. Visuels non contractuels.Cette annonce a été créée et diffusée avec le logiciel VITAHOME.
Poix-de-Picardie
TERRAIN ET MAISONRéalisez votre projet de construction de maison RE 2020 avec PAVILLONS D'ÎLE-DE-FRANCE (constructeur de maisons de gamme et sur-mesure depuis plus de 50 ans) :- Plan sur-mesure et personnalisé de 2 à 5 chambres- Mode de chauffage au choix- Grands choix d'équipements et de prestations- Matériaux de qualité selon les normes en vigueur- Accompagnement dans le choix et l’acquisition du terrainInformations du terrain : Terrain à bâtir de 387m² à Poix-de-PicardieTerrain de 387m² situé dans un village calme avec gare et commerces, à seulement 25 minutes du CHU d'Amiens. Idéal pour votre projet de construction. À saisir pour 29 400€.Contactez-nous pour plus d'infos !Demandez une étude gratuite et personnalisée de votre projet de construction !Contactez Didier PHILIPPON au (Numéro supprimé) ou au (Numéro supprimé) (Pavillons d'Île-de-France – Agence d'Amiens).Prix avec assurance dommages-ouvrage comprise, hors VRD, terrain viabilisé, assainissement non compris, frais de notaire non compris, taxes non comprises, frais divers non compris. Terrain sélectionné et vu pour vous sous réserve de disponibilité et au prix indiqué par notre partenaire foncier. Visuels non contractuels.Cette annonce a été créée et diffusée avec le logiciel VITAHOME.
Poix-de-Picardie
TERRAIN ET MAISONRéalisez votre projet de construction de maison RE 2020 avec PAVILLONS D'ÎLE-DE-FRANCE (constructeur de maisons de gamme et sur-mesure depuis plus de 50 ans) :- Plan sur-mesure et personnalisé de 2 à 5 chambres- Mode de chauffage au choix- Grands choix d'équipements et de prestations- Matériaux de qualité selon les normes en vigueur- Accompagnement dans le choix et l’acquisition du terrainInformations du terrain : Terrain à bâtir de 387m² à Poix-de-PicardieTerrain de 387m² situé dans un village calme avec gare et commerces, à seulement 25 minutes du CHU d'Amiens. Idéal pour votre projet de construction. À saisir pour 29 400€.Contactez-nous pour plus d'infos !Demandez une étude gratuite et personnalisée de votre projet de construction !Contactez Didier PHILIPPON au (Numéro supprimé) ou au (Numéro supprimé) (Pavillons d'Île-de-France – Agence d'Amiens).Prix avec assurance dommages-ouvrage comprise, hors VRD, terrain viabilisé, assainissement non compris, frais de notaire non compris, taxes non comprises, frais divers non compris. Terrain sélectionné et vu pour vous sous réserve de disponibilité et au prix indiqué par notre partenaire foncier. Visuels non contractuels.Cette annonce a été créée et diffusée avec le logiciel VITAHOME.
Poix-de-Picardie
TERRAINTerrain à bâtir de 387m² à Poix-de-PicardieTerrain de 387m² situé dans un village calme avec gare et commerces, à seulement 25 minutes du CHU d'Amiens. Idéal pour votre projet de construction. À saisir pour 29 400€.Contactez-nous pour plus d'infos !Prix : 29400 €.Sur ce terrain, réalisez votre projet de construction de maison RE 2020 avec PAVILLONS D'ÎLE-DE-FRANCE (constructeur de maisons de gamme et sur-mesure depuis plus de 50 ans) :- Plan sur-mesure et personnalisé de 2 à 5 chambres- Mode de chauffage au choix- Grands choix d'équipements et de prestations- Matériaux de qualité selon les normes en vigueur- Accompagnement dans le choix et l’acquisition du terrainDemandez une étude gratuite et personnalisée de votre projet de construction sur ce terrain !Contactez Didier PHILIPPON au (Numéro supprimé) ou au (Numéro supprimé) (Pavillons d'Île-de-France – Agence d'Amiens).Prix hors frais de notaire. Terrain sélectionné et vu pour vous sous réserve de disponibilité et au prix indiqué par notre partenaire foncier. Visuels non contractuels.Cette annonce a été créée et diffusée avec le logiciel VITAHOME.
Brassy
TERRAIN ET MAISONSur ce terrain, nous vous proposons cette maison neuve : la Focus EVO, un modèle unique de 110 m² conçu par Babeau-Seguin, constructeur offrant le meilleur rapport qualité/prix du marché. Cette maison basse consommation est conforme à la norme RE2020, garantissant des performances énergétiques exceptionnelles.La Focus EVO se distingue par son concept évolutif, alliant une maison neuve prête à vivre et une maison prête à finir. Livrée avec 73 m² habitables, elle est conçue pour évoluer avec vos besoins futurs. Grâce à ses combles aménageables, vous pouvez facilement augmenter votre surface habitable à 110 m², ajoutant ainsi deux chambres supplémentaires et une salle de bain, pour un total de 4 chambres et 2 salles de bains.Les caractéristiques principales de cette maison incluent un garage intégré, un cellier, et des combles aménageables. Les options les plus demandées par nos clients, telles que la version Investisseur et les prises USB murales, sont également disponibles.La Focus EVO est idéale pour tous ceux qui recherchent une maison complète à un prix compétitif. Elle comprend une grande pièce de jour traversante, 4 chambres, une salle de bain, et un garage de 15 m². Que vous soyez un jeune couple, un célibataire ou une famille en pleine expansion, cette maison saura s’adapter à vos besoins et à vos envies.Ne manquez pas cette occasion unique de devenir propriétaire d’une maison évolutive, économe en énergie et conforme aux dernières normes environnementales. Contactez-nous dès aujourd’hui pour plus d’informations et pour planifier une visite.
Brassy
TERRAINNous avons le plaisir de vous proposer ce terrain non-viabilisé de 767m², situé dans la charmante commune de Brassy, au cœur du département de la Somme (80). Ce bien rare offre un cadre arboré dans un environnement champêtre, idéal pour votre projet de construction de maison. Profitez de ce dernier terrain disponible, parfait pour réaliser la maison de vos rêves, tout en étant au calme et à l’abri du tumulte urbain. Ne laissez pas passer cette opportunité d’acquérir un terrain rare en pleine nature. Nous vous invitons à envisager ce projet de construction qui pourrait devenir votre refuge idyllique. À noter qu’en tant que constructeur, nous ne sommes pas mandatés pour réaliser la vente de ce terrain.
L’actualité immobilière à Brassy
27/11/2023
02/11/2023
30/10/2023
20/10/2023
16/10/2023
16/10/2023