Images
Description
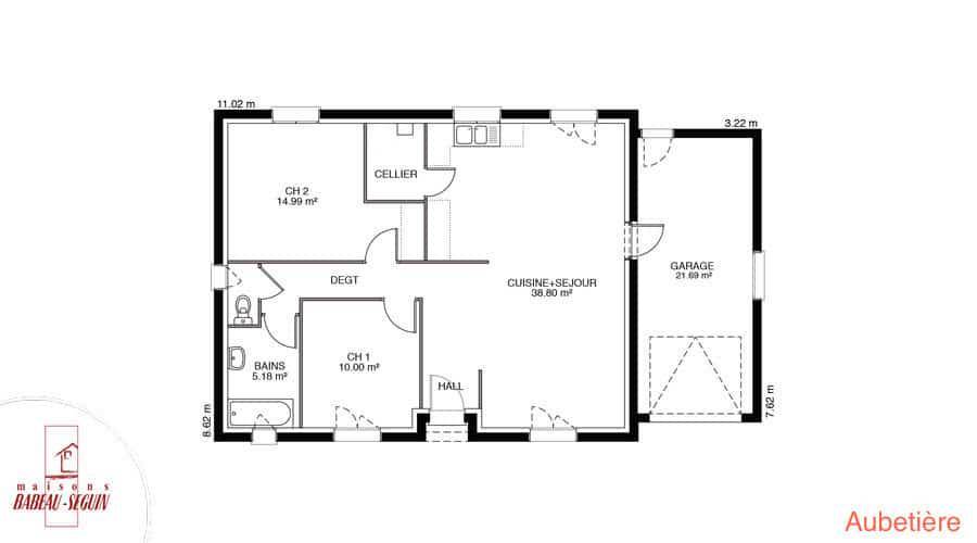
Sur ce terrain, nous vous proposons cette maison neuve Aubetière, un modèle traditionnel signé Babeau-Seguin, constructeur reconnu pour offrir le meilleur rapport qualité/prix du marché. Avec une surface de 111 m², cette maison de plain-pied se distingue par son design moderne et ses nombreuses options de personnalisation.
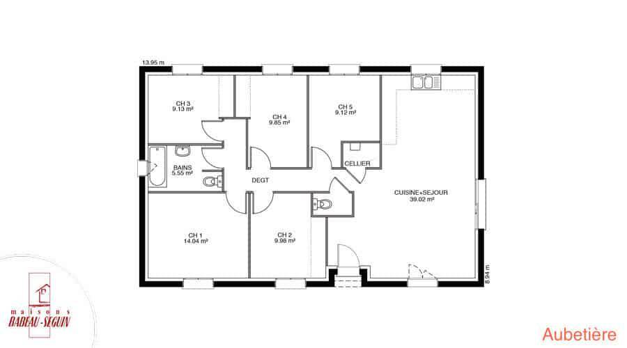
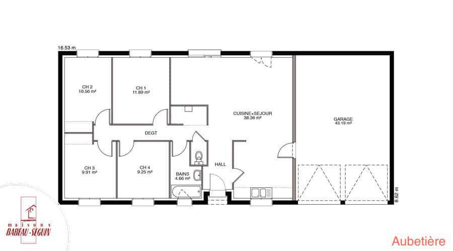
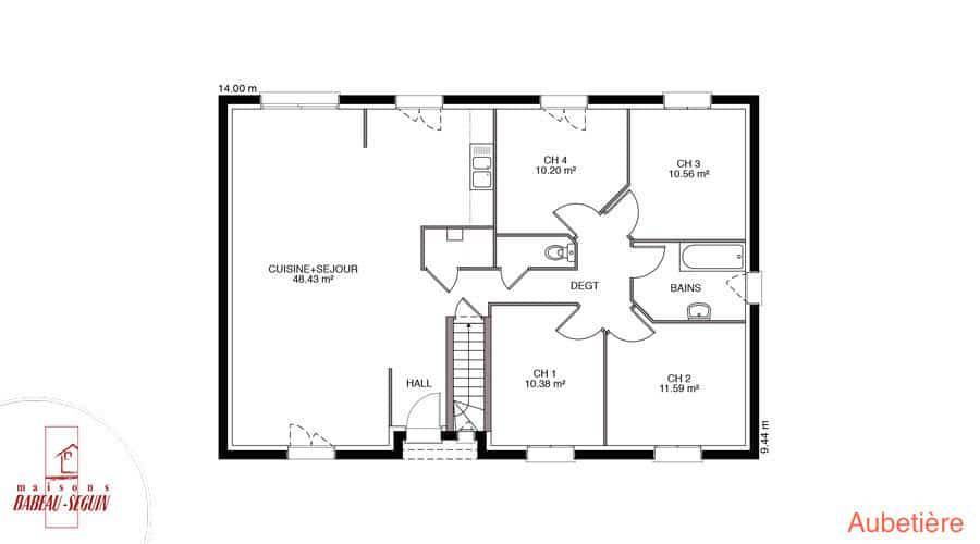
L'Aubetière dispose de 4 chambres spacieuses et de 4 pièces, offrant un espace de vie confortable et fonctionnel pour toute la famille. Vous avez le choix entre une toiture à 2 pans ou à 4 pans, ainsi que la possibilité d'ajouter un garage ou un sous-sol selon vos besoins et préférences.
Cette maison neuve est également basse consommation et conforme à la réglementation environnementale RE2020, garantissant des performances énergétiques optimales et un impact réduit sur l'environnement.
L'Aubetière est appréciée pour son excellent rapport qualité/prix et sa capacité à s'adapter à vos envies grâce à ses nombreuses déclinaisons et plans disponibles. Donnez vie à votre projet de construction en optant pour cette maison individuelle sur mesure, qui saura répondre à toutes vos attentes.
Ne manquez pas cette opportunité unique de construire la maison de vos rêves avec Babeau-Seguin, le constructeur qui allie qualité, performance et économie.
Logement susceptibles de vous intéresser
Nous vous proposons de découvrir aussi cette sélection de logements situés à moins de 10km de Esclainvillers et qui seraient susceptibles de vous intéresser.

Esclainvillers
TERRAIN ET MAISONSur ce terrain, nous vous proposons cette maison neuve Aubetière, un modèle traditionnel signé Babeau-Seguin, constructeur reconnu pour offrir le meilleur rapport qualité/prix du marché. Avec une surface de 111 m², cette maison de plain-pied se distingue par son design moderne et ses nombreuses options de personnalisation.L’Aubetière dispose de 4 chambres spacieuses et de 4 pièces, offrant un espace de vie confortable et fonctionnel pour toute la famille. Vous avez le choix entre une toiture à 2 pans ou à 4 pans, ainsi que la possibilité d’ajouter un garage ou un sous-sol selon vos besoins et préférences.Cette maison neuve est également basse consommation et conforme à la réglementation environnementale RE2020, garantissant des performances énergétiques optimales et un impact réduit sur l’environnement.L’Aubetière est appréciée pour son excellent rapport qualité/prix et sa capacité à s’adapter à vos envies grâce à ses nombreuses déclinaisons et plans disponibles. Donnez vie à votre projet de construction en optant pour cette maison individuelle sur mesure, qui saura répondre à toutes vos attentes.Ne manquez pas cette opportunité unique de construire la maison de vos rêves avec Babeau-Seguin, le constructeur qui allie qualité, performance et économie.

Esclainvillers
TERRAINDécouvrez ce magnifique terrain de 1000 m², situé à Esclainvillers, dans le département de la Somme en région Hauts-de-France. Avec sa vue dégagée et son cadre champêtre arboré, cet emplacement unique est idéal pour un projet de construction de maison. Le terrain offre également un prix attractif, parfait pour les futurs propriétaires souhaitant bâtir leur havre de paix dans un environnement paisible. Ce terrain vous offre ainsi une opportunité exceptionnelle d’investir dans une zone alliant tranquillité et vie pratique. Ne manquez pas cette rare opportunité d’acquérir un terrain au fort potentiel. Pour tous ceux qui souhaitent réaliser un projet de construction dans un cadre idyllique, ce terrain est fait pour vous. À noter qu’en tant que constructeur, nous ne sommes pas mandatés pour réaliser la vente de ce terrain.

Grivesnes
TERRAINDécouvrez ce magnifique terrain non viabilisé de 1059 m² situé à Grivesnes, dans le département de la Somme (80). Ce bien rare se distingue par sa vue dégagée et son cadre champêtre, offrant un véritable havre de paix au calme, tout en étant à proximité d’un axe routier important. Idéal pour un projet de construction de maison, il représente une opportunité unique de créer votre oasis de tranquillité dans un environnement naturel préservé. Ce terrain présente un potentiel considérable pour ceux qui souhaitent construire leur maison de rêve dans une commune paisible. Ne laissez pas passer cette opportunité d’achat unique ! À noter qu’en tant que constructeur, nous ne sommes pas mandatés pour réaliser la vente de ce terrain

Grivesnes
TERRAIN ET MAISONSur ce terrain, nous vous proposons cette maison neuve, la Liverdière, conçue par Babeau-Seguin, constructeur reconnu pour offrir le meilleur rapport qualité/prix du marché. Avec une surface de 96 m², cette maison familiale par excellence dispose de 3 chambres et de 4 pièces, offrant un parfait compromis entre espace disponible et design. La Liverdière se distingue par sa charpente traditionnelle et sa dalle béton à l’étage, permettant un aménagement des combles optimal.Si on devait décerner un prix à cette maison, ce serait évidemment celui de la meilleure optimisation de l’espace disponible ! En plus de ses caractéristiques principales, cette maison neuve est basse consommation et conforme à la RE2020, garantissant des performances énergétiques exceptionnelles et un confort de vie optimal. Ne manquez pas cette opportunité unique de construire la maison de vos rêves avec Babeau-Seguin, le constructeur qui allie qualité, design et économies d’énergie.

Chepoix
TERRAINNous vous présentons un terrain idéal de 800m² à vendre, situé dans la charmante commune de Chepoix, dans le département de l’Oise (60120). Ce terrain non-viabilisé vous offre une vue dégagée et un cadre champêtre privilégié, parfait pour réaliser votre projet de construction de maison. Chepoix est une commune qui séduit par son ambiance conviviale et ses commodités à proximité. À noter qu’en tant que constructeur, nous ne sommes pas mandatés pour réaliser la vente de ce terrain.

Chepoix
TERRAIN ET MAISONSur ce terrain, nous vous proposons cette maison neuve, modèle Mézière, conçue par Babeau-Seguin, constructeur offrant le meilleur rapport qualité/prix du marché. Avec une surface de 108 m², cette maison basse consommation, conforme à la RE2020, saura répondre à toutes vos attentes.La Mézière se distingue par son plan en L, disponible en version 2 pans ou 4 pans, et ses 4 chambres spacieuses réparties sur 4 pièces. Grâce à ses nombreuses versions, elle sait séduire et s’adapter aux besoins de chacun, ce qui fait de la Mézière une véritable maison sur mesure.Les options les plus demandées par nos clients, telles que les menuiseries en aluminium, la domotique, ainsi que le garage ou le sous-sol, sont disponibles pour personnaliser votre maison selon vos envies et besoins.Véritable coup de cœur pour de nombreux clients Babeau-Seguin, la Mézière est facilement modifiable, ce qui justifie pleinement son succès. Craquerez-vous aussi pour elle ?N’attendez plus pour découvrir cette maison qui répondra aux besoins de nombreuses familles. Contactez-nous pour plus d’informations et pour organiser une visite.

Breteuil
TERRAINMagnifique terrain plat de 470 m2 situé à HARDIVILLERS, à seulement 5 minutes de BRETEUIL possédant une façade de 15 ml, tout à l’égout sur place. A proximité vous trouverez : écoles maternelle, primaire, collège, supermarché, médecin, pharmacie, dentiste, banques, opticien, vétérinaire, boulangerie, coiffeur ,restaurant etc.. Peu de contrainte d’architecture, laissez parler votre imagination pour une construction 100 % sur mesure. RARE dans le secteur. Parfait pour un premier investissement! Plusieurs lots disponibles. A VOIR ABSOLUMENT! Pour plus de renseignements contactez l’agence MAISONS FRANCE CONFORT au (Numéro supprimé)

Breteuil
TERRAIN ET MAISONMaison T6 (89 m²) en vente à HardivillersIDÉALEMENT SITUÉE – MAISON 6 PIÈCES NEUVEÀ vendre : localisée à 22 km de Beauvais, nous vous présentons cette maison de 6 pièces de 89 m² idéalement située dans Hardivillers (60120).Il s’agit d’une maison de 2 niveaux. Elle dispose de quatre chambres, d’une cuisine et d’une salle de bains. Cette maison est neuve.Le terrain du bien est de 471 m².La maison est située dans un quartier prisé. On y trouve une école élémentaire. L’autoroute A16 est accessible à 2 km.Elle est à vendre pour la somme de 204 000 €.Prenez contact avec notre agence (BONELLO Fabrice : (Numéro supprimé)) pour toute information sur la maison et sur les démarches à suivre.

Breteuil
TERRAIN ET MAISONHardivillers : maison T4 (60 m²) à vendreIDÉALEMENT SITUÉE – MAISON 4 PIÈCES NEUVEEn vente : à deux pas de Beauvais, ayez le coup de coeur pour cette maison de 4 pièces de plain-pied de 60 m² et de 471 m² de terrain idéalement située dans Hardivillers (60120).Elle comporte deux chambres, une cuisine et une salle de bains. Cette maison est neuve.La maison se situe dans un quartier prisé. Une école élémentaire y est implantée. L’autoroute A16 est accessible à 2 km.Son prix de vente est de 157 000 €.N’hésitez pas à prendre contact avec Fabrice BONELLO ((Numéro supprimé)) pour toute question sur la maison ou sur les modalités de vente. Maisons France Confort Beauvais est là pour vous accompagner dans toutes vos démarches.
L’actualité immobilière à Esclainvillers





