Images
Description
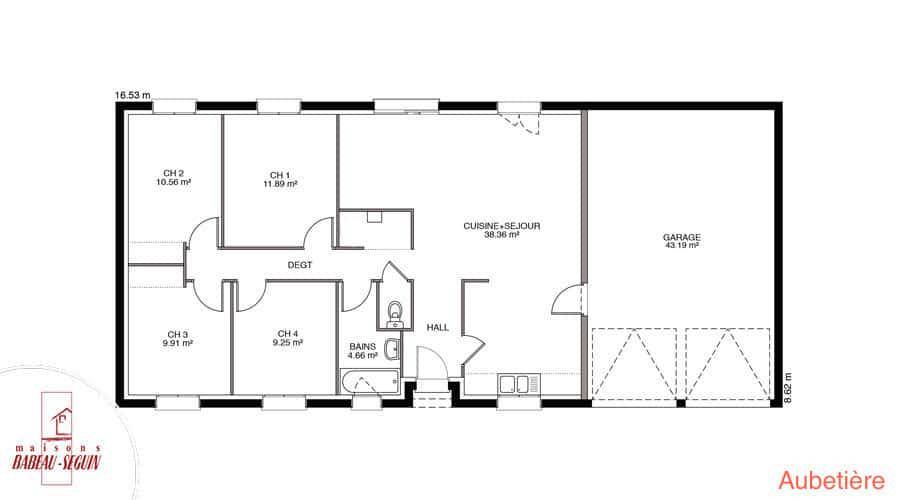
Sur ce terrain, nous vous proposons cette maison neuve Aubetière, un modèle traditionnel de la gamme Babeau-Seguin, constructeur reconnu pour offrir le meilleur rapport qualité/prix du marché. Avec une surface de 88 m², cette maison de plain-pied se compose de 4 pièces, dont 3 chambres spacieuses, idéales pour accueillir toute votre famille.
L'Aubetière se distingue par son excellent rapport qualité/prix et sa conformité aux normes RE2020, garantissant une basse consommation énergétique. Vous avez la possibilité de personnaliser votre maison en choisissant entre un toit à 2 pans ou à 4 pans, ainsi qu'en ajoutant un garage ou un sous-sol selon vos besoins.
Cette maison moderne et fonctionnelle est conçue pour s'adapter à vos envies et à votre mode de vie. Profitez de la flexibilité offerte par les nombreux plans et déclinaisons disponibles pour créer votre maison individuelle sur mesure.
Ne manquez pas cette opportunité de donner vie à votre projet de construction avec le modèle Aubetière, une maison neuve qui allie confort, économie d'énergie et personnalisation. Contactez-nous dès maintenant pour plus d'informations et pour découvrir toutes les options disponibles pour votre future maison.
Logement susceptibles de vous intéresser
Nous vous proposons de découvrir aussi cette sélection de logements situés à moins de 10km de Le Quesnel et qui seraient susceptibles de vous intéresser.
Hangest-en-Santerre
TERRAIN ET MAISONRéalisez votre projet de construction de maison RE 2020 avec PAVILLONS D'ÎLE-DE-FRANCE (constructeur de maisons de gamme et sur-mesure depuis plus de 50 ans) :- Plan sur-mesure et personnalisé de 2 à 5 chambres- Mode de chauffage au choix- Grands choix d'équipements et de prestations- Matériaux de qualité selon les normes en vigueur- Accompagnement dans le choix et l’acquisition du terrainInformations du terrain : Magnifique terrain plat, arboré, borné dans bourg toutes commodités à 10mn de ROYE et 20mn de LONGUEAUDemandez une étude gratuite et personnalisée de votre projet de construction !Contactez Didier PHILIPPON au (Numéro supprimé) ou au (Numéro supprimé) (Pavillons d'Île-de-France – Agence d'Amiens).Prix avec assurance dommages-ouvrage comprise, hors VRD, terrain viabilisé, assainissement non compris, frais de notaire non compris, taxes non comprises, frais divers non compris. Terrain sélectionné et vu pour vous sous réserve de disponibilité et au prix indiqué par notre partenaire foncier. Visuels non contractuels.Cette annonce a été créée et diffusée avec le logiciel VITAHOME.
Hangest-en-Santerre
TERRAIN ET MAISONRéalisez votre projet de construction de maison RE 2020 avec PAVILLONS D'ÎLE-DE-FRANCE (constructeur de maisons de gamme et sur-mesure depuis plus de 50 ans) :- Plan sur-mesure et personnalisé de 2 à 5 chambres- Mode de chauffage au choix- Grands choix d'équipements et de prestations- Matériaux de qualité selon les normes en vigueur- Accompagnement dans le choix et l’acquisition du terrainInformations du terrain : Magnifique terrain plat, arboré, borné dans bourg toutes commodités à 10mn de ROYE et 20mn de LONGUEAUDemandez une étude gratuite et personnalisée de votre projet de construction !Contactez Didier PHILIPPON au (Numéro supprimé) ou au (Numéro supprimé) (Pavillons d'Île-de-France – Agence d'Amiens).Prix avec assurance dommages-ouvrage comprise, hors VRD, terrain viabilisé, assainissement non compris, frais de notaire non compris, taxes non comprises, frais divers non compris. Terrain sélectionné et vu pour vous sous réserve de disponibilité et au prix indiqué par notre partenaire foncier. Visuels non contractuels.Cette annonce a été créée et diffusée avec le logiciel VITAHOME.
Hangest-en-Santerre
TERRAIN ET MAISONPavillon de 3 chambres dont 1 au rez-de-chausséeContactez Didier PHILIPPON au (Numéro supprimé) ou au (Numéro supprimé) (Pavillons d'Île-de-France – Agence d'Amiens).Prix avec assurance dommages-ouvrage comprise, hors VRD, terrain viabilisé, assainissement non compris, frais de notaire non compris, taxes non comprises, frais divers non compris. Terrain sélectionné et vu pour vous sous réserve de disponibilité et au prix indiqué par notre partenaire foncier. Visuels non contractuels.Cette annonce a été créée et diffusée avec le logiciel VITAHOME.
Hangest-en-Santerre
TERRAINMagnifique terrain plat, arboré, borné dans bourg toutes commodités à 10mn de ROYE et 20mn de LONGUEAUPrix : 45000 €.Sur ce terrain, réalisez votre projet de construction de maison RE 2020 avec PAVILLONS D'ÎLE-DE-FRANCE (constructeur de maisons de gamme et sur-mesure depuis plus de 50 ans) :- Plan sur-mesure et personnalisé de 2 à 5 chambres- Mode de chauffage au choix- Grands choix d'équipements et de prestations- Matériaux de qualité selon les normes en vigueur- Accompagnement dans le choix et l’acquisition du terrainDemandez une étude gratuite et personnalisée de votre projet de construction sur ce terrain !Contactez Didier PHILIPPON au (Numéro supprimé) ou au (Numéro supprimé) (Pavillons d'Île-de-France – Agence d'Amiens).Prix hors frais de notaire. Terrain sélectionné et vu pour vous sous réserve de disponibilité et au prix indiqué par notre partenaire foncier. Visuels non contractuels.Cette annonce a été créée et diffusée avec le logiciel VITAHOME.
Hangest-en-Santerre
TERRAIN ET MAISONRéalisez votre projet de construction de maison RE 2020 avec PAVILLONS D'ÎLE-DE-FRANCE (constructeur de maisons de gamme et sur-mesure depuis plus de 50 ans) :- Plan sur-mesure et personnalisé de 2 à 5 chambres- Mode de chauffage au choix- Grands choix d'équipements et de prestations- Matériaux de qualité selon les normes en vigueur- Accompagnement dans le choix et l’acquisition du terrainInformations du terrain : Magnifique terrain plat, arboré, borné dans bourg toutes commodités à 10mn de ROYE et 20mn de LONGUEAUDemandez une étude gratuite et personnalisée de votre projet de construction !Contactez Didier PHILIPPON au (Numéro supprimé) ou au (Numéro supprimé) (Pavillons d'Île-de-France – Agence d'Amiens).Prix avec assurance dommages-ouvrage comprise, hors VRD, terrain viabilisé, assainissement non compris, frais de notaire non compris, taxes non comprises, frais divers non compris. Terrain sélectionné et vu pour vous sous réserve de disponibilité et au prix indiqué par notre partenaire foncier. Visuels non contractuels.Cette annonce a été créée et diffusée avec le logiciel VITAHOME.
Hangest-en-Santerre
TERRAIN ET MAISONRéalisez votre projet de construction de maison RE 2020 avec PAVILLONS D'ÎLE-DE-FRANCE (constructeur de maisons de gamme et sur-mesure depuis plus de 50 ans) :- Plan sur-mesure et personnalisé de 2 à 5 chambres- Mode de chauffage au choix- Grands choix d'équipements et de prestations- Matériaux de qualité selon les normes en vigueur- Accompagnement dans le choix et l’acquisition du terrainInformations du terrain : Magnifique terrain plat, arboré, borné dans bourg toutes commodités à 10mn de ROYE et 20mn de LONGUEAUDemandez une étude gratuite et personnalisée de votre projet de construction !Contactez Didier PHILIPPON au (Numéro supprimé) ou au (Numéro supprimé) (Pavillons d'Île-de-France – Agence d'Amiens).Prix avec assurance dommages-ouvrage comprise, hors VRD, terrain viabilisé, assainissement non compris, frais de notaire non compris, taxes non comprises, frais divers non compris. Terrain sélectionné et vu pour vous sous réserve de disponibilité et au prix indiqué par notre partenaire foncier. Visuels non contractuels.Cette annonce a été créée et diffusée avec le logiciel VITAHOME.
Hangest-en-Santerre
TERRAINAXE AMIENS/ROYE – à 20 MN de la ZONE COMMERCIALE GRAND A AMIENS-GLISY – à 10 MN de l’A1 ROYE Commune d’HANGEST EN SANTERRE, bourg de plus de 1000 habitants bénéficiant de nombreuses commodités (supérette, bar-tabac, boucherie, pharmacie, maison médicale, école primaire de la maternelle au CM2 avec garderie et cantine..) En EXCLUSIVITÉ, un très beau terrain à bâtir totalement plat de 932 m2, hors lotissement, bénéficiant d’une grande façade de 28 m et d’une profondeur de 40 m, idéal pour accueillir votre projet de construction. Vendu borné, viabilisation électrique en partie réalisée, assainissement individuel à prévoir et libre de tout constructeur. Pour plus de renseignements contactez Séverine LOMBART 3G IMMO Honoraires à la charge du vendeurVotre agent commercial 3G IMMO sur place EI – Séverine LOMBART inscrite au RSAC d’AMIENS n° 879 459 402 Selon l’article L.561.5 du Code Monétaire et Financier, pour l’organisation de la visite, la présentation d’une pièce d’identité vous sera demandée.Les informations sur les risques auxquels ce bien est exposé sont disponibles sur le site Géorisques : www.georisques.gouv.frLes informations sur les risques auxquels ce bien est exposé sont disponibles sur le site Géorisques : www.georisques.gouv.fr
Hangest-en-Santerre
TERRAINAXE AMIENS/ROYE – à 20 MN de la ZONE COMMERCIALE GRAND A AMIENS-GLISY – à 10 MN de l’A1 ROYE Commune d’HANGEST EN SANTERRE, bourg de plus de 1000 habitants bénéficiant de nombreuses commodités (supérette, bar-tabac, boucherie, pharmacie, maison médicale, école primaire de la maternelle au CM2 avec garderie et cantine..) En EXCLUSIVITÉ, un très beau terrain à bâtir totalement plat de 800 m2, hors lotissement, bénéficiant d’une façade de 20 m et d’une profondeur de 40 m, idéal pour accueillir votre projet de construction. Vendu borné, viabilisation électrique en partie réalisée, assainissement individuel à prévoir et libre de tout constructeur. Pour plus de renseignements contactez Séverine LOMBART 3G IMMO Honoraires à la charge du vendeurVotre agent commercial 3G IMMO sur place EI – Séverine LOMBART inscrite au RSAC d’AMIENS n° 879 459 402 Selon l’article L.561.5 du Code Monétaire et Financier, pour l’organisation de la visite, la présentation d’une pièce d’identité vous sera demandée.Les informations sur les risques auxquels ce bien est exposé sont disponibles sur le site Géorisques : www.georisques.gouv.frLes informations sur les risques auxquels ce bien est exposé sont disponibles sur le site Géorisques : www.georisques.gouv.fr
Caix
TERRAINParcelle de 403 m² avec hangar située à Caix (80170)Découvrez cette parcelle de 403 m², entièrement close sur 4 côtés, idéalement située dans le village de Caix, à proximité d’Harbonnières. Atouts principaux :- Eau déjà présente sur la parcelle- Hangar existant, parfait pour du stockage artisanal, du matériel agricole ou un atelier- Terrain clôturé- Accès facile et environnement calme Plusieurs possibilités d’utilisation :- Projet de construction- Stockage ou activité artisanale dans le hangar- Potager ou espace de détente à la campagne Localisation :Située à Caix (80170), charmante commune de la Somme, à seulement quelques minutes des commodités et axes principaux. Prix : 21 500 € HAI !!! Contactez moi dès maintenant pour plus d’informations ou organiser une visite.Cette annonce référence 307218 vous est présentée par votre agent commercial BSK Immobilier MATHIEU LEFEBVRE (EI) immatriculé au RSAC de AMIENS (80000) sous le numéro 98311734200011.Prix du bien : 21 500,00 €Les honoraires d’agence sont à la charge du vendeur.Les informations sur les risques auxquels ce bien est exposé sont disponibles sur le site Géorisques : www.georisques.gouv.fr
L’actualité immobilière à Le Quesnel
27/11/2023
02/11/2023
30/10/2023
20/10/2023
16/10/2023
16/10/2023