Maison à construire à Mons-Boubert (80210)
Images
Description
Maison de 6 pièces (115 m²) en vente à Mons-Boubert
EMPLACEMENT PRIVILÉGIÉ - MAISON 6 PIÈCES NEUVE
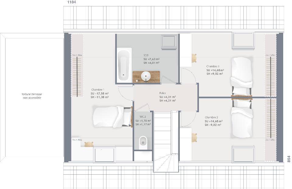
À 19 km de la Manche, à vendre bénéficiant d'un emplacement privilégié dans Mons-Boubert (80210), votre agence Maisons Les Naturelles Abbeville est heureuse de vous présenter cette maison de 6 pièces de 115 m². Son intérieur offre quatre chambres, une cuisine et deux salles de bains.
Le terrain de cette maison est de 2 000 m².
Cette maison possède 2 niveaux. Elle est neuve.
La maison se trouve dans un secteur recherché. On y trouve une école primaire. Côté transports en commun, il y a la gare Noyelles-sur-Mer à moins de 10 minutes en voiture. L'autoroute A28 est accessible à 10 km. On trouve une boucherie-charcuterie à proximité du bien.
Elle est à vendre pour la somme de 339 013 €.
Contactez Camille CISSEVILLE (tél : (Numéro supprimé)) pour plus d'informations sur la maison. Faites de vos projets immobiliers une réalité avec Maisons Les Naturelles Abbeville.
Logement susceptibles de vous intéresser
Nous vous proposons de découvrir aussi cette sélection de logements situés à moins de 10km de Mons-Boubert et qui seraient susceptibles de vous intéresser.
Cambron
TERRAIN ET MAISONRéalisez votre projet de construction de maison RE 2020 avec PAVILLONS D'ÎLE-DE-FRANCE (constructeur de maisons de gamme et sur-mesure depuis plus de 50 ans) :- Plan sur-mesure et personnalisé de 2 à 5 chambres- Mode de chauffage au choix- Grands choix d'équipements et de prestations- Matériaux de qualité selon les normes en vigueur- Accompagnement dans le choix et l’acquisition du terrainInformations du terrain : A 5mn d'Abbeville, beau terrain avec belle façade, TAEDemandez une étude gratuite et personnalisée de votre projet de construction !Contactez Didier PHILIPPON au (Numéro supprimé) ou au (Numéro supprimé) (Pavillons d'Île-de-France – Agence d'Amiens).Prix avec assurance dommages-ouvrage comprise, hors VRD, terrain viabilisé, assainissement non compris, frais de notaire non compris, taxes non comprises, frais divers non compris. Terrain sélectionné et vu pour vous sous réserve de disponibilité et au prix indiqué par notre partenaire foncier. Visuels non contractuels.Cette annonce a été créée et diffusée avec le logiciel VITAHOME.
Cambron
TERRAIN ET MAISONRéalisez votre projet de construction de maison RE 2020 avec PAVILLONS D'ÎLE-DE-FRANCE (constructeur de maisons de gamme et sur-mesure depuis plus de 50 ans) :- Plan sur-mesure et personnalisé de 2 à 5 chambres- Mode de chauffage au choix- Grands choix d'équipements et de prestations- Matériaux de qualité selon les normes en vigueur- Accompagnement dans le choix et l’acquisition du terrainInformations du terrain : A 5mn d'Abbeville, beau terrain avec belle façade, TAEDemandez une étude gratuite et personnalisée de votre projet de construction !Contactez Didier PHILIPPON au (Numéro supprimé) ou au (Numéro supprimé) (Pavillons d'Île-de-France – Agence d'Amiens).Prix avec assurance dommages-ouvrage comprise, hors VRD, terrain viabilisé, assainissement non compris, frais de notaire non compris, taxes non comprises, frais divers non compris. Terrain sélectionné et vu pour vous sous réserve de disponibilité et au prix indiqué par notre partenaire foncier. Visuels non contractuels.Cette annonce a été créée et diffusée avec le logiciel VITAHOME.
Cambron
TERRAIN ET MAISONRéalisez votre projet de construction de maison RE 2020 avec PAVILLONS D'ÎLE-DE-FRANCE (constructeur de maisons de gamme et sur-mesure depuis plus de 50 ans) :- Plan sur-mesure et personnalisé de 2 à 5 chambres- Mode de chauffage au choix- Grands choix d'équipements et de prestations- Matériaux de qualité selon les normes en vigueur- Accompagnement dans le choix et l’acquisition du terrainInformations du terrain : A 5mn d'Abbeville, beau terrain avec belle façade, TAEDemandez une étude gratuite et personnalisée de votre projet de construction !Contactez Didier PHILIPPON au (Numéro supprimé) ou au (Numéro supprimé) (Pavillons d'Île-de-France – Agence d'Amiens).Prix avec assurance dommages-ouvrage comprise, hors VRD, terrain viabilisé, assainissement non compris, frais de notaire non compris, taxes non comprises, frais divers non compris. Terrain sélectionné et vu pour vous sous réserve de disponibilité et au prix indiqué par notre partenaire foncier. Visuels non contractuels.Cette annonce a été créée et diffusée avec le logiciel VITAHOME.
Cambron
TERRAINA 5mn d'Abbeville, beau terrain avec belle façade, TAEPrix : 53000 €.Sur ce terrain, réalisez votre projet de construction de maison RE 2020 avec PAVILLONS D'ÎLE-DE-FRANCE (constructeur de maisons de gamme et sur-mesure depuis plus de 50 ans) :- Plan sur-mesure et personnalisé de 2 à 5 chambres- Mode de chauffage au choix- Grands choix d'équipements et de prestations- Matériaux de qualité selon les normes en vigueur- Accompagnement dans le choix et l’acquisition du terrainDemandez une étude gratuite et personnalisée de votre projet de construction sur ce terrain !Contactez Didier PHILIPPON au (Numéro supprimé) ou au (Numéro supprimé) (Pavillons d'Île-de-France – Agence d'Amiens).Prix hors frais de notaire. Terrain sélectionné et vu pour vous sous réserve de disponibilité et au prix indiqué par notre partenaire foncier. Visuels non contractuels.Cette annonce a été créée et diffusée avec le logiciel VITAHOME.
Cambron
TERRAINBeau terrain plat aux portes d'ABBEVILLE, TAEPrix : 53000 €.Sur ce terrain, réalisez votre projet de construction de maison RE 2020 avec PAVILLONS D'ÎLE-DE-FRANCE (constructeur de maisons de gamme et sur-mesure depuis plus de 50 ans) :- Plan sur-mesure et personnalisé de 2 à 5 chambres- Mode de chauffage au choix- Grands choix d'équipements et de prestations- Matériaux de qualité selon les normes en vigueur- Accompagnement dans le choix et l’acquisition du terrainDemandez une étude gratuite et personnalisée de votre projet de construction sur ce terrain !Contactez Didier PHILIPPON au (Numéro supprimé) ou au (Numéro supprimé) (Pavillons d'Île-de-France – Agence d'Amiens).Prix hors frais de notaire. Terrain sélectionné et vu pour vous sous réserve de disponibilité et au prix indiqué par notre partenaire foncier. Visuels non contractuels.Cette annonce a été créée et diffusée avec le logiciel VITAHOME.
Ochancourt
TERRAINTerrain de 860 m² à vendre à OchancourtÀ Ochancourt (80210) en vente à 16 km de la Manche, donnez vie à la maison de vos rêves sur ce terrain de 860 m². Les autoroutes A28 et A16 sont accessibles à moins de 15 km. Il y a un tennis à proximité de la propriété.Il est à vendre pour la somme de 38 000 €. Contactez notre agence (DERULLES Delphine : (Numéro supprimé)) pour toute information sur ce terrain. Les Maisons Extraco Eu vous accompagne dans tous vos projets immobiliers et à toutes les étapes de l’achat.
Arrest
TERRAINArrest : terrain de 809 m² à vendreÀ Arrest (80820) en vente à 15 km de la Manche, imaginez la maison de vos rêves sur ce terrain de 809 m². Une école primaire est implantée dans le quartier. Côté transports, on trouve la gare Noyelles-sur-Mer à moins de 10 minutes en voiture. Les autoroutes A28 et A16 sont accessibles à moins de 14 km. Il y a une bibliothèque et une boucherie-charcuterie à proximité.Il est à vendre pour la somme de 48 540 €. N’hésitez pas à prendre contact avec Delphine DERULLES ((Numéro supprimé)) pour plus de renseignements sur ce terrain, sur les démarches à suivre ou sur les modalités de vente.
Ochancourt
TERRAIN ET MAISONOchancourt : maison de 3 pièces (65 m²) en venteMAISON 3 PIÈCES NEUVEÀ 16 km de la Manche, Les Maisons Extraco Eu vous propose cette maison de 3 pièces de plain-pied de 65 m² à Ochancourt (80210).Elle comporte deux chambres, une cuisine et une salle de bains. Cette maison est neuve.Le terrain de la propriété s’étend sur 860 m².Les autoroutes A28 et A16 sont accessibles à moins de 15 km. Il y a un tennis dans les environs.Son prix de vente est de 151 200 €.Prenez contact avec notre agence (Delphine DERULLES : (Numéro supprimé)) pour tout renseignement sur cette maison ou sur les démarches à suivre. Les Maisons Extraco Eu est là pour vous accompagner à toutes les étapes de votre projet.
Ochancourt
TERRAIN ET MAISONVENTE d’une maison T5 (92 m²) à OchancourtMAISON 5 PIÈCES NEUVEEn vente : située à 16 km de la Manche, venez découvrir cette maison de 5 pièces de plain-pied de 92 m² et de 860 m² de terrain à Ochancourt (80210).Elle offre quatre chambres, une cuisine et une salle de bains. Cette maison est neuve.Les autoroutes A28 et A16 sont accessibles à moins de 15 km. Il y a un tennis à proximité.Elle est proposée à l’achat pour 189 200 €.N’hésitez pas à prendre contact avec notre agence (DERULLES Delphine : (Numéro supprimé)) pour toute question sur la maison ou sur les démarches à suivre. Les Maisons Extraco Eu est là pour vous accompagner dans tous vos projets immobiliers.
L’actualité immobilière à Mons-Boubert
27/11/2023
02/11/2023
30/10/2023
20/10/2023
16/10/2023
16/10/2023