Images
Description
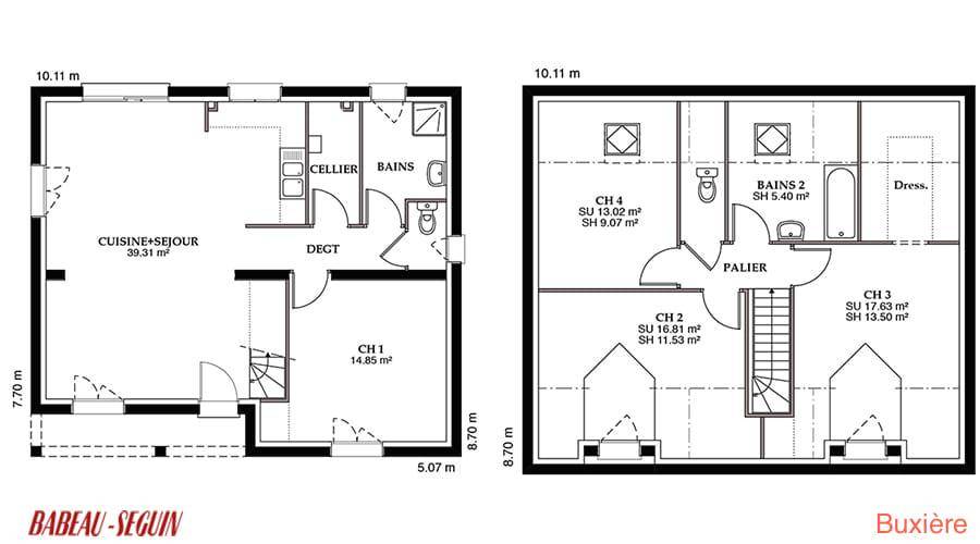
Sur ce terrain, nous vous proposons cette maison neuve, le modèle Buxière, d'une surface de 84 m². Conçue par Babeau-Seguin, constructeur reconnu pour offrir le meilleur rapport qualité/prix du marché, cette maison à étage allie modernité et tradition.
La Buxière se distingue par sa façade droite et sa large galerie, apportant tout le charme d'une maison traditionnelle. À l'intérieur, vous découvrirez une cuisine largement ouverte sur le séjour, idéale pour des moments de convivialité en famille ou entre amis. Le plancher de l’étage est constitué d’une dalle en béton, garantissant robustesse et durabilité, tandis que la charpente traditionnelle et les lucarnes maçonnées ajoutent une touche d'authenticité.
Cette maison de 84 m² comprend 4 pièces, dont 3 chambres, offrant ainsi un espace de vie confortable pour une petite ou grande famille. Vous avez également la possibilité de personnaliser ce modèle pour ajouter ou supprimer des chambres selon vos besoins.
Parmi les options les plus demandées par nos clients, les volets roulants motorisés sont disponibles pour un confort optimal. De plus, cette maison neuve est basse consommation et conforme à la réglementation environnementale RE2020, vous assurant des économies d'énergie et un respect de l'environnement.
La Buxière est une maison chic et moderne, tout en conservant le charme d'une maison traditionnelle. Elle est parfaitement adaptée à ceux qui recherchent avant tout simplicité et convivialité sans rien céder à la qualité.
N'attendez plus pour découvrir cette maison exceptionnelle et réaliser votre projet de vie avec Babeau-Seguin.
Logement susceptibles de vous intéresser
Nous vous proposons de découvrir aussi cette sélection de logements situés à moins de 10km de Pont-de-Metz et qui seraient susceptibles de vous intéresser.

Saint-Fuscien
TERRAIN ET MAISONPavillon à étage comprenant 4 chambres dont 1 au rez-de-chaussée avec salle d'eau, bureau, 1 sdb à l'étage, 2 WC, garage, menuiseries Alu avec VR électriques, pompe à chaleur, belles prestationsContactez Didier PHILIPPON au (Numéro supprimé) ou au (Numéro supprimé) (Pavillons d'Île-de-France – Agence d'Amiens).Prix avec assurance dommages-ouvrage comprise, hors VRD, terrain viabilisé, assainissement non compris, frais de notaire non compris, taxes non comprises, frais divers non compris. Terrain sélectionné et vu pour vous sous réserve de disponibilité et au prix indiqué par notre partenaire foncier. Visuels non contractuels.Cette annonce a été créée et diffusée avec le logiciel VITAHOME.

Saint-Fuscien
TERRAIN ET MAISONPavillon de 5 chambres dont 1 au rez-de-chaussée avec salle d'eau et douche italienne, SDB à l'étage, 2 WC, garage intégré, menuiseries Alu, pompe à chaleur.Contactez Didier PHILIPPON au (Numéro supprimé) ou au (Numéro supprimé) (Pavillons d'Île-de-France – Agence d'Amiens).Prix avec assurance dommages-ouvrage comprise, hors VRD, terrain viabilisé, assainissement non compris, frais de notaire non compris, taxes non comprises, frais divers non compris. Terrain sélectionné et vu pour vous sous réserve de disponibilité et au prix indiqué par notre partenaire foncier. Visuels non contractuels.Cette annonce a été créée et diffusée avec le logiciel VITAHOME.

Vers-sur-Selle
TERRAIN ET MAISONPavillon à étage comprenant 4 chambres dont 1 au rez-de-chaussée avec salle d'eau, bureau, Sdb étage, menuiseries Alu avec VR électriques, pompe à chaleur, belles prestationsContactez Didier PHILIPPON au (Numéro supprimé) ou au (Numéro supprimé) (Pavillons d'Île-de-France – Agence d'Amiens).Prix avec assurance dommages-ouvrage comprise, hors VRD, terrain viabilisé, assainissement non compris, frais de notaire non compris, taxes non comprises, frais divers non compris. Terrain sélectionné et vu pour vous sous réserve de disponibilité et au prix indiqué par notre partenaire foncier. Visuels non contractuels.Cette annonce a été créée et diffusée avec le logiciel VITAHOME.

Vers-sur-Selle
TERRAIN ET MAISONPavillon contemporain en L, belles prestations à découvrir, pompe à chaleurContactez Didier PHILIPPON au (Numéro supprimé) ou au (Numéro supprimé) (Pavillons d'Île-de-France – Agence d'Amiens).Prix avec assurance dommages-ouvrage comprise, hors VRD, terrain viabilisé, assainissement non compris, frais de notaire non compris, taxes non comprises, frais divers non compris. Terrain sélectionné et vu pour vous sous réserve de disponibilité et au prix indiqué par notre partenaire foncier. Visuels non contractuels.Cette annonce a été créée et diffusée avec le logiciel VITAHOME.

Saint-Vaast-en-Chaussée
TERRAIN ET MAISONRéalisez votre projet de construction de maison RE 2020 avec PAVILLONS D'ÎLE-DE-FRANCE (constructeur de maisons de gamme et sur-mesure depuis plus de 50 ans) :- Plan sur-mesure et personnalisé de 2 à 5 chambres- Mode de chauffage au choix- Grands choix d'équipements et de prestations- Matériaux de qualité selon les normes en vigueur- Accompagnement dans le choix et l’acquisition du terrainInformations du terrain : Terrain à bâtir de 696m² à Saint-Vaast-en-ChausséeBeau terrain de 696m², avec une belle façade constructible, situé dans un village calme à 15 minutes d'Amiens. Proche de toutes les commodités et borné. Idéal pour votre projet de construction. À saisir pour 71 500€.Contactez-nous pour plus de détails !Demandez une étude gratuite et personnalisée de votre projet de construction !Contactez Victor MAEGHT au (Numéro supprimé) ou au (Numéro supprimé) (Pavillons d'Île-de-France – Agence d'Amiens).Prix avec assurance dommages-ouvrage comprise, hors VRD, terrain viabilisé, assainissement non compris, frais de notaire non compris, taxes non comprises, frais divers non compris. Terrain sélectionné et vu pour vous sous réserve de disponibilité et au prix indiqué par notre partenaire foncier. Visuels non contractuels.Cette annonce a été créée et diffusée avec le logiciel VITAHOME.

Saint-Fuscien
TERRAIN ET MAISONRéalisez votre projet de construction de maison RE 2020 avec PAVILLONS D'ÎLE-DE-FRANCE (constructeur de maisons de gamme et sur-mesure depuis plus de 50 ans) :- Plan sur-mesure et personnalisé de 2 à 5 chambres- Mode de chauffage au choix- Grands choix d'équipements et de prestations- Matériaux de qualité selon les normes en vigueur- Accompagnement dans le choix et l’acquisition du terrainInformations du terrain : District d'Amiens, très beau terrain plat, borné à 5mn d'Amiens centreDemandez une étude gratuite et personnalisée de votre projet de construction !Contactez Didier PHILIPPON au (Numéro supprimé) ou au (Numéro supprimé) (Pavillons d'Île-de-France – Agence d'Amiens).Prix avec assurance dommages-ouvrage comprise, hors VRD, terrain viabilisé, assainissement non compris, frais de notaire non compris, taxes non comprises, frais divers non compris. Terrain sélectionné et vu pour vous sous réserve de disponibilité et au prix indiqué par notre partenaire foncier. Visuels non contractuels.Cette annonce a été créée et diffusée avec le logiciel VITAHOME.

Vers-sur-Selle
TERRAIN ET MAISONRéalisez votre projet de construction de maison RE 2020 avec PAVILLONS D'ÎLE-DE-FRANCE (constructeur de maisons de gamme et sur-mesure depuis plus de 50 ans) :- Plan sur-mesure et personnalisé de 2 à 5 chambres- Mode de chauffage au choix- Grands choix d'équipements et de prestations- Matériaux de qualité selon les normes en vigueur- Accompagnement dans le choix et l’acquisition du terrainInformations du terrain : Superbe terrai plat borné avec belle façade à 5mn d'Amiens SudDemandez une étude gratuite et personnalisée de votre projet de construction !Contactez Didier PHILIPPON au (Numéro supprimé) ou au (Numéro supprimé) (Pavillons d'Île-de-France – Agence d'Amiens).Prix avec assurance dommages-ouvrage comprise, hors VRD, terrain viabilisé, assainissement non compris, frais de notaire non compris, taxes non comprises, frais divers non compris. Terrain sélectionné et vu pour vous sous réserve de disponibilité et au prix indiqué par notre partenaire foncier. Visuels non contractuels.Cette annonce a été créée et diffusée avec le logiciel VITAHOME.

Saint-Vaast-en-Chaussée
TERRAIN ET MAISONRéalisez votre projet de construction de maison RE 2020 avec PAVILLONS D'ÎLE-DE-FRANCE (constructeur de maisons de gamme et sur-mesure depuis plus de 50 ans) :- Plan sur-mesure et personnalisé de 2 à 5 chambres- Mode de chauffage au choix- Grands choix d'équipements et de prestations- Matériaux de qualité selon les normes en vigueur- Accompagnement dans le choix et l’acquisition du terrainInformations du terrain : Terrain à bâtir de 696m² à Saint-Vaast-en-ChausséeBeau terrain de 696m², avec une belle façade constructible, situé dans un village calme à 15 minutes d'Amiens. Proche de toutes les commodités et borné. Idéal pour votre projet de construction. À saisir pour 71 500€.Contactez-nous pour plus de détails !Demandez une étude gratuite et personnalisée de votre projet de construction !Contactez Victor MAEGHT au (Numéro supprimé) ou au (Numéro supprimé) (Pavillons d'Île-de-France – Agence d'Amiens).Prix avec assurance dommages-ouvrage comprise, hors VRD, terrain viabilisé, assainissement non compris, frais de notaire non compris, taxes non comprises, frais divers non compris. Terrain sélectionné et vu pour vous sous réserve de disponibilité et au prix indiqué par notre partenaire foncier. Visuels non contractuels.Cette annonce a été créée et diffusée avec le logiciel VITAHOME.

Saint-Fuscien
TERRAIN ET MAISONRéalisez votre projet de construction de maison RE 2020 avec PAVILLONS D'ÎLE-DE-FRANCE (constructeur de maisons de gamme et sur-mesure depuis plus de 50 ans) :- Plan sur-mesure et personnalisé de 2 à 5 chambres- Mode de chauffage au choix- Grands choix d'équipements et de prestations- Matériaux de qualité selon les normes en vigueur- Accompagnement dans le choix et l’acquisition du terrainInformations du terrain : District d'Amiens, très beau terrain plat, borné à 5mn d'Amiens centreDemandez une étude gratuite et personnalisée de votre projet de construction !Contactez Didier PHILIPPON au (Numéro supprimé) ou au (Numéro supprimé) (Pavillons d'Île-de-France – Agence d'Amiens).Prix avec assurance dommages-ouvrage comprise, hors VRD, terrain viabilisé, assainissement non compris, frais de notaire non compris, taxes non comprises, frais divers non compris. Terrain sélectionné et vu pour vous sous réserve de disponibilité et au prix indiqué par notre partenaire foncier. Visuels non contractuels.Cette annonce a été créée et diffusée avec le logiciel VITAHOME.
L’actualité immobilière à Pont-de-Metz





