Images
Description
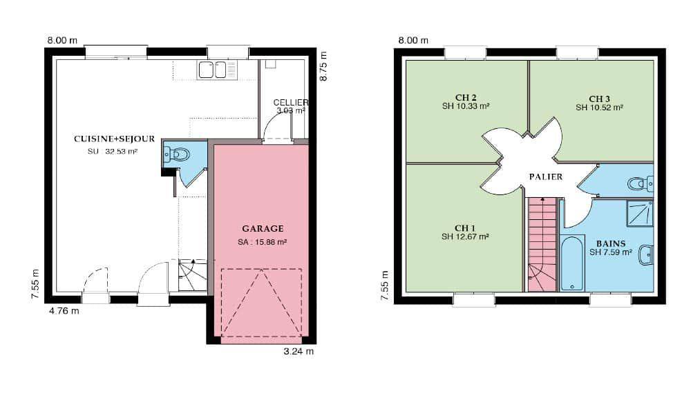
Sur ce terrain, nous vous proposons cette maison neuve baptisée Extenso, conçue par Babeau-Seguin, constructeur offrant le meilleur rapport qualité/prix du marché. Cette maison traditionnelle à étage, avec un fort cachet et un petit prix, dispose d'une surface de 79 m², de 3 chambres et de 4 pièces.
L'Extenso se distingue par son vaste séjour, une salle de bain, 2 WC, un cellier et un garage accolé. Conçue pour répondre aux normes RE2020, cette maison neuve est basse consommation, vous garantissant des économies d'énergie significatives.
Les options les plus demandées par nos clients sont disponibles pour cette maison : enduit bi-ton, domotique et volets roulants motorisés. Ces caractéristiques ajoutent une touche de modernité et de confort à votre futur chez-vous.
Cette belle maison familiale est surtout à ne pas rater pour son prix ! Disposant d'un plancher béton à l'étage, elle s'affiche au prix de nombreuses maisons de plain-pied. Vous n'avez pas encore craqué ?
Si on vous dit que cette Extenso est basse consommation pour encore plus d'économies et qu'en plus sa façade est personnalisable, vous comprendrez qu'il est inutile de chercher un produit équivalent dans l'ancien. Cette Extenso vous offre le confort, la modernité et la qualité... le tout à un prix cassé ! Une exclusivité Maisons Babeau-Seguin.
Ne manquez pas cette opportunité unique d'acquérir une maison neuve, moderne et économe en énergie, parfaitement adaptée à votre terrain. Contactez-nous dès maintenant pour plus d'informations et pour planifier une visite.
Logement susceptibles de vous intéresser
Nous vous proposons de découvrir aussi cette sélection de logements situés à moins de 10km de Saint-Sauveur et qui seraient susceptibles de vous intéresser.
Amiens
TERRAIN ET MAISONPavillon de 4 chambres dont 1 au rez-de-chaussée, menuiseries Alu avec volets roulants électriques, carrelage, douche italienne, pompe à chaleurContactez Didier PHILIPPON au (Numéro supprimé) ou au (Numéro supprimé) (Pavillons d'Île-de-France – Agence d'Amiens).Prix avec assurance dommages-ouvrage comprise, hors VRD, terrain viabilisé, assainissement compris, frais de notaire non compris, taxes non comprises, frais divers non compris. Terrain sélectionné et vu pour vous sous réserve de disponibilité et au prix indiqué par notre partenaire foncier. Visuels non contractuels.Cette annonce a été créée et diffusée avec le logiciel VITAHOME.
Amiens
TERRAIN ET MAISONPavillon de 5 chambres dont 1 au rez-de-chaussée avec salle d'eau et douche italienne, SDB à l'étage, 2 WC, garage intégré, menuiseries Alu, pompe à chaleur.Contactez Didier PHILIPPON au (Numéro supprimé) ou au (Numéro supprimé) (Pavillons d'Île-de-France – Agence d'Amiens).Prix avec assurance dommages-ouvrage comprise, hors VRD, terrain viabilisé, assainissement compris, frais de notaire non compris, taxes non comprises, frais divers non compris. Terrain sélectionné et vu pour vous sous réserve de disponibilité et au prix indiqué par notre partenaire foncier. Visuels non contractuels.Cette annonce a été créée et diffusée avec le logiciel VITAHOME.
Amiens
TERRAIN ET MAISONPavillon de 3 chambres dont 1 au RDC, belles prestationsContactez Didier PHILIPPON au (Numéro supprimé) ou au (Numéro supprimé) (Pavillons d'Île-de-France – Agence d'Amiens).Prix avec assurance dommages-ouvrage comprise, hors VRD, terrain viabilisé, assainissement compris, frais de notaire non compris, taxes non comprises, frais divers non compris. Terrain sélectionné et vu pour vous sous réserve de disponibilité et au prix indiqué par notre partenaire foncier. Visuels non contractuels.Cette annonce a été créée et diffusée avec le logiciel VITAHOME.
Amiens
TERRAIN ET MAISONRéalisez votre projet de construction de maison RE 2020 avec PAVILLONS D'ÎLE-DE-FRANCE (constructeur de maisons de gamme et sur-mesure depuis plus de 50 ans) :- Plan sur-mesure et personnalisé de 2 à 5 chambres- Mode de chauffage au choix- Grands choix d'équipements et de prestations- Matériaux de qualité selon les normes en vigueur- Accompagnement dans le choix et l’acquisition du terrainInformations du terrain : Terrain viabilisé à 5mn du centre ville d'Amiens, transports en commun, commercesDemandez une étude gratuite et personnalisée de votre projet de construction !Contactez Didier PHILIPPON au (Numéro supprimé) ou au (Numéro supprimé) (Pavillons d'Île-de-France – Agence d'Amiens).Prix avec assurance dommages-ouvrage comprise, hors VRD, terrain viabilisé, assainissement compris, frais de notaire non compris, taxes non comprises, frais divers non compris. Terrain sélectionné et vu pour vous sous réserve de disponibilité et au prix indiqué par notre partenaire foncier. Visuels non contractuels.Cette annonce a été créée et diffusée avec le logiciel VITAHOME.
Ailly-sur-Somme
TERRAIN ET MAISONRéalisez votre projet de construction de maison RE 2020 avec PAVILLONS D'ÎLE-DE-FRANCE (constructeur de maisons de gamme et sur-mesure depuis plus de 50 ans) :- Plan sur-mesure et personnalisé de 2 à 5 chambres- Mode de chauffage au choix- Grands choix d'équipements et de prestations- Matériaux de qualité selon les normes en vigueur- Accompagnement dans le choix et l’acquisition du terrainInformations du terrain : Terrain à bâtir de 321m² à Ailly-sur-SommeProfitez de ce terrain de 321m² avec une façade de 14.30m, situé en lotissement, borné et viabilisé. Terrain plat, dans une zone calme au cœur d'un village avec toutes les commodités à proximité. Idéal pour votre projet de construction. À seulement 52 500€.Contactez-nous vite pour plus d’infos !Demandez une étude gratuite et personnalisée de votre projet de construction !Contactez Victor MAEGHT au (Numéro supprimé) ou au (Numéro supprimé) (Pavillons d'Île-de-France – Agence d'Amiens).Prix avec assurance dommages-ouvrage comprise, hors VRD, terrain viabilisé, assainissement non compris, frais de notaire non compris, taxes non comprises, frais divers non compris. Terrain sélectionné et vu pour vous sous réserve de disponibilité et au prix indiqué par notre partenaire foncier. Visuels non contractuels.Cette annonce a été créée et diffusée avec le logiciel VITAHOME.
Breilly
TERRAIN ET MAISONRéalisez votre projet de construction de maison RE 2020 avec PAVILLONS D'ÎLE-DE-FRANCE (constructeur de maisons de gamme et sur-mesure depuis plus de 50 ans) :- Plan sur-mesure et personnalisé de 2 à 5 chambres- Mode de chauffage au choix- Grands choix d'équipements et de prestations- Matériaux de qualité selon les normes en vigueur- Accompagnement dans le choix et l’acquisition du terrainInformations du terrain : Terrain à bâtir de 355m² à BreillyÀ seulement 5 minutes d'Amiens, découvrez ce terrain de 355m², borné et viabilisé. Situé dans un environnement calme, ensoleillé et verdoyant, à proximité des commerces. Idéal pour votre projet de construction. À saisir pour 49 500€.Contactez-nous pour plus de détails !Demandez une étude gratuite et personnalisée de votre projet de construction !Contactez Victor MAEGHT au (Numéro supprimé) ou au (Numéro supprimé) (Pavillons d'Île-de-France – Agence d'Amiens).Prix avec assurance dommages-ouvrage comprise, hors VRD, terrain viabilisé, assainissement non compris, frais de notaire non compris, taxes non comprises, frais divers non compris. Terrain sélectionné et vu pour vous sous réserve de disponibilité et au prix indiqué par notre partenaire foncier. Visuels non contractuels.Cette annonce a été créée et diffusée avec le logiciel VITAHOME.
Breilly
TERRAIN ET MAISONRéalisez votre projet de construction de maison RE 2020 avec PAVILLONS D'ÎLE-DE-FRANCE (constructeur de maisons de gamme et sur-mesure depuis plus de 50 ans) :- Plan sur-mesure et personnalisé de 2 à 5 chambres- Mode de chauffage au choix- Grands choix d'équipements et de prestations- Matériaux de qualité selon les normes en vigueur- Accompagnement dans le choix et l’acquisition du terrainInformations du terrain : A 10 mn d'Amiens, beau terrain borné et viabilisé, Tout à l'égoutDemandez une étude gratuite et personnalisée de votre projet de construction !Contactez Didier PHILIPPON au (Numéro supprimé) ou au (Numéro supprimé) (Pavillons d'Île-de-France – Agence d'Amiens).Prix avec assurance dommages-ouvrage comprise, hors VRD, terrain viabilisé, assainissement compris, frais de notaire non compris, taxes non comprises, frais divers non compris. Terrain sélectionné et vu pour vous sous réserve de disponibilité et au prix indiqué par notre partenaire foncier. Visuels non contractuels.Cette annonce a été créée et diffusée avec le logiciel VITAHOME.
Amiens
TERRAIN ET MAISONRéalisez votre projet de construction de maison RE 2020 avec PAVILLONS D'ÎLE-DE-FRANCE (constructeur de maisons de gamme et sur-mesure depuis plus de 50 ans) :- Plan sur-mesure et personnalisé de 2 à 5 chambres- Mode de chauffage au choix- Grands choix d'équipements et de prestations- Matériaux de qualité selon les normes en vigueur- Accompagnement dans le choix et l’acquisition du terrainInformations du terrain : Terrain viabilisé à 5mn du centre ville d'Amiens, transports en commun, commercesDemandez une étude gratuite et personnalisée de votre projet de construction !Contactez Didier PHILIPPON au (Numéro supprimé) ou au (Numéro supprimé) (Pavillons d'Île-de-France – Agence d'Amiens).Prix avec assurance dommages-ouvrage comprise, hors VRD, terrain viabilisé, assainissement compris, frais de notaire non compris, taxes non comprises, frais divers non compris. Terrain sélectionné et vu pour vous sous réserve de disponibilité et au prix indiqué par notre partenaire foncier. Visuels non contractuels.Cette annonce a été créée et diffusée avec le logiciel VITAHOME.
Ailly-sur-Somme
TERRAIN ET MAISONRéalisez votre projet de construction de maison RE 2020 avec PAVILLONS D'ÎLE-DE-FRANCE (constructeur de maisons de gamme et sur-mesure depuis plus de 50 ans) :- Plan sur-mesure et personnalisé de 2 à 5 chambres- Mode de chauffage au choix- Grands choix d'équipements et de prestations- Matériaux de qualité selon les normes en vigueur- Accompagnement dans le choix et l’acquisition du terrainInformations du terrain : Terrain à bâtir de 321m² à Ailly-sur-SommeProfitez de ce terrain de 321m² avec une façade de 14.30m, situé en lotissement, borné et viabilisé. Terrain plat, dans une zone calme au cœur d'un village avec toutes les commodités à proximité. Idéal pour votre projet de construction. À seulement 52 500€.Contactez-nous vite pour plus d’infos !Demandez une étude gratuite et personnalisée de votre projet de construction !Contactez Victor MAEGHT au (Numéro supprimé) ou au (Numéro supprimé) (Pavillons d'Île-de-France – Agence d'Amiens).Prix avec assurance dommages-ouvrage comprise, hors VRD, terrain viabilisé, assainissement non compris, frais de notaire non compris, taxes non comprises, frais divers non compris. Terrain sélectionné et vu pour vous sous réserve de disponibilité et au prix indiqué par notre partenaire foncier. Visuels non contractuels.Cette annonce a été créée et diffusée avec le logiciel VITAHOME.
L’actualité immobilière à Saint-Sauveur
27/11/2023
02/11/2023
30/10/2023
20/10/2023
16/10/2023
16/10/2023