Maison à construire à Vismes (80140)
Images
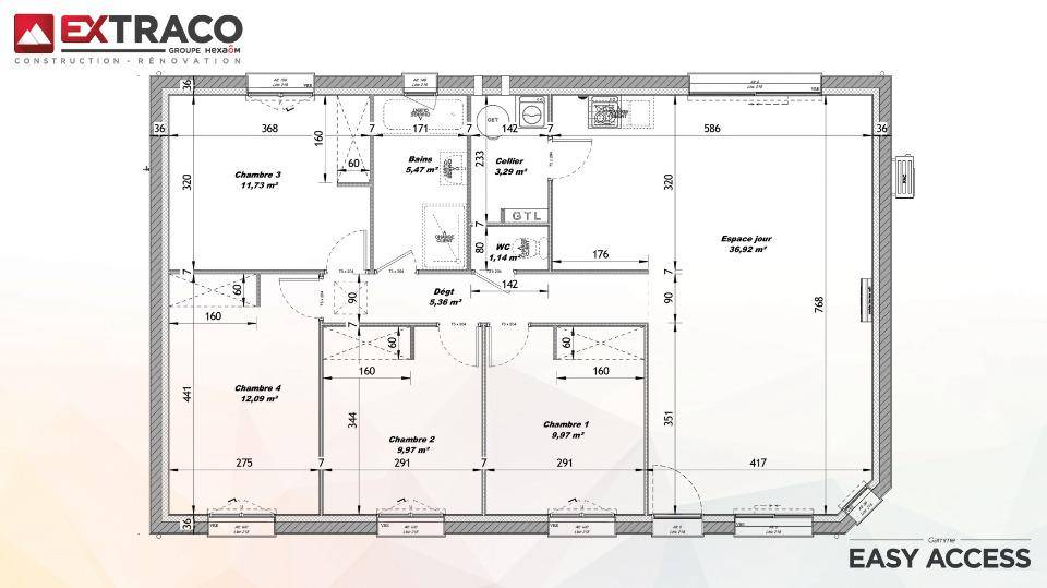
Description
VENTE : maison F5 (95 m²) à Vismes
MAISON 5 PIÈCES NEUVE
À vendre : située à 27 km de la Manche, nous sommes heureux de vous proposer cette maison de 5 pièces de plain-pied de 95 m² à Vismes (80140).
Conçue de plain-pied, elle se divise en quatre chambres, une cuisine et une salle de bains. La maison est neuve.
Le terrain de la propriété est de 635 m².
Une école élémentaire est implantée dans le quartier. Niveau transports en commun, il y a deux gares (Longroy-Gamaches et Blangy-sur-Bresle) à moins de 10 minutes en voiture. On trouve un accès à l'autoroute A28 à 3 km.
Son prix de vente est de 155 800 €.
Prenez contact avec notre agence (Delphine DERULLES : (Numéro supprimé)) pour toute question sur ce bien, sur les démarches à suivre ou sur les modalités de vente. Donnez vie à vos projets immobiliers avec Les Maisons Extraco Eu.
Logement susceptibles de vous intéresser
Nous vous proposons de découvrir aussi cette sélection de logements situés à moins de 10km de Vismes et qui seraient susceptibles de vous intéresser.
Bouillancourt-en-Séry
TERRAIN ET MAISONVENTE : maison de 5 pièces (95 m²) à Bouillancourt-en-SéryMAISON 5 PIÈCES NEUVEEn vente à 26 km de la Manche, Les Maisons Extraco Eu vous propose cette maison de 5 pièces de plain-pied de 95 m² à Bouillancourt-en-Séry (80220).Elle compte quatre chambres, une cuisine et une salle de bains. La maison est neuve.Le terrain de la propriété s’étend sur 828 m².Il y a une école primaire dans le quartier. Niveau transports, on trouve deux gares (Blangy-sur-Bresle et Longroy-Gamaches) à moins de 10 minutes en voiture. On trouve un accès à l’autoroute A28 à 4 km.Elle est à vendre pour la somme de 167 700 €.N’hésitez pas à prendre contact avec Delphine DERULLES ((Numéro supprimé)) pour plus de renseignements sur cette propriété.
Bouttencourt
TERRAINVENTE d’un terrain de 448 m² à BouttencourtÀ vendre à 28 km de la Manche à Bouttencourt (80220), terrain de 448 m². Il est prêt à accueillir votre projet immobilier pour toute la famille. Une école primaire est implantée dans le quartier. Côté transports en commun, il y a la gare Blangy-sur-Bresle à moins de 10 minutes à pied. L’autoroute A28 est accessible à 2 km. On trouve deux tennis, un supermarché, des commerces, deux boulangeries, deux boucheries-charcuteries et deux épiceries à quelques minutes du terrain. Le marché Centre-Ville anime les environs tous les dimanches matin.Ce terrain est à vendre pour la somme de 22 400 €. N’hésitez pas à prendre contact avec Delphine DERULLES ((Numéro supprimé)) pour tout renseignement sur le terrain. Les Maisons Extraco Eu est là pour vous accompagner dans tous vos projets immobiliers.
Bouttencourt
TERRAIN ET MAISONBouttencourt : maison de 4 pièces (81 m²) en venteMAISON 4 PIÈCES NEUVEÀ vendre à 28 km de la Manche, découvrez cette maison de 4 pièces de 81 m² et de 448 m² de terrain à Bouttencourt (80220). Son intérieur dispose de deux chambres, d’une cuisine et d’une salle de bains.Il s’agit d’une maison de 2 niveaux. Elle est neuve.Une école primaire est implantée dans le quartier. Côté transports en commun, il y a la gare Blangy-sur-Bresle à moins de 10 minutes à pied. L’autoroute A28 est accessible à 2 km. On trouve deux tennis, un supermarché, des commerces, deux boulangeries, deux boucheries-charcuteries et un bureau de poste à proximité. Enfin, le marché Centre-Ville a lieu tous les dimanches matin.Elle est proposée à l’achat pour 164 000 €.Contactez notre agence (Delphine DERULLES : (Numéro supprimé)) pour toute information sur la maison, sur les modalités de vente ou sur les démarches à suivre.
Bouillancourt-en-Séry
TERRAIN ET MAISONVENTE : maison T5 (92 m²) à Bouillancourt-en-SéryMAISON 5 PIÈCES NEUVEÀ vendre : à 26 km de la Manche, Les Maisons Extraco Eu vous présente cette maison de 5 pièces de plain-pied de 92 m² et de 828 m² de terrain à Bouillancourt-en-Séry (80220). Conçue de plain-pied, elle se divise en quatre chambres, une cuisine et une salle de bains.Cette maison est neuve.Une école primaire est implantée dans le quartier. Côté transports en commun, il y a les gares Blangy-sur-Bresle et Longroy-Gamaches à moins de 10 minutes en voiture. Il y a un accès à l’autoroute A28 à 4 km.Elle est à vendre pour la somme de 177 700 €.N’hésitez pas à prendre contact avec notre agence (Delphine DERULLES : (Numéro supprimé)) pour obtenir de plus amples informations sur la maison.
Bouttencourt
TERRAIN ET MAISONVENTE : maison F5 (92 m²) à BouttencourtMAISON 5 PIÈCES NEUVEÀ 28 km de la Manche, découvrez cette maison de 5 pièces de plain-pied de 92 m² et de 448 m² de terrain à Bouttencourt (80220). Conçue de plain-pied, elle comporte quatre chambres, une cuisine et une salle de bains.La maison est neuve.Il y a une école primaire dans le quartier. Côté transports en commun, on trouve la gare Blangy-sur-Bresle à moins de 10 minutes à pied. L’autoroute A28 est accessible à 2 km. Il y a deux tennis, un supermarché, des commerces, deux boulangeries, deux épiceries et une poissonnerie dans les environs. Ne manquez pas le marché Centre-Ville tous les dimanches matin.Elle est proposée à l’achat pour 171 000 €.Contactez Delphine DERULLES (tél : (Numéro supprimé)) pour obtenir de plus amples renseignements sur cette maison, sur les démarches à suivre ou sur les modalités de vente.
Vismes
TERRAINVENTE : terrain de 635 m² à VismesÀ Vismes (80140) en vente à 27 km de la Manche, projetez la maison de vos rêves sur ce terrain de 635 m². Il y a une école élémentaire dans le quartier. Côté transports, on trouve deux gares (Longroy-Gamaches et Blangy-sur-Bresle) à moins de 10 minutes en voiture. L’autoroute A28 est accessible à 3 km.Il est proposé à l’achat pour 17 780 €. N’hésitez pas à prendre contact avec notre agence (Delphine DERULLES : (Numéro supprimé)) pour plus d’informations sur le terrain, sur les modalités de vente ou sur les démarches à suivre. Faites de vos projets immobiliers une réalité avec Les Maisons Extraco Eu.
Bouillancourt-en-Séry
TERRAIN ET MAISONVENTE d’une maison de 4 pièces (81 m²) à Bouillancourt-en-SéryMAISON 4 PIÈCES NEUVEEn vente à 26 km de la Manche, Les Maisons Extraco Eu vous présente cette maison de 4 pièces de 81 m² à Bouillancourt-en-Séry (80220).C’est une maison de 2 niveaux. Son intérieur dispose de deux chambres, d’une cuisine et d’une salle de bains. Cette maison est neuve.Le terrain de la propriété est de 828 m².Il y a une école primaire dans le quartier. Niveau transports, on trouve les gares Blangy-sur-Bresle et Longroy-Gamaches à moins de 10 minutes en voiture. L’autoroute A28 est accessible à 4 km.Elle est proposée à l’achat pour 170 700 €.Prenez contact avec Delphine DERULLES (tél : (Numéro supprimé)) pour toute information sur la maison, sur les démarches à suivre ou sur les modalités de vente. Concrétisez vos projets immobiliers avec Les Maisons Extraco Eu.
Vismes
TERRAIN ET MAISONMaison de 4 pièces (81 m²) à vendre à VismesMAISON 4 PIÈCES NEUVEÀ vendre : à 27 km de la Manche, ayez le coup de coeur pour cette maison de 4 pièces de 81 m² et de 635 m² de terrain à Vismes (80140). Son intérieur compte deux chambres, une cuisine et une salle de bains.Il s’agit d’une maison de 2 niveaux. Elle est neuve.Une école élémentaire est implantée dans le quartier. Côté transports en commun, il y a les gares Longroy-Gamaches et Blangy-sur-Bresle à moins de 10 minutes en voiture. L’autoroute A28 est accessible à 3 km.Elle est à vendre pour la somme de 158 800 €.Contactez notre agence (Delphine DERULLES : (Numéro supprimé)) pour obtenir de plus amples informations sur cette maison ou sur les modalités de vente.
Vismes
TERRAIN ET MAISONVENTE d’une maison T5 (92 m²) à VismesMAISON 5 PIÈCES NEUVEÀ vendre : à 27 km de la Manche, venez découvrir à Vismes (80140), cette maison de 5 pièces de plain-pied de 92 m².Son intérieur se divise en quatre chambres, une cuisine et une salle de bains. La maison est neuve.Le terrain du bien est de 635 m².Il y a une école élémentaire dans le quartier. Niveau transports, on trouve deux gares (Longroy-Gamaches et Blangy-sur-Bresle) à moins de 10 minutes en voiture. Il y a un accès à l’autoroute A28 à 3 km.Elle est à vendre pour la somme de 165 800 €.Prenez contact avec Delphine DERULLES (tél : (Numéro supprimé)) pour plus d’informations sur la maison. Les Maisons Extraco Eu est là pour vous accompagner dans tous vos projets immobiliers.
L’actualité immobilière à Vismes
27/11/2023
02/11/2023
30/10/2023
20/10/2023
16/10/2023
16/10/2023