Terrain à vendre

Maison à construire à Albi (81000)

256037 €
125 m²
Albi
Tarn (81)
TERRAIN ET MAISON
Réf externe: 3537617
Annonce publiée le 16 décembre 2025

Images

Description

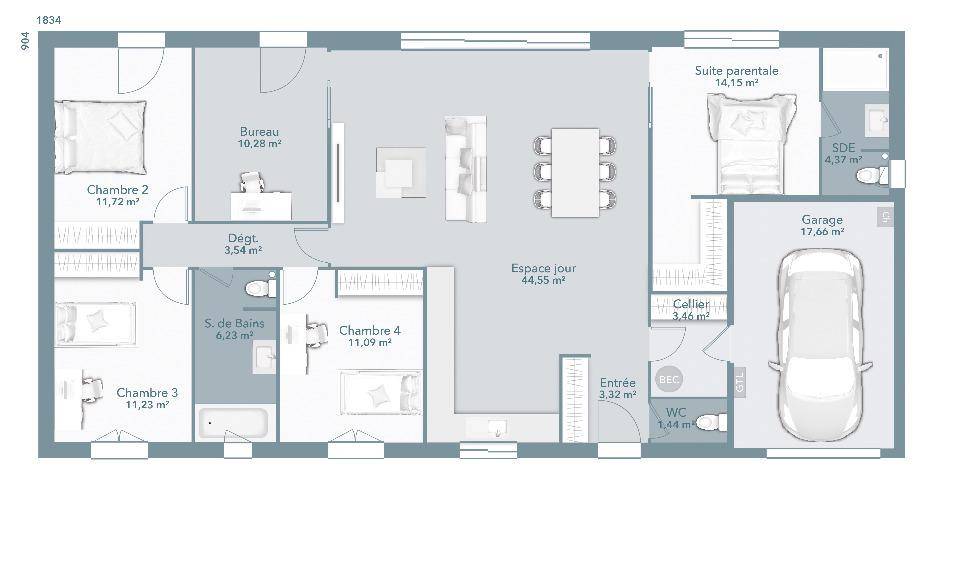
Modèle Optima Plain-pied 125 m²

Confort familial optimisé Luminosité Ergonomie

Maisons France Confort Albi, spécialiste de la construction traditionnelle et à ossature bois, vous présente le modèle Optima, un plain-pied de 125 m² pensé pour la vie de famille : fonctionnalité, circulation fluide et luminosité au coeur du projet.

Un plan réfléchi pour le quotidien

Pièce de vie centrale : un vaste séjour traversant, lumineux et convivial, conçu pour accueillir salon, salle à manger et cuisine ouverte. Les larges ouvertures favorisent la continuité intérieur / extérieur et créent un espace de vie agréable toute l'année.

Espace enfants / jour : trois chambres dédiées aux enfants (ou invités) et un bureau agencés pour préserver calme et intimité tout en restant proches de la pièce de vie.

Espace parents / nuit : suite parentale privative avec salle d'eau et dressing, offrant un véritable cocon intime et fonctionnel.

Praticité : cellier attenant au garage avec accès direct à la cuisine, pour faciliter les allers-retours, le rangement des courses et les usages quotidiens.

Atouts fonctionnels

Séparation claire jour / nuit pour un confort acoustique et une meilleure organisation des circulation.

Nombreux rangements possibles : placards intégrés, cellier, garage tout est prévu pour une maison ordonnée et facile à vivre.

Plain-pied : accessibilité, sécurité et confort pour toutes les étapes de la vie (jeunesse, famille, seniors).

Confort, performances et personnalisation

Conception compatible avec des solutions techniques modernes : isolation performante, systèmes de chauffage performants, et options éco-responsables (pompe à chaleur, panneaux solaires, etc.).

Plans modulables : possibilité d'adapter l'organisation intérieure, les finitions et les prestations (cuisine sur mesure, extension de garage, pergola, pose de volets roulants motorisés, etc.) selon vos besoins et votre budget.

Pourquoi choisir l'Optima ?

Vous recherchez un plain-pied spacieux alliant

CONTACTER

Logement susceptibles de vous intéresser

60 000 €

Carlus

TERRAIN

? CARLUS – LOTISSEMENT LES HAUTS DE SERRES Terrains viabilisés – 339 à 758 m² – Un cadre naturel rare, apaisant et préservé À Carlus, dans un environnement vallonné exceptionnel, découvrez Les Hauts de Serres, un lotissement intimiste de 18 parcelles viabilisées, pensées pour offrir un mode de vie plus doux, plus naturel, plus authentique. Dès l’arrivée sur le site, on ressent un calme profond, une lumière remarquable, et une sensation d’espace rare. Les vues sur le village, la campagne et les essences locales créent une atmosphère immédiatement inspirante : c’est l’endroit idéal pour bâtir une maison qui respire. Un programme conçu pour la qualité environnementale Bandes paysagères plantées d’essences locales sur plusieurs lots (1 à 6). Haies végétales obligatoires sur certains secteurs pour préserver l’harmonie visuelle (lots 6-7-13-14). Conservation de haies existantes en fond de parcelle sur les lots concernés. Gestion écologique des eaux pluviales, intégrée à la parcelle (infiltration naturelle, jardins d’eau). Intégration des constructions dans la topographie pour une implantation harmonieuse. Cet esprit environnemental se retrouve dans le ressenti sur place : aucune densité excessive, aucun bruit parasite, simplement un lieu où l’on respire, où l’on se projette, où l’on a envie de vivre. Commerces, services & équipements à proximité Carlus est un village vivant disposant : d’une salle multisport / gymnase communal à quelques minutes du lotissement, de services municipaux (mairie, équipements associatifs). À moins de 6 minutes en voiture : zones commerciales Le Séquestre et Albi, écoles, collèges et lycées, pôles médicaux et l’ensemble des services du quotidien. Vous profitez ainsi du calme de la campagne, sans être isolé, avec Albi et toutes ses infrastructures accessibles en quelques minutes. Chaque lot offre un fort potentiel : exposition idéale, intimité, vues dégagées, liberté de conception architecturale. Ce programme est parfaitement adapté aux familles recherchant un cadre sain, sécurisé et naturel, aux actifs souhaitant vivre à la campagne tout en restant proches d’Albi et aux investisseurs cherchant un secteur très prisé, à forte valorisation patrimoniale, Un site à découvrir absolument : ici, les terrains déclenchent le coup de coeur. Envie de connaître toutes les disponibilités ? Contactez-moi pour recevoir les plans, visiter le site et réserver votre parcelle.Honoraires à la charge du vendeurVotre agent commercial 3G IMMO sur place EI – Séverine TESSON inscrite au RSAC d’ALBI n° 452 369 895 Selon l’article L.561.5 du Code Monétaire et Financier, pour l’organisation de la visite, la présentation d’une pièce d’identité vous sera demandée.Les informations sur les risques auxquels ce bien est exposé sont disponibles sur le site Géorisques : www.georisques.gouv.frLes informations sur les risques auxquels ce bien est exposé sont disponibles sur le site Géorisques : www.georisques.gouv.fr

79 900 €

Puygouzon

TERRAIN

PUYGOUZON – LOTISSEMENT LES HAUTS D’AL VIGNÉ 41 terrains viabilisés – 455 à 811 m² – Libres de constructeur Découvrez un cadre de vie rare, calme et verdoyant, à seulement quelques minutes d’Albi, au sein du lotissement intimiste Les Hauts d’Al Vigné, idéalement situé Rue de Belbèze à Puygouzon (81990). Points forts du programme : – Terrains entièrement viabilisés (Eau – Électricité – Télécom – Assainissement). – Surfaces encore disponibles de 547 à 816 m² adaptées à tous types de projets. – Libres de constructeur : concevez la maison qui vous ressemble. – Environnement résidentiel paisible et recherché. – Proximité immédiate : écoles, crèches, commerces, médecins, sport, services du quotidien. – Arrêt de bus des transports du Grand Albigeois à quelques pas. – Cheminements doux et espaces végétalisés préservant le cadre naturel. – Gestion des eaux pluviales intégrée (noues, jardins d’eau) pour un quartier durable. – Un cadre de vie privilégié Situé sur les hauteurs, le lotissement offre un environnement calme, sécurisé, entouré de verdure, avec des vues dégagées sur les coteaux et un accès rapide à la rocade d’Albi. Un secteur idéal pour familles, primo-accédants ou investisseurs à la recherche d’un emplacement stratégique en pleine expansion. Atouts techniques : – Règlement de lotissement garantissant une harmonie architecturale. – Possibilité d’implantation souple selon les lots. – Stationnements privatifs + places visiteurs en revêtement drainant. – Réseau complet : eau potable, assainissement, eaux pluviales maîtrisées, EDF, télécom. Pourquoi choisir Les Hauts d’Al Vigné ? Parce qu’il s’agit d’un programme premium, pensé pour allier qualité de vie, modernité et durabilité, au coeur d’une commune dynamique et très recherchée de l’agglomération albigeoise. Envie de connaître toutes les disponibilités ? Contactez-moi ! Honoraires à la charge du vendeurVotre agent commercial 3G IMMO sur place EI – Séverine TESSON inscrite au RSAC d’ALBI n° 452 369 895 Selon l’article L.561.5 du Code Monétaire et Financier, pour l’organisation de la visite, la présentation d’une pièce d’identité vous sera demandée.Les informations sur les risques auxquels ce bien est exposé sont disponibles sur le site Géorisques : www.georisques.gouv.frLes informations sur les risques auxquels ce bien est exposé sont disponibles sur le site Géorisques : www.georisques.gouv.fr

60 000 €

Carlus

TERRAIN

? CARLUS – LOTISSEMENT LES HAUTS DE SERRES Terrains viabilisés – 339 à 758 m² – Un cadre naturel rare, apaisant et préservé À Carlus, dans un environnement vallonné exceptionnel, découvrez Les Hauts de Serres, un lotissement intimiste de 18 parcelles viabilisées, pensées pour offrir un mode de vie plus doux, plus naturel, plus authentique. Dès l’arrivée sur le site, on ressent un calme profond, une lumière remarquable, et une sensation d’espace rare. Les vues sur le village, la campagne et les essences locales créent une atmosphère immédiatement inspirante : c’est l’endroit idéal pour bâtir une maison qui respire. Un programme conçu pour la qualité environnementale Bandes paysagères plantées d’essences locales sur plusieurs lots (1 à 6). Haies végétales obligatoires sur certains secteurs pour préserver l’harmonie visuelle (lots 6-7-13-14). Conservation de haies existantes en fond de parcelle sur les lots concernés. Gestion écologique des eaux pluviales, intégrée à la parcelle (infiltration naturelle, jardins d’eau). Intégration des constructions dans la topographie pour une implantation harmonieuse. Cet esprit environnemental se retrouve dans le ressenti sur place : aucune densité excessive, aucun bruit parasite, simplement un lieu où l’on respire, où l’on se projette, où l’on a envie de vivre. Commerces, services & équipements à proximité Carlus est un village vivant disposant : d’une salle multisport / gymnase communal à quelques minutes du lotissement, de services municipaux (mairie, équipements associatifs). À moins de 6 minutes en voiture : zones commerciales Le Séquestre et Albi, écoles, collèges et lycées, pôles médicaux et l’ensemble des services du quotidien. Vous profitez ainsi du calme de la campagne, sans être isolé, avec Albi et toutes ses infrastructures accessibles en quelques minutes. Chaque lot offre un fort potentiel : exposition idéale, intimité, vues dégagées, liberté de conception architecturale. Ce programme est parfaitement adapté aux familles recherchant un cadre sain, sécurisé et naturel, aux actifs souhaitant vivre à la campagne tout en restant proches d’Albi et aux investisseurs cherchant un secteur très prisé, à forte valorisation patrimoniale, Un site à découvrir absolument : ici, les terrains déclenchent le coup de coeur. Envie de connaître toutes les disponibilités ? Contactez-moi pour recevoir les plans, visiter le site et réserver votre parcelle. Honoraires à la charge du vendeurVotre agent commercial 3G IMMO sur place EI – Séverine TESSON inscrite au RSAC d’ALBI n° 452 369 895 Selon l’article L.561.5 du Code Monétaire et Financier, pour l’organisation de la visite, la présentation d’une pièce d’identité vous sera demandée.Les informations sur les risques auxquels ce bien est exposé sont disponibles sur le site Géorisques : www.georisques.gouv.frLes informations sur les risques auxquels ce bien est exposé sont disponibles sur le site Géorisques : www.georisques.gouv.fr

73 600 €

Puygouzon

TERRAIN

PUYGOUZON – LOTISSEMENT LES HAUTS D’AL VIGNÉ 41 terrains viabilisés – 455 à 811 m² – Libres de constructeur Découvrez un cadre de vie rare, calme et verdoyant, à seulement quelques minutes d’Albi, au sein du lotissement intimiste Les Hauts d’Al Vigné, idéalement situé Rue de Belbèze à Puygouzon (81990). Points forts du programme : – Terrains entièrement viabilisés (Eau – Électricité – Télécom – Assainissement). – Surfaces encore disponibles de 547 à 816 m² adaptées à tous types de projets. – Libres de constructeur : concevez la maison qui vous ressemble. – Environnement résidentiel paisible et recherché. – Proximité immédiate : écoles, crèches, commerces, médecins, sport, services du quotidien. – Arrêt de bus des transports du Grand Albigeois à quelques pas. – Cheminements doux et espaces végétalisés préservant le cadre naturel. – Gestion des eaux pluviales intégrée (noues, jardins d’eau) pour un quartier durable. – Un cadre de vie privilégié Situé sur les hauteurs, le lotissement offre un environnement calme, sécurisé, entouré de verdure, avec des vues dégagées sur les coteaux et un accès rapide à la rocade d’Albi. Un secteur idéal pour familles, primo-accédants ou investisseurs à la recherche d’un emplacement stratégique en pleine expansion. Atouts techniques : – Règlement de lotissement garantissant une harmonie architecturale. – Possibilité d’implantation souple selon les lots. – Stationnements privatifs + places visiteurs en revêtement drainant. – Réseau complet : eau potable, assainissement, eaux pluviales maîtrisées, EDF, télécom. Pourquoi choisir Les Hauts d’Al Vigné ? Parce qu’il s’agit d’un programme premium, pensé pour allier qualité de vie, modernité et durabilité, au coeur d’une commune dynamique et très recherchée de l’agglomération albigeoise. Envie de connaître toutes les disponibilités ? Contactez-moi ! Honoraires à la charge du vendeurVotre agent commercial 3G IMMO sur place EI – Séverine TESSON inscrite au RSAC d’ALBI n° 452 369 895 Selon l’article L.561.5 du Code Monétaire et Financier, pour l’organisation de la visite, la présentation d’une pièce d’identité vous sera demandée.Les informations sur les risques auxquels ce bien est exposé sont disponibles sur le site Géorisques : www.georisques.gouv.frLes informations sur les risques auxquels ce bien est exposé sont disponibles sur le site Géorisques : www.georisques.gouv.fr

84 000 €

Carlus

TERRAIN

? CARLUS – LOTISSEMENT LES HAUTS DE SERRES Terrains viabilisés – 339 à 758 m² – Un cadre naturel rare, apaisant et préservé À Carlus, dans un environnement vallonné exceptionnel, découvrez Les Hauts de Serres, un lotissement intimiste de 18 parcelles viabilisées, pensées pour offrir un mode de vie plus doux, plus naturel, plus authentique. Dès l’arrivée sur le site, on ressent un calme profond, une lumière remarquable, et une sensation d’espace rare. Les vues sur le village, la campagne et les essences locales créent une atmosphère immédiatement inspirante : c’est l’endroit idéal pour bâtir une maison qui respire. Un programme conçu pour la qualité environnementale Bandes paysagères plantées d’essences locales sur plusieurs lots (1 à 6). Haies végétales obligatoires sur certains secteurs pour préserver l’harmonie visuelle (lots 6-7-13-14). Conservation de haies existantes en fond de parcelle sur les lots concernés. Gestion écologique des eaux pluviales, intégrée à la parcelle (infiltration naturelle, jardins d’eau). Intégration des constructions dans la topographie pour une implantation harmonieuse. Cet esprit environnemental se retrouve dans le ressenti sur place : aucune densité excessive, aucun bruit parasite, simplement un lieu où l’on respire, où l’on se projette, où l’on a envie de vivre. Commerces, services & équipements à proximité Carlus est un village vivant disposant : d’une salle multisport / gymnase communal à quelques minutes du lotissement, de services municipaux (mairie, équipements associatifs). À moins de 6 minutes en voiture : zones commerciales Le Séquestre et Albi, écoles, collèges et lycées, pôles médicaux et l’ensemble des services du quotidien. Vous profitez ainsi du calme de la campagne, sans être isolé, avec Albi et toutes ses infrastructures accessibles en quelques minutes. Chaque lot offre un fort potentiel : exposition idéale, intimité, vues dégagées, liberté de conception architecturale. Ce programme est parfaitement adapté aux familles recherchant un cadre sain, sécurisé et naturel, aux actifs souhaitant vivre à la campagne tout en restant proches d’Albi et aux investisseurs cherchant un secteur très prisé, à forte valorisation patrimoniale, Un site à découvrir absolument : ici, les terrains déclenchent le coup de coeur. Envie de connaître toutes les disponibilités ? Contactez-moi pour recevoir les plans, visiter le site et réserver votre parcelle. Honoraires à la charge du vendeurVotre agent commercial 3G IMMO sur place EI – Séverine TESSON inscrite au RSAC d’ALBI n° 452 369 895 Selon l’article L.561.5 du Code Monétaire et Financier, pour l’organisation de la visite, la présentation d’une pièce d’identité vous sera demandée.Les informations sur les risques auxquels ce bien est exposé sont disponibles sur le site Géorisques : www.georisques.gouv.frLes informations sur les risques auxquels ce bien est exposé sont disponibles sur le site Géorisques : www.georisques.gouv.fr

68 000 €

Carlus

TERRAIN

? CARLUS – LOTISSEMENT LES HAUTS DE SERRES Terrains viabilisés – 339 à 758 m² – Un cadre naturel rare, apaisant et préservé À Carlus, dans un environnement vallonné exceptionnel, découvrez Les Hauts de Serres, un lotissement intimiste de 18 parcelles viabilisées, pensées pour offrir un mode de vie plus doux, plus naturel, plus authentique. Dès l’arrivée sur le site, on ressent un calme profond, une lumière remarquable, et une sensation d’espace rare. Les vues sur le village, la campagne et les essences locales créent une atmosphère immédiatement inspirante : c’est l’endroit idéal pour bâtir une maison qui respire. Un programme conçu pour la qualité environnementale Bandes paysagères plantées d’essences locales sur plusieurs lots (1 à 6). Haies végétales obligatoires sur certains secteurs pour préserver l’harmonie visuelle (lots 6-7-13-14). Conservation de haies existantes en fond de parcelle sur les lots concernés. Gestion écologique des eaux pluviales, intégrée à la parcelle (infiltration naturelle, jardins d’eau). Intégration des constructions dans la topographie pour une implantation harmonieuse. Cet esprit environnemental se retrouve dans le ressenti sur place : aucune densité excessive, aucun bruit parasite, simplement un lieu où l’on respire, où l’on se projette, où l’on a envie de vivre. Commerces, services & équipements à proximité Carlus est un village vivant disposant : d’une salle multisport / gymnase communal à quelques minutes du lotissement, de services municipaux (mairie, équipements associatifs). À moins de 6 minutes en voiture : zones commerciales Le Séquestre et Albi, écoles, collèges et lycées, pôles médicaux et l’ensemble des services du quotidien. Vous profitez ainsi du calme de la campagne, sans être isolé, avec Albi et toutes ses infrastructures accessibles en quelques minutes. Chaque lot offre un fort potentiel : exposition idéale, intimité, vues dégagées, liberté de conception architecturale. Ce programme est parfaitement adapté aux familles recherchant un cadre sain, sécurisé et naturel, aux actifs souhaitant vivre à la campagne tout en restant proches d’Albi et aux investisseurs cherchant un secteur très prisé, à forte valorisation patrimoniale, Un site à découvrir absolument : ici, les terrains déclenchent le coup de coeur. Envie de connaître toutes les disponibilités ? Contactez-moi pour recevoir les plans, visiter le site et réserver votre parcelle. Honoraires à la charge du vendeurVotre agent commercial 3G IMMO sur place EI – Séverine TESSON inscrite au RSAC d’ALBI n° 452 369 895 Selon l’article L.561.5 du Code Monétaire et Financier, pour l’organisation de la visite, la présentation d’une pièce d’identité vous sera demandée.Les informations sur les risques auxquels ce bien est exposé sont disponibles sur le site Géorisques : www.georisques.gouv.frLes informations sur les risques auxquels ce bien est exposé sont disponibles sur le site Géorisques : www.georisques.gouv.fr

95 900 €

Puygouzon

TERRAIN

PUYGOUZON – LOTISSEMENT LES HAUTS D’AL VIGNÉ 41 terrains viabilisés – 455 à 811 m² – Libres de constructeur Découvrez un cadre de vie rare, calme et verdoyant, à seulement quelques minutes d’Albi, au sein du lotissement intimiste Les Hauts d’Al Vigné, idéalement situé Rue de Belbèze à Puygouzon (81990). Points forts du programme : – Terrains entièrement viabilisés (Eau – Électricité – Télécom – Assainissement). – Surfaces encore disponibles de 547 à 816 m² adaptées à tous types de projets. – Libres de constructeur : concevez la maison qui vous ressemble. – Environnement résidentiel paisible et recherché. – Proximité immédiate : écoles, crèches, commerces, médecins, sport, services du quotidien. – Arrêt de bus des transports du Grand Albigeois à quelques pas. – Cheminements doux et espaces végétalisés préservant le cadre naturel. – Gestion des eaux pluviales intégrée (noues, jardins d’eau) pour un quartier durable. – Un cadre de vie privilégié Situé sur les hauteurs, le lotissement offre un environnement calme, sécurisé, entouré de verdure, avec des vues dégagées sur les coteaux et un accès rapide à la rocade d’Albi. Un secteur idéal pour familles, primo-accédants ou investisseurs à la recherche d’un emplacement stratégique en pleine expansion. Atouts techniques : – Règlement de lotissement garantissant une harmonie architecturale. – Possibilité d’implantation souple selon les lots. – Stationnements privatifs + places visiteurs en revêtement drainant. – Réseau complet : eau potable, assainissement, eaux pluviales maîtrisées, EDF, télécom. Pourquoi choisir Les Hauts d’Al Vigné ? Parce qu’il s’agit d’un programme premium, pensé pour allier qualité de vie, modernité et durabilité, au coeur d’une commune dynamique et très recherchée de l’agglomération albigeoise. Envie de connaître toutes les disponibilités ? Contactez-moi ! Honoraires à la charge du vendeurVotre agent commercial 3G IMMO sur place EI – Séverine TESSON inscrite au RSAC d’ALBI n° 452 369 895 Selon l’article L.561.5 du Code Monétaire et Financier, pour l’organisation de la visite, la présentation d’une pièce d’identité vous sera demandée.Les informations sur les risques auxquels ce bien est exposé sont disponibles sur le site Géorisques : www.georisques.gouv.frLes informations sur les risques auxquels ce bien est exposé sont disponibles sur le site Géorisques : www.georisques.gouv.fr

L’actualité immobilière à Albi

Image du post Pourquoi acheter un terrain en lotissement ? 27/11/2023
Lire l’article
Pourquoi acheter un terrain en lotissement ?
Image du post Vendre son terrain à un promoteur : comment procéder ? 02/11/2023
Lire l’article
Vendre son terrain à un promoteur : comment procéder ?
Image du post Diviser le terrain de sa maison pour le vendre : pourquoi et comment ? 30/10/2023
Lire l’article
Diviser le terrain de sa maison pour le vendre : pourquoi et comment ?
Image du post Acheter un terrain viabilisé : quels avantages ? 20/10/2023
Lire l’article
Acheter un terrain viabilisé : quels avantages ?
Image du post Les 7 étapes incontournables pour bien vendre votre terrain constructible 16/10/2023
Lire l’article
Les 7 étapes incontournables pour bien vendre votre terrain constructible
Image du post 5 points clés à vérifier pour l’achat d’un terrain constructible  16/10/2023
Lire l’article
5 points clés à vérifier pour l’achat d’un terrain constructible