Maison à construire à Bellegarde (81430)
Images
Description
Bellegarde : maison de 5 pièces (120 m²) à vendre
PROCHE D'ALBI - MAISON 5 PIÈCES NEUVE
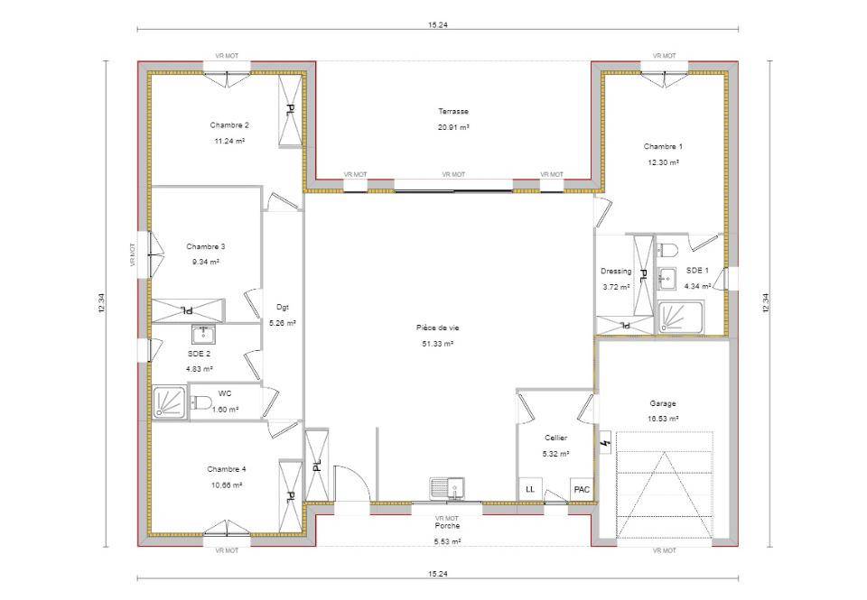
À vendre : localisée à deux pas d'Albi, à Bellegarde (81430), venez découvrir cette maison de 5 pièces de plain-pied de 120 m².
Elle dispose de quatre chambres, d'une cuisine et de deux salles de bains. Cette maison est neuve.
Le terrain du bien s'étend sur 825 m².
Une école primaire est implantée dans le quartier.
Elle est proposée à l'achat pour 267 000 €.
Contactez votre agence Maisons France Confort Albi au (Numéro supprimé) pour toute information sur la maison.
Annonce proposée par un Agent Commercial Partenaire.
Logement susceptibles de vous intéresser
Nous vous proposons de découvrir aussi cette sélection de logements situés à moins de 10km de Bellegarde-Marsal et qui seraient susceptibles de vous intéresser.
Puygouzon
TERRAINPUYGOUZON – LOTISSEMENT LES HAUTS D’AL VIGNÉ 41 terrains viabilisés – 455 à 811 m² – Libres de constructeur Découvrez un cadre de vie rare, calme et verdoyant, à seulement quelques minutes d’Albi, au sein du lotissement intimiste Les Hauts d’Al Vigné, idéalement situé Rue de Belbèze à Puygouzon (81990). Points forts du programme : – Terrains entièrement viabilisés (Eau – Électricité – Télécom – Assainissement). – Surfaces encore disponibles de 547 à 816 m² adaptées à tous types de projets. – Libres de constructeur : concevez la maison qui vous ressemble. – Environnement résidentiel paisible et recherché. – Proximité immédiate : écoles, crèches, commerces, médecins, sport, services du quotidien. – Arrêt de bus des transports du Grand Albigeois à quelques pas. – Cheminements doux et espaces végétalisés préservant le cadre naturel. – Gestion des eaux pluviales intégrée (noues, jardins d’eau) pour un quartier durable. – Un cadre de vie privilégié Situé sur les hauteurs, le lotissement offre un environnement calme, sécurisé, entouré de verdure, avec des vues dégagées sur les coteaux et un accès rapide à la rocade d’Albi. Un secteur idéal pour familles, primo-accédants ou investisseurs à la recherche d’un emplacement stratégique en pleine expansion. Atouts techniques : – Règlement de lotissement garantissant une harmonie architecturale. – Possibilité d’implantation souple selon les lots. – Stationnements privatifs + places visiteurs en revêtement drainant. – Réseau complet : eau potable, assainissement, eaux pluviales maîtrisées, EDF, télécom. Pourquoi choisir Les Hauts d’Al Vigné ? Parce qu’il s’agit d’un programme premium, pensé pour allier qualité de vie, modernité et durabilité, au coeur d’une commune dynamique et très recherchée de l’agglomération albigeoise. Envie de connaître toutes les disponibilités ? Contactez-moi ! Honoraires à la charge du vendeurVotre agent commercial 3G IMMO sur place EI – Séverine TESSON inscrite au RSAC d’ALBI n° 452 369 895 Selon l’article L.561.5 du Code Monétaire et Financier, pour l’organisation de la visite, la présentation d’une pièce d’identité vous sera demandée.Les informations sur les risques auxquels ce bien est exposé sont disponibles sur le site Géorisques : www.georisques.gouv.frLes informations sur les risques auxquels ce bien est exposé sont disponibles sur le site Géorisques : www.georisques.gouv.fr
Puygouzon
TERRAINPUYGOUZON – LOTISSEMENT LES HAUTS D’AL VIGNÉ 41 terrains viabilisés – 455 à 811 m² – Libres de constructeur Découvrez un cadre de vie rare, calme et verdoyant, à seulement quelques minutes d’Albi, au sein du lotissement intimiste Les Hauts d’Al Vigné, idéalement situé Rue de Belbèze à Puygouzon (81990). Points forts du programme : – Terrains entièrement viabilisés (Eau – Électricité – Télécom – Assainissement). – Surfaces encore disponibles de 547 à 816 m² adaptées à tous types de projets. – Libres de constructeur : concevez la maison qui vous ressemble. – Environnement résidentiel paisible et recherché. – Proximité immédiate : écoles, crèches, commerces, médecins, sport, services du quotidien. – Arrêt de bus des transports du Grand Albigeois à quelques pas. – Cheminements doux et espaces végétalisés préservant le cadre naturel. – Gestion des eaux pluviales intégrée (noues, jardins d’eau) pour un quartier durable. – Un cadre de vie privilégié Situé sur les hauteurs, le lotissement offre un environnement calme, sécurisé, entouré de verdure, avec des vues dégagées sur les coteaux et un accès rapide à la rocade d’Albi. Un secteur idéal pour familles, primo-accédants ou investisseurs à la recherche d’un emplacement stratégique en pleine expansion. Atouts techniques : – Règlement de lotissement garantissant une harmonie architecturale. – Possibilité d’implantation souple selon les lots. – Stationnements privatifs + places visiteurs en revêtement drainant. – Réseau complet : eau potable, assainissement, eaux pluviales maîtrisées, EDF, télécom. Pourquoi choisir Les Hauts d’Al Vigné ? Parce qu’il s’agit d’un programme premium, pensé pour allier qualité de vie, modernité et durabilité, au coeur d’une commune dynamique et très recherchée de l’agglomération albigeoise. Envie de connaître toutes les disponibilités ? Contactez-moi ! Honoraires à la charge du vendeurVotre agent commercial 3G IMMO sur place EI – Séverine TESSON inscrite au RSAC d’ALBI n° 452 369 895 Selon l’article L.561.5 du Code Monétaire et Financier, pour l’organisation de la visite, la présentation d’une pièce d’identité vous sera demandée.Les informations sur les risques auxquels ce bien est exposé sont disponibles sur le site Géorisques : www.georisques.gouv.frLes informations sur les risques auxquels ce bien est exposé sont disponibles sur le site Géorisques : www.georisques.gouv.fr
Puygouzon
TERRAINPUYGOUZON – LOTISSEMENT LES HAUTS D’AL VIGNÉ 41 terrains viabilisés – 455 à 811 m² – Libres de constructeur Découvrez un cadre de vie rare, calme et verdoyant, à seulement quelques minutes d’Albi, au sein du lotissement intimiste Les Hauts d’Al Vigné, idéalement situé Rue de Belbèze à Puygouzon (81990). Points forts du programme : – Terrains entièrement viabilisés (Eau – Électricité – Télécom – Assainissement). – Surfaces encore disponibles de 547 à 816 m² adaptées à tous types de projets. – Libres de constructeur : concevez la maison qui vous ressemble. – Environnement résidentiel paisible et recherché. – Proximité immédiate : écoles, crèches, commerces, médecins, sport, services du quotidien. – Arrêt de bus des transports du Grand Albigeois à quelques pas. – Cheminements doux et espaces végétalisés préservant le cadre naturel. – Gestion des eaux pluviales intégrée (noues, jardins d’eau) pour un quartier durable. – Un cadre de vie privilégié Situé sur les hauteurs, le lotissement offre un environnement calme, sécurisé, entouré de verdure, avec des vues dégagées sur les coteaux et un accès rapide à la rocade d’Albi. Un secteur idéal pour familles, primo-accédants ou investisseurs à la recherche d’un emplacement stratégique en pleine expansion. Atouts techniques : – Règlement de lotissement garantissant une harmonie architecturale. – Possibilité d’implantation souple selon les lots. – Stationnements privatifs + places visiteurs en revêtement drainant. – Réseau complet : eau potable, assainissement, eaux pluviales maîtrisées, EDF, télécom. Pourquoi choisir Les Hauts d’Al Vigné ? Parce qu’il s’agit d’un programme premium, pensé pour allier qualité de vie, modernité et durabilité, au coeur d’une commune dynamique et très recherchée de l’agglomération albigeoise. Envie de connaître toutes les disponibilités ? Contactez-moi ! Honoraires à la charge du vendeurVotre agent commercial 3G IMMO sur place EI – Séverine TESSON inscrite au RSAC d’ALBI n° 452 369 895 Selon l’article L.561.5 du Code Monétaire et Financier, pour l’organisation de la visite, la présentation d’une pièce d’identité vous sera demandée.Les informations sur les risques auxquels ce bien est exposé sont disponibles sur le site Géorisques : www.georisques.gouv.frLes informations sur les risques auxquels ce bien est exposé sont disponibles sur le site Géorisques : www.georisques.gouv.fr
Puygouzon
TERRAINPUYGOUZON – LOTISSEMENT LES HAUTS D’AL VIGNÉ 41 terrains viabilisés – 455 à 811 m² – Libres de constructeur Découvrez un cadre de vie rare, calme et verdoyant, à seulement quelques minutes d’Albi, au sein du lotissement intimiste Les Hauts d’Al Vigné, idéalement situé Rue de Belbèze à Puygouzon (81990). Points forts du programme : – Terrains entièrement viabilisés (Eau – Électricité – Télécom – Assainissement). – Surfaces encore disponibles de 547 à 816 m² adaptées à tous types de projets. – Libres de constructeur : concevez la maison qui vous ressemble. – Environnement résidentiel paisible et recherché. – Proximité immédiate : écoles, crèches, commerces, médecins, sport, services du quotidien. – Arrêt de bus des transports du Grand Albigeois à quelques pas. – Cheminements doux et espaces végétalisés préservant le cadre naturel. – Gestion des eaux pluviales intégrée (noues, jardins d’eau) pour un quartier durable. – Un cadre de vie privilégié Situé sur les hauteurs, le lotissement offre un environnement calme, sécurisé, entouré de verdure, avec des vues dégagées sur les coteaux et un accès rapide à la rocade d’Albi. Un secteur idéal pour familles, primo-accédants ou investisseurs à la recherche d’un emplacement stratégique en pleine expansion. Atouts techniques : – Règlement de lotissement garantissant une harmonie architecturale. – Possibilité d’implantation souple selon les lots. – Stationnements privatifs + places visiteurs en revêtement drainant. – Réseau complet : eau potable, assainissement, eaux pluviales maîtrisées, EDF, télécom. Pourquoi choisir Les Hauts d’Al Vigné ? Parce qu’il s’agit d’un programme premium, pensé pour allier qualité de vie, modernité et durabilité, au coeur d’une commune dynamique et très recherchée de l’agglomération albigeoise. Envie de connaître toutes les disponibilités ? Contactez-moi ! Honoraires à la charge du vendeurVotre agent commercial 3G IMMO sur place EI – Séverine TESSON inscrite au RSAC d’ALBI n° 452 369 895 Selon l’article L.561.5 du Code Monétaire et Financier, pour l’organisation de la visite, la présentation d’une pièce d’identité vous sera demandée.Les informations sur les risques auxquels ce bien est exposé sont disponibles sur le site Géorisques : www.georisques.gouv.frLes informations sur les risques auxquels ce bien est exposé sont disponibles sur le site Géorisques : www.georisques.gouv.fr
Lescure-d'Albigeois
TERRAINTerrain naturel 3 192 m² en zone NS, pourvu d’une bambouseraie, à proximité du Tarn, Lescure-d’Albigeois.Au calme, en pleine nature, découvrez ce terrain plat de 3 192 m² classé zone NS, pourvu d’une bambouseraie et situé à proximité de la rivière du Tarn. Un havre de paix riche de possibilités d’évasion : calme, nature, randonnées, promenades, pêches. Avec accès proche à la mise à l’eau, idéal pour pêcheurs ou promenades en bateau.Lescure-d’Albigeois : terrain situé à proximité de la rivière du Tarn, avec accès proche à une mise à l’eau. Environnement préservé, sentiers de randonnée à portée de main et ambiance naturelle remarquable.Caractéristiques du terrain:Surface : 3 192 m², terrain plat et facilement exploitable.Végétation : pourvu d’une bambouseraie déjà implantée, milieux favorables à la biodiversité.Réseaux : compteur électrique à proximité.Accès : chemins de randonnée et accès piétonniers; mise à l’eau proche pour activités nautiques.Usages autorisés :Activité pastorale : pâturage pour chevaux, ânes ou moutons; clôtures mobiles ou naturelles; parcelles de repos ou de rotation.Activité maraîchère : cultures de légumes, fruits rouges, plantes aromatiques; permaculture ou agroforesterie; production de fleurs ou plantes médicinales.Micro-activités agricoles : apiculture (ruches mobiles); culture de bambous (existant); cueillette libre ou vente directe en bord de chemin (sans construction).Valorisation écologique et pédagogique : sentier botanique, poste d’observation de la faune, accueil de groupes scolaires ou randonneurs (sans hébergement).Atouts principaux :Cadre naturel exceptionnel et rare à proximité de la rivière.Surface plate facilitant l’exploitation et l’aménagement non bâti.Proximité des réseaux (électricité à proximité).Biodiversité riche et environnement préservé, parfait pour projets agricoles doux, pédagogiques ou de loisir nature.Havre de paix offrant de nombreuses possibilités d’évasion : calme, promenades, randonnées et activités de pêche.Points pratiquesUsage soumis au classement zone NS : activités compatibles listées ci-dessus; pas d’implantation de bâti permanent.Accès routier et chemins de randonnée existants.Mise à l’eau à proche, pratique pour pêche et promenades en rivière. Les informations sur les risques auxquels ce bien est exposé sont disponibles sur le site Géorisques : www.georisques.gouv.fr »
Cunac
TERRAIN ET MAISONVENTE d’une maison de 5 pièces (120 m²) à CunacMAISON 5 PIÈCES NEUVE – PROCHE D’ALBIÀ 8 km d’Albi, à vendre à Cunac (81990), nous vous proposons cette maison de 5 pièces de 120 m² sur 630 m² de terrain.Il s’agit d’une maison de 2 niveaux. Son intérieur offre quatre chambres, une cuisine et deux salles de bains. Cette maison est neuve.Elle est proposée à l’achat pour 311 000 €.N’hésitez pas à prendre contact avec votre agence maisons France Confort Albi au (Numéro supprimé) pour obtenir de plus amples renseignements sur la maison, sur les démarches à suivre ou sur les modalités de vente. Maisons France Confort Albi est là pour vous accompagner dans tous vos projets immobiliers.Annonce proposée par un Agent Commercial Partenaire.
Cunac
TERRAIN ET MAISONCunac : maison F4 (120 m²) à vendreMAISON 4 PIÈCES NEUVE – PROCHE D’ALBIÀ vendre : localisée à quelques kilomètres d’Albi, venez découvrir cette maison de 4 pièces de 120 m² sur 630 m² de terrain à Cunac (81990). Son intérieur compte trois chambres, une cuisine et deux salles de bains.C’est une maison de 2 niveaux. Elle est neuve.Elle est à vendre pour la somme de 310 000 €.N’hésitez pas à prendre contact avec votre agence Maisons France Confort Albi au (Numéro supprimé) pour toute information sur la maison ou sur les démarches à suivre. Concrétisez vos projets immobiliers avec Maisons France Confort Albi.Annonce proposée par un Agent Commercial Partenaire.
Cunac
TERRAINVENTE d’un terrain de 630 m² à CunacPROCHE D’ALBIÀ Cunac (81990) à 8 km d’Albi, imaginez la maison de vos rêves sur ce terrain de 630 m². Il y a une école primaire dans la commune. Son prix de vente est de 68 000 €. Contactez votre agence Maisons France Confort Albi au (Numéro supprimé) pour plus d’informations sur le terrain ou sur les modalités de vente. Maisons France Confort Albi vous accompagne à toutes les étapes de votre projet et dans tous vos projets immobiliers.Annonce proposée par un Agent Commercial Partenaire.
Cunac
TERRAIN ET MAISONCunac : maison de 6 pièces (110 m²) à vendrePROCHE D’ALBI – MAISON 6 PIÈCES NEUVEÀ vendre : localisée à 8 km d’Albi, Maisons France Confort Albi vous présente cette maison de 6 pièces de 110 m² à Cunac (81990). Son intérieur dispose de quatre chambres, d’une cuisine et de deux salles de bains.Le terrain de la maison s’étend sur 630 m².Cette maison possède 2 niveaux. Elle est neuve.Elle est à vendre pour la somme de 307 000 €.Contactez votre agence Maisons France Confort Albi au (Numéro supprimé) pour tout renseignement sur la maison, sur les démarches à suivre ou sur les modalités de vente. Maisons France Confort Albi est là pour vous accompagner dans tous vos projets immobiliers.Annonce proposée par un Agent Commercial Partenaire.
L’actualité immobilière à Bellegarde-Marsal
27/11/2023
02/11/2023
30/10/2023
20/10/2023
16/10/2023
16/10/2023