Maison à construire à Castelnau-de-Lévis (81150)
Images
Description
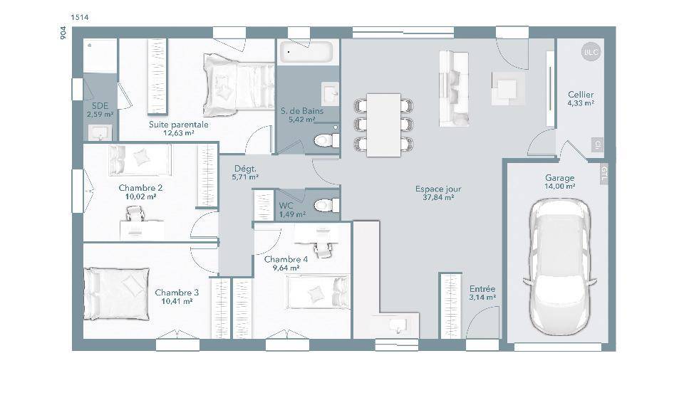
Maisons France Confort Albi, spécialiste de la construction traditionnelle et à ossature bois, vous propose le modèle Optima : une maison de plain-pied de 103 m² offrant 4 chambres et conçue pour allier luminosité, confort et optimisation des espaces.
Ce plan fonctionnel distingue parfaitement l'espace jour de l'espace nuit.
Côté jour : une belle pièce de vie de 37 m² regroupant cuisine, salon et salle à manger, ainsi qu'un garage relié à la maison par un cellier pratique.
Côté nuit : 3 ou 4 chambres avec placards intégrés selon vos besoins, dont une suite parentale avec salle d'eau privative.
Chaque volume a été pensé pour offrir un intérieur harmonieux et agréable à vivre, idéal pour accueillir votre futur cocon familial.
📞 N'attendez plus : contactez Maisons France Confort Albi au (Numéro supprimé) pour plus d'informations.
(Frais de notaire et frais annexes non inclus dans le prix indiqué.)
Annonce proposée par un Agent Commercial Partenaire.
Logement susceptibles de vous intéresser
Nous vous proposons de découvrir aussi cette sélection de logements situés à moins de 10km de Castelnau-de-Lévis et qui seraient susceptibles de vous intéresser.
Carlus
TERRAIN? CARLUS – LOTISSEMENT LES HAUTS DE SERRES Terrains viabilisés – 339 à 758 m² – Un cadre naturel rare, apaisant et préservé À Carlus, dans un environnement vallonné exceptionnel, découvrez Les Hauts de Serres, un lotissement intimiste de 18 parcelles viabilisées, pensées pour offrir un mode de vie plus doux, plus naturel, plus authentique. Dès l’arrivée sur le site, on ressent un calme profond, une lumière remarquable, et une sensation d’espace rare. Les vues sur le village, la campagne et les essences locales créent une atmosphère immédiatement inspirante : c’est l’endroit idéal pour bâtir une maison qui respire. Un programme conçu pour la qualité environnementale Bandes paysagères plantées d’essences locales sur plusieurs lots (1 à 6). Haies végétales obligatoires sur certains secteurs pour préserver l’harmonie visuelle (lots 6-7-13-14). Conservation de haies existantes en fond de parcelle sur les lots concernés. Gestion écologique des eaux pluviales, intégrée à la parcelle (infiltration naturelle, jardins d’eau). Intégration des constructions dans la topographie pour une implantation harmonieuse. Cet esprit environnemental se retrouve dans le ressenti sur place : aucune densité excessive, aucun bruit parasite, simplement un lieu où l’on respire, où l’on se projette, où l’on a envie de vivre. Commerces, services & équipements à proximité Carlus est un village vivant disposant : d’une salle multisport / gymnase communal à quelques minutes du lotissement, de services municipaux (mairie, équipements associatifs). À moins de 6 minutes en voiture : zones commerciales Le Séquestre et Albi, écoles, collèges et lycées, pôles médicaux et l’ensemble des services du quotidien. Vous profitez ainsi du calme de la campagne, sans être isolé, avec Albi et toutes ses infrastructures accessibles en quelques minutes. Chaque lot offre un fort potentiel : exposition idéale, intimité, vues dégagées, liberté de conception architecturale. Ce programme est parfaitement adapté aux familles recherchant un cadre sain, sécurisé et naturel, aux actifs souhaitant vivre à la campagne tout en restant proches d’Albi et aux investisseurs cherchant un secteur très prisé, à forte valorisation patrimoniale, Un site à découvrir absolument : ici, les terrains déclenchent le coup de coeur. Envie de connaître toutes les disponibilités ? Contactez-moi pour recevoir les plans, visiter le site et réserver votre parcelle.Honoraires à la charge du vendeurVotre agent commercial 3G IMMO sur place EI – Séverine TESSON inscrite au RSAC d’ALBI n° 452 369 895 Selon l’article L.561.5 du Code Monétaire et Financier, pour l’organisation de la visite, la présentation d’une pièce d’identité vous sera demandée.Les informations sur les risques auxquels ce bien est exposé sont disponibles sur le site Géorisques : www.georisques.gouv.frLes informations sur les risques auxquels ce bien est exposé sont disponibles sur le site Géorisques : www.georisques.gouv.fr
Carlus
TERRAIN? CARLUS – LOTISSEMENT LES HAUTS DE SERRES Terrains viabilisés – 339 à 758 m² – Un cadre naturel rare, apaisant et préservé À Carlus, dans un environnement vallonné exceptionnel, découvrez Les Hauts de Serres, un lotissement intimiste de 18 parcelles viabilisées, pensées pour offrir un mode de vie plus doux, plus naturel, plus authentique. Dès l’arrivée sur le site, on ressent un calme profond, une lumière remarquable, et une sensation d’espace rare. Les vues sur le village, la campagne et les essences locales créent une atmosphère immédiatement inspirante : c’est l’endroit idéal pour bâtir une maison qui respire. Un programme conçu pour la qualité environnementale Bandes paysagères plantées d’essences locales sur plusieurs lots (1 à 6). Haies végétales obligatoires sur certains secteurs pour préserver l’harmonie visuelle (lots 6-7-13-14). Conservation de haies existantes en fond de parcelle sur les lots concernés. Gestion écologique des eaux pluviales, intégrée à la parcelle (infiltration naturelle, jardins d’eau). Intégration des constructions dans la topographie pour une implantation harmonieuse. Cet esprit environnemental se retrouve dans le ressenti sur place : aucune densité excessive, aucun bruit parasite, simplement un lieu où l’on respire, où l’on se projette, où l’on a envie de vivre. Commerces, services & équipements à proximité Carlus est un village vivant disposant : d’une salle multisport / gymnase communal à quelques minutes du lotissement, de services municipaux (mairie, équipements associatifs). À moins de 6 minutes en voiture : zones commerciales Le Séquestre et Albi, écoles, collèges et lycées, pôles médicaux et l’ensemble des services du quotidien. Vous profitez ainsi du calme de la campagne, sans être isolé, avec Albi et toutes ses infrastructures accessibles en quelques minutes. Chaque lot offre un fort potentiel : exposition idéale, intimité, vues dégagées, liberté de conception architecturale. Ce programme est parfaitement adapté aux familles recherchant un cadre sain, sécurisé et naturel, aux actifs souhaitant vivre à la campagne tout en restant proches d’Albi et aux investisseurs cherchant un secteur très prisé, à forte valorisation patrimoniale, Un site à découvrir absolument : ici, les terrains déclenchent le coup de coeur. Envie de connaître toutes les disponibilités ? Contactez-moi pour recevoir les plans, visiter le site et réserver votre parcelle. Honoraires à la charge du vendeurVotre agent commercial 3G IMMO sur place EI – Séverine TESSON inscrite au RSAC d’ALBI n° 452 369 895 Selon l’article L.561.5 du Code Monétaire et Financier, pour l’organisation de la visite, la présentation d’une pièce d’identité vous sera demandée.Les informations sur les risques auxquels ce bien est exposé sont disponibles sur le site Géorisques : www.georisques.gouv.frLes informations sur les risques auxquels ce bien est exposé sont disponibles sur le site Géorisques : www.georisques.gouv.fr
Albi
TERRAINPour donner vie à votre projet de construction, OC-RESIDENCES, constructeur de maison sur mesure depuis 1983, vous propose de venir découvrir cette parcelle de 400 m2 entièrement viabilisée sur l’agréable commune d’ ALBI au prix de 50 000 €. Si vous souhaitez avoir plus d’informations, contactez notre agence d’ ALBI au (Numéro supprimé). »Terrain en accord avec notre partenaire foncier, sous réserve de disponibilité. Prix et visuels non contractuels. Projet conforme à la RE 2020″.
Lagrave
TERRAINSitué dans un environnement calme et recherché de la commune de Lagrave, ce terrain constructible de 426m² et viabilisée vous offre une belle opportunité pour réaliser votre projet de construction. À seulement quelques minutes de l’A68 (axe Albi-Toulouse), Proximité immédiate des commerces, écoles, et commodités du centre-ville dans un cadre résidentiel agréable, en lotissement ou zone pavillonnaire Ce terrain est parfait pour accueillir une maison individuelle avec jardin, dans un cadre de vie paisible tout en restant connecté aux grands axes et aux services.
Lagrave
TERRAIN ET MAISONCe modèle Emma est une maison de plain-pied de 80 m² à l’architecture contemporaine et épurée. Elle s’articule autour de deux chambres avec placard, d’une salle de bain et d’un WC séparé. La pièce de vie est fonctionnelle avec une cuisine ouverte sur le séjour de plus de 48m².Situé sur la commune de LAGRAVE, secteur recherché proche des commodités
Carlus
TERRAIN? CARLUS – LOTISSEMENT LES HAUTS DE SERRES Terrains viabilisés – 339 à 758 m² – Un cadre naturel rare, apaisant et préservé À Carlus, dans un environnement vallonné exceptionnel, découvrez Les Hauts de Serres, un lotissement intimiste de 18 parcelles viabilisées, pensées pour offrir un mode de vie plus doux, plus naturel, plus authentique. Dès l’arrivée sur le site, on ressent un calme profond, une lumière remarquable, et une sensation d’espace rare. Les vues sur le village, la campagne et les essences locales créent une atmosphère immédiatement inspirante : c’est l’endroit idéal pour bâtir une maison qui respire. Un programme conçu pour la qualité environnementale Bandes paysagères plantées d’essences locales sur plusieurs lots (1 à 6). Haies végétales obligatoires sur certains secteurs pour préserver l’harmonie visuelle (lots 6-7-13-14). Conservation de haies existantes en fond de parcelle sur les lots concernés. Gestion écologique des eaux pluviales, intégrée à la parcelle (infiltration naturelle, jardins d’eau). Intégration des constructions dans la topographie pour une implantation harmonieuse. Cet esprit environnemental se retrouve dans le ressenti sur place : aucune densité excessive, aucun bruit parasite, simplement un lieu où l’on respire, où l’on se projette, où l’on a envie de vivre. Commerces, services & équipements à proximité Carlus est un village vivant disposant : d’une salle multisport / gymnase communal à quelques minutes du lotissement, de services municipaux (mairie, équipements associatifs). À moins de 6 minutes en voiture : zones commerciales Le Séquestre et Albi, écoles, collèges et lycées, pôles médicaux et l’ensemble des services du quotidien. Vous profitez ainsi du calme de la campagne, sans être isolé, avec Albi et toutes ses infrastructures accessibles en quelques minutes. Chaque lot offre un fort potentiel : exposition idéale, intimité, vues dégagées, liberté de conception architecturale. Ce programme est parfaitement adapté aux familles recherchant un cadre sain, sécurisé et naturel, aux actifs souhaitant vivre à la campagne tout en restant proches d’Albi et aux investisseurs cherchant un secteur très prisé, à forte valorisation patrimoniale, Un site à découvrir absolument : ici, les terrains déclenchent le coup de coeur. Envie de connaître toutes les disponibilités ? Contactez-moi pour recevoir les plans, visiter le site et réserver votre parcelle. Honoraires à la charge du vendeurVotre agent commercial 3G IMMO sur place EI – Séverine TESSON inscrite au RSAC d’ALBI n° 452 369 895 Selon l’article L.561.5 du Code Monétaire et Financier, pour l’organisation de la visite, la présentation d’une pièce d’identité vous sera demandée.Les informations sur les risques auxquels ce bien est exposé sont disponibles sur le site Géorisques : www.georisques.gouv.frLes informations sur les risques auxquels ce bien est exposé sont disponibles sur le site Géorisques : www.georisques.gouv.fr
Carlus
TERRAIN? CARLUS – LOTISSEMENT LES HAUTS DE SERRES Terrains viabilisés – 339 à 758 m² – Un cadre naturel rare, apaisant et préservé À Carlus, dans un environnement vallonné exceptionnel, découvrez Les Hauts de Serres, un lotissement intimiste de 18 parcelles viabilisées, pensées pour offrir un mode de vie plus doux, plus naturel, plus authentique. Dès l’arrivée sur le site, on ressent un calme profond, une lumière remarquable, et une sensation d’espace rare. Les vues sur le village, la campagne et les essences locales créent une atmosphère immédiatement inspirante : c’est l’endroit idéal pour bâtir une maison qui respire. Un programme conçu pour la qualité environnementale Bandes paysagères plantées d’essences locales sur plusieurs lots (1 à 6). Haies végétales obligatoires sur certains secteurs pour préserver l’harmonie visuelle (lots 6-7-13-14). Conservation de haies existantes en fond de parcelle sur les lots concernés. Gestion écologique des eaux pluviales, intégrée à la parcelle (infiltration naturelle, jardins d’eau). Intégration des constructions dans la topographie pour une implantation harmonieuse. Cet esprit environnemental se retrouve dans le ressenti sur place : aucune densité excessive, aucun bruit parasite, simplement un lieu où l’on respire, où l’on se projette, où l’on a envie de vivre. Commerces, services & équipements à proximité Carlus est un village vivant disposant : d’une salle multisport / gymnase communal à quelques minutes du lotissement, de services municipaux (mairie, équipements associatifs). À moins de 6 minutes en voiture : zones commerciales Le Séquestre et Albi, écoles, collèges et lycées, pôles médicaux et l’ensemble des services du quotidien. Vous profitez ainsi du calme de la campagne, sans être isolé, avec Albi et toutes ses infrastructures accessibles en quelques minutes. Chaque lot offre un fort potentiel : exposition idéale, intimité, vues dégagées, liberté de conception architecturale. Ce programme est parfaitement adapté aux familles recherchant un cadre sain, sécurisé et naturel, aux actifs souhaitant vivre à la campagne tout en restant proches d’Albi et aux investisseurs cherchant un secteur très prisé, à forte valorisation patrimoniale, Un site à découvrir absolument : ici, les terrains déclenchent le coup de coeur. Envie de connaître toutes les disponibilités ? Contactez-moi pour recevoir les plans, visiter le site et réserver votre parcelle. Honoraires à la charge du vendeurVotre agent commercial 3G IMMO sur place EI – Séverine TESSON inscrite au RSAC d’ALBI n° 452 369 895 Selon l’article L.561.5 du Code Monétaire et Financier, pour l’organisation de la visite, la présentation d’une pièce d’identité vous sera demandée.Les informations sur les risques auxquels ce bien est exposé sont disponibles sur le site Géorisques : www.georisques.gouv.frLes informations sur les risques auxquels ce bien est exposé sont disponibles sur le site Géorisques : www.georisques.gouv.fr
Albi
TERRAINPour donner vie à votre projet de construction, OC-RESIDENCES, constructeur de maison sur mesure depuis 1983, vous propose de venir découvrir cette parcelle de 350 m2 entièrement viabilisée, à ALBI au prix de 44000 €. Si vous souhaitez avoir plus d’informations, contactez notre agence d’ ALBI au (Numéro supprimé). »Terrain en accord avec notre partenaire foncier, sous réserve de disponibilité. Prix et visuels non contractuels. Projet conforme à la RE 2020″.
Carlus
TERRAIN? CARLUS – LOTISSEMENT LES HAUTS DE SERRES Terrains viabilisés – 339 à 758 m² – Un cadre naturel rare, apaisant et préservé À Carlus, dans un environnement vallonné exceptionnel, découvrez Les Hauts de Serres, un lotissement intimiste de 18 parcelles viabilisées, pensées pour offrir un mode de vie plus doux, plus naturel, plus authentique. Dès l’arrivée sur le site, on ressent un calme profond, une lumière remarquable, et une sensation d’espace rare. Les vues sur le village, la campagne et les essences locales créent une atmosphère immédiatement inspirante : c’est l’endroit idéal pour bâtir une maison qui respire. Un programme conçu pour la qualité environnementale Bandes paysagères plantées d’essences locales sur plusieurs lots (1 à 6). Haies végétales obligatoires sur certains secteurs pour préserver l’harmonie visuelle (lots 6-7-13-14). Conservation de haies existantes en fond de parcelle sur les lots concernés. Gestion écologique des eaux pluviales, intégrée à la parcelle (infiltration naturelle, jardins d’eau). Intégration des constructions dans la topographie pour une implantation harmonieuse. Cet esprit environnemental se retrouve dans le ressenti sur place : aucune densité excessive, aucun bruit parasite, simplement un lieu où l’on respire, où l’on se projette, où l’on a envie de vivre. Commerces, services & équipements à proximité Carlus est un village vivant disposant : d’une salle multisport / gymnase communal à quelques minutes du lotissement, de services municipaux (mairie, équipements associatifs). À moins de 6 minutes en voiture : zones commerciales Le Séquestre et Albi, écoles, collèges et lycées, pôles médicaux et l’ensemble des services du quotidien. Vous profitez ainsi du calme de la campagne, sans être isolé, avec Albi et toutes ses infrastructures accessibles en quelques minutes. Chaque lot offre un fort potentiel : exposition idéale, intimité, vues dégagées, liberté de conception architecturale. Ce programme est parfaitement adapté aux familles recherchant un cadre sain, sécurisé et naturel, aux actifs souhaitant vivre à la campagne tout en restant proches d’Albi et aux investisseurs cherchant un secteur très prisé, à forte valorisation patrimoniale, Un site à découvrir absolument : ici, les terrains déclenchent le coup de coeur. Envie de connaître toutes les disponibilités ? Contactez-moi pour recevoir les plans, visiter le site et réserver votre parcelle. Honoraires à la charge du vendeurVotre agent commercial 3G IMMO sur place EI – Séverine TESSON inscrite au RSAC d’ALBI n° 452 369 895 Selon l’article L.561.5 du Code Monétaire et Financier, pour l’organisation de la visite, la présentation d’une pièce d’identité vous sera demandée.Les informations sur les risques auxquels ce bien est exposé sont disponibles sur le site Géorisques : www.georisques.gouv.frLes informations sur les risques auxquels ce bien est exposé sont disponibles sur le site Géorisques : www.georisques.gouv.fr
L’actualité immobilière à Castelnau-de-Lévis
27/11/2023
02/11/2023
30/10/2023
20/10/2023
16/10/2023
16/10/2023