Maison à construire à Garrigues (81500)
Images
Description
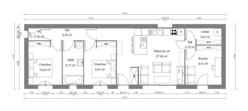
L'agence Maisons France Confort d'AUCAMVILLE vous présente ce nouveau projet terrain + maison à 2 minutes de GARRIGUES . ACTUA 73 est un modèle de maison traditionnelle économe et entièrement personnalisable. Elle se compose d'une entrée, un séjour/cuisine de 30m², un cellier, un WC et un espace nuit composé de 3 chambres et une salle de bains. Le garage de 15m² est accolé en option à la maison et accessible par la cuisine.
Au coeur de la campagne toulousaine, sur une parcelle constructible de 300 m², vous profiterez des toutes les commodités à seulement 5 minutes. Vous pourrez accéder à Toulouse en 20 minutes.
Votre conseiller de l'agence Maisons France Confort d'AUCAMVILLE est à votre disposition au (Numéro supprimé) .
PRIX : 196 087 € HF
Annonce proposée par un Agent Commercial Partenaire.
Logement susceptibles de vous intéresser
Nous vous proposons de découvrir aussi cette sélection de logements situés à moins de 10km de Garrigues et qui seraient susceptibles de vous intéresser.
Montastruc-la-Conseillère
TERRAINLot numéro 12 – Surface 661m² – SDP 200m² – À environ 20 km au nord-est de Toulouse, Montastruc-la-Conseillère bénéficie d’une situation privilégiée à l’entrée du pôle économique de l’Est toulousain, avec un accès direct par l’A68.La commune se distingue par son cadre de vie dynamique et accueillant, avec une offre complète de services : établissements scolaires, équipements culturels et sportifs, nombreux commerces, et un tissu associatif particulièrement actif qui renforce le lien social.C’est à proximité du centre du village, chemin des Birats, que s’implante La Plaine. Une opération composée de 13 terrains à bâtir plats avec vue sur le centre. Dans un environnement résidentiel calme, ce lotissement offre un cadre propice à la construction d’un projet familial, alliant confort, praticité et qualité de vie.Vivre à Montastruc-la-Conseillère, c’est choisir la sérénité à deux pas de Toulouse.PA 03135824A0002 du 06/06/2024 consultable en mairie de Montastruc-la-Conseillère
Saint-Jean-de-Rives
TERRAIN? Terrain Constructible de plus de 1 000 m² au Coeur de Saint-Jean de Rives – Emplacement Idéal pour Votre Projet de Vie ! ? Vous rêvez de construire votre maison dans un cadre paisible et accessible ? Découvrez ce magnifique terrain plat de 1 000 m², niché au centre du charmant village de Saint-Jean de Rives – un cadre de vie privilégié entre nature et commodités. ? Points Forts : ? Emplacement central : à deux pas des écoles, commerces et services du village. ? Situation stratégique : à seulement 7 min de l’autoroute et de la gare SNCF – parfait pour les actifs ! ? Environnement préservé : calme, verdoyant et sans vis-à-vis. ? Terrain à viabiliser : facilement aménageable, idéal pour une construction personnalisée. ?? Libre choix du constructeur : donnez libre cours à vos envies, sans contrainte d’entreprise. Ce terrain est une opportunité rare sur le secteur – parfaite pour une résidence principale ou un projet patrimonial. ? Contactez-moi dès aujourd’hui pour organiser une visite et imaginer votre futur chez-vous à Saint-Jean de Rives !Honoraires à la charge du vendeurVotre agent commercial 3G IMMO sur place EI – Alexandre MIGINIAC inscrit au RSAC d’ALBI n° 528 155 880 Selon l’article L.561.5 du Code Monétaire et Financier, pour l’organisation de la visite, la présentation d’une pièce d’identité vous sera demandée.Les informations sur les risques auxquels ce bien est exposé sont disponibles sur le site Géorisques : www.georisques.gouv.frLes informations sur les risques auxquels ce bien est exposé sont disponibles sur le site Géorisques : www.georisques.gouv.fr
Saint-Jean-Lherm
TERRAINVotre agence Maisons France Confort d’Aucamville vous propose ce magnifique terrain de 934 m² sur la commune de Saint-Jean-Lherm.Vous apprécierez la vue exceptionnelle sur ce terrain plat, entièrement viabilisé.Confiez-nous votre projet de vie, nous serons honorés de le réaliser en toute sérénité.Pour toute information, contactez l’agence MAISONS FRANCE CONFORT d’Aucamville au (Numéro supprimé).Annonce proposée par un Agent Commercial Partenaire.
Saint-Jean-Lherm
TERRAIN ET MAISONVENTE : Maison F4 (120 m²) à Saint-Jean-LhermIdéalement située – Maison 4 pièces neuveÀ vendre : à deux pas de Toulouse, nous sommes ravis de vous présenter cette maison de 4 pièces de 120 m², idéalement située dans Saint-Jean-Lherm (31380). Elle se compose de trois chambres, une cuisine et deux salles de bains.Le terrain de la propriété s’étend sur 934 m².C’est une maison de 2 niveaux. Elle est neuve et se situe dans un quartier prisé.Vous trouverez tous les types d’écoles (maternelle, élémentaire et secondaire) à moins de 10 minutes en voiture, ainsi que cinq crèches à moins de 10 minutes à pied. Côté transports, cinq gares sont accessibles en moins de 10 minutes en voiture et les autoroutes A68 et A680 à moins de 4 km. Les commerces, boulangeries et supermarchés sont également à proximité. Enfin, le marché Allées Jaurès a lieu chaque mardi matin.Cette maison est proposée à l’achat pour 374 000 €.Pour obtenir de plus amples informations sur cette propriété, contactez l’agence Maisons France Confort d’Aucamville au (Numéro supprimé). Maisons France Confort Aucamville vous accompagne à toutes les étapes de l’achat et dans toutes vos démarches.Annonce proposée par un Agent Commercial Partenaire.
Saint-Jean-Lherm
TERRAIN ET MAISONVotre agence Maisons France Confort d’Aucamville vous propose ce beau projet maison + terrain situé sur la commune de Saint-Jean-Lherm.Vous souhaitez faire construire une maison de plain-pied, ouverte sur la lumière extérieure et le jardin ? Optez pour notre plan Performa 112 ! Ce modèle se répartit en deux ailes : la première accueille les pièces de vie avec une entrée et un espace ouvert pour le salon, la cuisine et la salle à manger ; la seconde regroupe les pièces de nuit avec 3 chambres, une salle de bains et une suite parentale en option avec dressing et salle d’eau.Ce modèle de maison est également apprécié pour sa fonctionnalité : il dispose d’un garage en option ouvrant sur un cellier donnant dans la cuisine, et chaque pièce possède ses rangements.Prix : 297 000 € hors fraisPour toute information, contactez l’agence MAISONS FRANCE CONFORT d’Aucamville au (Numéro supprimé).Annonce proposée par un Agent Commercial Partenaire.
Saint-Jean-Lherm
TERRAIN ET MAISONSaint-Jean-Lherm : Maison F5 (120 m²) en venteIdéalement située – Maison 5 pièces neuveEn vente : à deux pas de Toulouse, nous sommes heureux de vous présenter cette maison de 5 pièces de plain-pied de 120 m² sur un terrain de 934 m², idéalement située dans Saint-Jean-Lherm (31380).Elle se compose de quatre chambres, d’une cuisine et de deux salles de bains. Cette maison est neuve.Elle se situe dans un secteur prisé. Vous trouverez des écoles, de la maternelle au lycée, à moins de 5 minutes en voiture. Côté transports en commun, une gare est accessible en moins de 5 minutes. Les autoroutes A68 et A680 sont à moins de 4 km. Les commerces, boulangeries et supermarchés se trouvent également à proximité. Enfin, le marché Allées Jaurès anime le quartier tous les mardis matin.Cette maison est proposée à l’achat pour 336 000 €.Pour obtenir de plus amples informations sur la maison, les modalités de vente ou les démarches à suivre, contactez l’agence MAISONS FRANCE CONFORT d’Aucamville au (Numéro supprimé). Maisons France Confort Aucamville vous accompagne à toutes les étapes de l’achat et dans tous vos projets immobiliers.Annonce proposée par un Agent Commercial Partenaire.
Saint-Jean-Lherm
TERRAIN ET MAISONMaison F6 (110 m²) en vente à Saint-Jean-LhermIdéalement située – Maison 6 pièces neuveEn vente : à 19 km de Toulouse, votre agence Maisons France Confort Aucamville est heureuse de vous présenter cette maison de 6 pièces de 110 m², idéalement située dans Saint-Jean-Lherm (31380). Son intérieur se compose de quatre chambres, une cuisine et deux salles de bains.Le terrain de la propriété s’étend sur 934 m².Il s’agit d’une maison de 2 niveaux. Elle est neuve et se situe dans un quartier attractif. Des écoles de tous niveaux sont implantées à moins de 5 minutes en voiture. Côté transports, une gare est accessible à moins de 10 minutes en voiture. Les autoroutes A68 et A680 sont à moins de 4 km. Les commerces, boulangeries et supermarchés se trouvent également à proximité. Enfin, le marché Allées Jaurès a lieu chaque mardi matin.Cette maison est proposée à l’achat pour 357 000 €.Pour toute question sur la maison ou sur les démarches à suivre, contactez l’agence MAISONS FRANCE CONFORT d’Aucamville au (Numéro supprimé).Annonce proposée par un Agent Commercial Partenaire.
Saint-Jean-Lherm
TERRAIN ET MAISONSaint-Jean-Lherm : Maison de 5 pièces (120 m²) en venteIdéalement située – Maison 5 pièces neuveÀ 19 km de Toulouse, nous sommes ravis de vous proposer cette maison de 5 pièces de 120 m², idéalement située dans Saint-Jean-Lherm (31380). Son intérieur comprend quatre chambres, une cuisine et deux salles de bains.Le terrain de la propriété mesure 934 m².Il s’agit d’une maison de 2 niveaux, neuve et située dans un secteur convoité. Tous les types d’écoles (maternelle, élémentaire et secondaire) se trouvent à moins de 5 minutes en voiture. Côté transports en commun, une gare est accessible à moins de 10 minutes. Les autoroutes A68 et A680 sont à moins de 4 km. Commerces, boulangeries, supermarchés, boucheries-charcuteries et bureaux de poste sont également à proximité. Enfin, le marché Allées Jaurès a lieu tous les mardis matin.Cette maison est proposée à l’achat pour 343 000 €.Pour obtenir de plus amples informations sur la maison, contactez notre agence MAISONS FRANCE CONFORT d’Aucamville au (Numéro supprimé). Concrétisez vos projets immobiliers avec Maisons France Confort Aucamville.Annonce proposée par un Agent Commercial Partenaire.
Saint-Jean-Lherm
TERRAIN ET MAISONVotre agence Maisons France Confort d’Aucamville vous propose ce beau projet maison + terrain à Saint-Jean-Lherm, au nord de la commune de Gragnague.Venez découvrir ce plain-pied à l’architecture sobre et élégante. Cette maison est conçue de manière ingénieuse, fonctionnelle et adaptable. Les volumes sont optimisés pour que chaque membre de la famille puisse disposer de son propre espace.Les points forts de ce modèle Optima de 103 m² sont les zones jour et nuit séparées, une suite parentale avec salle d’eau privative en option, une salle de bains supplémentaire, des WC séparés, un cellier prévu au niveau de l’arrière-cuisine avec accès direct au garage et de nombreux espaces de rangement prévus.Prix : 286 000 € hors fraisPour toute information, contactez l’agence MAISONS FRANCE CONFORT d’Aucamville au (Numéro supprimé).Annonce proposée par un Agent Commercial Partenaire.
L’actualité immobilière à Garrigues
27/11/2023
02/11/2023
30/10/2023
20/10/2023
16/10/2023
16/10/2023