Maison à construire à Graulhet (81300)
Images
Description
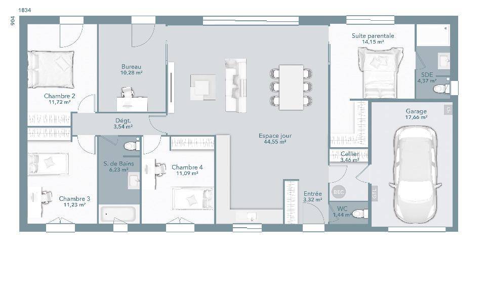
Modèle Optima Plain-pied 125 m²
Confort familial optimisé Luminosité Ergonomie
Maisons France Confort Albi, spécialiste de la construction traditionnelle et à ossature bois, vous présente le modèle Optima, un plain-pied de 125 m² pensé pour la vie de famille : fonctionnalité, circulation fluide et luminosité au coeur du projet.
Un plan réfléchi pour le quotidien
Pièce de vie centrale : un vaste séjour traversant, lumineux et convivial, conçu pour accueillir salon, salle à manger et cuisine ouverte. Les larges ouvertures favorisent la continuité intérieur / extérieur et créent un espace de vie agréable toute l'année.
Espace enfants / jour : trois chambres dédiées aux enfants (ou invités) et un bureau agencés pour préserver calme et intimité tout en restant proches de la pièce de vie.
Espace parents / nuit : suite parentale privative avec salle d'eau et dressing, offrant un véritable cocon intime et fonctionnel.
Praticité : cellier attenant au garage avec accès direct à la cuisine, pour faciliter les allers-retours, le rangement des courses et les usages quotidiens.
Atouts fonctionnels
Séparation claire jour / nuit pour un confort acoustique et une meilleure organisation des circulation.
Nombreux rangements possibles : placards intégrés, cellier, garage tout est prévu pour une maison ordonnée et facile à vivre.
Plain-pied : accessibilité, sécurité et confort pour toutes les étapes de la vie (jeunesse, famille, seniors).
Confort, performances et personnalisation
Conception compatible avec des solutions techniques modernes : isolation performante, systèmes de chauffage performants, et options éco-responsables (pompe à chaleur, panneaux solaires, etc.).
Plans modulables : possibilité d'adapter l'organisation intérieure, les finitions et les prestations (cuisine sur mesure, extension de garage, pergola, pose de volets roulants motorisés, etc.) selon vos besoins et votre budget.
Pourquoi choisir l'Optima ?
Vous recherchez un plain-pied spacieux alliant
Logement susceptibles de vous intéresser
Nous vous proposons de découvrir aussi cette sélection de logements situés à moins de 10km de Graulhet et qui seraient susceptibles de vous intéresser.
Graulhet
TERRAINMagnifique terrain à vendre – 3 979 m² sur les hauteurs de GraulhetMaisons France Confort Albi, constructeur reconnu de maisons traditionnelles et à ossature bois, vous propose ce superbe terrain individuel de 3 979 m², idéalement situé sur les hauteurs de Graulhet, dans un quartier résidentiel calme et très recherché.Ce terrain plat et arboré, entouré de belles habitations, offre un cadre de vie paisible et verdoyant, parfait pour les amoureux de nature souhaitant bénéficier d’un grand espace, ou pour un projet d’investissement de qualité.Le terrain est non viabilisé, mais les raccordements (eau, électricité, tout-à-l’égout, télécom) sont en bordure de parcelle, permettant ainsi de limiter les coûts d’aménagement.Ne laissez pas passer cette opportunité rare de construire votre future maison dans un environnement privilégié !📞 Pour tout renseignement complémentaire, contactez Maisons France Confort Albi au (Numéro supprimé).Annonce proposée par un Agent Commercial Partenaire.
Graulhet
TERRAIN ET MAISONModèle Actua Plain-pied 105 m²Design moderne Agencement optimisé Idéal familleMaisons France Confort Albi, constructeur de maisons traditionnelles et à ossature bois, vous présente le modèle Actua, un plain-pied moderne de 105 m² conçu pour allier esthétique contemporaine, confort et fonctionnalité.Un intérieur pensé pour la vie quotidienneEntrée fonctionnelle : placard intégré dès l’entrée, pour un rangement pratique et un accueil ordonné.Pièce de vie généreuse : espace ouvert de plus de 40 m² réunissant cuisine, salle à manger et salon. La disposition favorise la circulation et la luminosité traversante, créant un lieu de vie chaleureux et convivial.Espace nuit optimisé : trois chambres équipées de placards et une suite parentale avec rangements et salle d’eau privative une configuration confortable pour toute la famille.Fonctions annexes utiles : cellier attenant à la cuisine et garage, pour un quotidien facilité (rangement, courses, stationnement).Les + du modèle ActuaAgencement réfléchi : séparation claire des espaces jour / nuit pour le calme et l’intimité.Luminosité naturelle : grandes ouvertures favorisant une ambiance claire et agréable tout au long de l’année.Confort modulable : possibilités d’adapter les finitions, les équipements et certaines options (aménagements de rangements supplémentaires, choix de menuiseries, pergola, etc.).Accessibilité et plain-pied : usage simple au quotidien, adapté à toutes les étapes de la vie.Performance et personnalisationLe modèle Actua peut être conçu avec des solutions techniques modernes (isolation renforcée, système de chauffage performant, options à faible empreinte énergétique) et des finitions personnalisées pour répondre à vos priorités performance, budget, design ou confort.📞 Pour en savoir plus et étudier votre projet : Maisons France Confort Albi (Numéro supprimé)📝 Nous vous accompagnons de la recherche du terrain jusqu’à la livraison (conseils techniques, perso
Graulhet
TERRAIN ET MAISONModèle Optima 90 – Maison de plain-pied moderne et fonctionnelleMaisons France Confort Albi, constructeur de maisons traditionnelles et à ossature bois, vous présente le modèle Optima 90 : une maison de plain-pied qui conjugue confort, optimisation des espaces et design contemporain.Avec ses 90 m² intelligemment agencés, cette maison offre :une spacieuse pièce de vie de 41 m², lumineuse et conviviale, parfaite pour accueillir famille et amis,un cellier pratique,deux chambres confortables,une salle de bains familiale,et une suite parentale avec dressing et salle d’eau privative, pour un espace intime et fonctionnel.Un garage intégré complète l’ensemble, dans une architecture épurée et moderne qui séduira les amateurs de lignes sobres et actuelles.👉 Un véritable coup de coeur !N’attendez plus pour découvrir le modèle Optima 90 et contactez dès aujourd’hui Maisons France Confort Albi au (Numéro supprimé) pour plus d’informations.ℹ️ À noter : les frais de notaire et frais annexes ne sont pas inclus dans le prix indiqué.Annonce proposée par un Agent Commercial Partenaire.
Graulhet
TERRAIN ET MAISONModèle Optima Plain-pied 125 m²Confort familial optimisé Luminosité ErgonomieMaisons France Confort Albi, spécialiste de la construction traditionnelle et à ossature bois, vous présente le modèle Optima, un plain-pied de 125 m² pensé pour la vie de famille : fonctionnalité, circulation fluide et luminosité au coeur du projet.Un plan réfléchi pour le quotidienPièce de vie centrale : un vaste séjour traversant, lumineux et convivial, conçu pour accueillir salon, salle à manger et cuisine ouverte. Les larges ouvertures favorisent la continuité intérieur / extérieur et créent un espace de vie agréable toute l’année.Espace enfants / jour : trois chambres dédiées aux enfants (ou invités) et un bureau agencés pour préserver calme et intimité tout en restant proches de la pièce de vie.Espace parents / nuit : suite parentale privative avec salle d’eau et dressing, offrant un véritable cocon intime et fonctionnel.Praticité : cellier attenant au garage avec accès direct à la cuisine, pour faciliter les allers-retours, le rangement des courses et les usages quotidiens.Atouts fonctionnelsSéparation claire jour / nuit pour un confort acoustique et une meilleure organisation des circulation.Nombreux rangements possibles : placards intégrés, cellier, garage tout est prévu pour une maison ordonnée et facile à vivre.Plain-pied : accessibilité, sécurité et confort pour toutes les étapes de la vie (jeunesse, famille, seniors).Confort, performances et personnalisationConception compatible avec des solutions techniques modernes : isolation performante, systèmes de chauffage performants, et options éco-responsables (pompe à chaleur, panneaux solaires, etc.).Plans modulables : possibilité d’adapter l’organisation intérieure, les finitions et les prestations (cuisine sur mesure, extension de garage, pergola, pose de volets roulants motorisés, etc.) selon vos besoins et votre budget.Pourquoi choisir l’Optima ?Vous recherchez un plain-pied spacieux alliant
Graulhet
TERRAIN ET MAISON🏡 Modèle Natura – Maison de plain-pied de 110 m² au design en L contemporainMaisons France Confort Albi, constructeur reconnu pour son savoir-faire en maisons traditionnelles et à ossature bois, vous présente le modèle Natura : une maison de plain-pied contemporaine de 110 m², au design en L à la fois élégant et fonctionnel.Pensée pour offrir confort, esthétisme et praticité, la Natura séduit par sa distribution fluide et son équilibre parfait entre les espaces jour et nuit.✨ Un espace de vie convivial et lumineuxDès l’entrée, laissez-vous séduire par une vaste pièce de vie de 43 m², réunissant salon, salle à manger et cuisine ouverte dans une atmosphère chaleureuse et moderne.Les deux grandes baies vitrées positionnées en façades opposées offrent une luminosité traversante exceptionnelle, créant une connexion naturelle avec le jardin et une sensation d’espace renforcée.🌙 Un espace nuit conçu pour le bien-êtreL’espace nuit, parfaitement indépendant, abrite une suite parentale avec dressing intégré et salle d’eau privative, garantissant intimité et confort.Un couloir fonctionnel dessert également trois chambres supplémentaires, idéales pour les enfants, les invités ou un bureau, ainsi qu’une grande salle de bains familiale, alliant élégance et praticité.🚗 Des espaces pensés pour le quotidienUn garage intégré de 15 m², accessible directement depuis l’intérieur, vient compléter ce plan harmonieux. Il offre un espace de rangement pratique et sécurisant, idéal pour le confort au quotidien.💡 Les atouts du modèle NaturaArchitecture contemporaine en L, alliant esthétique et intimitéPièce de vie traversante de 43 m², ouverte sur le jardinSuite parentale indépendante avec dressing et salle d’eau privativeGarage intégré et nombreux espaces de rangementMaison fonctionnelle, élégante et évolutive, adaptée à tous les styles de vie❤️ L’esprit NaturaLe modèle Natura est idéal pour les familles à l
Graulhet
TERRAIN ET MAISONModèle Lumi Maison ossature bois, plain-pied 113 m²Maisons France Confort Albi vous présente le modèle Lumi, une maison plain-pied en ossature bois de 113 m² alliant volumes généreux, luminosité et agencement réfléchi idéale pour une vie de famille moderne, confortable et économe en énergie.Espace jour convivialité et lumièrePièce de vie : 45 m²Vaste espace traversant favorisant la circulation et la luminosité naturelle. Cuisine ouverte possible, circulation fluide entre les zones salon, salle à manger et accès direct au cellier/groupe service.Espace nuit confort et intimitéSuite parentale : 18 m²Suite généreuse avec dressing, salle d’eau privative (douche + vasque) et WC intégré un espace intime et fonctionnel.3 chambres supplémentaires : surfaces comprises entre 10,60 m² et 12,12 m², toutes faciles à aménager.Salle de bains (familiale) et WC indépendant pour plus de confort au quotidien.Annexes et rangementCellier : 6,80 m², accessible depuis la pièce de vie et communicant avec le garage pratique pour les courses et le stockage.Garage intégré : 15 m², attenant, offrant stationnement et rangement supplémentaire.Points forts du modèle LumiConception ossature bois : performance thermique, confort intérieur et esthétique contemporaine.Plain-pied : accessibilité, simplicité d’usage et confort pour tous les âges.Volumes généreux et nombreux rangements pour une maison facile à vivre.Possibilités de personnalisation : choix des finitions, implantation des baies vitrées, options énergie (isolation renforcée, pompe à chaleur, panneaux solaires), aménagements extérieurs (pergola, terrasse, terrassement)…Pour qui ?Ce modèle convient aux familles souhaitant vivre sur un seul niveau sans sacrifier l’espace ni le confort : suite parentale, chambres bien dimensionnées, cellier pratique et garage intégré.📞 Pour une étude personnalisée de votre projet et un chiffrage :Maisons France Confort Albi (Numéro supprimé)📝 Nous
Graulhet
TERRAINEXCLUSIVITE 3G IMMO. Terrain constructible d’une superficie de 5277m2 à Graulhet. Section A 2052. Nous consulter pour de plus amples renseignements. 5277m2 building plot in Graulhet. Section A 2052. Please contact us for further information. Honoraires de 12 % TTC inclus à la charge de l’acquéreur (60 000 hors honoraires)Votre agent commercial 3G IMMO sur place EI – Eric SOULOUMIAC inscrit au RSAC de FOIX n° 499 055 465 Selon l’article L.561.5 du Code Monétaire et Financier, pour l’organisation de la visite, la présentation d’une pièce d’identité vous sera demandée.Les informations sur les risques auxquels ce bien est exposé sont disponibles sur le site Géorisques : www.georisques.gouv.frLes informations sur les risques auxquels ce bien est exposé sont disponibles sur le site Géorisques : www.georisques.gouv.fr
Laboutarie
TERRAIN🌿 Terrain à vendre – 807 m² à proximité de Lombers (81120)Vous recherchez un terrain pour bâtir votre future maison dans un cadre paisible, tout en restant proche des commodités ?Maisons France Confort Albi, spécialiste reconnu de la construction de maisons traditionnelles et à ossature bois, vous propose ce superbe terrain plat de 807 m², idéalement situé à l’entrée du charmant village de Lombers, à mi-chemin entre Graulhet et Réalmont, et à seulement 22 minutes d’Albi.🏡 Un emplacement pratique et agréableCe terrain bénéficie d’un environnement calme et verdoyant, parfait pour ceux qui recherchent un cadre de vie serein sans s’éloigner des services essentiels.Tous les commerces et services de proximité se trouvent dans un rayon de 10 km, un véritable atout pour vos courses et déplacements quotidiens.Les réseaux sont en bordure de voirie, facilitant grandement les raccordements (eau, électricité, assainissement).Sa bonne exposition et sa forme régulière permettent d’envisager une construction simple et harmonieuse, adaptée à vos besoins.✨ Un cadre idéal pour votre projet de vieCe terrain est une opportunité rare pour construire une maison individuelle sur mesure, alliant confort, modernité et qualité de vie.Que vous souhaitiez une maison de plain-pied, contemporaine ou traditionnelle, notre équipe Maisons France Confort Albi vous accompagnera de la conception à la réalisation de votre projet.📞 Envie d’en savoir plus ou de visiter le terrain ?Contactez dès maintenant Maisons France Confort Albi au (Numéro supprimé) pour obtenir des informations complémentaires ou planifier une visite sur place.Annonce proposée par un Agent Commercial Partenaire.
Laboutarie
TERRAIN ET MAISONMaison de plain-pied – Plan fonctionnel et évolutif signé Maisons France Confort AlbiMaisons France Confort Albi vous propose ce modèle de maison de plain-pied à l’agencement optimisé, alliant modernité, fonctionnalité et confort au quotidien.L’habitation s’organise autour d’un espace de vie central de 23,91 m², comprenant un séjour lumineux et une cuisine ouverte. Les ouvertures ont été judicieusement positionnées pour profiter pleinement de la lumière naturelle tout au long de la journée.Le coin nuit accueille deux chambres confortables, de 10,04 m² et 10,12 m², situées côte à côte pour offrir un cadre intime et reposant. Une salle d’eau de 4,56 m², équipée d’une douche, complète cet espace, desservi par un dégagement compact de 0,75 m², conçu pour minimiser les pertes d’espace.Un garage accolé de 18,09 m², accessible directement depuis la cuisine, idéal pour stationner un véhicule ou créer un espace de rangement supplémentaire.Un plan pensé pour évoluer avec vousGrâce à sa conception intelligente, ce modèle est entièrement évolutif. Il est possible d’envisager des extensions sur les côtés ou à l’arrière, pour ajouter une chambre supplémentaire, un bureau, ou encore une pièce de détente, selon l’évolution de vos besoins.Ce plan modulable en fait une maison durable, qui s’adaptera facilement à tous vos projets de vie.📞 Contactez dès maintenant Maisons France Confort Albi au (Numéro supprimé) pour plus d’informations et concrétisez votre projet de vie.À noter : Les frais de notaire et frais annexes ne sont pas inclus dans le prix indiqué.Annonce proposée par un Agent Commercial Partenaire.
L’actualité immobilière à Graulhet
27/11/2023
02/11/2023
30/10/2023
20/10/2023
16/10/2023
16/10/2023