Maison à construire à Labessière-Candeil (81300)
Images
Description
Modèle Terra 104 - Villa moderne en ossature bois
Proposée par Maisons France Confort Albi
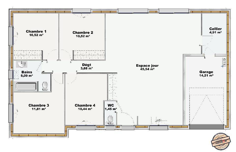
Maisons France Confort Albi, constructeur de référence en maisons traditionnelles et à ossature bois, vous présente le modèle Terra, une villa contemporaine de 104 m² alliant design moderne, luminosité naturelle et fonctionnalité optimale.
Ce modèle a été imaginé pour offrir un confort de vie exceptionnel au quotidien, dans une atmosphère chaleureuse et épurée.
🏡 Espace jour - Confort et convivialité
Dès l'entrée, laissez-vous séduire par une vaste pièce de vie de 46 m², véritable coeur de la maison.
Traversante et baignée de lumière grâce à deux grandes baies vitrées coulissantes et une fenêtre côté cuisine, elle offre une ouverture directe sur le jardin et une ambiance conviviale et lumineuse tout au long de la journée.
Un cellier de 5 m², attenant à la cuisine, assure une parfaite fonctionnalité et permet un accès direct au garage intégré de 14 m².
Un WC indépendant complète intelligemment cet espace.
🛏️ Espace nuit - Calme et intimité
Le coin nuit se compose de :
Quatre chambres lumineuses, de 10,44 m² à 11,80 m², idéales pour accueillir toute la famille,
Une salle de bains élégante et fonctionnelle, équipée d'une vasque, d'une baignoire et d'un WC.
Chaque espace a été pensé pour offrir bien-être, intimité et praticité au quotidien.
🌿 Un modèle pensé pour la vie moderne
La villa Terra 104 séduit par son plan optimisé, son esthétique contemporaine et ses excellentes performances énergétiques, caractéristiques de la construction à ossature bois.
Ce modèle est idéal pour les familles recherchant une maison durable, confortable et respectueuse de l'environnement, sans compromis sur le style.
📞 Coup de coeur garanti !
Ne tardez plus à concrétiser votre projet de vie.
Contactez Maisons France Confort Albi au (Numéro supprimé) pour obtenir davantage d'informations ou personnaliser votre future villa selon vos envies.
ℹᥧ
Logement susceptibles de vous intéresser
Nous vous proposons de découvrir aussi cette sélection de logements situés à moins de 10km de Labessière-Candeil et qui seraient susceptibles de vous intéresser.
Poulan-Pouzols
TERRAINTerrain à vendre – 1 071 m² à Poulan-PouzolsIdéalement situé, à proximité immédiate d’AlbiMaisons France Confort Albi, constructeur reconnu de maisons traditionnelles et à ossature bois, vous propose à la vente ce magnifique terrain de 1 071 m² situé à Poulan-Pouzols, à seulement quelques kilomètres d’Albi.Bénéficiant d’une exposition plein sud et d’une vue dégagée sur la campagne environnante, ce terrain offre un cadre de vie paisible et lumineux, idéal pour concrétiser votre projet de construction.Concernant la viabilisation, seuls les raccordements EDF et l’assainissement individuel restent à prévoir.💰 Prix de vente : 67 473 €📞 Pour tout renseignement complémentaire sur ce terrain, les démarches à suivre ou les modalités de vente, contactez Maisons France Confort Albi au (Numéro supprimé).Donnez vie à votre projet immobilier avec l’accompagnement personnalisé de Maisons France Confort Albi.Annonce proposée par un Agent Commercial Partenaire.
Poulan-Pouzols
TERRAIN ET MAISONMaison de plain-pied – Plan fonctionnel et évolutif signé Maisons France Confort AlbiMaisons France Confort Albi vous propose ce modèle de maison de plain-pied à l’agencement optimisé, alliant modernité, fonctionnalité et confort au quotidien.L’habitation s’organise autour d’un espace de vie central de 23,91 m², comprenant un séjour lumineux et une cuisine ouverte. Les ouvertures ont été judicieusement positionnées pour profiter pleinement de la lumière naturelle tout au long de la journée.Le coin nuit accueille deux chambres confortables, de 10,04 m² et 10,12 m², situées côte à côte pour offrir un cadre intime et reposant. Une salle d’eau de 4,56 m², équipée d’une douche, complète cet espace, desservi par un dégagement compact de 0,75 m², conçu pour minimiser les pertes d’espace.Un garage accolé de 18,09 m², accessible directement depuis la cuisine, peut être ajouté pour plus de praticité idéal pour stationner un véhicule ou créer un espace de rangement supplémentaire.Un plan pensé pour évoluer avec vousGrâce à sa conception intelligente, ce modèle est entièrement évolutif. Il est possible d’envisager des extensions sur les côtés ou à l’arrière, pour ajouter une chambre supplémentaire, un bureau, ou encore une pièce de détente, selon l’évolution de vos besoins.Ce plan modulable en fait une maison durable, qui s’adaptera facilement à tous vos projets de vie.📞 Contactez dès maintenant Maisons France Confort Albi au (Numéro supprimé) pour plus d’informations et concrétisez votre projet de vie.À noter : Les frais de notaire et frais annexes ne sont pas inclus dans le prix indiqué.Annonce proposée par un Agent Commercial Partenaire.
Poulan-Pouzols
TERRAIN ET MAISONProjet de maison de plain-pied – 71 m² – proposé par Maisons France Confort AlbiMaisons France Confort Albi, constructeur reconnu pour son savoir-faire en maisons traditionnelles et à ossature bois, vous présente ce projet de maison de plain-pied de 71 m², alliant confort moderne, fonctionnalité et qualité de vie.Pensée pour répondre aux besoins du quotidien, cette maison séduit par son plan optimisé et ses espaces baignés de lumière.🏡 Espace jour : convivialité et luminositéLe coeur de la maison s’articule autour d’une grande pièce de vie de 37 m², intégrant un salon spacieux, une salle à manger conviviale et une cuisine ouverte favorisant les échanges et la clarté naturelle.Un cellier de 4,5 m², directement accessible depuis la cuisine, permet un accès pratique au garage de 15 m² idéal pour stationner un véhicule ou aménager un espace de rangement supplémentaire.🌙 Espace nuit : calme et intimitéLa partie nuit, parfaitement isolée du séjour, comprend :Deux chambres confortables de 11,35 m² et 10,50 m²,Une salle de bains fonctionnelle de 4,5 m²,Un dégagement optimisé, limitant toute perte de surface et facilitant la circulation.Ce modèle de plain-pied offre un cadre de vie harmonieux et facile à vivre, adapté aux jeunes couples, primo-accédants, seniors ou à toute personne recherchant un habitat pratique, durable et évolutif.📞 N’attendez plus ! Contactez Maisons France Confort Albi au (Numéro supprimé) pour découvrir toutes les possibilités de personnalisation et concrétiser votre projet immobilier en toute sérénité.ℹ️ À noter : Les frais de notaire et autres frais annexes ne sont pas inclus dans le prix indiqué.Annonce proposée par un Agent Commercial Partenaire.
Poulan-Pouzols
TERRAIN ET MAISON🏡 Modèle Actua 95 – Élégance, confort et modernité au quotidienMaisons France Confort Albi, constructeur de maisons traditionnelles et à ossature bois, vous présente le modèle Actua 95 : une maison moderne et raffinée, pensée pour offrir bien-être, luminosité et praticité à toute la famille.Son plan astucieusement agencé optimise chaque mètre carré afin de concilier confort et fonctionnalité dans un style résolument contemporain.✨ Un espace jour convivial et lumineuxAu coeur de la maison, l’espace de vie de 43 m² séduit par sa cuisine ouverte sur un salon-séjour spacieux, baigné de lumière naturelle grâce à de larges ouvertures.Un cellier fonctionnel et des WC indépendants viennent compléter ce rez-de-chaussée, pensé pour simplifier le quotidien.🌙 Un espace nuit intime et bien organiséL’espace nuit se compose d’une suite parentale avec dressing et salle d’eau privative, ainsi que de deux chambres équipées de placards, idéales pour enfants, amis ou bureau.Une salle de bains moderne avec WC vient parfaire cet espace à la fois confortable et harmonieux.🏗️ Un design sobre et contemporainLe garage accolé en façade avant souligne le caractère architectural de la maison tout en apportant praticité et rangements supplémentaires.Ses lignes épurées et ses volumes équilibrés confèrent à l’Actua 95 une allure à la fois moderne et intemporelle, parfaitement adaptée à tout type d’environnement.💬 Les atouts du modèle Actua 95Maison lumineuse et agréable à vivreAgencement fonctionnel et bien penséSuite parentale avec dressing et salle d’eau privativeGarage accolé et architecture contemporainePersonnalisable selon vos goûts et votre mode de vie📞 Donnez vie à votre projet dès aujourd’hui !Contactez Maisons France Confort Albi au (Numéro supprimé) pour plus d’informations ou pour une étude personnalisée de votre maison.ℹ️ Les frais de notaire et autres frais annexes ne sont pas inclus da
Poulan-Pouzols
TERRAIN ET MAISONModèle Optima – Maison de plain-pied de 103 m² – 4 chambresMaisons France Confort Albi, spécialiste reconnu de la construction traditionnelle et à ossature bois, vous présente le modèle Optima : une maison de plain-pied de 103 m², pensée pour répondre aux attentes des familles modernes en quête de confort, de fonctionnalité et de luminosité.Une organisation des espaces parfaitement optimiséeEspace jourProfitez d’une grande pièce de vie traversante de 37 m², regroupant salon, salle à manger et cuisine ouverte, pour un cadre de vie convivial et lumineux.Un cellier relie intelligemment l’espace cuisine au garage attenant, offrant un accès pratique et des rangements supplémentaires au quotidien.Espace nuitL’espace nuit est bien séparé pour plus d’intimité. Il se compose de 3 à 4 chambres selon vos besoins, toutes équipées de placards intégrés.Vous y trouverez également une suite parentale avec salle d’eau privative, véritable espace de confort pour les parents.Une maison pensée pour la vie de familleChaque volume a été soigneusement étudié pour créer un intérieur harmonieux, fonctionnel et agréable à vivre, avec un agencement fluide et une belle luminosité naturelle dans toutes les pièces. Le modèle Optima est idéal pour créer un cocon familial chaleureux et accueillant.📞 Contactez dès maintenant Maisons France Confort Albi au (Numéro supprimé) pour découvrir ce modèle et être accompagné dans votre projet de construction personnalisé.Frais de notaire et frais annexes non inclus dans le prix affiché.Annonce proposée par un Agent Commercial Partenaire.
Poulan-Pouzols
TERRAIN ET MAISONModèle Lumi Maison ossature bois, plain-pied 113 m²Maisons France Confort Albi vous présente le modèle Lumi, une maison plain-pied en ossature bois de 113 m² alliant volumes généreux, luminosité et agencement réfléchi idéale pour une vie de famille moderne, confortable et économe en énergie.Espace jour convivialité et lumièrePièce de vie : 45 m²Vaste espace traversant favorisant la circulation et la luminosité naturelle. Cuisine ouverte possible, circulation fluide entre les zones salon, salle à manger et accès direct au cellier/groupe service.Espace nuit confort et intimitéSuite parentale : 18 m²Suite généreuse avec dressing, salle d’eau privative (douche + vasque) et WC intégré un espace intime et fonctionnel.3 chambres supplémentaires : surfaces comprises entre 10,60 m² et 12,12 m², toutes faciles à aménager.Salle de bains (familiale) et WC indépendant pour plus de confort au quotidien.Annexes et rangementCellier : 6,80 m², accessible depuis la pièce de vie et communicant avec le garage pratique pour les courses et le stockage.Garage intégré : 15 m², attenant, offrant stationnement et rangement supplémentaire.Points forts du modèle LumiConception ossature bois : performance thermique, confort intérieur et esthétique contemporaine.Plain-pied : accessibilité, simplicité d’usage et confort pour tous les âges.Volumes généreux et nombreux rangements pour une maison facile à vivre.Possibilités de personnalisation : choix des finitions, implantation des baies vitrées, options énergie (isolation renforcée, pompe à chaleur, panneaux solaires), aménagements extérieurs (pergola, terrasse, terrassement)…Pour qui ?Ce modèle convient aux familles souhaitant vivre sur un seul niveau sans sacrifier l’espace ni le confort : suite parentale, chambres bien dimensionnées, cellier pratique et garage intégré.📞 Pour une étude personnalisée de votre projet et un chiffrage :Maisons France Confort Albi (Numéro supprimé)📝 Nous
Graulhet
TERRAIN ET MAISONLa SOLAIRE vous assure des volumes généreux et permet de profiter pleinement de la lumière grâce à ses nombreuses ouvertures. Moderne, cette villa vous donne de nombreuses possibilités en termes de disposition des pièces.Sa pièce de vie centrale de 53 m² vous donne accès sur une aile de la maison composée de trois chambres et une salle de bain et sur l’autre, une belle suite parentale indépendante. Sa forme de U vous permet aussi un aménagement extérieur design, avec une grande terrasse ou une piscine au milieu. Sa toiture pourra être décliné de plusieurs manières, afin d’harmoniser son architecture à votre goût.La SOLAIRE est à construire par OC Résidences, votre constructeur sur mesure du Tarn, l’Aude, l’Hérault, la Haute-Garonne ainsi que les Pyrénées Orientales.
Graulhet
TERRAIN ET MAISONDécouvrez le modèle Infini, une élégante maison conçue avec une architecture moderne, aux lignes sobres et épurées. Déclinez sa toiture à votre guise et en fonction de vos envies. Son aménagement intérieur saura répondre à votre mode de vie. Sa belle pièce à vivre traversante de 44 m² donnera sur votre extérieur par sa grande baie vitrée. A l’étage, le coté nuit s’articule autour de 3 grandes chambres avec placard et une belle salle de bains de 8 m² tout équipée. Le modèle Infini est une maison familiale et coquette qui plaira par son agencement pensé pour votre confort de vie, par Oc résidences, votre constructeur sur mesure en Occitanie.
Busque
TERRAIN ET MAISONLe modèle ZEPHYR 87 m² est une maison aux lignes sobres et authentiques qui saura vous séduire par son aménagement intérieur conçu pour optimiser votre confort. Ce pavillon vous offre trois chambres, une salle de bains, un bel espace vie de plus de 41 m² et un garage de 14 m², facilement transformable en une quatrième chambre. Cette maison sera répondre aux normes accessibilité. Votre projet de vie est à construire dans le département du Tarn, l’Aude, l’Hérault, la Haute-Garonne ainsi que les Pyrénées Orientales par Oc résidences, votre constructeur sur mesure en Occitanie.
L’actualité immobilière à Labessière-Candeil
27/11/2023
02/11/2023
30/10/2023
20/10/2023
16/10/2023
16/10/2023