Maison à construire à Laboutarie (81120)
Images
Description
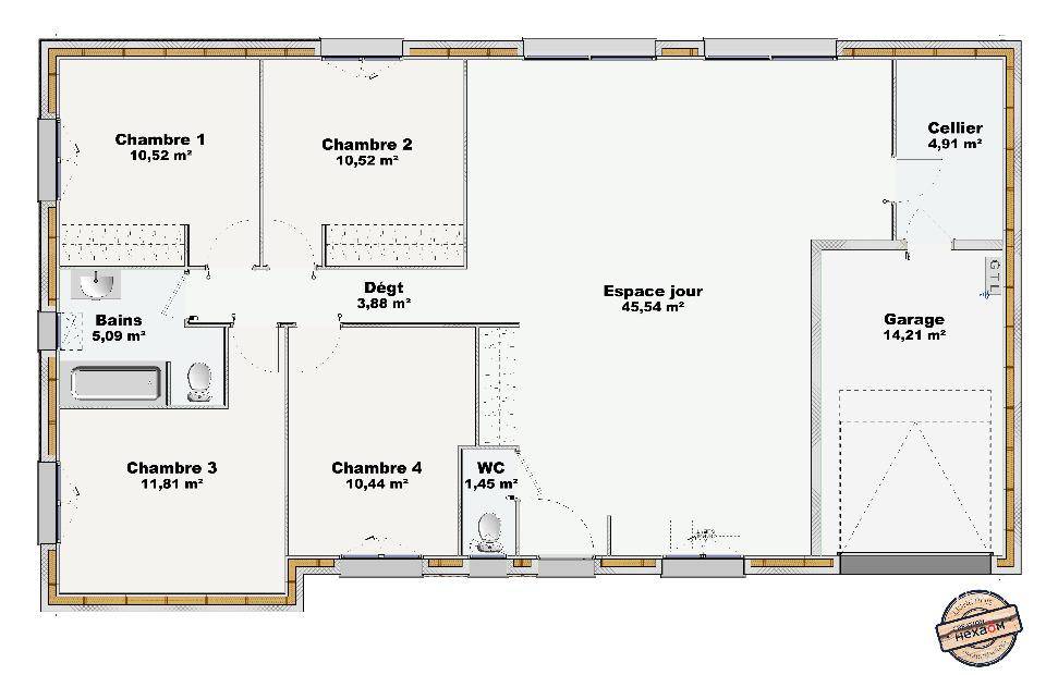
Modèle Terra 104 - Villa moderne en ossature bois
Proposée par Maisons France Confort Albi
Maisons France Confort Albi, constructeur de référence en maisons traditionnelles et à ossature bois, vous présente le modèle Terra, une villa contemporaine de 104 m² alliant design moderne, luminosité naturelle et fonctionnalité optimale.
Ce modèle a été imaginé pour offrir un confort de vie exceptionnel au quotidien, dans une atmosphère chaleureuse et épurée.
🏡 Espace jour - Confort et convivialité
Dès l'entrée, laissez-vous séduire par une vaste pièce de vie de 46 m², véritable coeur de la maison.
Traversante et baignée de lumière grâce à deux grandes baies vitrées coulissantes et une fenêtre côté cuisine, elle offre une ouverture directe sur le jardin et une ambiance conviviale et lumineuse tout au long de la journée.
Un cellier de 5 m², attenant à la cuisine, assure une parfaite fonctionnalité et permet un accès direct au garage intégré de 14 m².
Un WC indépendant complète intelligemment cet espace.
🛏️ Espace nuit - Calme et intimité
Le coin nuit se compose de :
Quatre chambres lumineuses, de 10,44 m² à 11,80 m², idéales pour accueillir toute la famille,
Une salle de bains élégante et fonctionnelle, équipée d'une vasque, d'une baignoire et d'un WC.
Chaque espace a été pensé pour offrir bien-être, intimité et praticité au quotidien.
🌿 Un modèle pensé pour la vie moderne
La villa Terra 104 séduit par son plan optimisé, son esthétique contemporaine et ses excellentes performances énergétiques, caractéristiques de la construction à ossature bois.
Ce modèle est idéal pour les familles recherchant une maison durable, confortable et respectueuse de l'environnement, sans compromis sur le style.
📞 Coup de coeur garanti !
Ne tardez plus à concrétiser votre projet de vie.
Contactez Maisons France Confort Albi au (Numéro supprimé) pour obtenir davantage d'informations ou personnaliser votre future villa selon vos envies.
ℹᥧ
Logement susceptibles de vous intéresser
Nous vous proposons de découvrir aussi cette sélection de logements situés à moins de 10km de Laboutarie et qui seraient susceptibles de vous intéresser.
Graulhet
TERRAINEXCLUSIVITE 3G IMMO. Terrain constructible d’une superficie de 5277m2 à Graulhet. Section A 2052. Nous consulter pour de plus amples renseignements. 5277m2 building plot in Graulhet. Section A 2052. Please contact us for further information. Honoraires de 12 % TTC inclus à la charge de l’acquéreur (60 000 hors honoraires)Votre agent commercial 3G IMMO sur place EI – Eric SOULOUMIAC inscrit au RSAC de FOIX n° 499 055 465 Selon l’article L.561.5 du Code Monétaire et Financier, pour l’organisation de la visite, la présentation d’une pièce d’identité vous sera demandée.Les informations sur les risques auxquels ce bien est exposé sont disponibles sur le site Géorisques : www.georisques.gouv.frLes informations sur les risques auxquels ce bien est exposé sont disponibles sur le site Géorisques : www.georisques.gouv.fr
Lautrec
TERRAIN🌿 EMPLACEMENT PRIVILÉGIÉ – VUE PANORAMIQUEÀ Lautrec, à seulement 25 km d’Albi, Maisons France Confort Albi, constructeur de maisons traditionnelles et à ossature bois, vous propose ce superbe terrain de 900 m² viabilisé, parfait pour concrétiser votre projet de construction.Idéalement orienté nord/sud, il offre une vue panoramique exceptionnelle et se situe dans un quartier recherché, à proximité immédiate des commerces et des établissements scolaires.👉 Côté scolarité : l’École Primaire Publique Jean-Louis Étienne est accessible en moins de 10 minutes à pied, tout comme une crèche.👉 Côté loisirs et services : court de tennis, piscine, bibliothèque, commerces de proximité (deux boulangeries, une épicerie, un bureau de poste…).👉 Côté accessibilité : la N112 se trouve à seulement 16 km.Son emplacement est stratégique : à 15 km de Castres et de Graulhet, et à 10 km de Réalmont, vous profitez d’un cadre de vie à la fois paisible et pratique.📞 Pour plus d’informations ou pour être accompagné dans votre projet, contactez dès maintenant Maisons France Confort Albi au (Numéro supprimé).Notre équipe est à votre écoute pour vous guider à chaque étape de votre acquisition.Annonce proposée par un Agent Commercial Partenaire.
Lautrec
TERRAIN ET MAISON✨ Vous rêvez d’une maison de plain-pied moderne, fonctionnelle et lumineuse ?Maisons France Confort Albi, spécialiste de la construction de maisons traditionnelles et à ossature bois, vous présente le modèle Optima – 75 m², une maison pensée pour allier confort, efficacité et modernité.🏡 Modèle Optima – 75 m² : un concentré de bien-êtreCe modèle astucieusement conçu offre une organisation optimale de l’espace :3 chambres avec placards intégrés pour accueillir toute la famille ou créer un bureau,Un vaste espace de vie lumineux, convivial et ouvert,Un cellier pratique pour le rangement et les équipements,Un garage intégré, parfait pour sécuriser votre véhicule ou stocker vos outils.Adaptée aussi bien aux jeunes couples actifs qu’aux retraités souhaitant une vie simple et confortable au quotidien, la maison Optima séduit par sa praticité et son élégance contemporaine.📍 Un emplacement idéalProfitez d’un cadre de vie agréable dans un secteur dynamique, à proximité immédiate des commerces, écoles et services.👉 Ne repoussez plus votre projet de vie !📞 Contactez dès maintenant notre agence Maisons France Confort Albi au (Numéro supprimé)pour obtenir plus d’informations ou planifier un rendez-vous personnalisé.ℹ️ Frais de notaire et frais annexes non inclus dans le prix annoncé.Annonce proposée par un Agent Commercial Partenaire.
Laboutarie
TERRAIN🌿 Terrain à vendre – 807 m² à proximité de Lombers (81120)Vous recherchez un terrain pour bâtir votre future maison dans un cadre paisible, tout en restant proche des commodités ?Maisons France Confort Albi, spécialiste reconnu de la construction de maisons traditionnelles et à ossature bois, vous propose ce superbe terrain plat de 807 m², idéalement situé à l’entrée du charmant village de Lombers, à mi-chemin entre Graulhet et Réalmont, et à seulement 22 minutes d’Albi.🏡 Un emplacement pratique et agréableCe terrain bénéficie d’un environnement calme et verdoyant, parfait pour ceux qui recherchent un cadre de vie serein sans s’éloigner des services essentiels.Tous les commerces et services de proximité se trouvent dans un rayon de 10 km, un véritable atout pour vos courses et déplacements quotidiens.Les réseaux sont en bordure de voirie, facilitant grandement les raccordements (eau, électricité, assainissement).Sa bonne exposition et sa forme régulière permettent d’envisager une construction simple et harmonieuse, adaptée à vos besoins.✨ Un cadre idéal pour votre projet de vieCe terrain est une opportunité rare pour construire une maison individuelle sur mesure, alliant confort, modernité et qualité de vie.Que vous souhaitiez une maison de plain-pied, contemporaine ou traditionnelle, notre équipe Maisons France Confort Albi vous accompagnera de la conception à la réalisation de votre projet.📞 Envie d’en savoir plus ou de visiter le terrain ?Contactez dès maintenant Maisons France Confort Albi au (Numéro supprimé) pour obtenir des informations complémentaires ou planifier une visite sur place.Annonce proposée par un Agent Commercial Partenaire.
Lautrec
TERRAIN ET MAISONMaison de plain-pied – Plan fonctionnel et évolutif signé Maisons France Confort AlbiMaisons France Confort Albi vous propose ce modèle de maison de plain-pied à l’agencement optimisé, alliant modernité, fonctionnalité et confort au quotidien.L’habitation s’organise autour d’un espace de vie central de 23,91 m², comprenant un séjour lumineux et une cuisine ouverte. Les ouvertures ont été judicieusement positionnées pour profiter pleinement de la lumière naturelle tout au long de la journée.Le coin nuit accueille deux chambres confortables, de 10,04 m² et 10,12 m², situées côte à côte pour offrir un cadre intime et reposant. Une salle d’eau de 4,56 m², équipée d’une douche, complète cet espace, desservi par un dégagement compact de 0,75 m², conçu pour minimiser les pertes d’espace.Possibilité d’ajouté un garage accolé de 18,09 m², accessible directement depuis la cuisine, idéal pour stationner un véhicule ou créer un espace de rangement supplémentaire.Un plan pensé pour évoluer avec vousGrâce à sa conception intelligente, ce modèle est entièrement évolutif. Il est possible d’envisager des extensions sur les côtés ou à l’arrière, pour ajouter une chambre supplémentaire, un bureau, ou encore une pièce de détente, selon l’évolution de vos besoins.Ce plan modulable en fait une maison durable, qui s’adaptera facilement à tous vos projets de vie.📞 Contactez dès maintenant Maisons France Confort Albi au (Numéro supprimé) pour plus d’informations et concrétisez votre projet de vie.À noter : Les frais de notaire et frais annexes ne sont pas inclus dans le prix indiqué.Annonce proposée par un Agent Commercial Partenaire.
Lautrec
TERRAIN ET MAISON🏡 Modèle Actua 95 – Élégance, confort et modernité au quotidienMaisons France Confort Albi, constructeur de maisons traditionnelles et à ossature bois, vous présente le modèle Actua 95 : une maison moderne et raffinée, pensée pour offrir bien-être, luminosité et praticité à toute la famille.Son plan astucieusement agencé optimise chaque mètre carré afin de concilier confort et fonctionnalité dans un style résolument contemporain.✨ Un espace jour convivial et lumineuxAu coeur de la maison, l’espace de vie de 43 m² séduit par sa cuisine ouverte sur un salon-séjour spacieux, baigné de lumière naturelle grâce à de larges ouvertures.Un cellier fonctionnel et des WC indépendants viennent compléter ce rez-de-chaussée, pensé pour simplifier le quotidien.🌙 Un espace nuit intime et bien organiséL’espace nuit se compose d’une suite parentale avec dressing et salle d’eau privative, ainsi que de deux chambres équipées de placards, idéales pour enfants, amis ou bureau.Une salle de bains moderne avec WC vient parfaire cet espace à la fois confortable et harmonieux.🏗️ Un design sobre et contemporainLe garage accolé en façade avant souligne le caractère architectural de la maison tout en apportant praticité et rangements supplémentaires.Ses lignes épurées et ses volumes équilibrés confèrent à l’Actua 95 une allure à la fois moderne et intemporelle, parfaitement adaptée à tout type d’environnement.💬 Les atouts du modèle Actua 95Maison lumineuse et agréable à vivreAgencement fonctionnel et bien penséSuite parentale avec dressing et salle d’eau privativeGarage accolé et architecture contemporainePersonnalisable selon vos goûts et votre mode de vie📞 Donnez vie à votre projet dès aujourd’hui !Contactez Maisons France Confort Albi au (Numéro supprimé) pour plus d’informations ou pour une étude personnalisée de votre maison.ℹ️ Les frais de notaire et autres frais annexes ne sont pas inclus da
Lautrec
TERRAIN ET MAISONModèle Optima Plain-pied 125 m²Confort familial optimisé Luminosité ErgonomieMaisons France Confort Albi, spécialiste de la construction traditionnelle et à ossature bois, vous présente le modèle Optima, un plain-pied de 125 m² pensé pour la vie de famille : fonctionnalité, circulation fluide et luminosité au coeur du projet.Un plan réfléchi pour le quotidienPièce de vie centrale : un vaste séjour traversant, lumineux et convivial, conçu pour accueillir salon, salle à manger et cuisine ouverte. Les larges ouvertures favorisent la continuité intérieur / extérieur et créent un espace de vie agréable toute l’année.Espace enfants / jour : trois chambres dédiées aux enfants (ou invités) et un bureau agencés pour préserver calme et intimité tout en restant proches de la pièce de vie.Espace parents / nuit : suite parentale privative avec salle d’eau et dressing, offrant un véritable cocon intime et fonctionnel.Praticité : cellier attenant au garage avec accès direct à la cuisine, pour faciliter les allers-retours, le rangement des courses et les usages quotidiens.Atouts fonctionnelsSéparation claire jour / nuit pour un confort acoustique et une meilleure organisation des circulation.Nombreux rangements possibles : placards intégrés, cellier, garage tout est prévu pour une maison ordonnée et facile à vivre.Plain-pied : accessibilité, sécurité et confort pour toutes les étapes de la vie (jeunesse, famille, seniors).Confort, performances et personnalisationConception compatible avec des solutions techniques modernes : isolation performante, systèmes de chauffage performants, et options éco-responsables (pompe à chaleur, panneaux solaires, etc.).Plans modulables : possibilité d’adapter l’organisation intérieure, les finitions et les prestations (cuisine sur mesure, extension de garage, pergola, pose de volets roulants motorisés, etc.) selon vos besoins et votre budget.Pourquoi choisir l’Optima ?Vous recherchez un plain-pied spacieux alliant
Lautrec
TERRAIN ET MAISONModèle Terra 104 – Villa moderne en ossature boisProposée par Maisons France Confort AlbiMaisons France Confort Albi, constructeur de référence en maisons traditionnelles et à ossature bois, vous présente le modèle Terra, une villa contemporaine de 104 m² alliant design moderne, luminosité naturelle et fonctionnalité optimale.Ce modèle a été imaginé pour offrir un confort de vie exceptionnel au quotidien, dans une atmosphère chaleureuse et épurée.🏡 Espace jour – Confort et convivialitéDès l’entrée, laissez-vous séduire par une vaste pièce de vie de 46 m², véritable coeur de la maison.Traversante et baignée de lumière grâce à deux grandes baies vitrées coulissantes et une fenêtre côté cuisine, elle offre une ouverture directe sur le jardin et une ambiance conviviale et lumineuse tout au long de la journée.Un cellier de 5 m², attenant à la cuisine, assure une parfaite fonctionnalité et permet un accès direct au garage intégré de 14 m².Un WC indépendant complète intelligemment cet espace.🛏️ Espace nuit – Calme et intimitéLe coin nuit se compose de :Quatre chambres lumineuses, de 10,44 m² à 11,80 m², idéales pour accueillir toute la famille,Une salle de bains élégante et fonctionnelle, équipée d’une vasque, d’une baignoire et d’un WC.Chaque espace a été pensé pour offrir bien-être, intimité et praticité au quotidien.🌿 Un modèle pensé pour la vie moderneLa villa Terra 104 séduit par son plan optimisé, son esthétique contemporaine et ses excellentes performances énergétiques, caractéristiques de la construction à ossature bois.Ce modèle est idéal pour les familles recherchant une maison durable, confortable et respectueuse de l’environnement, sans compromis sur le style.📞 Coup de coeur garanti !Ne tardez plus à concrétiser votre projet de vie.Contactez Maisons France Confort Albi au (Numéro supprimé) pour obtenir davantage d’informations ou personnaliser votre future villa selon vos envies.ℹᥧ
Laboutarie
TERRAIN ET MAISONMaison de plain-pied – Plan fonctionnel et évolutif signé Maisons France Confort AlbiMaisons France Confort Albi vous propose ce modèle de maison de plain-pied à l’agencement optimisé, alliant modernité, fonctionnalité et confort au quotidien.L’habitation s’organise autour d’un espace de vie central de 23,91 m², comprenant un séjour lumineux et une cuisine ouverte. Les ouvertures ont été judicieusement positionnées pour profiter pleinement de la lumière naturelle tout au long de la journée.Le coin nuit accueille deux chambres confortables, de 10,04 m² et 10,12 m², situées côte à côte pour offrir un cadre intime et reposant. Une salle d’eau de 4,56 m², équipée d’une douche, complète cet espace, desservi par un dégagement compact de 0,75 m², conçu pour minimiser les pertes d’espace.Un garage accolé de 18,09 m², accessible directement depuis la cuisine, idéal pour stationner un véhicule ou créer un espace de rangement supplémentaire.Un plan pensé pour évoluer avec vousGrâce à sa conception intelligente, ce modèle est entièrement évolutif. Il est possible d’envisager des extensions sur les côtés ou à l’arrière, pour ajouter une chambre supplémentaire, un bureau, ou encore une pièce de détente, selon l’évolution de vos besoins.Ce plan modulable en fait une maison durable, qui s’adaptera facilement à tous vos projets de vie.📞 Contactez dès maintenant Maisons France Confort Albi au (Numéro supprimé) pour plus d’informations et concrétisez votre projet de vie.À noter : Les frais de notaire et frais annexes ne sont pas inclus dans le prix indiqué.Annonce proposée par un Agent Commercial Partenaire.
L’actualité immobilière à Laboutarie
27/11/2023
02/11/2023
30/10/2023
20/10/2023
16/10/2023
16/10/2023