Maison à construire à Lagrave (81150)
Images
Description
Lagrave : maison T5 (120 m²) à vendre
PROCHE D'ALBI - MAISON 5 PIÈCES NEUVE
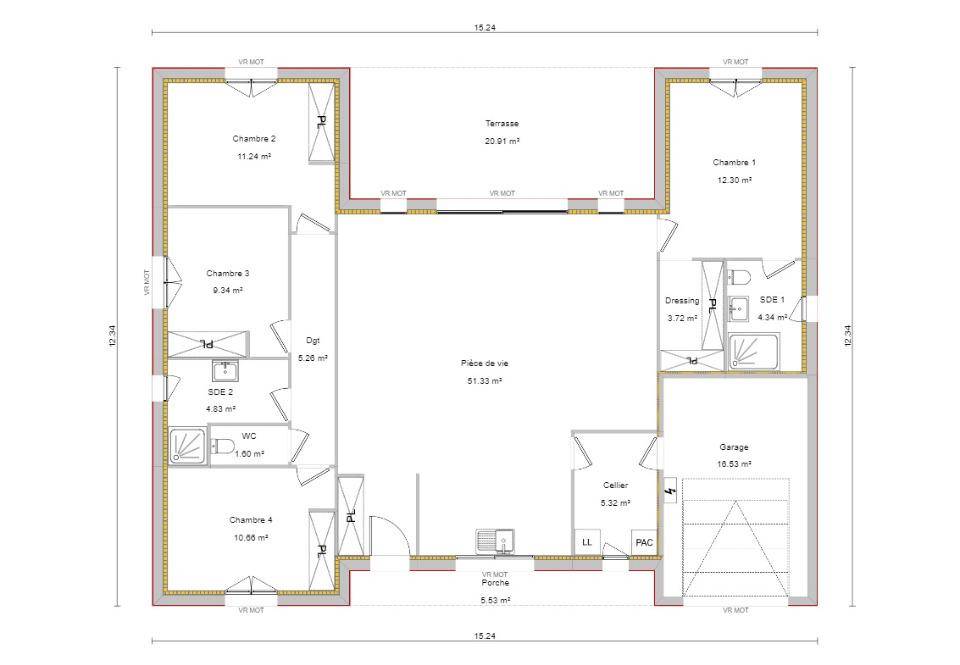
À vendre : localisée à quelques kilomètres d'Albi, à Lagrave (81150), Maisons France Confort Albi vous propose cette maison de 5 pièces de plain-pied de 120 m². Elle est composée de quatre chambres, d'une cuisine et de deux salles de bains.
Le terrain du bien s'étend sur 799 m².
La maison est neuve.
Son prix de vente est de 288 000 €.
N'hésitez pas à prendre contact avec notre agence au (Numéro supprimé) pour plus d'informations sur la maison. Maisons France Confort Albi est là pour vous accompagner dans tous vos projets immobiliers.
Annonce proposée par un Agent Commercial Partenaire.
Logement susceptibles de vous intéresser
Nous vous proposons de découvrir aussi cette sélection de logements situés à moins de 10km de Lagrave et qui seraient susceptibles de vous intéresser.
Carlus
TERRAIN? CARLUS – LOTISSEMENT LES HAUTS DE SERRES Terrains viabilisés – 339 à 758 m² – Un cadre naturel rare, apaisant et préservé À Carlus, dans un environnement vallonné exceptionnel, découvrez Les Hauts de Serres, un lotissement intimiste de 18 parcelles viabilisées, pensées pour offrir un mode de vie plus doux, plus naturel, plus authentique. Dès l’arrivée sur le site, on ressent un calme profond, une lumière remarquable, et une sensation d’espace rare. Les vues sur le village, la campagne et les essences locales créent une atmosphère immédiatement inspirante : c’est l’endroit idéal pour bâtir une maison qui respire. Un programme conçu pour la qualité environnementale Bandes paysagères plantées d’essences locales sur plusieurs lots (1 à 6). Haies végétales obligatoires sur certains secteurs pour préserver l’harmonie visuelle (lots 6-7-13-14). Conservation de haies existantes en fond de parcelle sur les lots concernés. Gestion écologique des eaux pluviales, intégrée à la parcelle (infiltration naturelle, jardins d’eau). Intégration des constructions dans la topographie pour une implantation harmonieuse. Cet esprit environnemental se retrouve dans le ressenti sur place : aucune densité excessive, aucun bruit parasite, simplement un lieu où l’on respire, où l’on se projette, où l’on a envie de vivre. Commerces, services & équipements à proximité Carlus est un village vivant disposant : d’une salle multisport / gymnase communal à quelques minutes du lotissement, de services municipaux (mairie, équipements associatifs). À moins de 6 minutes en voiture : zones commerciales Le Séquestre et Albi, écoles, collèges et lycées, pôles médicaux et l’ensemble des services du quotidien. Vous profitez ainsi du calme de la campagne, sans être isolé, avec Albi et toutes ses infrastructures accessibles en quelques minutes. Chaque lot offre un fort potentiel : exposition idéale, intimité, vues dégagées, liberté de conception architecturale. Ce programme est parfaitement adapté aux familles recherchant un cadre sain, sécurisé et naturel, aux actifs souhaitant vivre à la campagne tout en restant proches d’Albi et aux investisseurs cherchant un secteur très prisé, à forte valorisation patrimoniale, Un site à découvrir absolument : ici, les terrains déclenchent le coup de coeur. Envie de connaître toutes les disponibilités ? Contactez-moi pour recevoir les plans, visiter le site et réserver votre parcelle.Honoraires à la charge du vendeurVotre agent commercial 3G IMMO sur place EI – Séverine TESSON inscrite au RSAC d’ALBI n° 452 369 895 Selon l’article L.561.5 du Code Monétaire et Financier, pour l’organisation de la visite, la présentation d’une pièce d’identité vous sera demandée.Les informations sur les risques auxquels ce bien est exposé sont disponibles sur le site Géorisques : www.georisques.gouv.frLes informations sur les risques auxquels ce bien est exposé sont disponibles sur le site Géorisques : www.georisques.gouv.fr
Carlus
TERRAIN? CARLUS – LOTISSEMENT LES HAUTS DE SERRES Terrains viabilisés – 339 à 758 m² – Un cadre naturel rare, apaisant et préservé À Carlus, dans un environnement vallonné exceptionnel, découvrez Les Hauts de Serres, un lotissement intimiste de 18 parcelles viabilisées, pensées pour offrir un mode de vie plus doux, plus naturel, plus authentique. Dès l’arrivée sur le site, on ressent un calme profond, une lumière remarquable, et une sensation d’espace rare. Les vues sur le village, la campagne et les essences locales créent une atmosphère immédiatement inspirante : c’est l’endroit idéal pour bâtir une maison qui respire. Un programme conçu pour la qualité environnementale Bandes paysagères plantées d’essences locales sur plusieurs lots (1 à 6). Haies végétales obligatoires sur certains secteurs pour préserver l’harmonie visuelle (lots 6-7-13-14). Conservation de haies existantes en fond de parcelle sur les lots concernés. Gestion écologique des eaux pluviales, intégrée à la parcelle (infiltration naturelle, jardins d’eau). Intégration des constructions dans la topographie pour une implantation harmonieuse. Cet esprit environnemental se retrouve dans le ressenti sur place : aucune densité excessive, aucun bruit parasite, simplement un lieu où l’on respire, où l’on se projette, où l’on a envie de vivre. Commerces, services & équipements à proximité Carlus est un village vivant disposant : d’une salle multisport / gymnase communal à quelques minutes du lotissement, de services municipaux (mairie, équipements associatifs). À moins de 6 minutes en voiture : zones commerciales Le Séquestre et Albi, écoles, collèges et lycées, pôles médicaux et l’ensemble des services du quotidien. Vous profitez ainsi du calme de la campagne, sans être isolé, avec Albi et toutes ses infrastructures accessibles en quelques minutes. Chaque lot offre un fort potentiel : exposition idéale, intimité, vues dégagées, liberté de conception architecturale. Ce programme est parfaitement adapté aux familles recherchant un cadre sain, sécurisé et naturel, aux actifs souhaitant vivre à la campagne tout en restant proches d’Albi et aux investisseurs cherchant un secteur très prisé, à forte valorisation patrimoniale, Un site à découvrir absolument : ici, les terrains déclenchent le coup de coeur. Envie de connaître toutes les disponibilités ? Contactez-moi pour recevoir les plans, visiter le site et réserver votre parcelle. Honoraires à la charge du vendeurVotre agent commercial 3G IMMO sur place EI – Séverine TESSON inscrite au RSAC d’ALBI n° 452 369 895 Selon l’article L.561.5 du Code Monétaire et Financier, pour l’organisation de la visite, la présentation d’une pièce d’identité vous sera demandée.Les informations sur les risques auxquels ce bien est exposé sont disponibles sur le site Géorisques : www.georisques.gouv.frLes informations sur les risques auxquels ce bien est exposé sont disponibles sur le site Géorisques : www.georisques.gouv.fr
Lagrave
TERRAINSitué dans un environnement calme et recherché de la commune de Lagrave, ce terrain constructible de 426m² et viabilisée vous offre une belle opportunité pour réaliser votre projet de construction. À seulement quelques minutes de l’A68 (axe Albi-Toulouse), Proximité immédiate des commerces, écoles, et commodités du centre-ville dans un cadre résidentiel agréable, en lotissement ou zone pavillonnaire Ce terrain est parfait pour accueillir une maison individuelle avec jardin, dans un cadre de vie paisible tout en restant connecté aux grands axes et aux services.
Gaillac
TERRAIN ET MAISONLe modèle Rose est une maison de plain-pied de 100 m² à l’architecture contemporaine et épurée. Elle s’articule autour de trois chambres avec placard, d’une salle de bains et d’un WC séparé. La pièce de vie est fonctionnelle avec une cuisine ouverte sur le séjour de plus de 52m². Enfin, la maison dispose d’un cellier et d’un espace de rangement à l’entrée. Découvrez la sur ce superbe terrain de 800m² en plein centre ville de GAILLAC. Ce terrain situé sur la Rue d’Alger est à seulement 15 minutes à pied du centre de la ville (et moins de 3 minutes en voiture). Très verdoyant, il est proche de toutes les commodités dont le collège Albert Camus. N’hésitez plus et venez le découvrir.
Lagrave
TERRAIN ET MAISONCe modèle Emma est une maison de plain-pied de 80 m² à l’architecture contemporaine et épurée. Elle s’articule autour de deux chambres avec placard, d’une salle de bain et d’un WC séparé. La pièce de vie est fonctionnelle avec une cuisine ouverte sur le séjour de plus de 48m².Situé sur la commune de LAGRAVE, secteur recherché proche des commodités
Carlus
TERRAIN? CARLUS – LOTISSEMENT LES HAUTS DE SERRES Terrains viabilisés – 339 à 758 m² – Un cadre naturel rare, apaisant et préservé À Carlus, dans un environnement vallonné exceptionnel, découvrez Les Hauts de Serres, un lotissement intimiste de 18 parcelles viabilisées, pensées pour offrir un mode de vie plus doux, plus naturel, plus authentique. Dès l’arrivée sur le site, on ressent un calme profond, une lumière remarquable, et une sensation d’espace rare. Les vues sur le village, la campagne et les essences locales créent une atmosphère immédiatement inspirante : c’est l’endroit idéal pour bâtir une maison qui respire. Un programme conçu pour la qualité environnementale Bandes paysagères plantées d’essences locales sur plusieurs lots (1 à 6). Haies végétales obligatoires sur certains secteurs pour préserver l’harmonie visuelle (lots 6-7-13-14). Conservation de haies existantes en fond de parcelle sur les lots concernés. Gestion écologique des eaux pluviales, intégrée à la parcelle (infiltration naturelle, jardins d’eau). Intégration des constructions dans la topographie pour une implantation harmonieuse. Cet esprit environnemental se retrouve dans le ressenti sur place : aucune densité excessive, aucun bruit parasite, simplement un lieu où l’on respire, où l’on se projette, où l’on a envie de vivre. Commerces, services & équipements à proximité Carlus est un village vivant disposant : d’une salle multisport / gymnase communal à quelques minutes du lotissement, de services municipaux (mairie, équipements associatifs). À moins de 6 minutes en voiture : zones commerciales Le Séquestre et Albi, écoles, collèges et lycées, pôles médicaux et l’ensemble des services du quotidien. Vous profitez ainsi du calme de la campagne, sans être isolé, avec Albi et toutes ses infrastructures accessibles en quelques minutes. Chaque lot offre un fort potentiel : exposition idéale, intimité, vues dégagées, liberté de conception architecturale. Ce programme est parfaitement adapté aux familles recherchant un cadre sain, sécurisé et naturel, aux actifs souhaitant vivre à la campagne tout en restant proches d’Albi et aux investisseurs cherchant un secteur très prisé, à forte valorisation patrimoniale, Un site à découvrir absolument : ici, les terrains déclenchent le coup de coeur. Envie de connaître toutes les disponibilités ? Contactez-moi pour recevoir les plans, visiter le site et réserver votre parcelle. Honoraires à la charge du vendeurVotre agent commercial 3G IMMO sur place EI – Séverine TESSON inscrite au RSAC d’ALBI n° 452 369 895 Selon l’article L.561.5 du Code Monétaire et Financier, pour l’organisation de la visite, la présentation d’une pièce d’identité vous sera demandée.Les informations sur les risques auxquels ce bien est exposé sont disponibles sur le site Géorisques : www.georisques.gouv.frLes informations sur les risques auxquels ce bien est exposé sont disponibles sur le site Géorisques : www.georisques.gouv.fr
Carlus
TERRAIN? CARLUS – LOTISSEMENT LES HAUTS DE SERRES Terrains viabilisés – 339 à 758 m² – Un cadre naturel rare, apaisant et préservé À Carlus, dans un environnement vallonné exceptionnel, découvrez Les Hauts de Serres, un lotissement intimiste de 18 parcelles viabilisées, pensées pour offrir un mode de vie plus doux, plus naturel, plus authentique. Dès l’arrivée sur le site, on ressent un calme profond, une lumière remarquable, et une sensation d’espace rare. Les vues sur le village, la campagne et les essences locales créent une atmosphère immédiatement inspirante : c’est l’endroit idéal pour bâtir une maison qui respire. Un programme conçu pour la qualité environnementale Bandes paysagères plantées d’essences locales sur plusieurs lots (1 à 6). Haies végétales obligatoires sur certains secteurs pour préserver l’harmonie visuelle (lots 6-7-13-14). Conservation de haies existantes en fond de parcelle sur les lots concernés. Gestion écologique des eaux pluviales, intégrée à la parcelle (infiltration naturelle, jardins d’eau). Intégration des constructions dans la topographie pour une implantation harmonieuse. Cet esprit environnemental se retrouve dans le ressenti sur place : aucune densité excessive, aucun bruit parasite, simplement un lieu où l’on respire, où l’on se projette, où l’on a envie de vivre. Commerces, services & équipements à proximité Carlus est un village vivant disposant : d’une salle multisport / gymnase communal à quelques minutes du lotissement, de services municipaux (mairie, équipements associatifs). À moins de 6 minutes en voiture : zones commerciales Le Séquestre et Albi, écoles, collèges et lycées, pôles médicaux et l’ensemble des services du quotidien. Vous profitez ainsi du calme de la campagne, sans être isolé, avec Albi et toutes ses infrastructures accessibles en quelques minutes. Chaque lot offre un fort potentiel : exposition idéale, intimité, vues dégagées, liberté de conception architecturale. Ce programme est parfaitement adapté aux familles recherchant un cadre sain, sécurisé et naturel, aux actifs souhaitant vivre à la campagne tout en restant proches d’Albi et aux investisseurs cherchant un secteur très prisé, à forte valorisation patrimoniale, Un site à découvrir absolument : ici, les terrains déclenchent le coup de coeur. Envie de connaître toutes les disponibilités ? Contactez-moi pour recevoir les plans, visiter le site et réserver votre parcelle. Honoraires à la charge du vendeurVotre agent commercial 3G IMMO sur place EI – Séverine TESSON inscrite au RSAC d’ALBI n° 452 369 895 Selon l’article L.561.5 du Code Monétaire et Financier, pour l’organisation de la visite, la présentation d’une pièce d’identité vous sera demandée.Les informations sur les risques auxquels ce bien est exposé sont disponibles sur le site Géorisques : www.georisques.gouv.frLes informations sur les risques auxquels ce bien est exposé sont disponibles sur le site Géorisques : www.georisques.gouv.fr
Carlus
TERRAIN? CARLUS – LOTISSEMENT LES HAUTS DE SERRES Terrains viabilisés – 339 à 758 m² – Un cadre naturel rare, apaisant et préservé À Carlus, dans un environnement vallonné exceptionnel, découvrez Les Hauts de Serres, un lotissement intimiste de 18 parcelles viabilisées, pensées pour offrir un mode de vie plus doux, plus naturel, plus authentique. Dès l’arrivée sur le site, on ressent un calme profond, une lumière remarquable, et une sensation d’espace rare. Les vues sur le village, la campagne et les essences locales créent une atmosphère immédiatement inspirante : c’est l’endroit idéal pour bâtir une maison qui respire. Un programme conçu pour la qualité environnementale Bandes paysagères plantées d’essences locales sur plusieurs lots (1 à 6). Haies végétales obligatoires sur certains secteurs pour préserver l’harmonie visuelle (lots 6-7-13-14). Conservation de haies existantes en fond de parcelle sur les lots concernés. Gestion écologique des eaux pluviales, intégrée à la parcelle (infiltration naturelle, jardins d’eau). Intégration des constructions dans la topographie pour une implantation harmonieuse. Cet esprit environnemental se retrouve dans le ressenti sur place : aucune densité excessive, aucun bruit parasite, simplement un lieu où l’on respire, où l’on se projette, où l’on a envie de vivre. Commerces, services & équipements à proximité Carlus est un village vivant disposant : d’une salle multisport / gymnase communal à quelques minutes du lotissement, de services municipaux (mairie, équipements associatifs). À moins de 6 minutes en voiture : zones commerciales Le Séquestre et Albi, écoles, collèges et lycées, pôles médicaux et l’ensemble des services du quotidien. Vous profitez ainsi du calme de la campagne, sans être isolé, avec Albi et toutes ses infrastructures accessibles en quelques minutes. Chaque lot offre un fort potentiel : exposition idéale, intimité, vues dégagées, liberté de conception architecturale. Ce programme est parfaitement adapté aux familles recherchant un cadre sain, sécurisé et naturel, aux actifs souhaitant vivre à la campagne tout en restant proches d’Albi et aux investisseurs cherchant un secteur très prisé, à forte valorisation patrimoniale, Un site à découvrir absolument : ici, les terrains déclenchent le coup de coeur. Envie de connaître toutes les disponibilités ? Contactez-moi pour recevoir les plans, visiter le site et réserver votre parcelle. Honoraires à la charge du vendeurVotre agent commercial 3G IMMO sur place EI – Séverine TESSON inscrite au RSAC d’ALBI n° 452 369 895 Selon l’article L.561.5 du Code Monétaire et Financier, pour l’organisation de la visite, la présentation d’une pièce d’identité vous sera demandée.Les informations sur les risques auxquels ce bien est exposé sont disponibles sur le site Géorisques : www.georisques.gouv.frLes informations sur les risques auxquels ce bien est exposé sont disponibles sur le site Géorisques : www.georisques.gouv.fr
Gaillac
TERRAINDécouvrez ce superbe terrain de 800m² en plein centre ville de GAILLAC. Ce terrain situé sur la Rue d’Alger est à seulement 15 minutes à pied du centre de la ville (et moins de 3 minutes en voiture). Très verdoyant, il est proche de toutes les commodités dont le collège Albert Camus. N’hésitez plus et venez le découvrir.
L’actualité immobilière à Lagrave
27/11/2023
02/11/2023
30/10/2023
20/10/2023
16/10/2023
16/10/2023