Maison à construire à Lescure-d'Albigeois (81380)
Images
Description
Modèle Bastide 95+20 - Élégance, charme et modernité
Maisons France Confort Albi, spécialiste de la construction traditionnelle et à ossature bois, vous présente le modèle Bastide 95+20, une maison qui marie avec raffinement l'authenticité méditerranéenne et le confort contemporain.
Son architecture, inspirée des demeures du sud de la France, séduit par ses volumes généreux et son style intemporel, idéal pour accueillir toute la famille.
Au rez-de-chaussée, vous profiterez d'une vaste pièce de vie de 42 m², lumineuse et conviviale, regroupant salon, salle à manger et cuisine ouverte. Un cellier attenant relie la cuisine au garage pour plus de praticité au quotidien.
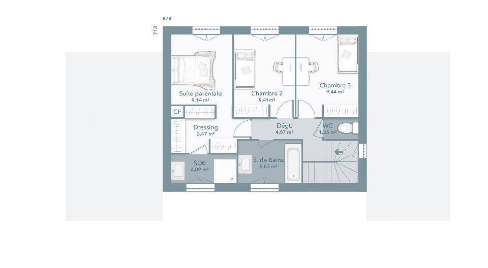
À l'étage, le palier distribue :
deux chambres confortables,
une salle de bains familiale,
des WC séparés,
ainsi qu'une suite parentale avec dressing et salle d'eau privative.
👉 Atout supplémentaire : le rez-de-chaussée accueille un espace indépendant de 20 m², pensé pour les parents, comprenant une seconde suite parentale avec dressing, salle d'eau et WC.
La Bastide 95+20 combine ainsi le charme de l'authentique, la fonctionnalité du moderne et le confort au quotidien.
📞 Contactez dès aujourd'hui Maisons France Confort Albi au (Numéro supprimé) pour plus d'informations.
ℹ️ À noter : les frais de notaire et frais annexes ne sont pas inclus dans le prix indiqué.
Annonce proposée par un Agent Commercial Partenaire.
Logement susceptibles de vous intéresser
Nous vous proposons de découvrir aussi cette sélection de logements situés à moins de 10km de Lescure-d'Albigeois et qui seraient susceptibles de vous intéresser.
Puygouzon
TERRAINPUYGOUZON – LOTISSEMENT LES HAUTS D’AL VIGNÉ 41 terrains viabilisés – 455 à 811 m² – Libres de constructeur Découvrez un cadre de vie rare, calme et verdoyant, à seulement quelques minutes d’Albi, au sein du lotissement intimiste Les Hauts d’Al Vigné, idéalement situé Rue de Belbèze à Puygouzon (81990). Points forts du programme : – Terrains entièrement viabilisés (Eau – Électricité – Télécom – Assainissement). – Surfaces encore disponibles de 547 à 816 m² adaptées à tous types de projets. – Libres de constructeur : concevez la maison qui vous ressemble. – Environnement résidentiel paisible et recherché. – Proximité immédiate : écoles, crèches, commerces, médecins, sport, services du quotidien. – Arrêt de bus des transports du Grand Albigeois à quelques pas. – Cheminements doux et espaces végétalisés préservant le cadre naturel. – Gestion des eaux pluviales intégrée (noues, jardins d’eau) pour un quartier durable. – Un cadre de vie privilégié Situé sur les hauteurs, le lotissement offre un environnement calme, sécurisé, entouré de verdure, avec des vues dégagées sur les coteaux et un accès rapide à la rocade d’Albi. Un secteur idéal pour familles, primo-accédants ou investisseurs à la recherche d’un emplacement stratégique en pleine expansion. Atouts techniques : – Règlement de lotissement garantissant une harmonie architecturale. – Possibilité d’implantation souple selon les lots. – Stationnements privatifs + places visiteurs en revêtement drainant. – Réseau complet : eau potable, assainissement, eaux pluviales maîtrisées, EDF, télécom. Pourquoi choisir Les Hauts d’Al Vigné ? Parce qu’il s’agit d’un programme premium, pensé pour allier qualité de vie, modernité et durabilité, au coeur d’une commune dynamique et très recherchée de l’agglomération albigeoise. Envie de connaître toutes les disponibilités ? Contactez-moi ! Honoraires à la charge du vendeurVotre agent commercial 3G IMMO sur place EI – Séverine TESSON inscrite au RSAC d’ALBI n° 452 369 895 Selon l’article L.561.5 du Code Monétaire et Financier, pour l’organisation de la visite, la présentation d’une pièce d’identité vous sera demandée.Les informations sur les risques auxquels ce bien est exposé sont disponibles sur le site Géorisques : www.georisques.gouv.frLes informations sur les risques auxquels ce bien est exposé sont disponibles sur le site Géorisques : www.georisques.gouv.fr
Albi
TERRAINPour donner vie à votre projet de construction, OC-RESIDENCES, constructeur de maison sur mesure depuis 1983, vous propose de venir découvrir cette parcelle de 400 m2 entièrement viabilisée sur l’agréable commune d’ ALBI au prix de 50 000 €. Si vous souhaitez avoir plus d’informations, contactez notre agence d’ ALBI au (Numéro supprimé). »Terrain en accord avec notre partenaire foncier, sous réserve de disponibilité. Prix et visuels non contractuels. Projet conforme à la RE 2020″.
Puygouzon
TERRAINPUYGOUZON – LOTISSEMENT LES HAUTS D’AL VIGNÉ 41 terrains viabilisés – 455 à 811 m² – Libres de constructeur Découvrez un cadre de vie rare, calme et verdoyant, à seulement quelques minutes d’Albi, au sein du lotissement intimiste Les Hauts d’Al Vigné, idéalement situé Rue de Belbèze à Puygouzon (81990). Points forts du programme : – Terrains entièrement viabilisés (Eau – Électricité – Télécom – Assainissement). – Surfaces encore disponibles de 547 à 816 m² adaptées à tous types de projets. – Libres de constructeur : concevez la maison qui vous ressemble. – Environnement résidentiel paisible et recherché. – Proximité immédiate : écoles, crèches, commerces, médecins, sport, services du quotidien. – Arrêt de bus des transports du Grand Albigeois à quelques pas. – Cheminements doux et espaces végétalisés préservant le cadre naturel. – Gestion des eaux pluviales intégrée (noues, jardins d’eau) pour un quartier durable. – Un cadre de vie privilégié Situé sur les hauteurs, le lotissement offre un environnement calme, sécurisé, entouré de verdure, avec des vues dégagées sur les coteaux et un accès rapide à la rocade d’Albi. Un secteur idéal pour familles, primo-accédants ou investisseurs à la recherche d’un emplacement stratégique en pleine expansion. Atouts techniques : – Règlement de lotissement garantissant une harmonie architecturale. – Possibilité d’implantation souple selon les lots. – Stationnements privatifs + places visiteurs en revêtement drainant. – Réseau complet : eau potable, assainissement, eaux pluviales maîtrisées, EDF, télécom. Pourquoi choisir Les Hauts d’Al Vigné ? Parce qu’il s’agit d’un programme premium, pensé pour allier qualité de vie, modernité et durabilité, au coeur d’une commune dynamique et très recherchée de l’agglomération albigeoise. Envie de connaître toutes les disponibilités ? Contactez-moi ! Honoraires à la charge du vendeurVotre agent commercial 3G IMMO sur place EI – Séverine TESSON inscrite au RSAC d’ALBI n° 452 369 895 Selon l’article L.561.5 du Code Monétaire et Financier, pour l’organisation de la visite, la présentation d’une pièce d’identité vous sera demandée.Les informations sur les risques auxquels ce bien est exposé sont disponibles sur le site Géorisques : www.georisques.gouv.frLes informations sur les risques auxquels ce bien est exposé sont disponibles sur le site Géorisques : www.georisques.gouv.fr
Albi
TERRAINPour donner vie à votre projet de construction, OC-RESIDENCES, constructeur de maison sur mesure depuis 1983, vous propose de venir découvrir cette parcelle de 350 m2 entièrement viabilisée, à ALBI au prix de 44000 €. Si vous souhaitez avoir plus d’informations, contactez notre agence d’ ALBI au (Numéro supprimé). »Terrain en accord avec notre partenaire foncier, sous réserve de disponibilité. Prix et visuels non contractuels. Projet conforme à la RE 2020″.
Puygouzon
TERRAINPUYGOUZON – LOTISSEMENT LES HAUTS D’AL VIGNÉ 41 terrains viabilisés – 455 à 811 m² – Libres de constructeur Découvrez un cadre de vie rare, calme et verdoyant, à seulement quelques minutes d’Albi, au sein du lotissement intimiste Les Hauts d’Al Vigné, idéalement situé Rue de Belbèze à Puygouzon (81990). Points forts du programme : – Terrains entièrement viabilisés (Eau – Électricité – Télécom – Assainissement). – Surfaces encore disponibles de 547 à 816 m² adaptées à tous types de projets. – Libres de constructeur : concevez la maison qui vous ressemble. – Environnement résidentiel paisible et recherché. – Proximité immédiate : écoles, crèches, commerces, médecins, sport, services du quotidien. – Arrêt de bus des transports du Grand Albigeois à quelques pas. – Cheminements doux et espaces végétalisés préservant le cadre naturel. – Gestion des eaux pluviales intégrée (noues, jardins d’eau) pour un quartier durable. – Un cadre de vie privilégié Situé sur les hauteurs, le lotissement offre un environnement calme, sécurisé, entouré de verdure, avec des vues dégagées sur les coteaux et un accès rapide à la rocade d’Albi. Un secteur idéal pour familles, primo-accédants ou investisseurs à la recherche d’un emplacement stratégique en pleine expansion. Atouts techniques : – Règlement de lotissement garantissant une harmonie architecturale. – Possibilité d’implantation souple selon les lots. – Stationnements privatifs + places visiteurs en revêtement drainant. – Réseau complet : eau potable, assainissement, eaux pluviales maîtrisées, EDF, télécom. Pourquoi choisir Les Hauts d’Al Vigné ? Parce qu’il s’agit d’un programme premium, pensé pour allier qualité de vie, modernité et durabilité, au coeur d’une commune dynamique et très recherchée de l’agglomération albigeoise. Envie de connaître toutes les disponibilités ? Contactez-moi ! Honoraires à la charge du vendeurVotre agent commercial 3G IMMO sur place EI – Séverine TESSON inscrite au RSAC d’ALBI n° 452 369 895 Selon l’article L.561.5 du Code Monétaire et Financier, pour l’organisation de la visite, la présentation d’une pièce d’identité vous sera demandée.Les informations sur les risques auxquels ce bien est exposé sont disponibles sur le site Géorisques : www.georisques.gouv.frLes informations sur les risques auxquels ce bien est exposé sont disponibles sur le site Géorisques : www.georisques.gouv.fr
Puygouzon
TERRAINPUYGOUZON – LOTISSEMENT LES HAUTS D’AL VIGNÉ 41 terrains viabilisés – 455 à 811 m² – Libres de constructeur Découvrez un cadre de vie rare, calme et verdoyant, à seulement quelques minutes d’Albi, au sein du lotissement intimiste Les Hauts d’Al Vigné, idéalement situé Rue de Belbèze à Puygouzon (81990). Points forts du programme : – Terrains entièrement viabilisés (Eau – Électricité – Télécom – Assainissement). – Surfaces encore disponibles de 547 à 816 m² adaptées à tous types de projets. – Libres de constructeur : concevez la maison qui vous ressemble. – Environnement résidentiel paisible et recherché. – Proximité immédiate : écoles, crèches, commerces, médecins, sport, services du quotidien. – Arrêt de bus des transports du Grand Albigeois à quelques pas. – Cheminements doux et espaces végétalisés préservant le cadre naturel. – Gestion des eaux pluviales intégrée (noues, jardins d’eau) pour un quartier durable. – Un cadre de vie privilégié Situé sur les hauteurs, le lotissement offre un environnement calme, sécurisé, entouré de verdure, avec des vues dégagées sur les coteaux et un accès rapide à la rocade d’Albi. Un secteur idéal pour familles, primo-accédants ou investisseurs à la recherche d’un emplacement stratégique en pleine expansion. Atouts techniques : – Règlement de lotissement garantissant une harmonie architecturale. – Possibilité d’implantation souple selon les lots. – Stationnements privatifs + places visiteurs en revêtement drainant. – Réseau complet : eau potable, assainissement, eaux pluviales maîtrisées, EDF, télécom. Pourquoi choisir Les Hauts d’Al Vigné ? Parce qu’il s’agit d’un programme premium, pensé pour allier qualité de vie, modernité et durabilité, au coeur d’une commune dynamique et très recherchée de l’agglomération albigeoise. Envie de connaître toutes les disponibilités ? Contactez-moi ! Honoraires à la charge du vendeurVotre agent commercial 3G IMMO sur place EI – Séverine TESSON inscrite au RSAC d’ALBI n° 452 369 895 Selon l’article L.561.5 du Code Monétaire et Financier, pour l’organisation de la visite, la présentation d’une pièce d’identité vous sera demandée.Les informations sur les risques auxquels ce bien est exposé sont disponibles sur le site Géorisques : www.georisques.gouv.frLes informations sur les risques auxquels ce bien est exposé sont disponibles sur le site Géorisques : www.georisques.gouv.fr
Taïx
TERRAIN ET MAISONDécouvrez le modèle Elza, une maison design et moderne et élégant, parfaite pour une famille. Avec une superficie de 89 m², trois chambres confortables, dont une avec un dressing. Une salle de bain fonctionnelle et un WC séparé. La pièce de vie spacieuse de 43 m² est lumineuse et offre un espace d’agréable grâce à sa cuisine ouverte, idéale pour partager des moments conviviaux. Cette maison allie confort et esthétisme, faisant d’elle un lieu de vie parfait pour la famille. Sur un beau terrain de 1023 m² sur la commune de TAIX.
Taïx
TERRAINÀ Taïx une petite commune du département du Tarn, située à proximité de Carmaux et à environ 20 km d’Albi. C’est un village calme et rural, apprécié pour son cadre verdoyant et sa qualité de vie., découvrez ce terrain constructible de 1023 m² idéal pour réaliser votre projet de maison. La parcelle offre un beau potentiel d’aménagement, avec un emplacement apprécié pour sa tranquillité tout en restant proche des services et des axes principaux.Parfait pour une résidence principale ou secondaire, ce terrain permet de construire dans un cadre naturel, paisible et sécurisé.
Lescure-d'Albigeois
TERRAINTerrain naturel 3 192 m² en zone NS, pourvu d’une bambouseraie, à proximité du Tarn, Lescure-d’Albigeois.Au calme, en pleine nature, découvrez ce terrain plat de 3 192 m² classé zone NS, pourvu d’une bambouseraie et situé à proximité de la rivière du Tarn. Un havre de paix riche de possibilités d’évasion : calme, nature, randonnées, promenades, pêches. Avec accès proche à la mise à l’eau, idéal pour pêcheurs ou promenades en bateau.Lescure-d’Albigeois : terrain situé à proximité de la rivière du Tarn, avec accès proche à une mise à l’eau. Environnement préservé, sentiers de randonnée à portée de main et ambiance naturelle remarquable.Caractéristiques du terrain:Surface : 3 192 m², terrain plat et facilement exploitable.Végétation : pourvu d’une bambouseraie déjà implantée, milieux favorables à la biodiversité.Réseaux : compteur électrique à proximité.Accès : chemins de randonnée et accès piétonniers; mise à l’eau proche pour activités nautiques.Usages autorisés :Activité pastorale : pâturage pour chevaux, ânes ou moutons; clôtures mobiles ou naturelles; parcelles de repos ou de rotation.Activité maraîchère : cultures de légumes, fruits rouges, plantes aromatiques; permaculture ou agroforesterie; production de fleurs ou plantes médicinales.Micro-activités agricoles : apiculture (ruches mobiles); culture de bambous (existant); cueillette libre ou vente directe en bord de chemin (sans construction).Valorisation écologique et pédagogique : sentier botanique, poste d’observation de la faune, accueil de groupes scolaires ou randonneurs (sans hébergement).Atouts principaux :Cadre naturel exceptionnel et rare à proximité de la rivière.Surface plate facilitant l’exploitation et l’aménagement non bâti.Proximité des réseaux (électricité à proximité).Biodiversité riche et environnement préservé, parfait pour projets agricoles doux, pédagogiques ou de loisir nature.Havre de paix offrant de nombreuses possibilités d’évasion : calme, promenades, randonnées et activités de pêche.Points pratiquesUsage soumis au classement zone NS : activités compatibles listées ci-dessus; pas d’implantation de bâti permanent.Accès routier et chemins de randonnée existants.Mise à l’eau à proche, pratique pour pêche et promenades en rivière. Les informations sur les risques auxquels ce bien est exposé sont disponibles sur le site Géorisques : www.georisques.gouv.fr »
L’actualité immobilière à Lescure-d'Albigeois
27/11/2023
02/11/2023
30/10/2023
20/10/2023
16/10/2023
16/10/2023