Maison à construire à Lisle-sur-Tarn (81310)
Images
Description
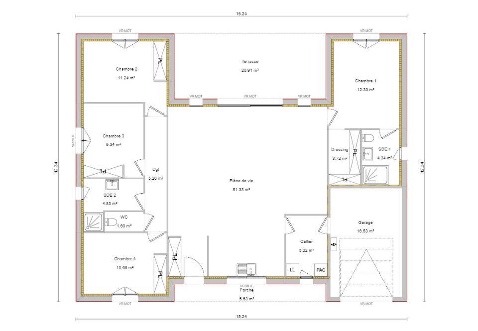
Lisle-sur-Tarn : maison T5 (120 m²) en vente
MAISON 5 PIÈCES NEUVE - PROCHE GAILLAC
En vente à quelques kilomètres d'Albi, nous sommes heureux de vous proposer à Lisle-sur-Tarn (81310), cette maison de 5 pièces de plain-pied de 120 m². Elle compte quatre chambres, une cuisine et deux salles de bains.
Le terrain du bien est de 399 m².
La maison est neuve.
Elle est à vendre pour la somme de 276 000 €.
Contactez votre agence Maisons France Confort au (Numéro supprimé) pour obtenir de plus amples renseignements sur cette maison ou sur les démarches à suivre. Concrétisez vos projets immobiliers avec Maisons France Confort Albi.
Annonce proposée par un Agent Commercial Partenaire.
Logement susceptibles de vous intéresser
Nous vous proposons de découvrir aussi cette sélection de logements situés à moins de 10km de Lisle-sur-Tarn et qui seraient susceptibles de vous intéresser.
Rabastens
TERRAIN ET MAISONLe modèle Manon est une maison de plain-pied de 90 m² à l’architecture contemporaine et épurée. Elle s’articule autour de trois chambres avec placard, d’une salle de bain et d’un wc séparé. La pièce de vie est fonctionnelle avec une cuisine ouverte sur le séjour de plus de 40m² .Garage en option.Tous nos modèles de maison peuvent être personnalisés en fonction de vos besoins et envies !Nous vous présentons, dans la commune de Rabastens, ce beau terrain viabilisé et pourvu du tout à l’égout d’une superficie de 589 m². Situé à 5 minutes de l’autoroute A8, il est issu d’une division parcellaire et se positionne à 10 minutes seulement de St Sulpice.N’hésitez plus, contactez notre agence et programmez votre visite !
Rabastens
TERRAINTerrain à vendre à Rabastens – Opportunité rare !Maisons France Confort Albi, constructeur reconnu de maisons traditionnelles et à ossature bois, vous propose en exclusivité ce magnifique terrain à bâtir de 1 180 m², entièrement viabilisé, situé dans un lotissement intimiste composé de seulement 6 grandes parcelles.Idéalement situé à Rabastens, ce terrain bénéficie d’un environnement résidentiel paisible, tout en étant proche du centre-ville, des commerces, des écoles et des commodités du quotidien. L’accès rapide à l’autoroute A68 vous permet de rejoindre Toulouse en seulement 40 minutes, ce qui en fait un emplacement idéal pour les actifs ou les familles en quête d’un cadre de vie serein, sans pour autant s’éloigner des pôles urbains.Son emplacement stratégique, dans un secteur prisé, conjugué à la qualité du cadre de vie offert, en fait une opportunité rare à saisir rapidement.👉 Ne manquez pas cette occasion de construire la maison de vos rêves dans un environnement privilégié !📞 Pour plus d’informations, contactez Maisons France Confort Albi au (Numéro supprimé).Annonce proposée par un Agent Commercial Partenaire.
Rabastens
TERRAIN ET MAISON✨ Vous rêvez d’une maison de plain-pied fonctionnelle et lumineuse ?Maisons France Confort Albi, spécialiste de la construction de maisons traditionnelles et à ossature bois, vous présente le modèle Optima – 75 m², une maison pensée pour conjuguer confort, efficacité et modernité.🏡 Modèle Optima – 75 m² : un concentré de bien-êtreCe modèle astucieusement conçu propose une organisation optimale de l’espace :3 chambres avec placards intégrés pour accueillir toute la famille ou aménager un bureau,Un espace de vie lumineux, convivial et ouvert,Un cellier pratique pour le rangement et les équipements,Un garage intégré, idéal pour sécuriser votre véhicule ou stocker vos outils.Cette maison s’adapte aussi bien aux jeunes couples actifs qu’aux retraités en quête de simplicité et de confort de vie au quotidien.📍 Un emplacement de choixSituée dans un secteur dynamique et agréable, proche de nombreux commerces de proximité :SupermarchésBoulangeriesPoissonnerieSupérette…tout est à portée de main pour faciliter votre quotidien.👉 Ne repoussez plus votre projet de vie !📞 Contactez dès maintenant notre agence Maisons France Confort Albi au (Numéro supprimé) pour plus d’informations ou pour planifier un rendez-vous.ℹ️ Frais de notaire et frais annexes non inclus dans le prix annoncé.Annonce proposée par un Agent Commercial Partenaire.
Rabastens
TERRAIN ET MAISON🏡 Modèle Actua 95 – Élégance, confort et modernité au quotidienMaisons France Confort Albi, constructeur de maisons traditionnelles et à ossature bois, vous présente le modèle Actua 95 : une maison moderne et raffinée, pensée pour offrir bien-être, luminosité et praticité à toute la famille.Son plan astucieusement agencé optimise chaque mètre carré afin de concilier confort et fonctionnalité dans un style résolument contemporain.✨ Un espace jour convivial et lumineuxAu coeur de la maison, l’espace de vie de 43 m² séduit par sa cuisine ouverte sur un salon-séjour spacieux, baigné de lumière naturelle grâce à de larges ouvertures.Un cellier fonctionnel et des WC indépendants viennent compléter ce rez-de-chaussée, pensé pour simplifier le quotidien.🌙 Un espace nuit intime et bien organiséL’espace nuit se compose d’une suite parentale avec dressing et salle d’eau privative, ainsi que de deux chambres équipées de placards, idéales pour enfants, amis ou bureau.Une salle de bains moderne avec WC vient parfaire cet espace à la fois confortable et harmonieux.🏗️ Un design sobre et contemporainLe garage accolé en façade avant souligne le caractère architectural de la maison tout en apportant praticité et rangements supplémentaires.Ses lignes épurées et ses volumes équilibrés confèrent à l’Actua 95 une allure à la fois moderne et intemporelle, parfaitement adaptée à tout type d’environnement.💬 Les atouts du modèle Actua 95Maison lumineuse et agréable à vivreAgencement fonctionnel et bien penséSuite parentale avec dressing et salle d’eau privativeGarage accolé et architecture contemporainePersonnalisable selon vos goûts et votre mode de vie📞 Donnez vie à votre projet dès aujourd’hui !Contactez Maisons France Confort Albi au (Numéro supprimé) pour plus d’informations ou pour une étude personnalisée de votre maison.ℹ️ Les frais de notaire et autres frais annexes ne sont pas inclus da
Rabastens
TERRAIN ET MAISONModèle Terra 104 – Villa moderne en ossature boisProposée par Maisons France Confort AlbiMaisons France Confort Albi, constructeur de référence en maisons traditionnelles et à ossature bois, vous présente le modèle Terra, une villa contemporaine de 104 m² alliant design moderne, luminosité naturelle et fonctionnalité optimale.Ce modèle a été imaginé pour offrir un confort de vie exceptionnel au quotidien, dans une atmosphère chaleureuse et épurée.🏡 Espace jour – Confort et convivialitéDès l’entrée, laissez-vous séduire par une vaste pièce de vie de 46 m², véritable coeur de la maison.Traversante et baignée de lumière grâce à deux grandes baies vitrées coulissantes et une fenêtre côté cuisine, elle offre une ouverture directe sur le jardin et une ambiance conviviale et lumineuse tout au long de la journée.Un cellier de 5 m², attenant à la cuisine, assure une parfaite fonctionnalité et permet un accès direct au garage intégré de 14 m².Un WC indépendant complète intelligemment cet espace.🛏️ Espace nuit – Calme et intimitéLe coin nuit se compose de :Quatre chambres lumineuses, de 10,44 m² à 11,80 m², idéales pour accueillir toute la famille,Une salle de bains élégante et fonctionnelle, équipée d’une vasque, d’une baignoire et d’un WC.Chaque espace a été pensé pour offrir bien-être, intimité et praticité au quotidien.🌿 Un modèle pensé pour la vie moderneLa villa Terra 104 séduit par son plan optimisé, son esthétique contemporaine et ses excellentes performances énergétiques, caractéristiques de la construction à ossature bois.Ce modèle est idéal pour les familles recherchant une maison durable, confortable et respectueuse de l’environnement, sans compromis sur le style.📞 Coup de coeur garanti !Ne tardez plus à concrétiser votre projet de vie.Contactez Maisons France Confort Albi au (Numéro supprimé) pour obtenir davantage d’informations ou personnaliser votre future villa selon vos envies.ℹᥧ
Rabastens
TERRAIN ET MAISONModèle Bastide Maison traditionnelle de 145 m²Proposée par Maisons France Confort AlbiMaisons France Confort Albi, spécialiste de la construction traditionnelle et à ossature bois, vous présente le modèle Bastide 145 m² : une maison élégante, spacieuse et intemporelle, pensée pour s’intégrer harmonieusement dans les grands terrains arborés du Sud de la France.Une architecture équilibrée et lumineuseInspirée du charme des bastides méridionales, cette maison se distingue par une composition symétrique raffinée et de larges ouvertures au rez-de-chaussée, qui apportent une luminosité naturelle exceptionnelle tout en préservant l’élégance et l’équilibre de la façade.Un rez-de-chaussée convivial et fonctionnelLe rez-de-chaussée accueille une spacieuse pièce de vie de 55 m², idéale pour les moments de partage en famille.Une suite parentale de 20 m², isolée du reste des chambres, offre un espace intime et confortable, avec la possibilité d’intégrer un dressing et une salle d’eau privative.Un garage accolé de 19 m², relié directement au cellier puis à la cuisine, facilite les accès et la circulation au quotidien.Un étage dédié à la vie de familleL’étage est entièrement réservé à l’espace nuit et comprend quatre chambres confortables, idéales pour accueillir une grande famille ou créer des espaces modulables (bureau, salle de jeux, chambre d’amis…).L’alliance parfaite de tradition et de modernitéLe modèle Bastide 125 + 20 allie le charme de la tradition méridionale à des volumes généreux et fonctionnels, pour un art de vivre à la fois chaleureux, lumineux et contemporain.Sa conception sur mesure permet de personnaliser les finitions, matériaux et aménagements selon vos envies.📞 Envie d’en savoir plus ?Contactez Maisons France Confort Albi au (Numéro supprimé).Nos conseillers vous accompagnent à chaque étape de votre projet, de la conception à la remise des clés.ℹ️ À noter : les frais de notaire et autres frais annexes (viabili
Rabastens
TERRAIN ET MAISONModèle Optima Plain-pied 125 m²Confort familial optimisé Luminosité ErgonomieMaisons France Confort Albi, spécialiste de la construction traditionnelle et à ossature bois, vous présente le modèle Optima, un plain-pied de 125 m² pensé pour la vie de famille : fonctionnalité, circulation fluide et luminosité au coeur du projet.Un plan réfléchi pour le quotidienPièce de vie centrale : un vaste séjour traversant, lumineux et convivial, conçu pour accueillir salon, salle à manger et cuisine ouverte. Les larges ouvertures favorisent la continuité intérieur / extérieur et créent un espace de vie agréable toute l’année.Espace enfants / jour : trois chambres dédiées aux enfants (ou invités) et un bureau agencés pour préserver calme et intimité tout en restant proches de la pièce de vie.Espace parents / nuit : suite parentale privative avec salle d’eau et dressing, offrant un véritable cocon intime et fonctionnel.Praticité : cellier attenant au garage avec accès direct à la cuisine, pour faciliter les allers-retours, le rangement des courses et les usages quotidiens.Atouts fonctionnelsSéparation claire jour / nuit pour un confort acoustique et une meilleure organisation des circulation.Nombreux rangements possibles : placards intégrés, cellier, garage tout est prévu pour une maison ordonnée et facile à vivre.Plain-pied : accessibilité, sécurité et confort pour toutes les étapes de la vie (jeunesse, famille, seniors).Confort, performances et personnalisationConception compatible avec des solutions techniques modernes : isolation performante, systèmes de chauffage performants, et options éco-responsables (pompe à chaleur, panneaux solaires, etc.).Plans modulables : possibilité d’adapter l’organisation intérieure, les finitions et les prestations (cuisine sur mesure, extension de garage, pergola, pose de volets roulants motorisés, etc.) selon vos besoins et votre budget.Pourquoi choisir l’Optima ?Vous recherchez un plain-pied spacieux alliant
Lisle-sur-Tarn
TERRAIN ET MAISONLe modèle Quatre Saisons est une maison à étage qui vous plaira par sa simplicité et son agencement pensé pour améliorer votre confort de vie. Au rez de chaussée, vous disposerez d’un espace vie de 39 m² communiquant sur un garage, d’une belle suite parentale indépendante de 17 m² et d’un coin rangement avec un WC indépendant. A l’étage, vous trouverez deux belles chambres avec une salle de bains. Cette maison est à construire dans le département du Tarn, l’Aude, l’Hérault, la Haute-Garonne ainsi que les Pyrénées Orientales par Oc résidences, votre constructeur sur mesure en Occitanie.
Montans
TERRAIN ET MAISONLa millenium 4 chambres est le plain-pied idéal pour toute la famille. La villa se compose d’un vaste et lumineux Salon/Séjour doté d’une grande baie vitrée. Le coté nuit s’articule autour de 4 chambres avec placard, un WC indépendant et une grande salle de bains. Cette maison, d’architecture sobre et élégante, est à construire dans le département du Tarn, l’Aude, l’Hérault, la Haute-Garonne ainsi que les Pyrénées Orientales par Oc résidences, votre constructeur sur mesure en Occitanie.
L’actualité immobilière à Lisle-sur-Tarn
27/11/2023
02/11/2023
30/10/2023
20/10/2023
16/10/2023
16/10/2023