Maison à construire à Puygouzon (81990)
Images
Description
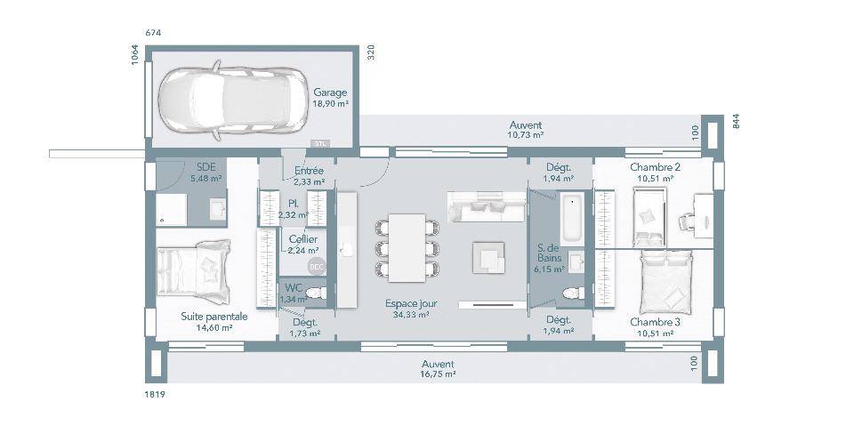
Puygouzon : maison F5 (95 m²) en vente
PROCHE D'ALBI - MAISON 5 PIÈCES NEUVE
En vente à deux pas d'Albi, ayez le coup de coeur pour cette maison de 5 pièces de plain-pied de 95 m² à Puygouzon (81990). Son intérieur propose trois chambres, une cuisine et deux salles de bains.
Le terrain de la propriété s'étend sur 685 m².
La maison est neuve.
Elle est proposée à l'achat pour 321 000 €.
Contactez notre agence Maisons France Confort Albi au (Numéro supprimé) pour obtenir de plus amples renseignements sur cette propriété, sur les modalités de vente ou sur les démarches à suivre. Maisons France Confort Albi vous accompagne à toutes les étapes de l'achat et dans tous vos projets immobiliers.
Annonce proposée par un Agent Commercial Partenaire.
Logement susceptibles de vous intéresser
Nous vous proposons de découvrir aussi cette sélection de logements situés à moins de 10km de Puygouzon et qui seraient susceptibles de vous intéresser.
Poulan-Pouzols
TERRAINTerrain à vendre – 1 071 m² à Poulan-PouzolsIdéalement situé, à proximité immédiate d’AlbiMaisons France Confort Albi, constructeur reconnu de maisons traditionnelles et à ossature bois, vous propose à la vente ce magnifique terrain de 1 071 m² situé à Poulan-Pouzols, à seulement quelques kilomètres d’Albi.Bénéficiant d’une exposition plein sud et d’une vue dégagée sur la campagne environnante, ce terrain offre un cadre de vie paisible et lumineux, idéal pour concrétiser votre projet de construction.Concernant la viabilisation, seuls les raccordements EDF et l’assainissement individuel restent à prévoir.💰 Prix de vente : 67 473 €📞 Pour tout renseignement complémentaire sur ce terrain, les démarches à suivre ou les modalités de vente, contactez Maisons France Confort Albi au (Numéro supprimé).Donnez vie à votre projet immobilier avec l’accompagnement personnalisé de Maisons France Confort Albi.Annonce proposée par un Agent Commercial Partenaire.
Poulan-Pouzols
TERRAIN ET MAISONMaison de plain-pied – Plan fonctionnel et évolutif signé Maisons France Confort AlbiMaisons France Confort Albi vous propose ce modèle de maison de plain-pied à l’agencement optimisé, alliant modernité, fonctionnalité et confort au quotidien.L’habitation s’organise autour d’un espace de vie central de 23,91 m², comprenant un séjour lumineux et une cuisine ouverte. Les ouvertures ont été judicieusement positionnées pour profiter pleinement de la lumière naturelle tout au long de la journée.Le coin nuit accueille deux chambres confortables, de 10,04 m² et 10,12 m², situées côte à côte pour offrir un cadre intime et reposant. Une salle d’eau de 4,56 m², équipée d’une douche, complète cet espace, desservi par un dégagement compact de 0,75 m², conçu pour minimiser les pertes d’espace.Un garage accolé de 18,09 m², accessible directement depuis la cuisine, peut être ajouté pour plus de praticité idéal pour stationner un véhicule ou créer un espace de rangement supplémentaire.Un plan pensé pour évoluer avec vousGrâce à sa conception intelligente, ce modèle est entièrement évolutif. Il est possible d’envisager des extensions sur les côtés ou à l’arrière, pour ajouter une chambre supplémentaire, un bureau, ou encore une pièce de détente, selon l’évolution de vos besoins.Ce plan modulable en fait une maison durable, qui s’adaptera facilement à tous vos projets de vie.📞 Contactez dès maintenant Maisons France Confort Albi au (Numéro supprimé) pour plus d’informations et concrétisez votre projet de vie.À noter : Les frais de notaire et frais annexes ne sont pas inclus dans le prix indiqué.Annonce proposée par un Agent Commercial Partenaire.
Poulan-Pouzols
TERRAIN ET MAISONProjet de maison de plain-pied – 71 m² – proposé par Maisons France Confort AlbiMaisons France Confort Albi, constructeur reconnu pour son savoir-faire en maisons traditionnelles et à ossature bois, vous présente ce projet de maison de plain-pied de 71 m², alliant confort moderne, fonctionnalité et qualité de vie.Pensée pour répondre aux besoins du quotidien, cette maison séduit par son plan optimisé et ses espaces baignés de lumière.🏡 Espace jour : convivialité et luminositéLe coeur de la maison s’articule autour d’une grande pièce de vie de 37 m², intégrant un salon spacieux, une salle à manger conviviale et une cuisine ouverte favorisant les échanges et la clarté naturelle.Un cellier de 4,5 m², directement accessible depuis la cuisine, permet un accès pratique au garage de 15 m² idéal pour stationner un véhicule ou aménager un espace de rangement supplémentaire.🌙 Espace nuit : calme et intimitéLa partie nuit, parfaitement isolée du séjour, comprend :Deux chambres confortables de 11,35 m² et 10,50 m²,Une salle de bains fonctionnelle de 4,5 m²,Un dégagement optimisé, limitant toute perte de surface et facilitant la circulation.Ce modèle de plain-pied offre un cadre de vie harmonieux et facile à vivre, adapté aux jeunes couples, primo-accédants, seniors ou à toute personne recherchant un habitat pratique, durable et évolutif.📞 N’attendez plus ! Contactez Maisons France Confort Albi au (Numéro supprimé) pour découvrir toutes les possibilités de personnalisation et concrétiser votre projet immobilier en toute sérénité.ℹ️ À noter : Les frais de notaire et autres frais annexes ne sont pas inclus dans le prix indiqué.Annonce proposée par un Agent Commercial Partenaire.
Poulan-Pouzols
TERRAIN ET MAISON🏡 Modèle Actua 95 – Élégance, confort et modernité au quotidienMaisons France Confort Albi, constructeur de maisons traditionnelles et à ossature bois, vous présente le modèle Actua 95 : une maison moderne et raffinée, pensée pour offrir bien-être, luminosité et praticité à toute la famille.Son plan astucieusement agencé optimise chaque mètre carré afin de concilier confort et fonctionnalité dans un style résolument contemporain.✨ Un espace jour convivial et lumineuxAu coeur de la maison, l’espace de vie de 43 m² séduit par sa cuisine ouverte sur un salon-séjour spacieux, baigné de lumière naturelle grâce à de larges ouvertures.Un cellier fonctionnel et des WC indépendants viennent compléter ce rez-de-chaussée, pensé pour simplifier le quotidien.🌙 Un espace nuit intime et bien organiséL’espace nuit se compose d’une suite parentale avec dressing et salle d’eau privative, ainsi que de deux chambres équipées de placards, idéales pour enfants, amis ou bureau.Une salle de bains moderne avec WC vient parfaire cet espace à la fois confortable et harmonieux.🏗️ Un design sobre et contemporainLe garage accolé en façade avant souligne le caractère architectural de la maison tout en apportant praticité et rangements supplémentaires.Ses lignes épurées et ses volumes équilibrés confèrent à l’Actua 95 une allure à la fois moderne et intemporelle, parfaitement adaptée à tout type d’environnement.💬 Les atouts du modèle Actua 95Maison lumineuse et agréable à vivreAgencement fonctionnel et bien penséSuite parentale avec dressing et salle d’eau privativeGarage accolé et architecture contemporainePersonnalisable selon vos goûts et votre mode de vie📞 Donnez vie à votre projet dès aujourd’hui !Contactez Maisons France Confort Albi au (Numéro supprimé) pour plus d’informations ou pour une étude personnalisée de votre maison.ℹ️ Les frais de notaire et autres frais annexes ne sont pas inclus da
Poulan-Pouzols
TERRAIN ET MAISONModèle Optima – Maison de plain-pied de 103 m² – 4 chambresMaisons France Confort Albi, spécialiste reconnu de la construction traditionnelle et à ossature bois, vous présente le modèle Optima : une maison de plain-pied de 103 m², pensée pour répondre aux attentes des familles modernes en quête de confort, de fonctionnalité et de luminosité.Une organisation des espaces parfaitement optimiséeEspace jourProfitez d’une grande pièce de vie traversante de 37 m², regroupant salon, salle à manger et cuisine ouverte, pour un cadre de vie convivial et lumineux.Un cellier relie intelligemment l’espace cuisine au garage attenant, offrant un accès pratique et des rangements supplémentaires au quotidien.Espace nuitL’espace nuit est bien séparé pour plus d’intimité. Il se compose de 3 à 4 chambres selon vos besoins, toutes équipées de placards intégrés.Vous y trouverez également une suite parentale avec salle d’eau privative, véritable espace de confort pour les parents.Une maison pensée pour la vie de familleChaque volume a été soigneusement étudié pour créer un intérieur harmonieux, fonctionnel et agréable à vivre, avec un agencement fluide et une belle luminosité naturelle dans toutes les pièces. Le modèle Optima est idéal pour créer un cocon familial chaleureux et accueillant.📞 Contactez dès maintenant Maisons France Confort Albi au (Numéro supprimé) pour découvrir ce modèle et être accompagné dans votre projet de construction personnalisé.Frais de notaire et frais annexes non inclus dans le prix affiché.Annonce proposée par un Agent Commercial Partenaire.
Poulan-Pouzols
TERRAIN ET MAISONModèle Lumi Maison ossature bois, plain-pied 113 m²Maisons France Confort Albi vous présente le modèle Lumi, une maison plain-pied en ossature bois de 113 m² alliant volumes généreux, luminosité et agencement réfléchi idéale pour une vie de famille moderne, confortable et économe en énergie.Espace jour convivialité et lumièrePièce de vie : 45 m²Vaste espace traversant favorisant la circulation et la luminosité naturelle. Cuisine ouverte possible, circulation fluide entre les zones salon, salle à manger et accès direct au cellier/groupe service.Espace nuit confort et intimitéSuite parentale : 18 m²Suite généreuse avec dressing, salle d’eau privative (douche + vasque) et WC intégré un espace intime et fonctionnel.3 chambres supplémentaires : surfaces comprises entre 10,60 m² et 12,12 m², toutes faciles à aménager.Salle de bains (familiale) et WC indépendant pour plus de confort au quotidien.Annexes et rangementCellier : 6,80 m², accessible depuis la pièce de vie et communicant avec le garage pratique pour les courses et le stockage.Garage intégré : 15 m², attenant, offrant stationnement et rangement supplémentaire.Points forts du modèle LumiConception ossature bois : performance thermique, confort intérieur et esthétique contemporaine.Plain-pied : accessibilité, simplicité d’usage et confort pour tous les âges.Volumes généreux et nombreux rangements pour une maison facile à vivre.Possibilités de personnalisation : choix des finitions, implantation des baies vitrées, options énergie (isolation renforcée, pompe à chaleur, panneaux solaires), aménagements extérieurs (pergola, terrasse, terrassement)…Pour qui ?Ce modèle convient aux familles souhaitant vivre sur un seul niveau sans sacrifier l’espace ni le confort : suite parentale, chambres bien dimensionnées, cellier pratique et garage intégré.📞 Pour une étude personnalisée de votre projet et un chiffrage :Maisons France Confort Albi (Numéro supprimé)📝 Nous
Albi
TERRAINMaisons France Confort Albi, constructeur reconnu de maisons traditionnelles et à ossature bois, vous propose une opportunité rare : un terrain idéalement situé, à seulement quelques minutes à pied du centre-ville d’Albi.Situé à proximité immédiate de l’espace aquatique Atlantis et de l’ensemble des commodités (commerces, écoles, transports), ce terrain bénéficie d’un emplacement privilégié, alliant confort de vie et accessibilité.Un terrain d’exception au coeur d’AlbiCe terrain, non viabilisé mais avec les réseaux disponibles en bordure, offre de multiples possibilités de construction. Un système d’assainissement individuel sera à prévoir.Son emplacement stratégique et son cadre de vie recherché en font une opportunité unique sur le marché immobilier albigeois idéale pour concrétiser votre projet de maison sur mesure avec un constructeur de confiance.Ne laissez pas passer cette chance !Contactez dès aujourd’hui l’agence Maisons France Confort Albi au (Numéro supprimé) pour obtenir plus d’informations et étudier ensemble votre projet de construction.Annonce proposée par un Agent Commercial Partenaire.
Albi
TERRAIN ET MAISONProjet de maison de plain-pied – 71 m² – proposé par Maisons France Confort AlbiMaisons France Confort Albi, constructeur reconnu pour son savoir-faire en maisons traditionnelles et à ossature bois, vous présente ce projet de maison de plain-pied de 71 m², alliant confort moderne, fonctionnalité et qualité de vie.Pensée pour répondre aux besoins du quotidien, cette maison séduit par son plan optimisé et ses espaces baignés de lumière.🏡 Espace jour : convivialité et luminositéLe coeur de la maison s’articule autour d’une grande pièce de vie de 37 m², intégrant un salon spacieux, une salle à manger conviviale et une cuisine ouverte favorisant les échanges et la clarté naturelle.Un cellier de 4,5 m², directement accessible depuis la cuisine, permet un accès pratique au garage de 15 m² idéal pour stationner un véhicule ou aménager un espace de rangement supplémentaire.🌙 Espace nuit : calme et intimitéLa partie nuit, parfaitement isolée du séjour, comprend :Deux chambres confortables de 11,35 m² et 10,50 m²,Une salle de bains fonctionnelle de 4,5 m²,Un dégagement optimisé, limitant toute perte de surface et facilitant la circulation.Ce modèle de plain-pied offre un cadre de vie harmonieux et facile à vivre, adapté aux jeunes couples, primo-accédants, seniors ou à toute personne recherchant un habitat pratique, durable et évolutif.📞 N’attendez plus ! Contactez Maisons France Confort Albi au (Numéro supprimé) pour découvrir toutes les possibilités de personnalisation et concrétiser votre projet immobilier en toute sérénité.ℹ️ À noter : Les frais de notaire et autres frais annexes ne sont pas inclus dans le prix indiqué.Annonce proposée par un Agent Commercial Partenaire.
Albi
TERRAIN ET MAISONMaison Plain-Pied Design – 101 m² · 4 chambres · Garage 15 m²Maisons France Confort Albi confort, fonctionnalité et lumièreMaisons France Confort Albi, constructeur de maisons traditionnelles et à ossature bois, vous présente ce modèle Plain-Pied Design de 101 m², l’un des plus spacieux de la gamme Open. Pensée pour la vie de famille, cette maison allie volumes généreux, agencement pratique et grande luminosité.Un plan optimisé pour la vie familialeSurface habitable : 101 m² une distribution des pièces qui privilégie la convivialité et le confort.4 chambres dont une suite parentale pouvant être équipée, en option, d’un dressing et d’un coin bureau pour un espace intime et modulable.Garage intégré : 15 m², attenant et pratique au quotidien.Cellier : 3,36 m², directement accessible depuis la cuisine/garage pour un rangement facile et une circulation fluide.Des espaces lumineux et agréablesL’espace de vie est entièrement orienté vers le jardin, avec de larges ouvertures qui assurent une luminosité optimale toute l’année. La pièce de vie invite à la détente et aux moments partagés (salon / salle à manger / cuisine ouverte), tandis que la circulation a été pensée pour séparer clairement l’espace nuit de la zone de jour.Confort et rangementsChambres équipées de dressings intégrés, pour un rangement performant et discret.Salle de bains d’environ 8 m² : suffisante pour recevoir une baignoire, une douche et une double vasque, idéale pour les besoins d’une famille.WC indépendant, prestations pratiques et agréables au quotidien.Personnalisable et évolutiveCe modèle offre de nombreuses possibilités de personnalisation (aménagements, finitions, options suite parentale, agencement du garage…), pour adapter la maison à vos usages et à votre style de vie.Pourquoi ce modèle ?C’est une proposition idéale si vous cherchez :un plain-pied spacieux et fonctionnel,une distribution pensée pour la vie familiale,des espaces lumineux et modulables,
L’actualité immobilière à Puygouzon
27/11/2023
02/11/2023
30/10/2023
20/10/2023
16/10/2023
16/10/2023