Maison à construire à Rabastens (81800)
Images
Description
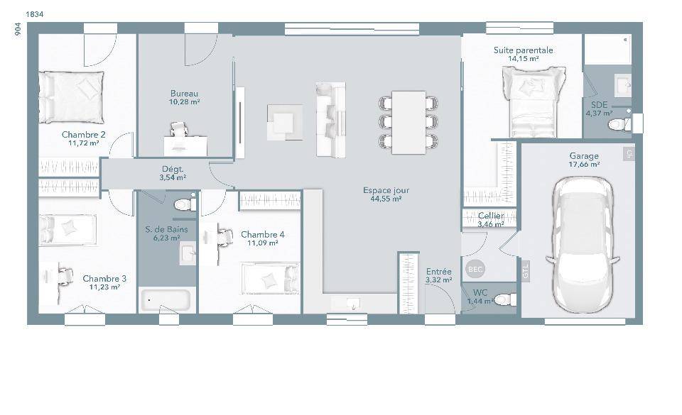
Modèle Optima Plain-pied 125 m²
Confort familial optimisé Luminosité Ergonomie
Maisons France Confort Albi, spécialiste de la construction traditionnelle et à ossature bois, vous présente le modèle Optima, un plain-pied de 125 m² pensé pour la vie de famille : fonctionnalité, circulation fluide et luminosité au coeur du projet.
Un plan réfléchi pour le quotidien
Pièce de vie centrale : un vaste séjour traversant, lumineux et convivial, conçu pour accueillir salon, salle à manger et cuisine ouverte. Les larges ouvertures favorisent la continuité intérieur / extérieur et créent un espace de vie agréable toute l'année.
Espace enfants / jour : trois chambres dédiées aux enfants (ou invités) et un bureau agencés pour préserver calme et intimité tout en restant proches de la pièce de vie.
Espace parents / nuit : suite parentale privative avec salle d'eau et dressing, offrant un véritable cocon intime et fonctionnel.
Praticité : cellier attenant au garage avec accès direct à la cuisine, pour faciliter les allers-retours, le rangement des courses et les usages quotidiens.
Atouts fonctionnels
Séparation claire jour / nuit pour un confort acoustique et une meilleure organisation des circulation.
Nombreux rangements possibles : placards intégrés, cellier, garage tout est prévu pour une maison ordonnée et facile à vivre.
Plain-pied : accessibilité, sécurité et confort pour toutes les étapes de la vie (jeunesse, famille, seniors).
Confort, performances et personnalisation
Conception compatible avec des solutions techniques modernes : isolation performante, systèmes de chauffage performants, et options éco-responsables (pompe à chaleur, panneaux solaires, etc.).
Plans modulables : possibilité d'adapter l'organisation intérieure, les finitions et les prestations (cuisine sur mesure, extension de garage, pergola, pose de volets roulants motorisés, etc.) selon vos besoins et votre budget.
Pourquoi choisir l'Optima ?
Vous recherchez un plain-pied spacieux alliant
Logement susceptibles de vous intéresser
Nous vous proposons de découvrir aussi cette sélection de logements situés à moins de 10km de Rabastens et qui seraient susceptibles de vous intéresser.
Mézens
TERRAINMézens (81800) – Terrain à vendre de 742 m²Idéalement situé – À proximité de ToulouseMaisons France Confort Albi, constructeur reconnu de maisons traditionnelles et à ossature bois, vous propose ce superbe terrain viabilisé de 742 m², idéalement orienté plein sud et offrant une belle vue dégagée sur un environnement verdoyant.Situé dans un secteur résidentiel prisé de Mézens, ce terrain bénéficie d’un emplacement privilégié, à seulement 28 km de Toulouse. Vous profiterez d’un cadre de vie paisible à la campagne tout en restant proche des commodités et des grands axes de circulation.Environnement et commoditésÉcole primaire dans la commune, idéale pour les familles.Cinq gares accessibles en moins de 10 minutes en voiture, facilitant vos déplacements vers Toulouse et les environs.Accès rapide à l’autoroute A68 à seulement 4 km, reliant Toulouse, Lavaur et Albi.Commerces, services et infrastructures à proximité.Informations pratiquesCe terrain, parfaitement orienté et prêt à accueillir votre projet de construction, est proposé au prix de 90 000 €.Pour plus d’informations ou pour étudier ensemble votre projet de maison personnalisée, contactez Maisons France Confort Albi au (Numéro supprimé).Faites de votre rêve immobilier une réalité avec l’accompagnement et le savoir-faire de Maisons France Confort Albi.Annonce proposée par un Agent Commercial Partenaire.
Mézens
TERRAIN ET MAISONMaison de plain-pied – Plan fonctionnel et évolutif signé Maisons France Confort AlbiMaisons France Confort Albi vous propose ce modèle de maison de plain-pied à l’agencement optimisé, alliant modernité, fonctionnalité et confort au quotidien.L’habitation s’organise autour d’un espace de vie central de 23,91 m², comprenant un séjour lumineux et une cuisine ouverte. Les ouvertures ont été judicieusement positionnées pour profiter pleinement de la lumière naturelle tout au long de la journée.Le coin nuit accueille deux chambres confortables, de 10,04 m² et 10,12 m², situées côte à côte pour offrir un cadre intime et reposant. Une salle d’eau de 4,56 m², équipée d’une douche, complète cet espace, desservi par un dégagement compact de 0,75 m², conçu pour minimiser les pertes d’espace.Un garage accolé de 18,09 m², accessible directement depuis la cuisine, peut être ajouté pour plus de praticité idéal pour stationner un véhicule ou créer un espace de rangement supplémentaire.Un plan pensé pour évoluer avec vousGrâce à sa conception intelligente, ce modèle est entièrement évolutif. Il est possible d’envisager des extensions sur les côtés ou à l’arrière, pour ajouter une chambre supplémentaire, un bureau, ou encore une pièce de détente, selon l’évolution de vos besoins.Ce plan modulable en fait une maison durable, qui s’adaptera facilement à tous vos projets de vie.📞 Contactez dès maintenant Maisons France Confort Albi au (Numéro supprimé) pour plus d’informations et concrétisez votre projet de vie.À noter : Les frais de notaire et frais annexes ne sont pas inclus dans le prix indiqué.Annonce proposée par un Agent Commercial Partenaire.
Mézens
TERRAIN ET MAISONProjet de maison de plain-pied – 71 m² – proposé par Maisons France Confort AlbiMaisons France Confort Albi, constructeur reconnu pour son savoir-faire en maisons traditionnelles et à ossature bois, vous présente ce projet de maison de plain-pied de 71 m², alliant confort moderne, fonctionnalité et qualité de vie.Pensée pour répondre aux besoins du quotidien, cette maison séduit par son plan optimisé et ses espaces baignés de lumière.🏡 Espace jour : convivialité et luminositéLe coeur de la maison s’articule autour d’une grande pièce de vie de 37 m², intégrant un salon spacieux, une salle à manger conviviale et une cuisine ouverte favorisant les échanges et la clarté naturelle.Un cellier de 4,5 m², directement accessible depuis la cuisine, permet un accès pratique au garage de 15 m² idéal pour stationner un véhicule ou aménager un espace de rangement supplémentaire.🌙 Espace nuit : calme et intimitéLa partie nuit, parfaitement isolée du séjour, comprend :Deux chambres confortables de 11,35 m² et 10,50 m²,Une salle de bains fonctionnelle de 4,5 m²,Un dégagement optimisé, limitant toute perte de surface et facilitant la circulation.Ce modèle de plain-pied offre un cadre de vie harmonieux et facile à vivre, adapté aux jeunes couples, primo-accédants, seniors ou à toute personne recherchant un habitat pratique, durable et évolutif.📞 N’attendez plus ! Contactez Maisons France Confort Albi au (Numéro supprimé) pour découvrir toutes les possibilités de personnalisation et concrétiser votre projet immobilier en toute sérénité.ℹ️ À noter : Les frais de notaire et autres frais annexes ne sont pas inclus dans le prix indiqué.Annonce proposée par un Agent Commercial Partenaire.
Mézens
TERRAIN ET MAISONModèle Plain-Pied Design – 85 m² – 3 chambres avec garage intégréProposé par Maisons France Confort AlbiMaisons France Confort Albi, constructeur reconnu pour son expertise en maisons traditionnelles et à ossature bois, vous présente ce modèle Plain-Pied Design, un incontournable de la gamme Open, réputé pour son plan ingénieux, sa luminosité et son confort au quotidien.Avec ses 85 m² parfaitement agencés, cette maison offre un espace de vie moderne et fonctionnel, idéal pour une famille, un couple ou des primo-accédants.Son architecture sobre et élégante met en valeur les volumes, la clarté et la convivialité.🏡 Un espace de vie spacieux et lumineuxLa pièce de vie de près de 40 m² s’ouvre largement sur le jardin grâce à de grandes baies vitrées, inondant l’intérieur de lumière naturelle et créant une belle continuité entre l’intérieur et l’extérieur.L’espace est pensé pour accueillir salon, salle à manger et cuisine ouverte, dans une atmosphère chaleureuse et moderne.🌙 Un espace nuit confortable et bien penséLa partie nuit comprend trois chambres, toutes supérieures à 9 m² et dotées de dressings intégrés, offrant confort et praticité au quotidien.Une salle de bains équipée d’une baignoire, un WC indépendant et un cellier fonctionnel complètent ce plan parfaitement équilibré.Un garage intégré apporte un atout supplémentaire, combinant espace de stationnement et rangement.💡 Les atouts du modèleDistribution fluide et espaces optimisésGrandes ouvertures pour une luminosité naturelle maximaleNombreux rangements et confort de plain-piedStyle architectural sobre et ambiance contemporaineCe modèle séduit par sa simplicité élégante et sa praticité au quotidien, offrant un cadre de vie harmonieux, agréable et facile à entretenir.📞 Contactez dès maintenant Maisons France Confort Albi au (Numéro supprimé) pour en savoir plus sur ce projet et personnaliser votre future maison selon vos envies.ℹ️ Frais de
Mézens
TERRAIN ET MAISONMaison Plain-Pied Design – 101 m² · 4 chambres · Garage 15 m²Maisons France Confort Albi confort, fonctionnalité et lumièreMaisons France Confort Albi, constructeur de maisons traditionnelles et à ossature bois, vous présente ce modèle Plain-Pied Design de 101 m², l’un des plus spacieux de la gamme Open. Pensée pour la vie de famille, cette maison allie volumes généreux, agencement pratique et grande luminosité.Un plan optimisé pour la vie familialeSurface habitable : 101 m² une distribution des pièces qui privilégie la convivialité et le confort.4 chambres dont une suite parentale pouvant être équipée, en option, d’un dressing et d’un coin bureau pour un espace intime et modulable.Garage intégré : 15 m², attenant et pratique au quotidien.Cellier : 3,36 m², directement accessible depuis la cuisine/garage pour un rangement facile et une circulation fluide.Des espaces lumineux et agréablesL’espace de vie est entièrement orienté vers le jardin, avec de larges ouvertures qui assurent une luminosité optimale toute l’année. La pièce de vie invite à la détente et aux moments partagés (salon / salle à manger / cuisine ouverte), tandis que la circulation a été pensée pour séparer clairement l’espace nuit de la zone de jour.Confort et rangementsChambres équipées de dressings intégrés, pour un rangement performant et discret.Salle de bains d’environ 8 m² : suffisante pour recevoir une baignoire, une douche et une double vasque, idéale pour les besoins d’une famille.WC indépendant, prestations pratiques et agréables au quotidien.Personnalisable et évolutiveCe modèle offre de nombreuses possibilités de personnalisation (aménagements, finitions, options suite parentale, agencement du garage…), pour adapter la maison à vos usages et à votre style de vie.Pourquoi ce modèle ?C’est une proposition idéale si vous cherchez :un plain-pied spacieux et fonctionnel,une distribution pensée pour la vie familiale,des espaces lumineux et modulables,
Mézens
TERRAIN ET MAISONModèle Lumi Maison ossature bois, plain-pied 113 m²Maisons France Confort Albi vous présente le modèle Lumi, une maison plain-pied en ossature bois de 113 m² alliant volumes généreux, luminosité et agencement réfléchi idéale pour une vie de famille moderne, confortable et économe en énergie.Espace jour convivialité et lumièrePièce de vie : 45 m²Vaste espace traversant favorisant la circulation et la luminosité naturelle. Cuisine ouverte possible, circulation fluide entre les zones salon, salle à manger et accès direct au cellier/groupe service.Espace nuit confort et intimitéSuite parentale : 18 m²Suite généreuse avec dressing, salle d’eau privative (douche + vasque) et WC intégré un espace intime et fonctionnel.3 chambres supplémentaires : surfaces comprises entre 10,60 m² et 12,12 m², toutes faciles à aménager.Salle de bains (familiale) et WC indépendant pour plus de confort au quotidien.Annexes et rangementCellier : 6,80 m², accessible depuis la pièce de vie et communicant avec le garage pratique pour les courses et le stockage.Garage intégré : 15 m², attenant, offrant stationnement et rangement supplémentaire.Points forts du modèle LumiConception ossature bois : performance thermique, confort intérieur et esthétique contemporaine.Plain-pied : accessibilité, simplicité d’usage et confort pour tous les âges.Volumes généreux et nombreux rangements pour une maison facile à vivre.Possibilités de personnalisation : choix des finitions, implantation des baies vitrées, options énergie (isolation renforcée, pompe à chaleur, panneaux solaires), aménagements extérieurs (pergola, terrasse, terrassement)…Pour qui ?Ce modèle convient aux familles souhaitant vivre sur un seul niveau sans sacrifier l’espace ni le confort : suite parentale, chambres bien dimensionnées, cellier pratique et garage intégré.📞 Pour une étude personnalisée de votre projet et un chiffrage :Maisons France Confort Albi (Numéro supprimé)📝 Nous
Rabastens
TERRAIN ET MAISONLe modèle Manon est une maison de plain-pied de 90 m² à l’architecture contemporaine et épurée. Elle s’articule autour de trois chambres avec placard, d’une salle de bain et d’un wc séparé. La pièce de vie est fonctionnelle avec une cuisine ouverte sur le séjour de plus de 40m² .Garage en option.Tous nos modèles de maison peuvent être personnalisés en fonction de vos besoins et envies !Nous vous présentons, dans la commune de Rabastens, ce beau terrain viabilisé et pourvu du tout à l’égout d’une superficie de 589 m². Situé à 5 minutes de l’autoroute A8, il est issu d’une division parcellaire et se positionne à 10 minutes seulement de St Sulpice.N’hésitez plus, contactez notre agence et programmez votre visite !
Rabastens
TERRAINTerrain à vendre à Rabastens – Opportunité rare !Maisons France Confort Albi, constructeur reconnu de maisons traditionnelles et à ossature bois, vous propose en exclusivité ce magnifique terrain à bâtir de 1 180 m², entièrement viabilisé, situé dans un lotissement intimiste composé de seulement 6 grandes parcelles.Idéalement situé à Rabastens, ce terrain bénéficie d’un environnement résidentiel paisible, tout en étant proche du centre-ville, des commerces, des écoles et des commodités du quotidien. L’accès rapide à l’autoroute A68 vous permet de rejoindre Toulouse en seulement 40 minutes, ce qui en fait un emplacement idéal pour les actifs ou les familles en quête d’un cadre de vie serein, sans pour autant s’éloigner des pôles urbains.Son emplacement stratégique, dans un secteur prisé, conjugué à la qualité du cadre de vie offert, en fait une opportunité rare à saisir rapidement.👉 Ne manquez pas cette occasion de construire la maison de vos rêves dans un environnement privilégié !📞 Pour plus d’informations, contactez Maisons France Confort Albi au (Numéro supprimé).Annonce proposée par un Agent Commercial Partenaire.
Rabastens
TERRAIN ET MAISON✨ Vous rêvez d’une maison de plain-pied fonctionnelle et lumineuse ?Maisons France Confort Albi, spécialiste de la construction de maisons traditionnelles et à ossature bois, vous présente le modèle Optima – 75 m², une maison pensée pour conjuguer confort, efficacité et modernité.🏡 Modèle Optima – 75 m² : un concentré de bien-êtreCe modèle astucieusement conçu propose une organisation optimale de l’espace :3 chambres avec placards intégrés pour accueillir toute la famille ou aménager un bureau,Un espace de vie lumineux, convivial et ouvert,Un cellier pratique pour le rangement et les équipements,Un garage intégré, idéal pour sécuriser votre véhicule ou stocker vos outils.Cette maison s’adapte aussi bien aux jeunes couples actifs qu’aux retraités en quête de simplicité et de confort de vie au quotidien.📍 Un emplacement de choixSituée dans un secteur dynamique et agréable, proche de nombreux commerces de proximité :SupermarchésBoulangeriesPoissonnerieSupérette…tout est à portée de main pour faciliter votre quotidien.👉 Ne repoussez plus votre projet de vie !📞 Contactez dès maintenant notre agence Maisons France Confort Albi au (Numéro supprimé) pour plus d’informations ou pour planifier un rendez-vous.ℹ️ Frais de notaire et frais annexes non inclus dans le prix annoncé.Annonce proposée par un Agent Commercial Partenaire.
L’actualité immobilière à Rabastens
27/11/2023
02/11/2023
30/10/2023
20/10/2023
16/10/2023
16/10/2023